ROS_SUMY Опубліковано: 22 листопада 2018 Поділитись Опубліковано: 22 листопада 2018 Почитав форум и поміркувавши, решил отказаться от идеи дома с 4 спальнями в пользу популярного на форуме Z10 проекта. Натхненный идеей форумчанина tansss https://www.stroimdom.com.ua/forum/attachment.php?attachmentid=494557&d=1457631291 переделал чуть под себя и вот что получилось Попрошу уважаемых форумчан покритиковать/подсказать/посоветовать по данному варианту 10ки. Посилання на коментар Поділитися на інших сайтах More sharing options...
Uk Опубліковано: 22 листопада 2018 Поділитись Опубліковано: 22 листопада 2018 Почитав форум и поміркувавши, решил отказаться от идеи дома с 4 спальнями в пользу популярного на форуме Z10 проекта. Натхненный идеей форумчанина tansss https://www.stroimdom.com.ua/forum/attachment.php?attachmentid=494557&d=1457631291 переделал чуть под себя и вот что получилось Попрошу уважаемых форумчан покритиковать/подсказать/посоветовать по данному варианту 10ки. Я б спальни на восток ориентировал Посилання на коментар Поділитися на інших сайтах More sharing options...
ROS_SUMY Опубліковано: 22 листопада 2018 Автор Поділитись Опубліковано: 22 листопада 2018 Я б спальни на восток ориентировал отзеркалить не вопрос, но справа планируется веранда. не хотелось бы ее размещать на запад Посилання на коментар Поділитися на інших сайтах More sharing options...
tansss Опубліковано: 22 листопада 2018 Поділитись Опубліковано: 22 листопада 2018 Натхненный идеей форумчанина tansss Есть вот такой реализованный в который теоретически можно постучаться на посмотреть 6 Посилання на коментар Поділитися на інших сайтах More sharing options...
mib Опубліковано: 22 листопада 2018 Поділитись Опубліковано: 22 листопада 2018 мне еще вот такая модификация нравится 1 Посилання на коментар Поділитися на інших сайтах More sharing options...
Юдин Денис Опубліковано: 22 листопада 2018 Поділитись Опубліковано: 22 листопада 2018 Почитав форум и поміркувавши, решил отказаться от идеи дома с 4 спальнями в пользу популярного на форуме Z10 проекта. Натхненный идеей форумчанина tansss www.stroimdom.com.ua/forum/attachment.php?attachmentid=494557&d=1457631291 переделал чуть под себя и вот что получилось Попрошу уважаемых форумчан покритиковать/подсказать/посоветовать по данному варианту 10ки. ну раз такая пьянка то у меня тоже есть вариант на основе z10, несколько расширен, с лесницей в подвал и на чердак. проект имеет универсальную планировку под участки со входом с севера, и соответствует требованиям застройщиков "среднего звена" Посилання на коментар Поділитися на інших сайтах More sharing options...
vadimv Опубліковано: 22 листопада 2018 Поділитись Опубліковано: 22 листопада 2018 Попрошу уважаемых форумчан покритиковать/подсказать/посоветовать по данному варианту 10ки.Детей жалко - мало того, что у них одна комната на двоих, так еще и окно на север. А окно кухни, наоборот, на юг. И котельной туда же. А в туалете посреди дома не протиснуться мимо раковины. ИМХО, предыдущий вариант был лучше, если его вот так расположить (север вверху): Посилання на коментар Поділитися на інших сайтах More sharing options...
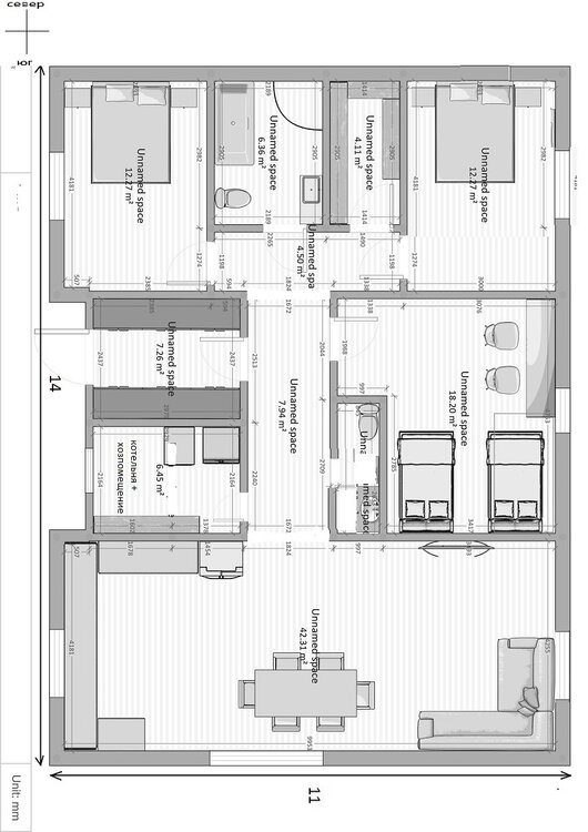
ROS_SUMY Опубліковано: 23 листопада 2018 Автор Поділитись Опубліковано: 23 листопада 2018 Детей жалко - мало того, что у них одна комната на двоих, так еще и окно на север. А окно кухни, наоборот, на юг. И котельной туда же. А в туалете посреди дома не протиснуться мимо раковины. ИМХО, предыдущий вариант был лучше, если его вот так расположить (север вверху): Дети потерпят) они сейчас вдвоем на 9 кв, а тут почти 18 Туалет допилю Посилання на коментар Поділитися на інших сайтах More sharing options...
vadimv Опубліковано: 23 листопада 2018 Поділитись Опубліковано: 23 листопада 2018 Дети потерпят) они сейчас вдвоем на 9 кв, а тут почти 18Ну они хотя бы одного пола? И то, в подростковом возрасте начнутся проблемы. Туалет допилюЯ бы дверь посередине сделал - унитаз налево, умывальник направо. И лично я бы все-таки развернул эту постройку нормально по сторонам света: Посилання на коментар Поділитися на інших сайтах More sharing options...
Uk Опубліковано: 23 листопада 2018 Поділитись Опубліковано: 23 листопада 2018 Строить дом чтобы дети терпели это обидно . Лучше 8 кв но у каждого своя спальня ИМХО. 3 Посилання на коментар Поділитися на інших сайтах More sharing options...
normal Опубліковано: 23 листопада 2018 Поділитись Опубліковано: 23 листопада 2018 ИМХО две спальни внизу и две на мансарде получилось бы оптимально, лет через 10 дети нарожают и все-равно переедут по съемным квартирам, для такого случая лучше сразу предусмотреть межэтажное утепление и перекрытие проема (чтобы без детей\внуков не топить лишний этаж) 1 Посилання на коментар Поділитися на інших сайтах More sharing options...
ROS_SUMY Опубліковано: 23 листопада 2018 Автор Поділитись Опубліковано: 23 листопада 2018 Ну они хотя бы одного пола? Ага - девчата) Я бы дверь посередине сделал - унитаз налево, умывальник направо. согласен И лично я бы все-таки развернул эту постройку нормально по сторонам света: ну от не вижу я его так на участке((( отзеркалить не вопрос, хотя веранду не хочу на запад, бо дує звідти))) Добавлено через 50 секунд ИМХО две спальни внизу и две на мансарде получилось бы оптимально, думал над верандой... Добавлено через 37 секунд Строить дом чтобы дети терпели это обидно . Лучше 8 кв но у каждого своя спальня ИМХО. 8 это не спальня Посилання на коментар Поділитися на інших сайтах More sharing options...
vadimv Опубліковано: 23 листопада 2018 Поділитись Опубліковано: 23 листопада 2018 веранду не хочу на запад, бо дує звідти)))Так веранду (террасу) можно сделать на восток, с выходом из гостиной. И еще бы я сдвинул котельную на метр на запад, на сторону котельной перенес туалет и сделал бы дверь в детскую по центру, а кровати по бокам. И окно там увеличил. 1 Посилання на коментар Поділитися на інших сайтах More sharing options...
ROS_SUMY Опубліковано: 4 грудня 2018 Автор Поділитись Опубліковано: 4 грудня 2018 Есть вот такой реализованный в который теоретически можно постучаться на посмотреть Наверно пока остановлюсь на "степаныче" +гараж слева допилить) 1 Посилання на коментар Поділитися на інших сайтах More sharing options...
tansss Опубліковано: 4 грудня 2018 Поділитись Опубліковано: 4 грудня 2018 +гараж слева допилить) В жизни там допилен навес на 4,5м 1 Посилання на коментар Поділитися на інших сайтах More sharing options...
ROS_SUMY Опубліковано: 5 грудня 2018 Автор Поділитись Опубліковано: 5 грудня 2018 Есть вот такой реализованный в который теоретически можно постучаться на посмотреть это в Хотяновку надо? Посилання на коментар Поділитися на інших сайтах More sharing options...
tansss Опубліковано: 5 грудня 2018 Поділитись Опубліковано: 5 грудня 2018 это в Хотяновку надо? Так точно! Посилання на коментар Поділитися на інших сайтах More sharing options...
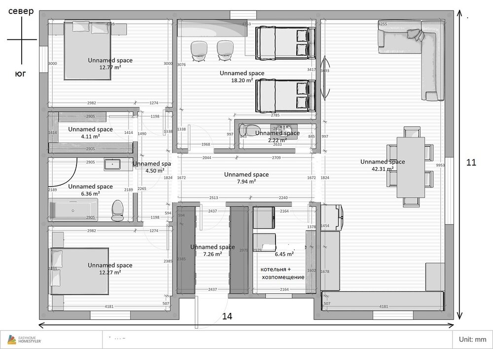
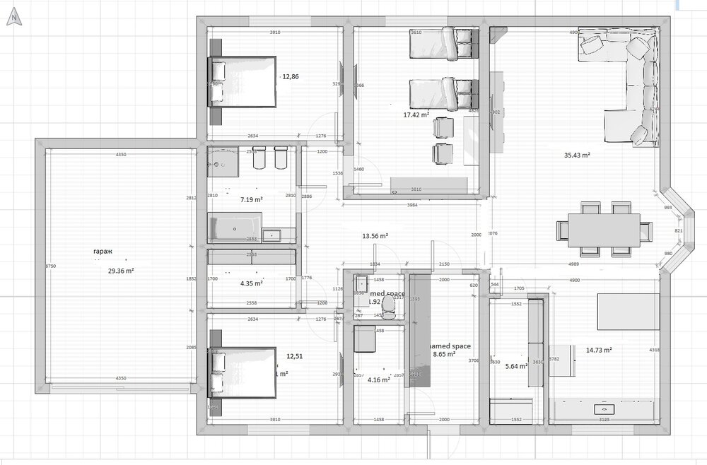
ROS_SUMY Опубліковано: 6 грудня 2018 Автор Поділитись Опубліковано: 6 грудня 2018 Как то так получилось, пока нравится. Справа будет веранда Посилання на коментар Поділитися на інших сайтах More sharing options...
vadimv Опубліковано: 6 грудня 2018 Поділитись Опубліковано: 6 грудня 2018 Как то так получилось, пока нравится. Справа будет верандаПечальная ситуация с солнечным светом, особенно зимой. Его не будет в половине дома (спалья, детская и гостиная) - в жилых помещениях, зато оно зачем-то будет светить на кухню (в глаза моющему посуду), тамбур и котельную. И только одна спальня будет пригодна для жизни. Гараж - вообще вещь ненужная в доме. ИМХО, конечно же. Посилання на коментар Поділитися на інших сайтах More sharing options...
Uk Опубліковано: 6 грудня 2018 Поділитись Опубліковано: 6 грудня 2018 Печальная ситуация с солнечным светом, особенно зимой. Его не будет в половине дома (спалья, детская и гостиная) - в жилых помещениях, зато оно зачем-то будет светить на кухню (в глаза моющему посуду), тамбур и котельную. И только одна спальня будет пригодна для жизни. Гараж - вообще вещь ненужная в доме. ИМХО, конечно же. С южным фасадом конечно беда Посилання на коментар Поділитися на інших сайтах More sharing options...
ROS_SUMY Опубліковано: 7 грудня 2018 Автор Поділитись Опубліковано: 7 грудня 2018 Печальная ситуация с солнечным светом, особенно зимой. Его не будет в половине дома (спалья, детская и гостиная) - в жилых помещениях, зато оно зачем-то будет светить на кухню (в глаза моющему посуду), тамбур и котельную. И только одна спальня будет пригодна для жизни. Гараж - вообще вещь ненужная в доме. ИМХО, конечно же. понимаю, шо по сторонам света не совсем феншуйно( но по другому расположит не представляется возможным так как справа с востока пятииэтажка, сзади на севере планируются высотки. Поэтому дом на участок планирую с южным фасадом и утопленым вглубь участка. Без гаража я дом не очень представляю ИМХО. 1 Посилання на коментар Поділитися на інших сайтах More sharing options...
eam Опубліковано: 7 грудня 2018 Поділитись Опубліковано: 7 грудня 2018 справа с востока пятииэтажка, сзади на севере планируются высотки. Кошмар... Может поискать другой участок который хотя бы не соседствует с высотками? Посилання на коментар Поділитися на інших сайтах More sharing options...
ROS_SUMY Опубліковано: 7 грудня 2018 Автор Поділитись Опубліковано: 7 грудня 2018 Кошмар... Может поискать другой участок который хотя бы не соседствует с высотками? Поздно, участок куплен ))) итого 13 соток, свет, канализация, газ присутствует Посилання на коментар Поділитися на інших сайтах More sharing options...
eam Опубліковано: 7 грудня 2018 Поділитись Опубліковано: 7 грудня 2018 Поздно, участок куплен ))) итого 13 соток, свет, канализация, газ присутствует Участок куплен то еще пол беды - его и продать можно. Дом то строить еще не начали. Просто хорошо подумайте перед тем как ввязываться в стройку на 2-3 года и тратить кучу денег на стройку так ли вам нравится то место. Начав стройку поменять место будет намного сложнее. Ну а если это именно то место что вы искали и вас устраивает соседство с двух сторон высоток (а в перспективе могут и со всех сторон же быть, теоретически) то тогда спокойно стройтесь и не обращайте внимания на критиков типа меня Посилання на коментар Поділитися на інших сайтах More sharing options...
ROS_SUMY Опубліковано: 7 грудня 2018 Автор Поділитись Опубліковано: 7 грудня 2018 Участок куплен то еще пол беды - его и продать можно. Дом то строить еще не начали. Просто хорошо подумайте перед тем как ввязываться в стройку на 2-3 года и тратить кучу денег на стройку так ли вам нравится то место. Начав стройку поменять место будет намного сложнее. Ну а если это именно то место что вы искали и вас устраивает соседство с двух сторон высоток (а в перспективе могут и со всех сторон же быть, теоретически) то тогда спокойно стройтесь и не обращайте внимания на критиков типа меня соседство с многоєтажками абсолютно не смущает))) родной тихий и спокойный район со всеми коммуникациями и инфраструктурой Посилання на коментар Поділитися на інших сайтах More sharing options...
Рекомендовані повідомлення
Створіть акаунт або увійдіть у нього для коментування
Ви маєте бути користувачем, щоб залишити коментар
Створити акаунт
Зареєструйтеся для отримання акаунта. Це просто!
Зареєструвати акаунтУвійти
Вже зареєстровані? Увійдіть тут.
Увійти зараз