vadimv Опубліковано: 12 лютого 2019 Поділитись Опубліковано: 12 лютого 2019 Посмотрел ваш план участка - практически один в один, как у меня. А над своим участком я думал-вертел разные варианты и так и сяк несколько лет. Так что на вашем месте я бы делал вот так, это самый оптимальный (на входе добавляем террасу на восток): Посилання на коментар Поділитися на інших сайтах More sharing options...
bodidron Опубліковано: 12 лютого 2019 Автор Поділитись Опубліковано: 12 лютого 2019 всё в планировке хорошо, но могут быть вопросы газовиков к проходной топочной - если, конечно, котел подразумевается газовый. Конструкцию стен можно сделать каркасной - деревянный доски с шагом 600 и утеплителем между ними, тогда будет достигнута цель экономическая. Правда, каркасные технологии очень чувствительности к правильности исполнения, и самому с друзьями строить сложно. нету газа, нет проблем( газ через дорогу, эта сторона не застроенна, провести стоило 7к раньше, сейчас все забили на газ по материалу планировался газобетон Посилання на коментар Поділитися на інших сайтах More sharing options...
tort Опубліковано: 12 лютого 2019 Поділитись Опубліковано: 12 лютого 2019 ... (на входе добавляем террасу на восток): Тоді це буде просто ганок, а не тераса. Тераса як місце яке з'єднує внутрішній простір з вуличним, на сході у запропонованому вами розташуванні не спрацює, бо вікна того фасаду виходять з тимчасових приміщень, туалету котельні. Усе залежить від уподобань хазаїна. Чи потрібен йому так часто двір як місце відпочинку чи ні, - хай само росте. Якщо потрібен, то краще його зв'язати з інтер'єром приміщень, бажано тих, де проводите багато часу разом. Іще потрібно буде одразу визначитися з місцями під допоміжні будови - під навіси, сарайчики, льохи тощо. Отак розносити хвіртку для пішого входу та в'їзд для авто, я б не радив ТСу. У атачі варіант на 62м2 так? На трьох? Посилання на коментар Поділитися на інших сайтах More sharing options...
vadimv Опубліковано: 12 лютого 2019 Поділитись Опубліковано: 12 лютого 2019 Тоді це буде просто ганок, а не тераса.Та нехай ганок. У наших родичів такий (2,5х10), все одно досить зручне місце для відпочинку на свіжому повітрі, але під дахом. Головне, щоб на схід, а не південь. У атачі варіант на 62м2 так? На трьох?Так Посилання на коментар Поділитися на інших сайтах More sharing options...
Строй Эксперт Опубліковано: 13 лютого 2019 Поділитись Опубліковано: 13 лютого 2019 Возможно из этого варианта что-то подойдет. Если убрать из общей площади террасу - 90 м2 останется. postroi.com.ua/projects/1-05/ Посилання на коментар Поділитися на інших сайтах More sharing options...
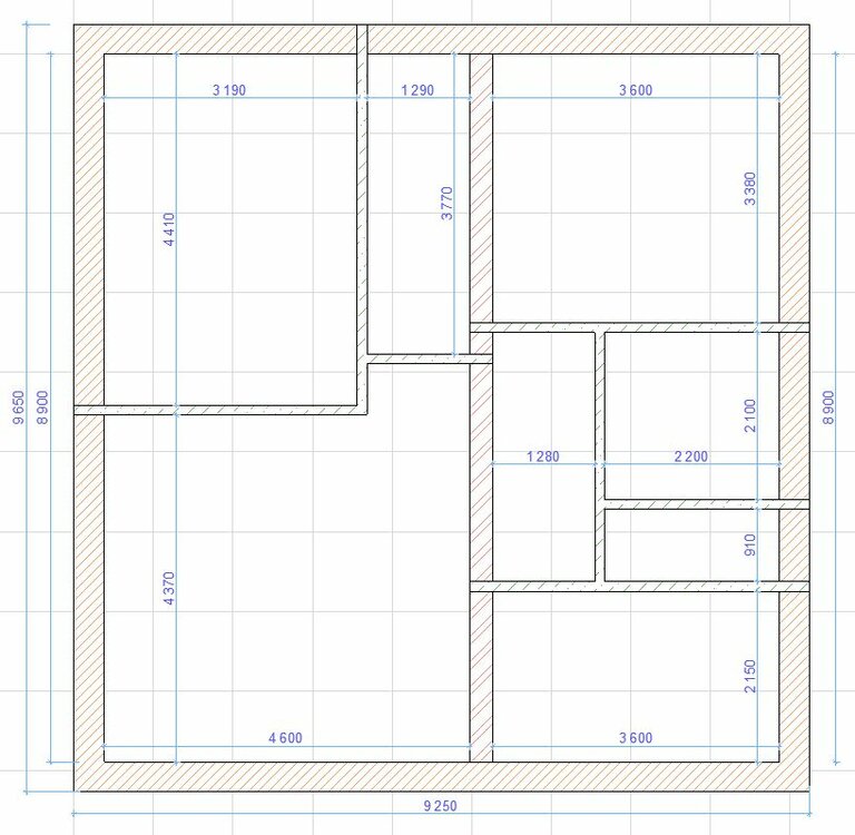
bodidron Опубліковано: 2 березня 2019 Автор Поділитись Опубліковано: 2 березня 2019 (змінено) пришла идея первоначальный 3х комнатный вариант, обрезать на одну комнату, и отзеркалить а так же как вариант увеличил комнату до 4м в длину, можно как-то переделать гардеробную комнату Змінено 2 березня 2019 користувачем bodidron 1 Посилання на коментар Поділитися на інших сайтах More sharing options...
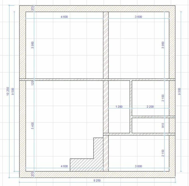
bodidron Опубліковано: 6 березня 2019 Автор Поділитись Опубліковано: 6 березня 2019 результат переделки, какие минусы? 1 Посилання на коментар Поділитися на інших сайтах More sharing options...
Drosselbeere Опубліковано: 6 березня 2019 Поділитись Опубліковано: 6 березня 2019 результат переделки, какие минусы? стесняюсь спросить кто вам рисует данные планы и что он или она курит Посилання на коментар Поділитися на інших сайтах More sharing options...
bodidron Опубліковано: 6 березня 2019 Автор Поділитись Опубліковано: 6 березня 2019 стесняюсь спросить кто вам рисует данные планы и что он или она курит что прошу нарисовать, то и курит, в чем суть вопроса? Посилання на коментар Поділитися на інших сайтах More sharing options...
Drosselbeere Опубліковано: 6 березня 2019 Поділитись Опубліковано: 6 березня 2019 что прошу нарисовать, то и курит, в чем суть вопроса? минусы из вашей крайней планировки, тем более у вас идет борьба за кв метры. 1. Вход через кухню при ее мини размерах и и таких же размеров топочной 2. Для вентиляции в одноэтажном доме делается специально стена да еще в кирпиче, нахиба!!! у вас одноэтажный дом но не многоэтажка 3. Отдельный вход в топочную .... если там будет твердотопленик , так почему не сделать как пристройку из более простого материала. 4. Туалет со входом прямо в комнату ..... 1 Посилання на коментар Поділитися на інших сайтах More sharing options...
bodidron Опубліковано: 6 березня 2019 Автор Поділитись Опубліковано: 6 березня 2019 минусы из вашей крайней планировки, тем более у вас идет борьба за кв метры. 1. Вход через кухню при ее мини размерах и и таких же размеров топочной 2. Для вентиляции в одноэтажном доме делается специально стена да еще в кирпиче, нахиба!!! у вас одноэтажный дом но не многоэтажка 3. Отдельный вход в топочную .... если там будет твердотопленик , так почему не сделать как пристройку из более простого материала. 4. Туалет со входом прямо в комнату ..... 1. вход так показался оптимальнее, чем через комнату 2. не могу прокоментировать, так спроэктировали 3. Вход хотели отдельный, а не из дома. Отдельное здание нету желания для этого делать. 4. Шо маемо то маемо Посилання на коментар Поділитися на інших сайтах More sharing options...
vadimv Опубліковано: 6 березня 2019 Поділитись Опубліковано: 6 березня 2019 (змінено) минусы из вашей крайней планировки, тем более у вас идет борьба за кв метры. 1. Вход через кухню при ее мини размерах и и таких же размеров топочной 2. Для вентиляции в одноэтажном доме делается специально стена да еще в кирпиче, нахиба!!! у вас одноэтажный дом но не многоэтажка 3. Отдельный вход в топочную .... если там будет твердотопленик , так почему не сделать как пристройку из более простого материала. 4. Туалет со входом прямо в комнату .....Хух, хорошо, что в моей планировке ни одного из этих пунктов нет. 4. Шо маемо то маемоЯ бы там поставил вторую дверь, через одну дверь в гостиной будет отлично слышно все, что происходит в туалете. Змінено 6 березня 2019 користувачем vadimv 1 Посилання на коментар Поділитися на інших сайтах More sharing options...
bodidron Опубліковано: 7 березня 2019 Автор Поділитись Опубліковано: 7 березня 2019 Хух, хорошо, что в моей планировке ни одного из этих пунктов нет. Я бы там поставил вторую дверь, через одну дверь в гостиной будет отлично слышно все, что происходит в туалете. Толковый вариант! Посилання на коментар Поділитися на інших сайтах More sharing options...
Рекомендовані повідомлення
Створіть акаунт або увійдіть у нього для коментування
Ви маєте бути користувачем, щоб залишити коментар
Створити акаунт
Зареєструйтеся для отримання акаунта. Це просто!
Зареєструвати акаунтУвійти
Вже зареєстровані? Увійдіть тут.
Увійти зараз