bodidron Опубліковано: 8 лютого 2019 Поділитись Опубліковано: 8 лютого 2019 состав семьи, 2е взрослых, и ребенок-девочка необходимо: 2 комнаты раздельно туалет/ванная кухня/кухня-гостинная топочная (вот тут нормативов не нашел, что попадалось 7кв.м.), газа нету, под твердотопливный котел. гардиробная (жена очень просит) ни как не могу придумать компактную планировку на 50-60-70 квадратов почему то ни как не вырисовывается концепция без корридоров понравилась идея форумчанина, если к топочной прилепить туалет Посилання на коментар Поділитися на інших сайтах More sharing options...
KosEroh Опубліковано: 8 лютого 2019 Поділитись Опубліковано: 8 лютого 2019 состав семьи, 2е взрослых, и ребенок-девочка необходимо: 2 комнаты раздельно туалет/ванная кухня/кухня-гостинная топочная (вот тут нормативов не нашел, что попадалось 7кв.м.), газа нету, под твердотопливный котел. гардиробная (жена очень просит) ни как не могу придумать компактную планировку на 50-60-70 квадратов почему то ни как не вырисовывается концепция без корридоров понравилась идея форумчанина, если к топочной прилепить туалет Мое имхо: 1) спальни разнести друг от друга подальше 2) топочную пристроить снаружи, но с дверью из дома 3) гардеробная - это всего лишь большая ниша в спальне, которую потом можно перегородкой (в идеале - сдвижной) в отдельную комнатку превратить Если не пугает идея входа в дом без коридора, вот что я себе рисовал для летнего домика (санузел можно отгородить и сделать туалет отдельным, а топочную разместить в кладовке) 1 Посилання на коментар Поділитися на інших сайтах More sharing options...
tort Опубліковано: 9 лютого 2019 Поділитись Опубліковано: 9 лютого 2019 понравилась идея форумчанина, если к топочной прилепить туалетОтак приблизно і робіть, нмд буде краще оцей варіант. Ліва картинка. З одного боку дві спальні (10,12м2) + якась допоміжна кімната (6-8)м2 ближче до входу, а навпроти цього ряду буде вхідний передпокій (4-6м2) та санвузел (5-6м2), потім відкрита кухня 10-12м2, потім гостьова зала 20-22м2. усього 72м2 Розміри внутрішнього контуру без зовнішньої стіни 7,4 х 9,8м(+0,2...0,4) або 7,2 х 10м(+0,2), або десь 7 х 10,5м (+0,2), залежить як організувати вхідні приміщення: передпокій, с/у (туалет+ванна) та допоміжну кімнату. Одна частина 30м2 інша - 40м2, тож середня стінка буде не посередені будинку, як на картинці, але ж так навіть краще може вийти. Так є шанс втулити роздільний туалет з ванною. Але це не точно. Треба помалювати щоб сказати напевно. І маленькі зміни пораджу: - не робіть дверей із передпокою до відкритої кухні, і стіну між кухнею та передпокоєм взагалі не робіть, тамбур краще зробити маленьким у зовнішній стіні (одні двері відкриваються всередину інші назовні), або якщо буде холодна закрита веранда, то можете одні двері влаштувать на вході у веранду, а інші у зовнішній стіні будинку. -додайте між кухнею та залою столову зону де їсти, стіл зі стільцями, щоб не зовсім дачний варіант вийшов. -про гардеробну забудьте, або робіть дім 75+м2. Її мінімальна глибина 1,3м без стін-перегородок. Замість гардеробної віддайте у вашій спальні (яка 12м2) якусь стіну цілком під вбудовану шафу (2м2) Знаєте така що з дверцятами но роликах Або прийдеться у дитини красти квадратні метри, а їй теж якась шафа потрібна. Колись робив приблизно таку схему, 71 м2, то мінімум був. У 50м2 навіть і не знаю як усі ваші побажання втиснути. Можливо що суміщений санвузол у 70м2 прийдеться робити, а для 50 здається взагалі анріал таке зробить для концепту трьохжитлових кімнат і щоб не чиплятись дверима одна за іншу у вхідній зоні де сходяться багато дрібних приміщень... То морока. Без сучасних атрібутів комфорту меблів, шаф з мотлохом кожного члена сім'ї, побутовою технікою, велосипедів і інших іграшок то не можливо ніяк. І горище не спасе. 1 Посилання на коментар Поділитися на інших сайтах More sharing options...
bambino Опубліковано: 9 лютого 2019 Поділитись Опубліковано: 9 лютого 2019 Вот книга нашего форумчанина. Там есть и планировки. Рекомендую всю прочесть. drive.google.com/file/d/1x381nG8N5rBDLlvAusgrDd2zEP2-NWf0/view 6 Посилання на коментар Поділитися на інших сайтах More sharing options...
Юдин Денис Опубліковано: 10 лютого 2019 Поділитись Опубліковано: 10 лютого 2019 состав семьи, 2е взрослых, и ребенок-девочка ни как не могу придумать компактную планировку на 50-60-70 квадратов Не вижу смысла строить дом величиной с квартиру (70м), это экономически не выгодно...если строить дом то хотя бы метров на 120 Посилання на коментар Поділитися на інших сайтах More sharing options...
bodidron Опубліковано: 10 лютого 2019 Автор Поділитись Опубліковано: 10 лютого 2019 Не вижу смысла строить дом величиной с квартиру (70м), это экономически не выгодно...если строить дом то хотя бы метров на 120 А лучше 180, но цель не в этом же... Добавлено через 38 секунд Вот книга нашего форумчанина. Там есть и планировки. Рекомендую всю прочесть. drive.google.com/file/d/1x381nG8N5rBDLlvAusgrDd2zEP2-NWf0/view Спасибо, читал, а также купил дополнения, ну вдруг есть ещё оптимальнее. Посилання на коментар Поділитися на інших сайтах More sharing options...
shuryayka Опубліковано: 10 лютого 2019 Поділитись Опубліковано: 10 лютого 2019 Под похожую задачу себе рисовал приведенное ниже - площадь около 85-ти. Размер по наружке 11.8х8.8. Нравится простой конструктив, простая крыша и перекрытие, понятные узлы. Помещение, выходящие с тамбура, можно использовать как котельную или гардероб (мой вариант). Нет ванной (личное предпочтение), вместо нее огромная душевая. Если слишков большая, можно увеличить гардероб, подвинув стену между ним и душем. В комнате с диваном и телевизором всегда может кто-то переночевать в случае необходимости - она изолирована дверью, но при этом в пространстве чувствуется открытость, имхо. 2 Посилання на коментар Поділитися на інших сайтах More sharing options...
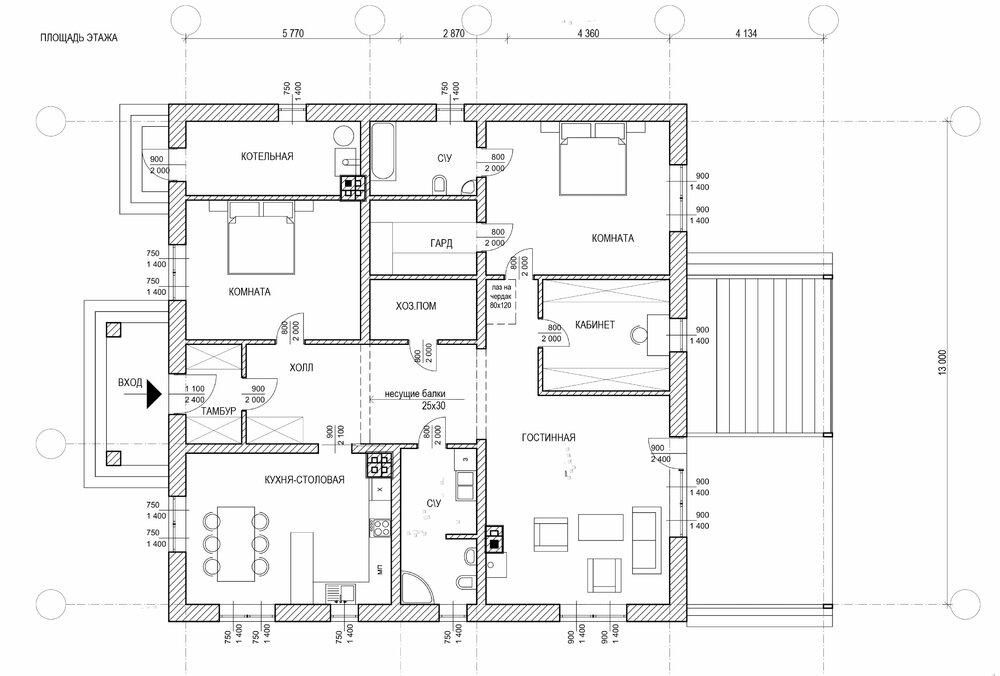
bodidron Опубліковано: 10 лютого 2019 Автор Поділитись Опубліковано: 10 лютого 2019 Под похожую задачу себе рисовал приведенное ниже - площадь около 85-ти. Размер по наружке 11.8х8.8. Нравится простой конструктив, простая крыша и перекрытие, понятные узлы. Помещение, выходящие с тамбура, можно использовать как котельную или гардероб (мой вариант). Нет ванной (личное предпочтение), вместо нее огромная душевая. Если слишков большая, можно увеличить гардероб, подвинув стену между ним и душем. В комнате с диваном и телевизором всегда может кто-то переночевать в случае необходимости - она изолирована дверью, но при этом в пространстве чувствуется открытость, имхо. В другой теме выкладывал 8.5*12м, но есть необходимость сделать меньше Посилання на коментар Поділитися на інших сайтах More sharing options...
shuryayka Опубліковано: 10 лютого 2019 Поділитись Опубліковано: 10 лютого 2019 В "меньше" у вас вряд ли выйдет уместить все выдвинутые пожелания. Если совсем компактно на 2 спальни, то для себя не придумал еще лучше чем ниже (котел газовый или электро на кухне в шкафу без вариантов). 9.4х8.8 Посилання на коментар Поділитися на інших сайтах More sharing options...
vadimv Опубліковано: 10 лютого 2019 Поділитись Опубліковано: 10 лютого 2019 состав семьи, 2е взрослых, и ребенок-девочка необходимо: 2 комнаты раздельно туалет/ванная кухня/кухня-гостинная топочная (вот тут нормативов не нашел, что попадалось 7кв.м.), газа нету, под твердотопливный котел. гардиробная (жена очень просит) ни как не могу придумать компактную планировку на 50-60-70 квадратов почему то ни как не вырисовывается концепция без корридоровКак вам такой вариант (6x11): Посилання на коментар Поділитися на інших сайтах More sharing options...
bodidron Опубліковано: 10 лютого 2019 Автор Поділитись Опубліковано: 10 лютого 2019 Как вам такой вариант (6x11): да, смотрел, что-то такое вижу без подписей, глухое топочная, туалет ванная, на северной стороне Посилання на коментар Поділитися на інших сайтах More sharing options...
vadimv Опубліковано: 10 лютого 2019 Поділитись Опубліковано: 10 лютого 2019 что-то такое вижу без подписей, глухое топочная, туалет ванная, на северной сторонеА как в топочную попадать? С улицы? 1 Посилання на коментар Поділитися на інших сайтах More sharing options...
bambino Опубліковано: 10 лютого 2019 Поділитись Опубліковано: 10 лютого 2019 Как вам такой вариант (6x11): Мне идея с резервным камином для основных помещений нравится. Хотя это серьезное удорожание, буржуйкой не отделаешься. Но проходная гостинная - минус, хотя и экономия на коридоре. 1 Посилання на коментар Поділитися на інших сайтах More sharing options...
bodidron Опубліковано: 10 лютого 2019 Автор Поділитись Опубліковано: 10 лютого 2019 А как в топочную попадать? С улицы? Да, как в первом варианте и планировали Посилання на коментар Поділитися на інших сайтах More sharing options...
tort Опубліковано: 10 лютого 2019 Поділитись Опубліковано: 10 лютого 2019 да, смотрел, что-то такое вижу без подписей, глухое топочная, туалет ванная, на северной стороне Збільшуйте розміри. У площу 4,3 х3,6 м (15м2) кухню з обіднім столом та гостьову залу ви не втулите. Червоним позначив прохідну зону, яка забере чималу корисну площу. Там меблів, крім дзеркал чи плазм тощо не буде, або це вкрай не зручно буде. Гардеробної нема. І нема навіть місця під вбудовану шафу (посуньте двері хочаб для неї) Bхідної шафи теж нема, є місце максимум під вішалку у "холодному", темному та вузькому тамбурі. Другі ненамальовані двері з'їдять майже увесь простір у ньому, якщо будуть відкриватися на вихід. А на вхід вони заважають дверям з ванної. 2,3х2м для ванної (4,6м2) це не відповідає компактності усіх інших приміщень. Топкову проектуєте під обраний вами котел. Зараз без нього це питання не має сенсу. Норм на площу для котлів до 30кТв немає, тож "7м2" то не те. Bаріант, що ви взяли за основу, має вхід з півночі, тому органічно пов'язується з прохідною зоною у залі і знаходиться на одній лінії з нею. Це дозволяє уникнути глухого приміщення у куті. Bхід у дім зі сходу викреслює глухе приміщення з переліку внутрішніх приміщень. -7м2 (більше 10%) внутрішньої площі. Bзагалі план ділянки цікаво було б побачити у темі. Щоб не балакать про концепцію 3хкімнатного будинку у 60-80м2 взагалі, а побачити проблему розташування на ділянці. Середню стінку краще робити з цегли. По сукупності критеріїв. Але цей питання не на часі. 2 Посилання на коментар Поділитися на інших сайтах More sharing options...
bodidron Опубліковано: 11 лютого 2019 Автор Поділитись Опубліковано: 11 лютого 2019 Збільшуйте розміри. У площу 4,3 х3,6 м (15м2) кухню з обіднім столом та гостьову залу ви не втулите. Червоним позначив прохідну зону, яка забере чималу корисну площу. Там меблів, крім дзеркал чи плазм тощо не буде, або це вкрай не зручно буде. Гардеробної нема. І нема навіть місця під вбудовану шафу (посуньте двері хочаб для неї) Bхідної шафи теж нема, є місце максимум під вішалку у "холодному", темному та вузькому тамбурі. Другі ненамальовані двері з'їдять майже увесь простір у ньому, якщо будуть відкриватися на вихід. А на вхід вони заважають дверям з ванної. 2,3х2м для ванної (4,6м2) це не відповідає компактності усіх інших приміщень. Топкову проектуєте під обраний вами котел. Зараз без нього це питання не має сенсу. Норм на площу для котлів до 30кТв немає, тож "7м2" то не те. Bаріант, що ви взяли за основу, має вхід з півночі, тому органічно пов'язується з прохідною зоною у залі і знаходиться на одній лінії з нею. Це дозволяє уникнути глухого приміщення у куті. Bхід у дім зі сходу викреслює глухе приміщення з переліку внутрішніх приміщень. -7м2 (більше 10%) внутрішньої площі. Bзагалі план ділянки цікаво було б побачити у темі. Щоб не балакать про концепцію 3хкімнатного будинку у 60-80м2 взагалі, а побачити проблему розташування на ділянці. Середню стінку краще робити з цегли. По сукупності критеріїв. Але цей питання не на часі. Спасибо за ссылку по котлам, буду значит под конкретный котел думать, так на много проще) по ванной, жена требует большую ванную. Попробую еще нарисовать с асиметричными половинками, посмотрю. Еще вопрос, для перекрытия деревом, какой пролет оптимальный? Посилання на коментар Поділитися на інших сайтах More sharing options...
vadimv Опубліковано: 11 лютого 2019 Поділитись Опубліковано: 11 лютого 2019 (змінено) для перекрытия деревом, какой пролет оптимальный?4-5 мЩоб не балакать про концепцію 3хкімнатного будинку у 60-80м2 взагаліПара варіантів (9х8): Змінено 11 лютого 2019 користувачем vadimv 1 Посилання на коментар Поділитися на інших сайтах More sharing options...
-enjoy- Опубліковано: 11 лютого 2019 Поділитись Опубліковано: 11 лютого 2019 ни как не могу придумать компактную планировку на 50-60-70 квадратов почему то ни как не вырисовывается концепция без корридоров понравилась идея форумчанина, если к топочной прилепить туалет гляньте проект Татьяны на 76м2: https://www.stroimdom.com.ua/forum/showpost.php?p=4306095&postcount=721 також: https://www.stroimdom.com.ua/forum/showpost.php?p=4306100&postcount=722 Посилання на коментар Поділитися на інших сайтах More sharing options...
tort Опубліковано: 11 лютого 2019 Поділитись Опубліковано: 11 лютого 2019 Пара варіантів (9х8)це якщо спальню у тому куті розмістити замість котельні. Її ширина складитиме: >800мм +откоси100*2 + довжина туалету 1500 = 2,5м минимум. Довжина її завдана спальнями - 4м. Тож 10м2 під котел нехай і ТП, то занадто. У моєму колишньому дуже давньому досвіді третя спальня туди і влізла. Я подивився ситуацію. B'їзд на ділянку отакий зі сходу, ділянка йде зі сходу на захід, 19м на 50 приблизно. По сторонам виходить що треба з боку робити вхід а не з торця. Розвертати спальні на північ то дурний варіант. От і приходимо до того що казав спочатку - треба трошки додати загальної довжини будинку. А середньою стінкою будинок поділити не навпіл, а десь 3 до 4х або 3,2 до 4,3. Щоб спальні задали ширину для котельні хочаб у 3 м а не 4. Тоді можна в один прольот зробити. Пятистінник при таких розмірах не раціональний. Добавлено через 20 минут по ванной, жена требует большую ванную.Тут як і з котлом одразу розташуйте прибори. Що там планується? Bанна, пралка, рукомийник, щось іще? Ось вам на допомогу. Але зробіть допуск на те, що це німці і там воно зменьшено трохи на 10%, ще на оздоблення стін +5см десь. І це не всі варіанти звичайно. 1 Посилання на коментар Поділитися на інших сайтах More sharing options...
bodidron Опубліковано: 11 лютого 2019 Автор Поділитись Опубліковано: 11 лютого 2019 це якщо спальню у тому куті розмістити замість котельні. Її ширина складитиме: >800мм +откоси100*2 + довжина туалету 1500 = 2,5м минимум. Довжина її завдана спальнями - 4м. Тож 10м2 під котел нехай і ТП, то занадто. У моєму колишньому дуже давньому досвіді третя спальня туди і влізла. Я подивився ситуацію. B'їзд на ділянку отакий зі сходу, ділянка йде зі сходу на захід, 19м на 50 приблизно. По сторонам виходить що треба з боку робити вхід а не з торця. Розвертати спальні на північ то дурний варіант. От і приходимо до того що казав спочатку - треба трошки додати загальної довжини будинку. А середньою стінкою будинок поділити не навпіл, а десь 3 до 4х або 3,2 до 4,3. Щоб спальні задали ширину для котельні хочаб у 3 м а не 4. Тоді можна в один прольот зробити. Пятистінник при таких розмірах не раціональний. Добавлено через 20 минут Тут як і з котлом одразу розташуйте прибори. Що там планується? Bанна, пралка, рукомийник, щось іще? Ось вам на допомогу. Але зробіть допуск на те, що це німці і там воно зменьшено трохи на 10%, ще на оздоблення стін +5см десь. І це не всі варіанти звичайно. Спасибо, так и думал попробовать асимметрично, вплодь до 3 и 5м по ширине, посмотрю, как будет выходить Посоветуйте где какие помещения стоит размещать? С/у, топочная все на северную сторону? Посилання на коментар Поділитися на інших сайтах More sharing options...
jordano Опубліковано: 11 лютого 2019 Поділитись Опубліковано: 11 лютого 2019 Себе такую спланировал, 67 кв.м. Посилання на коментар Поділитися на інших сайтах More sharing options...
bodidron Опубліковано: 11 лютого 2019 Автор Поділитись Опубліковано: 11 лютого 2019 (змінено) Себе такую спланировал, 67 кв.м. а коммуникации думали? нарисовал что-то квадратное а дальше мыли убежали. вижу что кухню надо у топочной, так как рядом будет дымоход/вода/канализация 9250 в строительном паспорте сторона по фасаду может для входа стырить у комнат, или стенку как-то несущую перенести (или вообще в виде пристройки) может отзеркалить, и кухню на огород направить - на запад Змінено 11 лютого 2019 користувачем bodidron Посилання на коментар Поділитися на інших сайтах More sharing options...
tort Опубліковано: 11 лютого 2019 Поділитись Опубліковано: 11 лютого 2019 Посоветуйте где какие помещения стоит размещать? С/у, топочная все на северную сторону?При такій концепції із входом зі сходу мабуть що так. Це не погано, коли кімнати тимчасового користування виходять на північ, на тіньовий бік дому, це навіть добре. Не зовсім зручно що ділянка витягнута не у той бік що нам треба. Хоча... щоб зовсім не відрізати внутрішній простір будинка можете зробити сміливий хід, а точніше окремі виходи зі спален на дворову терасу по типу будинків відпочінку, або тільки у дорослій спальні. Це не означає що не знайдеться інших більш оптимальних рішень та концепцій які вас влаштують більше ніж ця. Я поки що мислю однією концепцією, бо з нею працював щильно. Є один простий прийом і іноді він працює, у не досить складному плані можна рухати усі приміщення по годинніковій або проти годиннійковій стрілці. І дивитись що з того виходить. У цьому концепті вийде такий варіант, який любить розробляти z500, коли "лофт" гостьової кімнати з кухнею будуть внизу плану, у торцю будинку, а дві спальні сунуться по годинниковій стрілці на західний та північно-західний бік. З'являється можливість зробити терасу на двір з виходом на неї із гостьової зали. Але тоді східна сторона віддається повністю технічним приміщенням і з'являється коридор, що збільшує трохи загальну площу. Посилання на коментар Поділитися на інших сайтах More sharing options...
jordano Опубліковано: 12 лютого 2019 Поділитись Опубліковано: 12 лютого 2019 а коммуникации думали? Думал конечно), у меня и так она рядом с кухней, просто я газ не планирую заводить, всё на электричестве Посилання на коментар Поділитися на інших сайтах More sharing options...
vladimir_arch Опубліковано: 12 лютого 2019 Поділитись Опубліковано: 12 лютого 2019 если к топочной прилепить туалет всё в планировке хорошо, но могут быть вопросы газовиков к проходной топочной - если, конечно, котел подразумевается газовый. Конструкцию стен можно сделать каркасной - деревянный доски с шагом 600 и утеплителем между ними, тогда будет достигнута цель экономическая. Правда, каркасные технологии очень чувствительности к правильности исполнения, и самому с друзьями строить сложно. Посилання на коментар Поділитися на інших сайтах More sharing options...
Рекомендовані повідомлення
Створіть акаунт або увійдіть у нього для коментування
Ви маєте бути користувачем, щоб залишити коментар
Створити акаунт
Зареєструйтеся для отримання акаунта. Це просто!
Зареєструвати акаунтУвійти
Вже зареєстровані? Увійдіть тут.
Увійти зараз