gaset Опубліковано: 22 лютого 2019 Поділитись Опубліковано: 22 лютого 2019 Добрый день, Я в процессе проектировки освещения в доме. Есть сомнения в отношении правильного количества точек света. Хотел бы поинтересоваться мнением экспертов. Проект следующий: Общий план: здесь. План освещения: здесь. Интересует помещение 109 (кухня, гостиная). В гостиной хочу ставить точечные led на 5 Вт где-то. Т.е. выходит 12 точек на приблизительно 22 м2. Выключатель будет с диммером. На кухне - 9 точек. Лампы будут мощнее и без диммера. Скажите, этого света будет достаточно или добавить еще точек? Посилання на коментар Поділитися на інших сайтах More sharing options...
Waldmann Опубліковано: 23 лютого 2019 Поділитись Опубліковано: 23 лютого 2019 Потрібен дозвіл Хочете отримати доступ? Попросіть про це власника або ввійдіть з облікового запису, який має дозвіл. Таке повідомлення при спробі відкрити плани по ссилкам Посилання на коментар Поділитися на інших сайтах More sharing options...
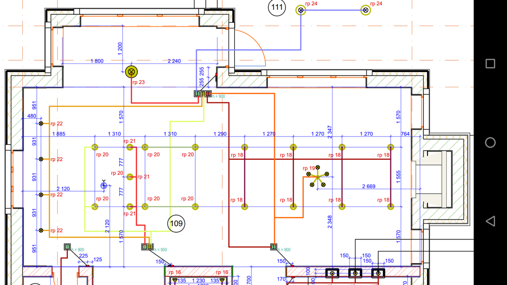
gaset Опубліковано: 23 лютого 2019 Автор Поділитись Опубліковано: 23 лютого 2019 Не могу отредактировать предыдущее сообщение. Добавляю планы как изображения в этом сообщении. Посилання на коментар Поділитися на інших сайтах More sharing options...
JohnnyD Опубліковано: 23 лютого 2019 Поділитись Опубліковано: 23 лютого 2019 (змінено) Себе считал 2 Вт на 1м2. По факту для гостиной добавил светильник. Вышло 2.6 Вт на 1м2. В гостиной 2 группы. В кухне так и осталось. Лампы по 5 Вт. Во вложении план. Змінено 23 лютого 2019 користувачем JohnnyD 2 Посилання на коментар Поділитися на інших сайтах More sharing options...
gaset Опубліковано: 23 лютого 2019 Автор Поділитись Опубліковано: 23 лютого 2019 Себе считал 2 Вт на 1м2. По факту для гостиной добавил светильник. Вышло 2.6 Вт на 1м2. В гостиной 2 группы. В кухне так и осталось. Лампы по 5 Вт. Во вложении план. У ледовских ламп угол рассеивания в своем большенстве 36 градусов. Вы это как-то учитывали? Посилання на коментар Поділитися на інших сайтах More sharing options...
JohnnyD Опубліковано: 23 лютого 2019 Поділитись Опубліковано: 23 лютого 2019 У ледовских ламп угол рассеивания в своем большенстве 36 градусов. Вы это как-то учитывали? У меня уже все установлено. Угол 120. Светильники с регулировкой. Посилання на коментар Поділитися на інших сайтах More sharing options...
gaset Опубліковано: 23 лютого 2019 Автор Поділитись Опубліковано: 23 лютого 2019 У меня уже все установлено. Угол 120. Светильники с регулировкой. А какие у вас лампочки? И светильники? Посилання на коментар Поділитися на інших сайтах More sharing options...
JohnnyD Опубліковано: 23 лютого 2019 Поділитись Опубліковано: 23 лютого 2019 А какие у вас лампочки? И светильники? В гостиной и кухне maytoni dl008-2-02-s и maytoni dl008-2-01-s соответственно. Лампы GU10 и G5.3 Eurolamp и Maxus. На удивление Philips в цоколе GU10 гудят. Osram не помню. Посилання на коментар Поділитися на інших сайтах More sharing options...
dip Опубліковано: 23 лютого 2019 Поділитись Опубліковано: 23 лютого 2019 У меня уже все установлено. Угол 120. Светильники с регулировкой. Сколько диммируемых лед ламп установлено на 1 регулятор?? Если много, то с диммера может пойти дым. Посилання на коментар Поділитися на інших сайтах More sharing options...
JohnnyD Опубліковано: 23 лютого 2019 Поділитись Опубліковано: 23 лютого 2019 Сколько диммируемых лед ламп установлено на 1 регулятор?? Если много, то с диммера может пойти дым. Ни одного диммируемого. Нигде нет и не будет. Не видим надобности. Освещение будет регулироваться с помощью групп и дополнительного. Посилання на коментар Поділитися на інших сайтах More sharing options...
dip Опубліковано: 23 лютого 2019 Поділитись Опубліковано: 23 лютого 2019 Не видим надобности увидите потом, как и все. в спальнях-гостиных-детских - везде ставят. ну и в кухнях тоже. Посилання на коментар Поділитися на інших сайтах More sharing options...
JohnnyD Опубліковано: 23 лютого 2019 Поділитись Опубліковано: 23 лютого 2019 увидите потом, как и все. в спальнях-гостиных-детских - везде ставят. ну и в кухнях тоже. В чем это выражается? Хотя это оффтоп. Как то вы близко к сердцу восприняли) Посилання на коментар Поділитися на інших сайтах More sharing options...
engeneer Опубліковано: 24 лютого 2019 Поділитись Опубліковано: 24 лютого 2019 Хотел бы поинтересоваться мнением экспертов. В гостиной хочу ставить точечные led на 5 Вт где-то. Т.е. выходит 12 точек на приблизительно 22 м2. Выключатель будет с диммером. На кухне - 9 точек. Лампы будут мощнее и без диммера. Скажите, этого света будет достаточно или добавить еще точек? 60 Вт на 22 кв.м. при высоте 2,7 м - более чем достаточно. 2 Вт (200 Люмен) на квадратный метр дают в районе 200 Люкс на высоте стола. Больше не нужно. По поводу диммера - могут быть проблемы. Лампы должны быть только диммируемыми (dimmable), сам диммер - очень желательно с указанием "для LED ламп" и мощность должна быть в паспортных пределах. 3 Посилання на коментар Поділитися на інших сайтах More sharing options...
Рекомендовані повідомлення
Створіть акаунт або увійдіть у нього для коментування
Ви маєте бути користувачем, щоб залишити коментар
Створити акаунт
Зареєструйтеся для отримання акаунта. Це просто!
Зареєструвати акаунтУвійти
Вже зареєстровані? Увійдіть тут.
Увійти зараз