Крышник Опубліковано: 23 листопада 2009 Поділитись Опубліковано: 23 листопада 2009 Добрый вечер! Вот такая ситуация. Армопояс + залита плита(монолит)+газаблок Д500. Из плиты выведены арматурины в газоблок, связаны с каркасом и залито бетоном. Получились колонны, примерно 0,8м высотой, на другом перекрытие где-то 1,6м и с частотой через 1,9м (см.фото). Потом в эти колонны с помощью химических анкеров, если не ошибаюсь Хилти, будут прикреплены шпильки и на них мауэрлат. Есть места, где мауэрлаты будут сращиваться. Подскажите кто знает: 1) Обязательно ли нужен был армопояс под мауэрлат? 2) Есть ли смысл увеличить частоту шпилек(в газоблок)? 3) Нужно ли изолировать мауэрлат от стены, если да то чем? И зачем такие сложности и лишний,и не нужный, расход материала???Любит наш народ изобретать велосипед с квадратными колёсами!Авторы идеи,что на фото,должны всё переделать бесплатно и возместить Вам средства за испорченый материал.Да и вообще,по кладке вижу,низкий уровень строителей,клавших блок. 1.Да,обязательно нужен,иначе потрескается газоблок(неоднократно это видел).У Вас сделано не правильно,уберите верхний ряд блока и залейте НА ШИРИНУ блока армпояс. 2.Шпилька в газоблок ничего не даёт,она должна быть в армпоясе. 3.Повторяю на форуме уже 125-й раз:Камень,дерево и металл должны быть ВСЕГДА взаимоизолировыны,можно рубероидом(еврорубероидом,подкладкой для наплавляемых материалов и подобное),желательно с основой полиэстр. Посилання на коментар Поділитися на інших сайтах More sharing options...
Стaс Опубліковано: 23 листопада 2009 Поділитись Опубліковано: 23 листопада 2009 Крышнику. Добрый день! Авторы идеи,что на фото,должны всё переделать бесплатно и возместить Вам средства за испорченый материал. Все делаеться по Архитоновскому проекту, только у них дополнительно к колоннам еще должен быть армопояс. Строители сказали, что колон будет достаточно, если крышу унесет, то и армопояс не поможет, тем более, что он не будет замкнут т.к. у меня с фронтонов выходы на балкон. Камень,дерево и металл должны быть ВСЕГДА взаимоизолировыны,можно рубероидом А какой рубероид порекомендуете, сколько слоев и какой ширины полоску вырезать(мауэр. 150х150)? П.С. А почему Вы решили, что низкий уровень кладки газоблока? Проверка лазерным нивелиром показала, что углы все ровные, стены не завалены(на 15м - 3мм, вроде в допуске). Посилання на коментар Поділитися на інших сайтах More sharing options...
Крышник Опубліковано: 23 листопада 2009 Поділитись Опубліковано: 23 листопада 2009 Крышнику. Добрый день! Авторы идеи,что на фото,должны всё переделать бесплатно и возместить Вам средства за испорченый материал. Все делаеться по Архитоновскому проекту, только у них дополнительно к колоннам еще должен быть армопояс. Строители сказали, что колон будет достаточно, если крышу унесет, то и армопояс не поможет, тем более, что он не будет замкнут т.к. у меня с фронтонов выходы на балкон. Камень,дерево и металл должны быть ВСЕГДА взаимоизолировыны,можно рубероидом А какой рубероид порекомендуете, сколько слоев и какой ширины полоску вырезать(мауэр. 150х150)? П.С. А почему Вы решили, что низкий уровень кладки газоблока? Проверка лазерным нивелиром показала, что углы все ровные, стены не завалены(на 15м - 3мм, вроде в допуске). То,что вы прицитировали из сказаного вашими строителями,подтверждает,что они,мягко говоря,не компетентны,почитайте внимательно,что писал я и другие про армпояс и мауэр,он нужен для того чтобы равномерно распределялись усилия на стену и её не выдавило,а не унесло....что бы не унесло надо шпильки намертво присобачить к армпоясу,а не газобетону....попробуйте сами провести эксперемент,вырвите обычный дюбель из железобетона и из газоблока,всё поймёте про компетентность ваших советчиков... Про кладку...я ничего не говорил про уровень горизонта,я имел ввиду низкий уровень профессионализма рабочих,например,только безграмотные рукож...е работяги могут вертикальный стык блоков,расположеных один над другим,положить один над другим(см. на фронтоне),да и советы "грамотные" которые вы цитировали...и так архоновские проекты одни из худших(хотя этот момент про столбы и армпояс правильный) и всегда требуют доработок и изменений,так ещё и с умниками рабочими "повезло",прям НашаРаша повсеместная. Посилання на коментар Поділитися на інших сайтах More sharing options...
Werewolf Опубліковано: 23 листопада 2009 Поділитись Опубліковано: 23 листопада 2009 Добрый вечер! Вот такая ситуация. Армопояс + залита плита(монолит)+газаблок Д500. Из плиты выведены арматурины в газоблок, связаны с каркасом и залито бетоном. Получились колонны, примерно 0,8м высотой, на другом перекрытие где-то 1,6м и с частотой через 1,9м (см.фото). Потом в эти колонны с помощью химических анкеров, если не ошибаюсь Хилти, будут прикреплены шпильки и на них мауэрлат. Есть места, где мауэрлаты будут сращиваться. Подскажите кто знает: 1) Обязательно ли нужен был армопояс под мауэрлат? 2) Есть ли смысл увеличить частоту шпилек(в газоблок)? 3) Нужно ли изолировать мауэрлат от стены, если да то чем? 1. Не обязательно - поясом у вас служит межэтажное перекрытие (монолитная плита) 2. через 1,9 м. вполне достаточно. Желательно, что-бы замок мауэрлата не попал на анкер - это в идеале, но и не критично. Лишь неясно, зачем хим.анкера. 3. Обязательно - любым гидроизолом (кроме ПВХ и линолиума:D:D) А вот стоимость этих колон (2 куб.м.) с арматурой, бетоном и работой вычтите у прораба. Если, конечно, такое не заложено в проетке. И переделывать ничего не стоит - дороже будет, а на прочностные показатели конструкции в целом, не повлияет. Посилання на коментар Поділитися на інших сайтах More sharing options...
Стaс Опубліковано: 23 листопада 2009 Поділитись Опубліковано: 23 листопада 2009 я имел ввиду низкий уровень профессионализма рабочих,например,только безграмотные рукож...е работяги могут вертикальный стык блоков,расположеных один над другим,положить один над другим(см. на фронтоне) Вы правильно пишите, но это только на кроях фронтонов, а везде перевязка была минимум 8-10см. А по поводу, что армопояс нужен для того чтобы равномерно распределялись усилия на стену и её не выдавило, так я понимаю на стену будет минимальная нагрузка основная пойдет на колонны. Разве не так? Посилання на коментар Поділитися на інших сайтах More sharing options...
Стaс Опубліковано: 23 листопада 2009 Поділитись Опубліковано: 23 листопада 2009 Лишь неясно, зачем хим.анкера. 3. Обязательно - любым гидроизолом (кроме ПВХ и линолиума:D:D) А вот стоимость этих колон (2 куб.м.) с арматурой, бетоном и работой вычтите у прораба. Хим.анкера решили потому что бетон залили неделю назад, а температура низкая, начнем вкручивать шпильку в обычный анкер, вдруг бетон треснет, а химия со шпилькой уже намертво застынет. А сколько слоев рубероида и какой ширины полоску вырезать(мауэр. 150х150)? Насчет вычесть с прораба за колонны. А как же без них? Мне кажется, если вывести только шпильки с плиты перекрытия через газоблок то это совсем стремно. Посилання на коментар Поділитися на інших сайтах More sharing options...
Werewolf Опубліковано: 23 листопада 2009 Поділитись Опубліковано: 23 листопада 2009 Хим.анкера решили потому что бетон залили неделю назад, а температура низкая, начнем вкручивать шпильку в обычный анкер, вдруг бетон треснет, а химия со шпилькой уже намертво застынет. А сколько слоев рубероида и какой ширины полоску вырезать(мауэр. 150х150)? Насчет вычесть с прораба за колонны. А как же без них? Мне кажется, если вывести только шпильки с плиты перекрытия через газоблок то это совсем стремно. Изоляцию ~ по 5 см. с каждой стороны, но если будете снаружи закладывать блоком или др, то лучше оставить запас на заворот (170 мм.). На счет "вычесть" - уже не актуально, т.к. данная ахинея заложена по проекту... 1 Посилання на коментар Поділитися на інших сайтах More sharing options...
domnet Опубліковано: 21 листопада 2010 Поділитись Опубліковано: 21 листопада 2010 Для подкладки под мауэрлат подойдёт любой рубероид, включая "совковый", состоящий из картона, пропитанного битумом. Рубероид всегда кладётся в 2 слоя. Прочность кирпичной кладки с кладочной сеткой в каждом ряду достаточная, не ниже марки кирпича. Как правило, не ниже М100 на сжатие. Масса домов стоит десятки лет без армопоясов, с кирпичной кладкой под мауэрлатом. В Киеве полно дореволюционных домов. Сто лет уже простояли без армопоясов. Посилання на коментар Поділитися на інших сайтах More sharing options...
domnet Опубліковано: 21 листопада 2010 Поділитись Опубліковано: 21 листопада 2010 Как по мне, то дюбели менее надёжные, чем шпильки, заложенные в кирпичную кладку, или в армопояс. www.stroimdom.com.ua/forum/showthread.php?t=48681 По крайней мере, в шахте кровлю горной выработки крепят двумя видами анкеров. Первый вид - расклинивающиеся в пробуренном шпуре - аналог распорных дюбелей. Второй вид - в пробуренный шпур (отверстие) сначала закачивается цементно-песчаный расвор, а затем забивается сам анкер. То есть анкер замоноличивается в шпуре. Анкера второго вида намного надёжней. А вот анкера с расклиниванием выпадали часто. Посилання на коментар Поділитися на інших сайтах More sharing options...
Leka Опубліковано: 30 березня 2011 Поділитись Опубліковано: 30 березня 2011 У меня такой вопрос. Стены с газоблока,заливаем армопояс,закладываем шпильки в него,потом укладываем балки перекрытия,выводим еще два ряда блоков (что бы крыша не смотрелась как на уши натянутая кепка),потом мауэрлат.И вот тут момент.. мауэрлат должен лежать на армопоясе (помним,что газоблок может потрескаться),получется второй армопояс надо делать,или я что-то неправильно понимаю? Посилання на коментар Поділитися на інших сайтах More sharing options...
Крышник Опубліковано: 30 березня 2011 Поділитись Опубліковано: 30 березня 2011 У меня такой вопрос. Стены с газоблока,заливаем армопояс,закладываем шпильки в него,потом укладываем балки перекрытия,выводим еще два ряда блоков (что бы крыша не смотрелась как на уши натянутая кепка),потом мауэрлат.И вот тут момент.. мауэрлат должен лежать на армопоясе (помним,что газоблок может потрескаться),получется второй армопояс надо делать,или я что-то неправильно понимаю? Правильно понимаете,только зачем шпильки на нижнем армпоясе?? Балки перекрытия смолите(вариант отработка или супервариант,олифа на горячую два раза),заворачиваете в "рубероид" два раза,и вкладываете в нишу в ГБ над армпоясом,оставляя по бокам и сверху по 1-2 см простора,шо б "дышало",всё по нормам.А сверху над рядами ГБ опять армпояс и шпильки,можно анкерами прикрутить мауэр. П.С.Не забываем шпильки или анкера крутим через метр,не реже. Посилання на коментар Поділитися на інших сайтах More sharing options...
Leka Опубліковано: 30 березня 2011 Поділитись Опубліковано: 30 березня 2011 Крышник,спасибо Про шпильки ,это если не делать второго армопояса. Если делаем их два,то соответственно вставляем во второй,это понятно. Получается у меня через два ряда будет опять армопояс А вот на фотографиях InSAn не увидела второго армопояса вот и задалась вопросом. Нуна или не нуна photo.proext.com/InSAn/12/?view=237 photo.proext.com/InSAn/12/?view=247 Посилання на коментар Поділитися на інших сайтах More sharing options...
Tarac_ Опубліковано: 30 березня 2011 Поділитись Опубліковано: 30 березня 2011 Арматурний пояс можна зробити товщиною 100-150мм. Він необхідний лише для рівномірного розподілення навантаження на газоблоки. Шпильки в більшості варіантів потрібні лише для зручності монтажу мауерлату та крокв, на цьому їх роль закінчується. (зараз майже все співтовариство форуму мене начинає дружно матюгати :D ). ..... Так ось, коли дружній гул невдоволонення, щодо моєї заяви трохи вщух, спробую реабелітуватись. Самою простою у виконанні та проектуванні, а для стін з газоблоків єдино можливою, є безрозпірна кроквяна система. А саме коли на мауерлат та стіни передаються лише вертикальні зусилля, а всі інші виключаються конструктивними методами. (коньковий вузол жорсткий, а опирання на мауерлат виконується шарнірно). Виходячи з цього, говорячи простою мовою, маурлат просто лежить на стіні, а кроква лежить на маурлати і це все нікуди не совається. Те незначне горизонтальне зусилля, котре зявляється внаслідок прогину крокв, спокійно сприймається скобами (кутиком) і гарно покладеною цеглинкою за мауерлатом з зовнішньої сторони. Але в нас ще є вітер, котрий намагається відірвати наш дах та покласти біля будівлі . Частково цьому можуть запобігти тіж скоби(кутики) та шпильки. Але тут є один нехороший мамент, наведенні вище елементи кріплення нездатні забезпечити "жорсткість" конструкції ( щільне прилягання крокв до мауерлату). Крокву необхідно притянути до мауерлата, а мауерлат до стіни. З цією задачею успішно справляється скрутка з проволки. Дешево практично та надійно. Ще раз повторюю це не розповсюджується на всі покрівлі, лише на ті в яких влаштована безрозпірна кроквяна система, та боковий тиск вітру не передається на мауерлат а гаситься в системі крокв. Всі невдоволені відгуки сприймаються за критику і можливо в подальшому будуть засвоєні як урок Вибачаюсь за ліричний виступ. Для Leka. Я зробив би так: 1. Монолітний пояс зробив би товщиною 150мм 2. Поклав мауерлат ( під нього рубероїд). шпильки по бажанню виконавців робіт 3. Влаштував крокви, прибив їх до мауерлата та притянув скруткою до балок перекриття. Правильно зробив вузли системи. 4. Обмурував мауерлат з зовнішньої сторони одним рядом цегли на цементно-піщаному розчині. Щось таке. 1 Посилання на коментар Поділитися на інших сайтах More sharing options...
s-k-y-w-a-l-k-e-r Опубліковано: 30 березня 2011 Поділитись Опубліковано: 30 березня 2011 (змінено) Тарас прав. Как будто мои мысли озвучил. Прежде чем советовать человеку параметры армопояса никто даже не спросил какие усилия будут передаваться от стропильной системы на мауэрлат/армопояс. Если только вертикально - горизонтальные, то это одно. Если добавляется усилие от сдвига крыши ветром - это второе, а если стропила еще и распирают стены - то это совсем третье. И размеры армопояса в первом и третьем вариантах будут отличаться в разы. Цитата: 1. Не обязательно - поясом у вас служит межэтажное перекрытие (монолитная плита) Монолитная плита - это хорошо, но как нагрузка с крыши передается на нее? Правильно - через положенную на эту самую монолитную плиту кладку из газо/пенобетона/ракушняка. Как эта кладка воспринимает распирающие нагрузки? Никак! Она просто обязана треснуть. Как кладка работает на сдвиг в плоскости кладки? Гаразда лучше чем на распор. Армопояс по верхнему ряду кладки воспринимет и перераспределяет усилия между четырьмя наружными стенами таким образом, что распирающая нагрузка на стены 1 и 3 передается через армопояс на стены 2 и 4, где она (нагрузка) уже работает на сдвиг. Для ТС. Те ЖБ колонны, которые Вам сделали конечно лучше, чем простая кладка, но я бы все равно отлил армопояс. Потом исправлять будет дороже в РАЗЫ. Змінено 30 березня 2011 користувачем s-k-y-w-a-l-k-e-r Посилання на коментар Поділитися на інших сайтах More sharing options...
Крышник Опубліковано: 31 березня 2011 Поділитись Опубліковано: 31 березня 2011 Крышник,спасибо Про шпильки ,это если не делать второго армопояса. Если делаем их два,то соответственно вставляем во второй,это понятно. Получается у меня через два ряда будет опять армопояс А вот на фотографиях InSAn не увидела второго армопояса вот и задалась вопросом. Нуна или не нуна Нужно обязательно,у Инсана через два месяца,после укладки МЧ,треснуло пару блоков,и мы,как спасатели,сделали ряд работ,перераспредилив нагрузки,сняли их со стены,и теперь уже два год нет трещин и пр. Также не забываем,что мауэр должен начаться отступив мин 15-18 см от края наружной стены. 1 Посилання на коментар Поділитися на інших сайтах More sharing options...
GOSHA81 Опубліковано: 6 квітня 2011 Поділитись Опубліковано: 6 квітня 2011 1. в поясе у Вас будет только снизу арматура? Если да то плохо. Если я правильно понял это замечание, то имеется в виду необходимость пространственного арматурного каркаса, причем нижний ряд арматуры действительно не должен лежать на стене.Возникает вопрос: нужно ли каркас армопояса как-то прикреплять к стене(какими-либо вертикальными элементами) или будет достаточно связующих сил раствора на границе " армопояс - стена " ? Посилання на коментар Поділитися на інших сайтах More sharing options...
VillaDeLux (ex Акро) Опубліковано: 7 квітня 2011 Поділитись Опубліковано: 7 квітня 2011 нужно ли каркас армопояса как-то прикреплять к стене[/b](какими-либо вертикальными элементами) или будет достаточно связующих сил раствора на границе " армопояс - стена " ? Вопрос не ко мне а в Общестроительный раздел Посилання на коментар Поділитися на інших сайтах More sharing options...
Tarac_ Опубліковано: 7 квітня 2011 Поділитись Опубліковано: 7 квітня 2011 Если я правильно понял это замечание, то имеется в виду необходимость пространственного арматурного каркаса, причем нижний ряд арматуры действительно не должен лежать на стене.Возникает вопрос: нужно ли каркас армопояса как-то прикреплять к стене(какими-либо вертикальными элементами) или будет достаточно связующих сил раствора на границе " армопояс - стена " ? В данному випадку пояс влаштовується лише для рівномірної передачі зусилля на всю площину стіни. Анкерувти його з стіною немає сенсу. В з/б монолітних поясах опертих на стіни краще робити верхню та нижню арматуру однакову. Для арматури повинен бути захисний шар бетону. Посилання на коментар Поділитися на інших сайтах More sharing options...
alkul Опубліковано: 7 квітня 2011 Поділитись Опубліковано: 7 квітня 2011 Так ось, коли дружній гул невдоволонення, щодо моєї заяви трохи вщух, спробую реабелітуватись. Самою простою у виконанні та проектуванні, а для стін з газоблоків єдино можливою, є безрозпірна кроквяна система. А саме коли на мауерлат та стіни передаються лише вертикальні зусилля, а всі інші виключаються конструктивними методами. (коньковий вузол жорсткий, а опирання на мауерлат виконується шарнірно). Виходячи з цього, говорячи простою мовою, маурлат просто лежить на стіні, а кроква лежить на маурлати і це все нікуди не совається. Именно так запроектировал архитектор, который делал мне проект. Маурлаты укладываются непосредственно на стену из газобетона, основной несущий элемент - коньковая балка, изготовленная из двух сваренных швеллеров. Балка лежит на несущих кирпичных столбах. Крышник раскритиковал эту схему, чем ввел меня в замешательство, все время думаю о конструкции крыши, хотя до нее еще далеко Посилання на коментар Поділитися на інших сайтах More sharing options...
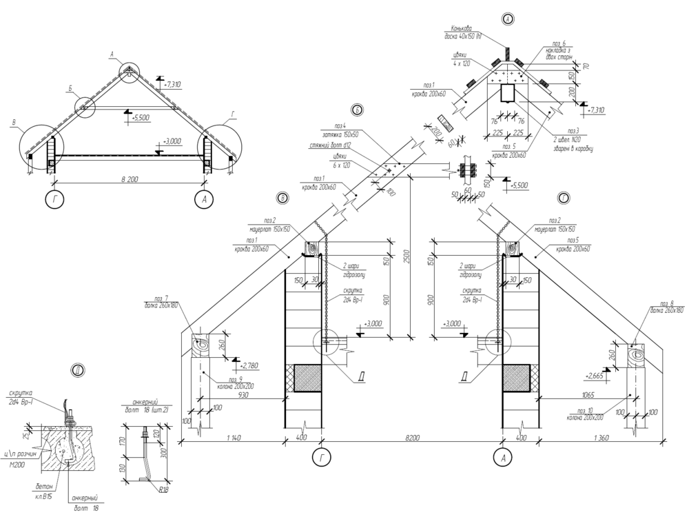
VillaDeLux (ex Акро) Опубліковано: 7 квітня 2011 Поділитись Опубліковано: 7 квітня 2011 Именно так запроектировал архитектор, который делал мне проект. !!!Маурлаты укладываются непосредственно на стену из газобетона, !!! основной несущий элемент - коньковая балка, изготовленная из двух сваренных швеллеров. Балка лежит на несущих кирпичных столбах. Крышник раскритиковал эту схему, чем ввел меня в замешательство, все время думаю о конструкции крыши, хотя до нее еще далеко Раскритиковал и правильно сделал. Вам бы понравилось если бы (допутим) окулист лечил зубы или стоматолог лечил глаза? Наверняка нет. А почему Вам архитектор выполняет работу которую должен выполнять конструктор? У вас, стенка мансарды должна иметь вертикальные колонны (с определённым шагом) которые завязаны с поясом. Тогда конструкция будет жить. нагляднее тут П.С.: архитектора - в чёрный список! Посилання на коментар Поділитися на інших сайтах More sharing options...
alkul Опубліковано: 7 квітня 2011 Поділитись Опубліковано: 7 квітня 2011 А почему Вам архитектор выполняет работу которую должен выполнять конструктор? У вас, стенка мансарды должна иметь вертикальные колонны (с определённым шагом) которые завязаны с поясом. Тогда конструкция будет жить. нагляднее тут П.С.: архитектора - в чёрный список! Ну архитектор - это я так выразился, делала компания, участвовали и архитектор и конструктор. По поводу стенки мансарды - не совсем понял где колоны должны быть. Дополнительные колоны под несущей балкой или под мауэрлатами? Посилання на коментар Поділитися на інших сайтах More sharing options...
Tarac_ Опубліковано: 7 квітня 2011 Поділитись Опубліковано: 7 квітня 2011 А що кришнику не сподобалось? Я б в цю схему добавив монлітний пояс під мауерла ( без з/б стовпчиків), і в коньковому вузлі ще накладки під прогоном. Посилання на коментар Поділитися на інших сайтах More sharing options...
s-k-y-w-a-l-k-e-r Опубліковано: 7 квітня 2011 Поділитись Опубліковано: 7 квітня 2011 Раскритиковал и правильно сделал. П.С.: архитектора - в чёрный список! +1 Помимо того, что уже сказали у меня вопрос по крайним балкам (см. рисунок). Куда они опираются? Дело в том, что если по каким-то причинам (или конструктор ошибется, или строители схалтурят) из-за сил пучения грунта эти балки поднимет, то они снимут всю крышу. Посилання на коментар Поділитися на інших сайтах More sharing options...
Tarac_ Опубліковано: 7 квітня 2011 Поділитись Опубліковано: 7 квітня 2011 +1 Помимо того, что уже сказали у меня вопрос по крайним балкам (см. рисунок). Куда они опираются? Дело в том, что если по каким-то причинам (или конструктор ошибется, или строители схалтурят) из-за сил пучения грунта эти балки поднимет, то они снимут всю крышу. якщо думати в такому напрямку, то може і вся будівля розвалитись ;) Посилання на коментар Поділитися на інших сайтах More sharing options...
VillaDeLux (ex Акро) Опубліковано: 7 квітня 2011 Поділитись Опубліковано: 7 квітня 2011 делала компания, участвовали и архитектор и конструктор. Тогда компанию в Чёрный список. Если не каждом листе проекта стоят под всеми фамилиями подписи и ПЕЧАТЬ компании то тогда это компания-камикадзе. Если только подписи или вообще всё пусто а только чертежи то вы имеете дело с так называемой "халтуркой" или "шабашкой". Результат имеете соответсвующий. Столбики должны подниматься от пояса первого этажа и соединяться с поясом мансардного этажа. 1 Посилання на коментар Поділитися на інших сайтах More sharing options...
Рекомендовані повідомлення
Створіть акаунт або увійдіть у нього для коментування
Ви маєте бути користувачем, щоб залишити коментар
Створити акаунт
Зареєструйтеся для отримання акаунта. Це просто!
Зареєструвати акаунтУвійти
Вже зареєстровані? Увійдіть тут.
Увійти зараз