vakylisa Опубліковано: 8 липня 2019 Поділитись Опубліковано: 8 липня 2019 Есть старый дом, ну очень старый. Есть задумка на его месте поставить новый с мансардой, но проблема в том что дом всего 6 на 10. Задача на первом этаже кухня большая в раене 20-25 квадратов, сан-узел, спальня не большая, маленькая прихожая и если выйдет тех-помещение. На мансарде две спальни. Кто подскажет проект? За ранее благодарю. Посилання на коментар Поділитися на інших сайтах More sharing options...
ПГС-Проект Опубліковано: 9 липня 2019 Поділитись Опубліковано: 9 липня 2019 Рассмотрите этот вариант. Ширина его 7,0м(делался тоже под узкий участок), можно уменьшите если нужно конечно! 1 Посилання на коментар Поділитися на інших сайтах More sharing options...
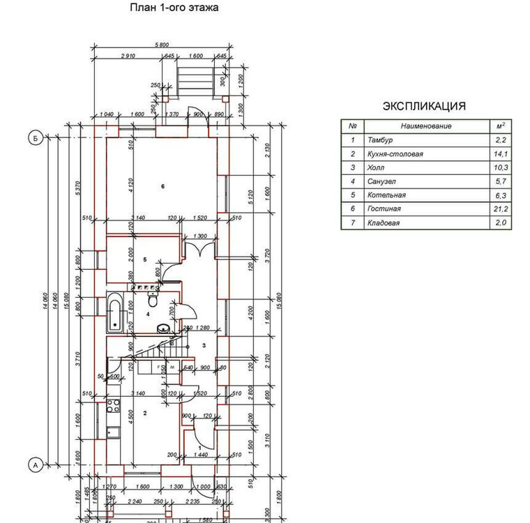
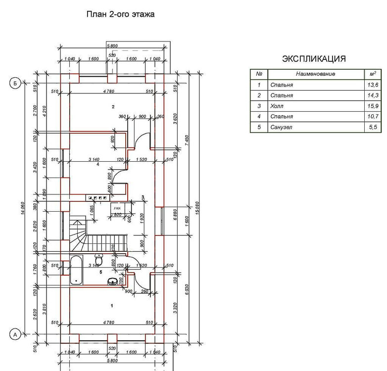
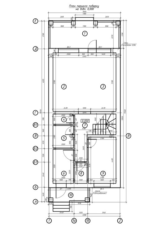
vadimv Опубліковано: 9 липня 2019 Поділитись Опубліковано: 9 липня 2019 дом всего 6 на 10. Задача на первом этаже кухня большая в раене 20-25 квадратов, сан-узел, спальня не большая, маленькая прихожая и если выйдет тех-помещение. На мансарде две спальни.Четко в ваши требования: 1 Посилання на коментар Поділитися на інших сайтах More sharing options...
Хохол Опубліковано: 9 липня 2019 Поділитись Опубліковано: 9 липня 2019 Рассмотрите этот вариант. А есть подробности, описание, размеры? Посилання на коментар Поділитися на інших сайтах More sharing options...
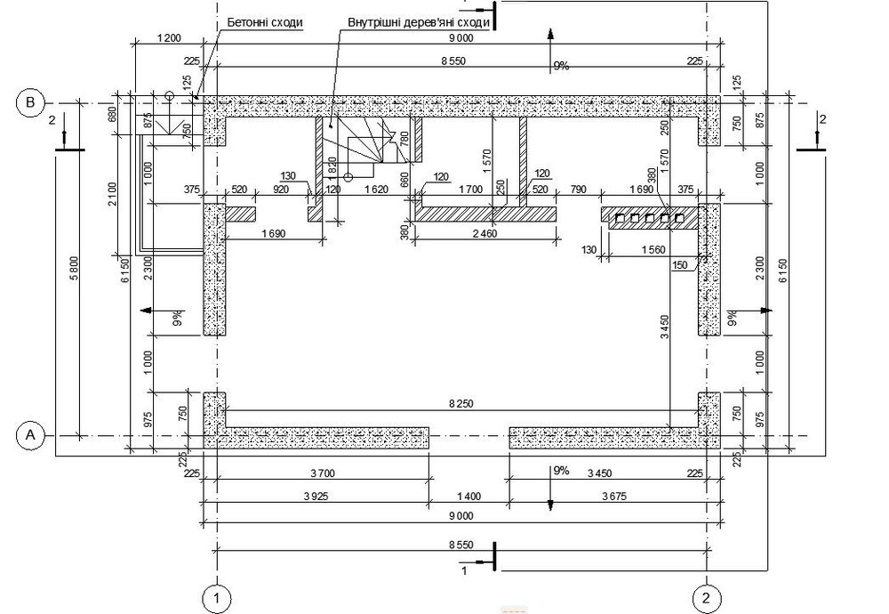
ПГС-Проект Опубліковано: 10 липня 2019 Поділитись Опубліковано: 10 липня 2019 А есть подробности, описание, размеры? Проект имеется в нескольких исполнениях. Стены газобетон 400мм, теплоизоляция- базальтовая вата, мягкая кровля, перекрытие по деревянным балкам. Размеры и материалы из чего строить корректируем под требования Заказчика(если конечно движется в правильном направлении)) и размеры участка с его особенностями, сторонам света, соседям и т.д. Посилання на коментар Поділитися на інших сайтах More sharing options...
Хохол Опубліковано: 10 липня 2019 Поділитись Опубліковано: 10 липня 2019 Проект имеется в нескольких исполнениях. То, что Вы нарисуете я не сомневаюсь. На картинках нет габаритов помещений ( то, о чем я спрашивал) Посилання на коментар Поділитися на інших сайтах More sharing options...
ПГС-Проект Опубліковано: 10 липня 2019 Поділитись Опубліковано: 10 липня 2019 1 Посилання на коментар Поділитися на інших сайтах More sharing options...
vakylisa Опубліковано: 10 липня 2019 Автор Поділитись Опубліковано: 10 липня 2019 Стены газобетон 400мм Даже не знаю. Я вот просматривал немецкие стандарты и там несущая стена из газоблока 17,5 см. То есть наши 20 см. и 10 утепления вполне достаточно. А однослойная стена это конечно хорошо, но факт того что в таких домах каждый сантиметр на счету. Добавлено через 1 минуту Четко в ваши требования: Благодарю. Чуток переделаю и будет полный фарш. 1 Посилання на коментар Поділитися на інших сайтах More sharing options...
Gonchik Опубліковано: 16 липня 2019 Поділитись Опубліковано: 16 липня 2019 Четко в ваши требования: Хорошая планировка. Считаю, что вход в узкий дом (6-8 м) по длинной его стороне оптимален, т.к. в противном случае не избежать узких коридоров. -скажите, пожалуйста, у Вас нет такого же, но без крыльев?(с) В один этаж и с двумя спальнями? 1 Посилання на коментар Поділитися на інших сайтах More sharing options...
vadimv Опубліковано: 16 липня 2019 Поділитись Опубліковано: 16 липня 2019 -скажите, пожалуйста, у Вас нет такого же, но без крыльев?(с) В один этаж и с двумя спальнями?Нет, есть только со входом с торца, и там ширина 6м внутри и порядка 7м снаружи. Посилання на коментар Поділитися на інших сайтах More sharing options...
irina1969 Опубліковано: 16 липня 2019 Поділитись Опубліковано: 16 липня 2019 фотка не совсем по теме, но может пригодится ЛД при узком участке 2 Посилання на коментар Поділитися на інших сайтах More sharing options...
Юдин Денис Опубліковано: 19 липня 2019 Поділитись Опубліковано: 19 липня 2019 Если Вы хотите на старом фундаменте построить новый дом, то типовой проект вам наврядли подойдёт, всегда чтото будет не совпадать, или внутри или снаружи, тут лучше делать индивидуальный проект, можно взять за основу типовой. Но для начала нужно убедится в прочности и несущей способности фундамента. Но по хорошему всегда лучше построить новый дом, обратившись к грамотному архитектору... В прицепе привожу примеры проектов выполненных на существующем фундаменте Посилання на коментар Поділитися на інших сайтах More sharing options...
Хохол Опубліковано: 19 липня 2019 Поділитись Опубліковано: 19 липня 2019 Но по хорошему всегда лучше построить новый дом, обратившись к грамотному архитектору... а "грамотный архитектор" на какой из картинок показал узкий дом? Я потихоньку собираю информацию, не могу определиться с планировкой. Ширина участка 12.5 м. соотв. шире 6 метров дом воткнуть не получится. Все, что вижу- такой бред дизайнеров и фантазеров, что даже смотреть больно. Посилання на коментар Поділитися на інших сайтах More sharing options...
Юдин Денис Опубліковано: 19 липня 2019 Поділитись Опубліковано: 19 липня 2019 6 метров это в лучшем случае, и то если стены выходящие на соседние участки будут без окон!, а так вообще 4м, если соблюдать противопожарные нормы) узковато конечно, но можно что-то придумать) Посилання на коментар Поділитися на інших сайтах More sharing options...
Хохол Опубліковано: 19 липня 2019 Поділитись Опубліковано: 19 липня 2019 если стены выходящие на соседние участки будут без окон! мотивируйте... Посилання на коментар Поділитися на інших сайтах More sharing options...
Юдин Денис Опубліковано: 20 липня 2019 Поділитись Опубліковано: 20 липня 2019 нормы противопожарных разрывов - 8м между домами 3 категории огнестойкости. по новым правилам вы должны отступить от соседской границы 4м. в случае если стена не имеет окон (противопожарная стена) можно отступить 3м от границы, т.к. отсутствие окон в негорючей стене сокращает границу распространения огня 1 Посилання на коментар Поділитися на інших сайтах More sharing options...
vadimv Опубліковано: 20 липня 2019 Поділитись Опубліковано: 20 липня 2019 вы должны отступитьЭто не касается случаев реконструкции старого дома.Есть старый дом, ну очень старый. Есть задумка на его месте поставить новый с мансардой Посилання на коментар Поділитися на інших сайтах More sharing options...
bodidron Опубліковано: 23 липня 2019 Поділитись Опубліковано: 23 липня 2019 поделюсь своей планировкой, вдруг натолкнет на мысли Посилання на коментар Поділитися на інших сайтах More sharing options...
Виталий_Буча Опубліковано: 23 липня 2019 Поділитись Опубліковано: 23 липня 2019 вот такой вариант есть Посилання на коментар Поділитися на інших сайтах More sharing options...
Рекомендовані повідомлення
Створіть акаунт або увійдіть у нього для коментування
Ви маєте бути користувачем, щоб залишити коментар
Створити акаунт
Зареєструйтеся для отримання акаунта. Це просто!
Зареєструвати акаунтУвійти
Вже зареєстровані? Увійдіть тут.
Увійти зараз