semengv Опубліковано: 14 серпня 2020 Поділитись Опубліковано: 14 серпня 2020 Готовлюсь заливать армопояс. Под плиты. Что имеем: стена газоблок В2,5 Д400 500 мм, один этаж, несущая в 1,5 кирпича ровно посередине длинной стороны. По ее армированию все понятно. Имеются сомнения по армированию наружных стен. Армопояс совмещен с перемычками окон.На длинные стороны будут опираться плиты и там окна и проем выхода на террасу. Как правильно армировать участок оконной перемычки и армопояса над ней? Как отдельные элементы? Посилання на коментар Поділитися на інших сайтах More sharing options...
semengv Опубліковано: 16 серпня 2020 Автор Поділитись Опубліковано: 16 серпня 2020 Добавлю информации. Самый большой оконный проем 2100. Ширина армопояса при утеплении 50 мм получается 350. Посилання на коментар Поділитися на інших сайтах More sharing options...
shneider_vova Опубліковано: 16 серпня 2020 Поділитись Опубліковано: 16 серпня 2020 Вы вроде уже давно на форуме. бетонные элементы - расчетные, зависят от нагрузок. у вас НЕТ никакой информации по нагрузкам. можно собрать только косвенную - нагрузка на элемент будет от собственного веса плиты, полезной нагрузки на холодном чердаке и нагрузки от кровли. Ни формы кровли, ни раскладки плит нет. Если бетонировать перемычку и армопояс будете одновременно, то каркас общий, на общую высоту. Такие элементы часто применяет Леонид Маестро, можете у него в теме подсмотреть, хотя я лично считаю их избыточным. Армирование в 3-4 нитки 12 арматуры сверху и снизу каркаса - мне кажется, будет достаточным для одноэтажника. Но повторюсь - это расчетная величина. посчитать несложно. соберете нагрузки, дальше онлайн калькуляторов с десяток 1 Посилання на коментар Поділитися на інших сайтах More sharing options...
Dendnepr Опубліковано: 16 серпня 2020 Поділитись Опубліковано: 16 серпня 2020 Для понимания, как считать армироване посмотрите видео. С 5,20 1 Посилання на коментар Поділитися на інших сайтах More sharing options...
semengv Опубліковано: 16 серпня 2020 Автор Поділитись Опубліковано: 16 серпня 2020 Армирование в 3-4 нитки 12 арматуры Это только над проемами+опирание? Я планировала 5 ниток 12. В каждом элементе - т.е. перемычка и сверху нее усиленный армопояс. Посилання на коментар Поділитися на інших сайтах More sharing options...
shneider_vova Опубліковано: 16 серпня 2020 Поділитись Опубліковано: 16 серпня 2020 Это только над проемами+опирание? Я планировала 5 ниток 12. В каждом элементе - т.е. перемычка и сверху нее усиленный армопояс. смотрите. перемычка, над которой будет армопояс - она как бы ненужна. понятно, что нужно выдержать отметку верха оконного проема. поэтому в том месте делаете просто армокаркас на всю высоту. 1 Посилання на коментар Поділитися на інших сайтах More sharing options...
semengv Опубліковано: 17 серпня 2020 Автор Поділитись Опубліковано: 17 серпня 2020 Набросала схемку армирования. Понимаю, что избыточно, но ... Арматура 12. Хомуты в узле опоры через 100 мм, далее через 200. В местах без проемов реже - 350.? По нагрузкам все стандартно. Холодный чердак, хлам + плиты перекрытия. Крыша вальмовая битумка. Посилання на коментар Поділитися на інших сайтах More sharing options...
razzil Опубліковано: 17 серпня 2020 Поділитись Опубліковано: 17 серпня 2020 шото мне армирование этой вашей большой арки не нравится, получается в растянутой зоне, снизу, арматуры нет вообще... 1 Посилання на коментар Поділитися на інших сайтах More sharing options...
razzil Опубліковано: 17 серпня 2020 Поділитись Опубліковано: 17 серпня 2020 Я бы горизонтальное армирование расположил по такой схеме(синии линии): А вертикальное на всю высоту балки. И там где армопояс не является балкой - 10 ниток 12й арматуры сверхизбыточно. Обычно 4 делают, 6 - с головой. Посилання на коментар Поділитися на інших сайтах More sharing options...
wertexan Опубліковано: 17 серпня 2020 Поділитись Опубліковано: 17 серпня 2020 Надо планы. Посилання на коментар Поділитися на інших сайтах More sharing options...
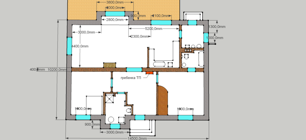
semengv Опубліковано: 17 серпня 2020 Автор Поділитись Опубліковано: 17 серпня 2020 (змінено) Планы дома. Высота 3м с армопоясом. Змінено 17 серпня 2020 користувачем semengv Посилання на коментар Поділитися на інших сайтах More sharing options...
semengv Опубліковано: 17 серпня 2020 Автор Поділитись Опубліковано: 17 серпня 2020 И там где армопояс не является балкой - 10 ниток 12й арматуры сверхизбыточно. Так я так и наваяла. Красный - это армопояс общий 200х350 по всему периметру дома и несущей стене. Там 5 снизу и 5 сверху в районе балки - 6 метров - по 3 м от центра балки.. Снизу - где сиреневая балка верх - прямая арматура (но думаю над количеством, т.к. там она работать особо не будет), а внизу арматура по дуге. Сколько тоже под вопросом, т.к. в положении дуги , залитой бетоном, арматура наоборот будет лучше работать. Как-то так. Но нужно веское слово спецов. Я бы с этой балкой не заморачивалась, но есть пара моментов. После укладки плит и их обвязки нужен еще ряд блоков(чтобы свесы крыши не закрывали окна). Но он не будет ложиться на эркеры. Только по прямой. Плита получается защемлена. Затем также армопояс под мауэрлат. И уже потом крыша. Над эркерами она не будет ломаться - будет один скат за счет перепада в 40 см. Крыша вальмовая, с опорой на несущую стену. Посилання на коментар Поділитися на інших сайтах More sharing options...
tansss Опубліковано: 17 серпня 2020 Поділитись Опубліковано: 17 серпня 2020 Планы дома. Высота 3м с армопоясом. А теперь наложите на этот план - план пояса Что то мне подсказывает что нет стыковочки... план дома - план пояса и раскладка ПК. О подрезке я вам уже говорил, ну тут дело хозяйское. Как сделать пояса под ПК и кровлю я вам уже пару раз рисовал. Для однослойной стены вы оптимальней не придумаете. Колхоз наколхозить - эт дааа! По армированию... жёсткость и прочность ригеля можно получить как сечением бетона с мин армированием так и мин бетона но жирное сечение стали... Ещё раз - нарисуйте пояс/перемычки и разложите на них Ваши ПК. Сами всё поймёте! Посилання на коментар Поділитися на інших сайтах More sharing options...
Dendnepr Опубліковано: 17 серпня 2020 Поділитись Опубліковано: 17 серпня 2020 Это Вам конструктор насчитал 5 ниток внизу и 5 сверху??? Мне на балку с тремя пролетами по 1,9 метров заложила 3 внизу и 3 вверху. 12 арматуры. С запасом. Правда я кинул 14 арматуру На эту балку с двух сторон плиты опираются. И центральная несущая стена второго этажа 2 Посилання на коментар Поділитися на інших сайтах More sharing options...
semengv Опубліковано: 17 серпня 2020 Автор Поділитись Опубліковано: 17 серпня 2020 Это Вам конструктор насчитал 5 ниток внизу и 5 сверху??? НЕт. Этоя сама с переляку. Потому и тему создала - понимаю, что избыточно. Добавлено через 9 минут Как сделать пояса под ПК и кровлю я вам уже пару раз рисовал. Для однослойной стены вы оптимальней не придумаете. Колхоз наколхозить - эт дааа! Так вроде и сделано. Оконные проемы с перемычками сделаны как у вас почти, только без нижней полки. Вчера Вас только вспоминала. Вставляли теплые дюбеля в оконные перемычки - на одной появились трещинки по углам. Завтра сфотаю. И хотела спросить гвоздь в теплый дюбель вставляется ДО заливки армопояса полностью или после? Мне нужно еще ряд блоков положить сверху плит! Посилання на коментар Поділитися на інших сайтах More sharing options...
tansss Опубліковано: 17 серпня 2020 Поділитись Опубліковано: 17 серпня 2020 Не получается так. Что именно не получается!? И ещё... напомните плз какова сакральная идея замкнутого прямоугольника пояса в эркерах? ПК таки имеют опору на ригель? Или таки на наружную стену? Посилання на коментар Поділитися на інших сайтах More sharing options...
semengv Опубліковано: 17 серпня 2020 Автор Поділитись Опубліковано: 17 серпня 2020 Я уже вроде писала. Хочу свесы 700 мм и открытые кобылки. Для того, чтобы они не закрывали окна нужно по плитам положить ряд блоков, при этом на эркерах блок не ложим. Потом еще армопояс под мауэр - все это даст поднять крышу на 40 см+15. И крыша накрывает одной плоскостью и дом и эркер без излома. Т.е. Над эркером скат длинее и мауэрлат ложится на обливочный пояс плит. Посилання на коментар Поділитися на інших сайтах More sharing options...
tansss Опубліковано: 17 серпня 2020 Поділитись Опубліковано: 17 серпня 2020 Зачем ригель над эркером? ПК на три линии поясов хотите опирать? Посилання на коментар Поділитися на інших сайтах More sharing options...
semengv Опубліковано: 17 серпня 2020 Автор Поділитись Опубліковано: 17 серпня 2020 И ещё... напомните плз какова сакральная идея замкнутого прямоугольника пояса в эркерах? ПК таки имеют опору на ригель? Или таки на наружную стену? Вот как раз этот узел я и не знаю как правильно сделать. А разве не нужно поясом все замыкать? Если эту балку-ригель не делать, то как опереть ряд блоков на плитах? Я понимаю, что вес не очень большой, но так вроде прочнее. Посилання на коментар Поділитися на інших сайтах More sharing options...
tansss Опубліковано: 17 серпня 2020 Поділитись Опубліковано: 17 серпня 2020 Если эту балку-ригель не делать, то как опереть ряд блоков на плитах? Теперь я понял... что вы не поняли мой эскиз )))))))). Нельзя ПК опирать на три стены! 2 Посилання на коментар Поділитися на інших сайтах More sharing options...
semengv Опубліковано: 17 серпня 2020 Автор Поділитись Опубліковано: 17 серпня 2020 Зачем ригель над эркером? Сверху плит ложу блок, эркеры дальше не растут. Посилання на коментар Поділитися на інших сайтах More sharing options...
semengv Опубліковано: 17 серпня 2020 Автор Поділитись Опубліковано: 17 серпня 2020 Теперь я понял... что вы не поняли мой эскиз )))))))). Нельзя ПК опирать на три стены! Да я только рада, если меньше лить бетона! Эту арку проще с гипсокартона сделать! Но ведь выше будет блок и крыша опираться на этот пролет! С двух сторон так! Посилання на коментар Поділитися на інших сайтах More sharing options...
tansss Опубліковано: 17 серпня 2020 Поділитись Опубліковано: 17 серпня 2020 Сверху плит ложу блок, эркеры дальше не растут. Эт понятно! Ригель то зачем? Посилання на коментар Поділитися на інших сайтах More sharing options...
semengv Опубліковано: 17 серпня 2020 Автор Поділитись Опубліковано: 17 серпня 2020 Ригель то зачем? Ригель - это та дугообразная балка? - Для опирания блоков и крыши. Плиты разве выдержат? Посилання на коментар Поділитися на інших сайтах More sharing options...
tansss Опубліковано: 17 серпня 2020 Поділитись Опубліковано: 17 серпня 2020 Ригель - это та дугообразная балка? - Для опирания блоков и крыши. Плиты разве выдержат? Именно!!!!!!!!!!!! Вы чё? собрались уложить ПК на несущую и ригель и наружную стену эркера????????????? Хотел было написать что мол не парьтесь! Но вижу - дело совсем плохо! 1 Посилання на коментар Поділитися на інших сайтах More sharing options...
Рекомендовані повідомлення
Створіть акаунт або увійдіть у нього для коментування
Ви маєте бути користувачем, щоб залишити коментар
Створити акаунт
Зареєструйтеся для отримання акаунта. Це просто!
Зареєструвати акаунтУвійти
Вже зареєстровані? Увійдіть тут.
Увійти зараз