NAVIN Опубліковано: 12 грудня 2020 Поділитись Опубліковано: 12 грудня 2020 Добрый всем день! Прошу отзывов по "не стандартному" размещению стиральной машины. Есть 3 варианта: на кухне, в душевой под раковиной и самый экзотичный над унитазом в нише Раковины над стиральной машиной мягко говоря не нравятся, в кухне ни когда не стояла, не знаю насколько это удобно, ну.... третий вариант это наверное перебор. Подскажите пожалуйста из опыта использования где у Вас стоит стиралка, насколько удобно или не удобно. Разместить отдельно в санузле к сожалению нет места Посилання на коментар Поділитися на інших сайтах More sharing options...
normal Опубліковано: 12 грудня 2020 Поділитись Опубліковано: 12 грудня 2020 на кухне, в душевой под раковиной и самый экзотичный над унитазом в нише Я ни один вариант представить так и не смог, а ещё и опыт найти... Посилання на коментар Поділитися на інших сайтах More sharing options...
Nic-олаевна Опубліковано: 12 грудня 2020 Поділитись Опубліковано: 12 грудня 2020 Если такой не богатый выбор мест по размещению, тогда выбирайте место, которое будет ближе всего к "сырьевой базе". Т.е. машинка должна стоять там, где будет ближе всего грязное белье, стир.порошок и место сушки. С этой точки зрения, под раковиной (если это ванна) самый оптимальный вариант, хоть вам и не нравится. Сгоняв пару раз с мисками/ведрами в которых белье, на кухню или в туалет, вам идеи такого размещения быстро разонравятся.... 1 Посилання на коментар Поділитися на інших сайтах More sharing options...
lug Опубліковано: 12 грудня 2020 Поділитись Опубліковано: 12 грудня 2020 Массово ставим стиралку на кухне, т.к. в хрущевках другого места ей просто нет! В 50-х разве мог предполагать Хрущев, что у каждого советского человека появится не только 2 костюма, а еще и холодильник, микроволновка, телевизор на кухне, а теперь еще и стиралка Даже и в "брежневских" квартирах - за холодильник подумали, а стиралка никому тогда и в ум зайти не могла.(Так точно, как мы не думаем сейчас о сушке-автомат, без которой американцы не понимают, как сушить белье ) Стирка с машинкой автомат - это совсем другое, чем раньше, когда на генеральную стирку целый день планировался, и постирушками завешивали весь балкон или двор.Теперь хоть каждый день по 1 закладке : закинул тряпки в бак - вынул, повесил. Все равно от машинки к месту сушки приходится тащить миску, хоть из кухни, хоть из ванной. Так что, на такие неудобства никто не жаловался. А вот умывальник над стиралкой - точно неудобный, а пользоваться им приходится всем и каждому по несколько раз в день 4 Посилання на коментар Поділитися на інших сайтах More sharing options...
normal Опубліковано: 12 грудня 2020 Поділитись Опубліковано: 12 грудня 2020 У меня в квартире стиралка стоит в отдельной узкой кладовке, походу то может когда-то был отдельный туалет, а его перенесли в соседний санузел, хз, но работает больше 10 лет норм, не под\над раковинами (душ, унитаз и раковина в одной комнате, стиралка совершенно в другой) 1 Посилання на коментар Поділитися на інших сайтах More sharing options...
lug Опубліковано: 12 грудня 2020 Поділитись Опубліковано: 12 грудня 2020 Кстати, приходилось ставить стиралку в прихожке - у стены, смежной с кухней. Упаковали её в шкаф - и отлично получилось. Лет 10 стоит уже Добавлено через 12 минут Разместить отдельно в санузле к сожалению нет места В нехрущевках с раздельным санузлом обычно можно втиснуть стиралку в ванную. А у вас почему не получается? Дайте размеры и фото - может, щас изыщем место 2 Посилання на коментар Поділитися на інших сайтах More sharing options...
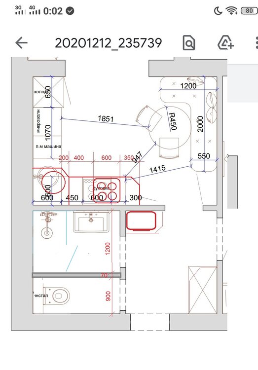
NAVIN Опубліковано: 12 грудня 2020 Автор Поділитись Опубліковано: 12 грудня 2020 1,15 * 1,95м Посилання на коментар Поділитися на інших сайтах More sharing options...
Nic-олаевна Опубліковано: 13 грудня 2020 Поділитись Опубліковано: 13 грудня 2020 В квартире ( хрущевка) мы сносили перегородку между ванной и туалетом именно для того, чтоб стиралка стала в ванной. Если семья не большая, то вполне годный вариант. Посилання на коментар Поділитися на інших сайтах More sharing options...
NAVIN Опубліковано: 13 грудня 2020 Автор Поділитись Опубліковано: 13 грудня 2020 В квартире ( хрущевка) мы сносили перегородку между ванной и туалетом именно для того, чтоб стиралка стала в ванной. Если семья не большая, то вполне годный вариант. Отдельный туалет - принципиально! Он как раз сейчас совместный, отсюда и проблема Посилання на коментар Поділитися на інших сайтах More sharing options...
Nic-олаевна Опубліковано: 13 грудня 2020 Поділитись Опубліковано: 13 грудня 2020 Отдельный туалет - принципиально! Он как раз сейчас совместный, отсюда и проблема А что тогда за перегородка между инсталляцией и душ.кабиной? Я так поняла что туалет отделен. Как раз на месте входной двери в туалет и становится ваша стиралка. От инсталляции не далеко, но это все же лучше чем на кухне Посилання на коментар Поділитися на інших сайтах More sharing options...
Потрошитель Опубліковано: 13 грудня 2020 Поділитись Опубліковано: 13 грудня 2020 Ща делаю ремонты в квартирах. В новострое есть гардероб/хозкомната - тулю туда. В неновострое прячу на кухне. Стиралка обязательно с функцией сушки. Тягать белье, вешать где-то - колхоз и прошлый век. Санузлы расширяю максимально, чтобы поместить и ванну(хотя бы 170*70) и самодельную душевую кабину(скрытые смесители), подвесной унитаз и подвесную раковину - стиралку там прятать негде, будет мешать и 100% не впишется в дизайн. 1 Посилання на коментар Поділитися на інших сайтах More sharing options...
lug Опубліковано: 13 грудня 2020 Поділитись Опубліковано: 13 грудня 2020 Он как раз сейчас совместный Я так понимаю, что переделки только планируются, и чистовой отделки нет. На данный момент дверь открывается в кухню, а за ней пропадает бессмысленно полквадрата площади кухни. Сместите вход в кухню вправо. Это даст возможность поставить стиралку в прихожке. Шкаф для стиралки, и шкаф в противоположном углу можно сделать со срезанным углом. Так вы не теряете полезный объем шкафов. При этом проход между ними остается достаточный, и зрительно смотрится легче, когда нет перед глазами широких боков шкафа. Чем больше вещей вы заскладируете в этом проходном коридоре - тем больше пространства останется для людей в жилых помещениях. А еще - добавит пространство для кух. шкафчиков. Кухня удлинится всего на 200мм, но зато у вас появится возможность сделать для мойки угловой шкаф. Так, как у вас наполовину мойка уходит за угол - это никуда не годится! Неудобно! К мойке должен быть прямой подход. И с угловой мойкой - у вас больше полезной площади столов, а не в дальнем недоступном углу. 1 Посилання на коментар Поділитися на інших сайтах More sharing options...
NAVIN Опубліковано: 13 грудня 2020 Автор Поділитись Опубліковано: 13 грудня 2020 А что тогда за перегородка между инсталляцией и душ.кабиной? Я так поняла что туалет отделен. Как раз на месте входной двери в туалет и становится ваша стиралка. От инсталляции не далеко, но это все же лучше чем на кухне Сейчас голые стены без дверей - новострой, стиралку нарисовали в с/у, но по факту она не влазит. Добавлено через 1 минуту Я так понимаю, что переделки только планируются, и чистовой отделки нет. На данный момент дверь открывается в кухню, а за ней пропадает бессмысленно полквадрата площади кухни. Сместите вход в кухню вправо. Это даст возможность поставить стиралку в прихожке. Шкаф для стиралки, и шкаф в противоположном углу можно сделать со срезанным углом. Так вы не теряете полезный объем шкафов. При этом проход между ними остается достаточный, и зрительно смотрится легче, когда нет перед глазами широких боков шкафа. Чем больше вещей вы заскладируете в этом проходном коридоре - тем больше пространства останется для людей в жилых помещениях. А еще - добавит пространство для кух. шкафчиков. Кухня удлинится всего на 200мм, но зато у вас появится возможность сделать для мойки угловой шкаф. Так, как у вас наполовину мойка уходит за угол - это никуда не годится! Неудобно! К мойке должен быть прямой подход. И с угловой мойкой - у вас больше полезной площади столов, а не в дальнем недоступном углу. Вот перенос двери в кухню не рассматривали, будем думать, спасибо. Угловые шкафы не нравятся, раковина сместится от угла, это пока наброски Посилання на коментар Поділитися на інших сайтах More sharing options...
vadimv Опубліковано: 13 грудня 2020 Поділитись Опубліковано: 13 грудня 2020 где у Вас стоит стиралка, насколько удобно или не удобноНа кухне стоит, вполне себе удобно. 1 Посилання на коментар Поділитися на інших сайтах More sharing options...
NAVIN Опубліковано: 13 грудня 2020 Автор Поділитись Опубліковано: 13 грудня 2020 Ща делаю ремонты в квартирах. В новострое есть гардероб/хозкомната - тулю туда. В неновострое прячу на кухне. Стиралка обязательно с функцией сушки. Тягать белье, вешать где-то - колхоз и прошлый век. Санузлы расширяю максимально, чтобы поместить и ванну(хотя бы 170*70) и самодельную душевую кабину(скрытые смесители), подвесной унитаз и подвесную раковину - стиралку там прятать негде, будет мешать и 100% не впишется в дизайн. Стиралки ставите скрытого монтажа или обычные? Есть отзывы по конкретным стиралкам? Добавлено через 1 минуту На кухне стоит, вполне себе удобно. Обычная или скрытого монтажа? 1 Посилання на коментар Поділитися на інших сайтах More sharing options...
lug Опубліковано: 13 грудня 2020 Поділитись Опубліковано: 13 грудня 2020 Сейчас посмотрела - а не дофига ли вы места оставили под унитаз? Померяла у себя в квартире - ширина туалета всего 750мм от плитки до плитки, длина - 1600. И ничё, за 32 года никому не было тесно. Даже дверь открывается вовнутрь, и никому не мешает. А у вас сколько ширина санузла сейчас, до разделения? 2 Посилання на коментар Поділитися на інших сайтах More sharing options...
NAVIN Опубліковано: 13 грудня 2020 Автор Поділитись Опубліковано: 13 грудня 2020 Сейчас посмотрела - а не дофига ли вы места оставили под унитаз? Померяла у себя в квартире - ширина туалета всего 750мм от плитки до плитки, длина - 1600. И ничё, за 32 года никому не было тесно. Даже дверь открывается вовнутрь, и никому не мешает. А у вас сколько ширина санузла сейчас, до разделения? На сейчас это "голый квадрат" 2170*1950. 2170 это стена с инсталяцией. Запланировал ширину туалета 900мм до плитки, думаете много? Посилання на коментар Поділитися на інших сайтах More sharing options...
vadimv Опубліковано: 13 грудня 2020 Поділитись Опубліковано: 13 грудня 2020 Обычная или скрытого монтажа?Скрытого, с навесной дверкой от фасада кухни, под столешницей. 1 Посилання на коментар Поділитися на інших сайтах More sharing options...
sly Опубліковано: 13 грудня 2020 Поділитись Опубліковано: 13 грудня 2020 под раковиной - будете ногами биться. Над унитазом - головой. Остается кухня. У меня была стиралка на кухне когда-то. Причем ставил в новострое, так как всю ванную комнату у меня заняла мега ВАННА. Никаких неудобств не испытывал. И правильно выше написали - если будет стиралка с сушкой - это вообще кайф. У нас с сушкой сейчас - не нарадуемся. Отдельно думал когда-то агрегат для сушки покупать, а теперь знаю, что это глупо. Закинул джинсы, поставил быстрый цикл стирки плюс сушку на час - через полтора часа достал абсолютно сухие штаны. Либо с вечера напаковали детских вещей, утром достали сухое. 1 Посилання на коментар Поділитися на інших сайтах More sharing options...
irina1969 Опубліковано: 13 грудня 2020 Поділитись Опубліковано: 13 грудня 2020 В квартире ( хрущевка) мы сносили перегородку между ванной и туалетом именно для того, чтоб стиралка стала в ванной. Если семья не большая, то вполне годный вариант. сделали точно так же и стала большая стиралка...сейчас в доме, стоит в кладовке, а напротив кладовки ванная с источником грязных вещей...ИМХО, но на кухне я ее не представляюеда и порошки, моющие Посилання на коментар Поділитися на інших сайтах More sharing options...
Nic-олаевна Опубліковано: 13 грудня 2020 Поділитись Опубліковано: 13 грудня 2020 сделали точно так же и стала большая стиралка...сейчас в доме, стоит в кладовке, а напротив кладовки ванная с источником грязных вещей...ИМХО, но на кухне я ее не представляюеда и порошки, моющие Ирина, я с вами согласна на 100%. И не просто не представляю стиралку на кухне, а немного даже не понимаю этого действа. Это то же самое, что поставить холодильник в коридоре или газплиту в спальне. ТС, не обижайтесь. Вы спросили, вам советуют каждый выходя из своего опыта. Ни одна стиралка, виденная мною на кухнях, в том числе и скрытая, не украшала кухню и не приносила хозяевам должного комфорта. Вы сейчас шикарно разместите унитаз, на котором будете проводить несколтко минут в день, зато всю жизнь у вас на кухне будет не хватать места под кухонную утварь, именно из-за стиралки. А утвари кухонной со временем насобирается не мало. Плюс ко всему, захотите вы с семьей пообщаться, кто-то в гости зашел на кофе, а тут стиралка торохтит. Тем более у вас новострой и я так понимаю еще без ремонта. Однл единственное оправдание стиралки на кухне в вашем случае, это если бы был сделан полнлстью ремонт и не хотелось бы все переделывать. А пока еще все можно изменить. У меня все. Вам удачи в выборе 2 Посилання на коментар Поділитися на інших сайтах More sharing options...
NAVIN Опубліковано: 13 грудня 2020 Автор Поділитись Опубліковано: 13 грудня 2020 Lug предложила отличный вариант, склоняюсь к коридору 1 Посилання на коментар Поділитися на інших сайтах More sharing options...
Потрошитель Опубліковано: 13 грудня 2020 Поділитись Опубліковано: 13 грудня 2020 Стиралки ставите скрытого монтажа или обычные? Есть отзывы по конкретным стиралкам? Скрытого, как написал Вадим, купил Candy, отзывов пока нет - квартиры под аренду, сдана только одна 2 мес назад, в остальных ещё идут работы. 1 Посилання на коментар Поділитися на інших сайтах More sharing options...
lug Опубліковано: 13 грудня 2020 Поділитись Опубліковано: 13 грудня 2020 Как по мне, то вы неправильно выбрали душкабину. Угловые - это для тесных хрущевок, и для других пропорций ванной. Зачем бессмысленный закуток слева от кабинки? Потерянное пространство! Даже если вы впихнете туда какие-то узкие хозяйственные полочки - они будут мозолить глаза. Прямо перед входом должна быть в ванной самая красота, а не утилитарные полочки, затиснутые в угол... В вашей узкой длинной ванной напрашивается прямоугольная кабинка 1200х800(900). Она просторнее, эффективно заполнит всё пространство, и в ней - целая стена для самых нарядных декоров. Для умывальника останется 1150мм - выбирайте самый шикарный. Для туалета останется примерно 900мм - более чем достаточно. Стену между туалетом сделайте самой тонкой - ей не нужна ни теплоизоляция, ни шумоизоляция. Мы делаем каркас под ГК из СД профилей (в коробок)-это 28 мм, + 2 гипсокартона 25мм + 2 плитки = итого примерно 70мм Посилання на коментар Поділитися на інших сайтах More sharing options...
doberR Опубліковано: 13 грудня 2020 Поділитись Опубліковано: 13 грудня 2020 lug, Вы предложили решения максимально оптимальные при данной планировке только вот кухонная раковина в углу... основные процессы при приготовлении еды происходят между раковиной и плитой - не будет ли правильнее " придвинуть" раковину к холодильнику и увеличить рабочую поверхность между плитой и раковиной? Посилання на коментар Поділитися на інших сайтах More sharing options...
Рекомендовані повідомлення
Створіть акаунт або увійдіть у нього для коментування
Ви маєте бути користувачем, щоб залишити коментар
Створити акаунт
Зареєструйтеся для отримання акаунта. Це просто!
Зареєструвати акаунтУвійти
Вже зареєстровані? Увійдіть тут.
Увійти зараз