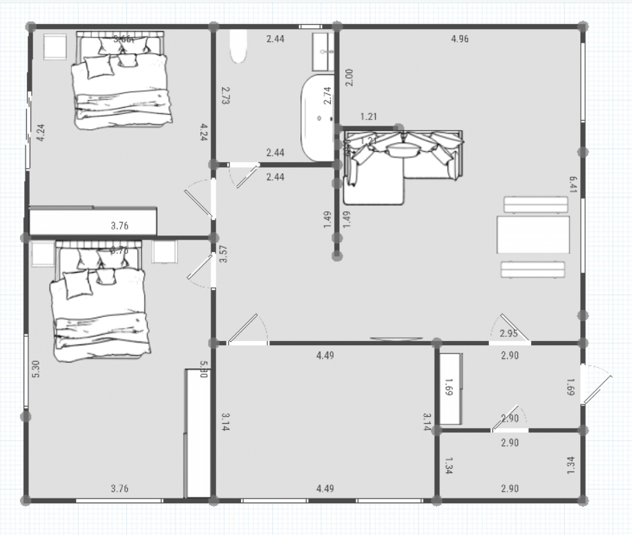
Chapaev Опубліковано: 4 лютого 2021 Поділитись Опубліковано: 4 лютого 2021 Добрый вечер. Это моя первая стройка, чем больше вникаю/читаю/смотрю, тем больше сомнений. Читая более года форум, я решил построить дачный дом. Возможно, когда я слегка состарюсь буду жить тут. Это пригород Днепра, участок 16 соток вытянутой прямоугольной формы (~75м*~22м). Дом в 1 этаж. Газобетон. Ленточный фундамент. Двускатная крыша. Что думаете, уважаемые Форумчане, по поводу такой планировки? Что мне нравится: 1. Мало гуляющих площадей 2. Гидрозона в одном месте дома 3. Вроде норм размер комнат 4. Кухня-гостинная 5. WC вроде нетесный по габаритам 6. Кладовка есть 7. На кухне есть место для котла газового или электро, теплоаккумулятора (если решусь) и прочего... Рисовал сам, проектировщик обратил это в оф.вид. Что смущает: 1. Может тут окно сделать, не темно ли будет, хотя эта стена к глух забору бетонному через 3м? 2. Хотел эту стену не несущей сделать, чтобы не тяготили эти "доборные планки" дверей при входе... Проектант говорит нельзя, т.к. балки 6м, и нужно только двутавр делать перекрытия в этом случае, насколько это дороже подсказать он не готов. Что скажите, стоит "овчинка вычинки"? 3. Окна великоваты как-то, не? Как в аквариуме ощущение немного... 4. Стоит ли террасу привязывать к дому, планировал просто маркиз сделать тут в будущем. 5. Как-то до... много квадратов выходит для дачи, вроде и лишнего ничего, тем не менее 138 кв.м., хотелось бы в 120 вписаться, но не знаю, что сократить... что скажите, Друзья? 6. Хотел из красного кирпича + шуба строить, но многие отговаривают - дорого, то, что в прикидку считал... на 25-30% дороже стены чем ГБ, не? Спасибо заранее, что написали и поделились своим мнением... Посилання на коментар Поділитися на інших сайтах More sharing options...
vadimv Опубліковано: 4 лютого 2021 Поділитись Опубліковано: 4 лютого 2021 Что думаете, уважаемые Форумчане, по поводу такой планировки? 1. Какая ориентация по сторонам света, север сверху? 2. Есть ли у вас планировка с расстановкой мебели? 3. Дофига у вас получается несущих стен. И вроде ж ничего не выбросить. 1. Может тут окно сделать, не темно ли будетЕсли крытой террасой окна закрывать не будете - то темно не будет. У нас не темно. 3. Окна великоваты как-то, не? Как в аквариуме ощущение немного...ИМХО, там бы и одного такого хватило. Зачем два? 2 Посилання на коментар Поділитися на інших сайтах More sharing options...
Chapaev Опубліковано: 4 лютого 2021 Автор Поділитись Опубліковано: 4 лютого 2021 1. Какая ориентация по сторонам света, север сверху? 2. Есть ли у вас планировка с расстановкой мебели? 3. Дофига у вас получается несущих стен. И вроде ж ничего не выбросить. Если крытой террасой окна закрывать не будете - то темно не будет. У нас не темно. ИМХО, там бы и одного такого хватило. Зачем два? 1. Вот стороны света, но вариантов расположить дом на участке не так много, ибо у соседей гаражи 15 метровые (гараж+навес) впритык стоят... И если вид из окна хочу на природу, а не на сарай приходится ползти домом далеко от фасада... Юго-восток сверху. 2. Полноценной нету, прикинут примерно как должно быть (под спойлером в 1м моем сообщении темы). 3. Пока смотрел одну точно можно убрать - слева между спальнями, там опирание будет на длинную стены, которая 10800 по длине... 4. Ага, спс... Думаю, об этом... 5. Мне тоже так кажется, протормозил тут я.... Спасибо! Посилання на коментар Поділитися на інших сайтах More sharing options...
vadimv Опубліковано: 4 лютого 2021 Поділитись Опубліковано: 4 лютого 2021 1. Вот стороны светаТ.е. спальня с двумя окнами выходит на север? Тогда бы я точно одно окно оставил. И в соседней угловой спальне (с двумя окнами) окно на север убрал. А на кухне окно на юг добавил бы и закрыл западную сторону крытой террасой. 2. Полноценной нету, прикинут примерно как должно быть (под спойлером в 1м моем сообщении темы).Лучше хотя бы от руки мебель нарисовать - кухню, мебель в спальне с двумя окнами и т.п. Но и по тому, что есть: - в санузле лучше напротив входа расположить умывальник, а не унитаз. 3. Пока смотрел одну точно можно убрать - слева между спальнямиДа, скорее всего. Посилання на коментар Поділитися на інших сайтах More sharing options...
Chapaev Опубліковано: 4 лютого 2021 Автор Поділитись Опубліковано: 4 лютого 2021 Т.е. спальня с двумя окнами выходит на север? Тогда бы я точно одно окно оставил. И в соседней угловой спальне (с двумя окнами) окно на север убрал. А на кухне окно на юг добавил бы и закрыл западную сторону крытой террасой. Лучше хотя бы от руки мебель нарисовать - кухню, мебель в спальне с двумя окнами и т.п. Но и по тому, что есть: - в санузле лучше напротив входа расположить умывальник, а не унитаз. Да, скорее всего. 1. Угу, учту. 2. Обдумаю 3. Окно на кухне просится немного, согласен. 4. Умывальник - да, это логично. Спасибо за советы! Посилання на коментар Поділитися на інших сайтах More sharing options...
tort Опубліковано: 6 лютого 2021 Поділитись Опубліковано: 6 лютого 2021 3. Дофига у вас получается несущих стен. И вроде ж ничего не выбросить. тому шо схема нераціональна на користь вільного планування, а може то не вільне планування, а просто не усі меблі намальовані, зараз там гуляйполе і такі прольоти не зрозуміли сторонньому спостерігачу. проектувальник мав би все розставити і з цього можна починати. 2 Посилання на коментар Поділитися на інших сайтах More sharing options...
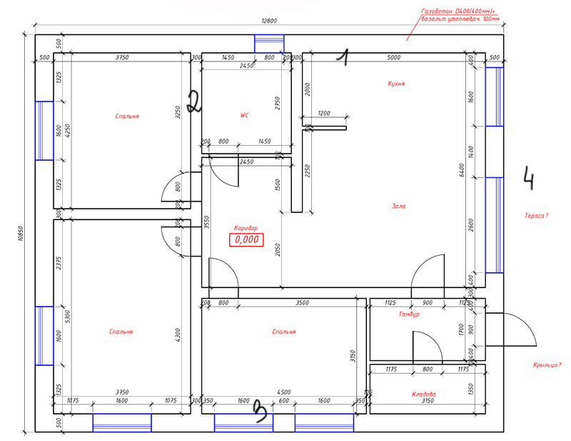
Chapaev Опубліковано: 6 лютого 2021 Автор Поділитись Опубліковано: 6 лютого 2021 тому шо схема нераціональна на користь вільного планування, а може то не вільне планування, а просто не усі меблі намальовані, зараз там гуляйполе і такі прольоти не зрозуміли сторонньому спостерігачу. проектувальник мав би все розставити і з цього можна починати. Згоден, зменшив учора площі з 138 до 108 кв.м. Зараз більш оптимально як на мене. Посилання на коментар Поділитися на інших сайтах More sharing options...
tort Опубліковано: 6 лютого 2021 Поділитись Опубліковано: 6 лютого 2021 Зараз більш оптимально як на мене. Тепер вам не потрібна несуча стінка між с/в та кухнею. Але оптимально це коли не забули місце під усі позиції. Мені не дуже подобається поєднання зали та кухні у такий спосіб - через стінку 1,3, яка залишила зону 1,8 м та з транзитом через тамбур. Це дуже дачний варіант, тісно. Все плутає вхід у куті. Не бачу особливих причин робити так вхідну зону. Може переглянете готові проекти на продаж і передумаєте на більш класичний варіант зі входом по середині фасаду. Іще, у вас зараз трохи більше 80м2, а не 108, як ви думаєте. Площа приміщень, внутрішній простір рахується, а не периметр забудови. Занадто захопились оптимізацією. Можна/краще так себе не утискати у домі з трьома спальнями. 1 Посилання на коментар Поділитися на інших сайтах More sharing options...
Музей Опубліковано: 7 лютого 2021 Поділитись Опубліковано: 7 лютого 2021 (змінено) 108 квадратов для дачного домика не мало, но и не так много чтобы использовать их так нерационально. Помещение между санузлом и спальными совершенно непродуктивно. Оно не несет, ни декоративную функцию, ни практическую. Странная ниша на кухне (над диванной группой. Что это? Камина не будет и террасы тоже не будет? Вижу 4 спальных места. Я бы обязательно отделила помещение для горшка. Змінено 7 лютого 2021 користувачем Музей 2 Посилання на коментар Поділитися на інших сайтах More sharing options...
Chapaev Опубліковано: 7 лютого 2021 Автор Поділитись Опубліковано: 7 лютого 2021 Тепер вам не потрібна несуча стінка між с/в та кухнею. Але оптимально це коли не забули місце під усі позиції. Мені не дуже подобається поєднання зали та кухні у такий спосіб - через стінку 1,3, яка залишила зону 1,8 м та з транзитом через тамбур. Це дуже дачний варіант, тісно. Все плутає вхід у куті. Не бачу особливих причин робити так вхідну зону. Може переглянете готові проекти на продаж і передумаєте на більш класичний варіант зі входом по середині фасаду. Перегородкою хтів відділити зону, де будуть розміщений котел, бойлер, ел. щиток та ін. тех. дрібниці, щоб не виділяти котельну бо під неї треба 6 кв.м., а так гул та інше будуть окремо. Щодо бокового розміщення входу - я вважав, що так не буде вітальня перегороджуватися, а залишиться більш свободною... хіба ні? Іще, у вас зараз трохи більше 80м2, а не 108, як ви думаєте. Площа приміщень, внутрішній простір рахується, а не периметр забудови. Занадто захопились оптимізацією. Можна/краще так себе не утискати у домі з трьома спальнями. А я рахував по площі забудови.... ну то таке, буває. Третя спальня - це не спальня, а кабінет, де можна за компом попрацювати, може кого-сь з родичів залишити колись. Додаткову дитину не плануємо) У будь-якому випадку дуже Дякую за поради! Добавлено через 16 минут 108 квадратов для дачного домика не мало, но и не так много чтобы использовать их так нерационально. Согласен на 100%, это уже третья попытка сделать проект более рациональным.... Z500 облазил полностью, но не нашел того, что подходит... Нанял проектировщика - хороший парень, но рисует то, что я ему рисую в своих хотелках, а я не могу сделать лучше (. Помещение между санузлом и спальными совершенно непродуктивно. Оно не несет, ни декоративную функцию, ни практическую. Согласен, но это такой коридор-разделитель.... без него прийдется коридок делать, а так комнаты отделены от гостинной и тише будет тем, кто спать лёг. Странная ниша на кухне (над диванной группой. Что это? Камина не будет и террасы тоже не будет? Вижу 4 спальных места. Я бы обязательно отделила помещение для горшка. Да, согласен, это место концентрации устройств - ввод кабелья, эл. щитовая, бойлер, котел... может водоподготовка и прочее, чтобы по всему дому не размазывать это. Полагаете не разумно получается? Камина не будет, много нюансов в этом деле, да и бюджет... Спасибо, что за террасу спросили... дом дачный все таки больше... Полагал просто маркиз сделать сбоку и площадку забетонировать 3м на 3м... для экономии. фото ниже приложу... да и беседка будет... Немного экономлю ибо впереди еще благоустройство участка - побаиваюсь, что если уйду в детали, то застряну в них во всех смыслах, как с тех стороны, так и с финансовой. Горшок... Ребенок взрослый, горшок не планирую... ) Спасибо большое за советы и мнение со стороны, оно оч важно для меня... Фото маркиза примерно, но по меньше думаю сделать или если будет сложно - просто беседку сделаю нормальную и все. 1 Посилання на коментар Поділитися на інших сайтах More sharing options...
Музей Опубліковано: 7 лютого 2021 Поділитись Опубліковано: 7 лютого 2021 Я не про детский горшок, а про раздельные помещения для унитаза с рукомойником и для ванной/душевой. Это во всех смыслах необходимо. Про террасу. Домик дачный, видимо, для отдыха в летнее время. Моё семейство проводит теплый сезон именно на террасе, в саду. В это время, в доме нужен только санузел. В зимнее время, дом отличается от квартиры только наличием камина. Я поняла, что это сложно, но оставьте место для камина, т.е. запроектируйте, сделайте бетонное основание под него, чтобы в будущем без труда встроить. Вы неизбежно придете к камину. Насосы и котлы все же лучше разместить в отдельном помещении. Они гудят, шуршат, мешают. Место для котельной лучше определять по месту ввода воды и газа в дом, чем привязкой к мокрым местам. 2 Посилання на коментар Поділитися на інших сайтах More sharing options...
Музей Опубліковано: 9 лютого 2021 Поділитись Опубліковано: 9 лютого 2021 Z500 облазил полностью, но не нашел того, что подходит. Посмотрите еще здесь. Обратите внимание на "вилки" по площади дома. https://www.archon.com.ua/ru/proekt-budynku/m3772477eb177f,dom-v-khakietiiakh-6 1 Посилання на коментар Поділитися на інших сайтах More sharing options...
tort Опубліковано: 10 лютого 2021 Поділитись Опубліковано: 10 лютого 2021 Посмотрите еще здесь. Обратите внимание на "вилки" по площади дома дома на продаж мають однакову особливість - вони майже всі мають вхід по центру. Те що хоче ТС трохи не стандартне. І вхід у куті і одразу через залу прохід. Тож ділема виникає. Посилання на коментар Поділитися на інших сайтах More sharing options...
Рекомендовані повідомлення
Створіть акаунт або увійдіть у нього для коментування
Ви маєте бути користувачем, щоб залишити коментар
Створити акаунт
Зареєструйтеся для отримання акаунта. Це просто!
Зареєструвати акаунтУвійти
Вже зареєстровані? Увійдіть тут.
Увійти зараз