motos Опубліковано: 5 березня 2021 Автор Поділитись Опубліковано: 5 березня 2021 В кабинете на сайте ДТЕК у меня уже появился договор и счет на опату подключения, решил наведаться в офис ДТЕК, оказалось что до нового года сотрудники могли с кабинета распечатать договор и дать мне на подпись, сейчас все для людей, нужно ждать пока их начальник подпишет и принесет им договор, после этого уже я могу подписывать договор. Ну ок, мне не к спеху, еще 2 дня подожду. Мне в лс писали сообщения с вопросами, решил здесь ответить: Для подачи документов я зарегистрировался на сайте ДТЕК, заполнил анкету, приложил Витяг, ситуативный план датированный 2005г., и фото паспорта с ИНН. У меня нет строительного паспорта, а так же топографической съемки и др.. 4 Посилання на коментар Поділитися на інших сайтах More sharing options...
motos Опубліковано: 5 березня 2021 Автор Поділитись Опубліковано: 5 березня 2021 Только что позвонили, пригласили на подписание договора в ДТЕК, записался на среду (раньше у меня не получится). 2 Посилання на коментар Поділитися на інших сайтах More sharing options...
motos Опубліковано: 10 березня 2021 Автор Поділитись Опубліковано: 10 березня 2021 Только что позвонили, пригласили на подписание договора в ДТЕК, записался на среду (раньше у меня не получится). Сегодня подписал договор с ДТЕК и сразу оплатил все счета. За 17 кВт 3фазы, получилось около 31 тыс. грн. Менеджер сказала что предположительно подключат через 2 недели. На после завтра заказал работы по геологии на 5 точек, а так же параллельно думаю над проектом дома, гаража и получения строительного паспорта. 4 Посилання на коментар Поділитися на інших сайтах More sharing options...
air bus Опубліковано: 10 березня 2021 Поділитись Опубліковано: 10 березня 2021 Сегодня подписал договор с ДТЕК и сразу оплатил все счета. За 17 кВт 3фазы, получилось около 31 тыс. грн. Менеджер сказала что предположительно подключат через 2 недели. На после завтра заказал работы по геологии на 5 точек, а так же параллельно думаю над проектом дома, гаража и получения строительного паспорта. в Вас настільки велика ділянка, що необхідно аж 5 точок? Посилання на коментар Поділитися на інших сайтах More sharing options...
motos Опубліковано: 11 березня 2021 Автор Поділитись Опубліковано: 11 березня 2021 в Вас настільки велика ділянка, що необхідно аж 5 точок? Так получилось, я хотел 3 точки, но ребята делают 4 точки минимум. Ну и 1 в подарок они предложили за те же деньги. Я решил не отказываться, хоть и участок не большой )) Посилання на коментар Поділитися на інших сайтах More sharing options...
КХХ Опубліковано: 13 березня 2021 Поділитись Опубліковано: 13 березня 2021 До сделки сам съездил, пообщался с соседями. На счет грунтовых вод и почвы не знаю, еще не делал геологии. Но соседи строят свои дома на обычных фундаментах (лента или ушп), говорят глина такая, что топором не разобьешь. Назначение земли: индивидуальное садоводничество. Газа нет и не будет. Я так понимаю участок на Толоке? То не глина, а супесь. Намочите её и она в жидкую кашицу превратится. Основная проблема конкретно в том месте, это уровень грунтовых вод и хоть и теоретическая, существует опасность весеннего паводка. Подвал лучше не проектировать. А так место просто райское. Любители пляжа, рыбалки и водных видов спорта будут в восторге. Вокруг Киева такого очень мало. Добавлено через 8 минут Ииии? А вы в рэс уверены? Просто это оч удивительно, тп на балансе рэс на инд садоводстве Там разные трансформаторы есть. И владельцы частных трансформаторов с очень разными аппетитами. Проблема в том, что пока не станешь собственником и не предоставишь вытяг, ДТЕК не хочет с тобой разговаривать. Как бы кота в мешке покупаешь. Посилання на коментар Поділитися на інших сайтах More sharing options...
motos Опубліковано: 15 березня 2021 Автор Поділитись Опубліковано: 15 березня 2021 Я так понимаю участок на Толоке? То не глина, а супесь. Намочите её и она в жидкую кашицу превратится. Основная проблема конкретно в том месте, это уровень грунтовых вод и хоть и теоретическая, существует опасность весеннего паводка. Подвал лучше не проектировать. А так место просто райское. Любители пляжа, рыбалки и водных видов спорта будут в восторге. Вокруг Киева такого очень мало. Добавлено через 8 минут Там разные трансформаторы есть. И владельцы частных трансформаторов с очень разными аппетитами. Проблема в том, что пока не станешь собственником и не предоставишь вытяг, ДТЕК не хочет с тобой разговаривать. Как бы кота в мешке покупаешь. Уже сделали геологию но пока нет отчета, ребята каждый слой комментировали: идет сантиметров 40-50 чернозем, потом суглинок и на глубине около 2х метров уже влажный песок. Супеси не было )). Замеряли уровень грунтовых вод в каждой скважине - 2,2-2,4 метра. Только в одной скважине, которая ближе к соседу уровень 1,2 метра. Я думаю что проблема из-за соседского септика, подмачивает видать. А пятую скважину делали на расстоянии 2,5 метра от этой - то там тоже 2,2 метра. На счет электричества, по крайней мере на моей улице у всех все Ок, общался с соседями, подключаются без проблем по гос.тарифам как стандартное подключение. 1 Посилання на коментар Поділитися на інших сайтах More sharing options...
motos Опубліковано: 20 березня 2021 Автор Поділитись Опубліковано: 20 березня 2021 Пока жду результатов Геологии, то подвели и подключили электричество 17 квт. Рядом попросил поставить щиток и в нем сделать автомат и розетку. Сейчас немного занят по работе, но планирую в скором времени уже определиться с проектом дома и начать оформлять строй паспорт. Сегодня встретил соседа, то он делал топосьёмку себе на строй паспорт и говорит что красных линий никаких нет, это радует и возможно утвердят постройку гаража в притык к границе участка. 1 1 Посилання на коментар Поділитися на інших сайтах More sharing options...
toWeb Опубліковано: 22 березня 2021 Поділитись Опубліковано: 22 березня 2021 Пока жду результатов Геологии, то подвели и подключили электричество 17 квт. Рядом попросил поставить щиток и в нем сделать автомат и розетку. Сейчас немного занят по работе, но планирую в скором времени уже определиться с проектом дома и начать оформлять строй паспорт. Сегодня встретил соседа, то он делал топосьёмку себе на строй паспорт и говорит что красных линий никаких нет, это радует и возможно утвердят постройку гаража в притык к границе участка. Поздравляю! Только автомат вам поставили который меньше чем 17квт, даже если не учитывать cos фи, у вас получается автомат должен быть 25.82А, т.е. больше чем 25А, а следующий идет 32А. Но cos фи тоже учитывается в рассчетах, по этому полюбому на 17кВт должен стоять 32А. Если бы было 16кВт, то можно было качаться 25 или 32. У меня было подобное, на 25кВт поставили 40А, вместо 50А. Я пошел поругался и поменяли. Или то уже после счетчика? Какой автомат возле него стоит? Посилання на коментар Поділитися на інших сайтах More sharing options...
SashaY Опубліковано: 23 березня 2021 Поділитись Опубліковано: 23 березня 2021 Муж у меня этим сейчас занимается. Тоже записан на подписание договора в ДТЕК. Посилання на коментар Поділитися на інших сайтах More sharing options...
motos Опубліковано: 24 березня 2021 Автор Поділитись Опубліковано: 24 березня 2021 Поздравляю! Только автомат вам поставили который меньше чем 17квт, даже если не учитывать cos фи, у вас получается автомат должен быть 25.82А, т.е. больше чем 25А, а следующий идет 32А. Но cos фи тоже учитывается в рассчетах, по этому полюбому на 17кВт должен стоять 32А. Если бы было 16кВт, то можно было качаться 25 или 32. У меня было подобное, на 25кВт поставили 40А, вместо 50А. Я пошел поругался и поменяли. Или то уже после счетчика? Какой автомат возле него стоит? У меня автомат на входе стоит на 32А, а после счетчика уже идет моя коробка, в нем стоит автомат 25А и розетка. Я такой поставил, т.к. буду все-равно потом переделывать, а на время стройки пойдет с головой. Фото автомата который мне поставили на входе прилагаю: Посилання на коментар Поділитися на інших сайтах More sharing options...
Taras.k Опубліковано: 30 березня 2021 Поділитись Опубліковано: 30 березня 2021 Сейчас думаю на счет гаража, хотел 15 метров в длину, но не очень получается, хочу чтобы и перед гаражом был навес 5 метров, решил сделать гараж 7х12,5 (внешние размеры) метров, без перестенок внутри. Гараж выйдет 2.5 метра от границы забора соседа, и 2 метра от моего дома. Одним словом нарушение пажарных норм., но для Киева так сплошь и рядом). Как сейчас с этим, сильно строго (т.е. дорого). Думаю начинать строительство с гаража. Может лучше небольшой сарай (для хранения вещей) с навесом под 2 машины? Многие, при наличии гаража, ставят машины на улице. Будет и дешевле и просторней на участке. Посилання на коментар Поділитися на інших сайтах More sharing options...
MishaUA Опубліковано: 1 квітня 2021 Поділитись Опубліковано: 1 квітня 2021 На после завтра заказал работы по геологии на 5 точек, а так же параллельно думаю над проектом дома, гаража и получения строительного паспорта. Если не секрет, к кому обращались по геологии? Добавлено через 3 минуты Если на участке появляетесь не часто, счетчик и щиток лучше закрыть ящиком под замком.. Посилання на коментар Поділитися на інших сайтах More sharing options...
motos Опубліковано: 2 квітня 2021 Автор Поділитись Опубліковано: 2 квітня 2021 Если не секрет, к кому обращались по геологии? Добавлено через 3 минуты Если на участке появляетесь не часто, счетчик и щиток лучше закрыть ящиком под замком.. ТОВ "Центр інженерних вишукування" Добавлено через 4 минуты Может лучше небольшой сарай (для хранения вещей) с навесом под 2 машины? Многие, при наличии гаража, ставят машины на улице. Будет и дешевле и просторней на участке. Я думал об этом, но гараж я больше рассматриваю как помещение для хранения хлама, и мастерскую. Посилання на коментар Поділитися на інших сайтах More sharing options...
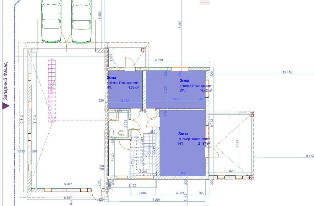
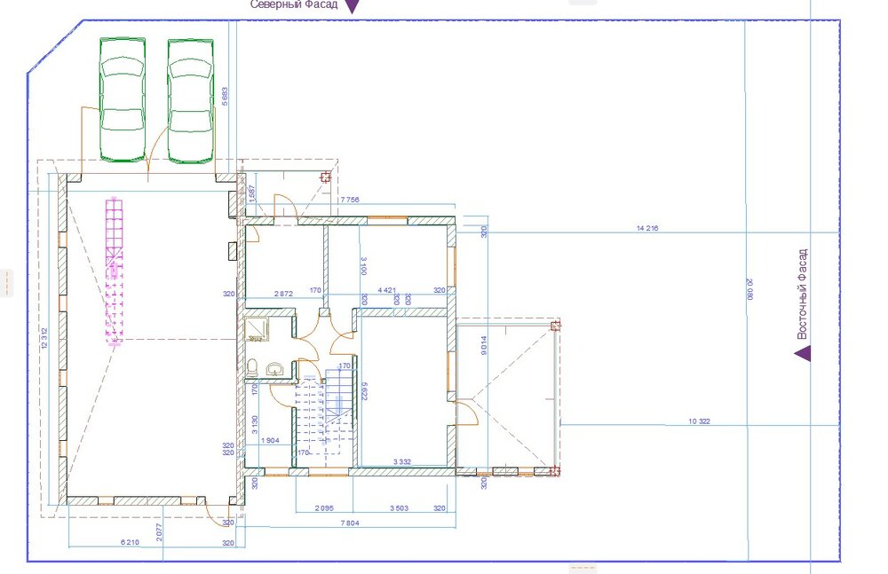
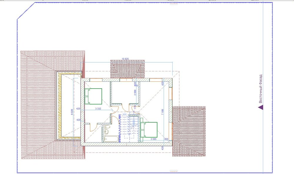
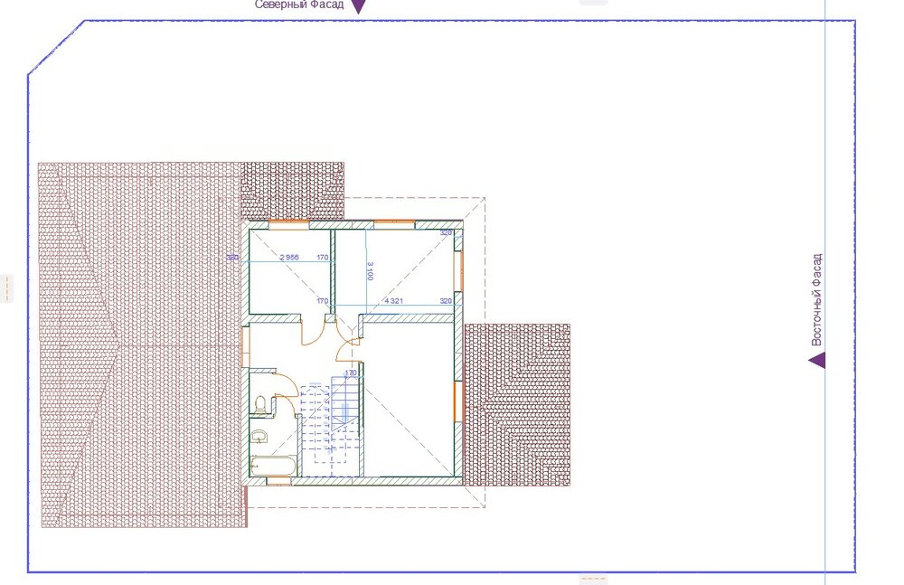
motos Опубліковано: 2 квітня 2021 Автор Поділитись Опубліковано: 2 квітня 2021 Немного посидел в архикаде и набросал первоначальный эскиз, немного коряво но разобрать можно. Интересно услышать ваше мнение по планировке и расположению дома на участке. (заодно для истории выложу, что сейчас и какой потом выйдет). Фасад у меня с северной стороны - к дороге. Посилання на коментар Поділитися на інших сайтах More sharing options...
lastandr Опубліковано: 2 квітня 2021 Поділитись Опубліковано: 2 квітня 2021 Интересно услышать ваше мнение Подумайте над окнами или фрамугами в гараже... То же касается и 2-го этажа на южном фасаде... Посилання на коментар Поділитися на інших сайтах More sharing options...
motos Опубліковано: 2 квітня 2021 Автор Поділитись Опубліковано: 2 квітня 2021 Подумайте над окнами или фрамугами в гараже... То же касается и 2-го этажа на южном фасаде... На счет окон в гараже, спасибо (я даже и забыл как-то их нарисовать). На счет южной стороны на 2м этаже, решил не ставить там окна, т.к. на расстоянии 6 метров стоит дом соседа. В одной части с/у - в нем можно фрамугу поставить и затонировать. А с другой части дома - комната с тремя окнами, думаю достаточно. Сделал большим окно на лестнице.. Посилання на коментар Поділитися на інших сайтах More sharing options...
lastandr Опубліковано: 2 квітня 2021 Поділитись Опубліковано: 2 квітня 2021 Ну, как-то так... Посилання на коментар Поділитися на інших сайтах More sharing options...
Taras.k Опубліковано: 2 квітня 2021 Поділитись Опубліковано: 2 квітня 2021 ТОВ "Центр інженерних вишукування" Добавлено через 4 минуты Я думал об этом, но гараж я больше рассматриваю как помещение для хранения хлама, и мастерскую. Думаю, что стоит еще раз взвесить, нужен ли Вам гараж на 80 м2, стоимостью в пол дома и с входом через улицу. Может, правда, там какой-то цех планируется... Есть много польских проектов, посмотрите готовые варианты, они, как правило очень практичны. Посилання на коментар Поділитися на інших сайтах More sharing options...
lastandr Опубліковано: 2 квітня 2021 Поділитись Опубліковано: 2 квітня 2021 Есть много польских проектов, Из этих проектов можно взять лишь планировку, все остальное - в корзинку... Посилання на коментар Поділитися на інших сайтах More sharing options...
motos Опубліковано: 3 квітня 2021 Автор Поділитись Опубліковано: 3 квітня 2021 Думаю, что стоит еще раз взвесить, нужен ли Вам гараж на 80 м2, стоимостью в пол дома и с входом через улицу. Может, правда, там какой-то цех планируется... Есть много польских проектов, посмотрите готовые варианты, они, как правило очень практичны. Немного переделал, развернул дом боком и он получился почти на 2 метра уже, и немного больше в глубину. Я делаю такой большой гараж с расчетом, что в случае если не нужна будет мастерская, то при необходимости полгаража пойдет под баню, или подсобное помещение.. На плане не показано, но там будет возможность сделать дверь в дом. Если дверь будет сразу, то гараж считается в площадь дома. На второй картинке показал красной линией как можно разделить гараж. Посилання на коментар Поділитися на інших сайтах More sharing options...
lastandr Опубліковано: 3 квітня 2021 Поділитись Опубліковано: 3 квітня 2021 Я делаю такой большой гараж с расчетом, что в случае если не нужна будет мастерская, то при необходимости полгаража пойдет под баню, или подсобное помещение.. Это мудрое решение! Посилання на коментар Поділитися на інших сайтах More sharing options...
motos Опубліковано: 3 квітня 2021 Автор Поділитись Опубліковано: 3 квітня 2021 Единственное смущает - маленькие комнаты (от 13 до 14 кв.м.) и кухня-гостиная в 18 кв.м. Смотрю все делают кухни-гостиные по 30-40 кв.м. .. Тоже могу сделать 32 кв.м. но нужно будет пожертвовать комнатой на первом этаже, но не хотелось бы в старости бегать на второй этаж туда-сюда. И как-то хочу сделать дом компактным, но при этом чтобы не было слишком тесно. Посилання на коментар Поділитися на інших сайтах More sharing options...
КХХ Опубліковано: 4 квітня 2021 Поділитись Опубліковано: 4 квітня 2021 Единственное смущает - маленькие комнаты (от 13 до 14 кв.м.) и кухня-гостиная в 18 кв.м. Смотрю все делают кухни-гостиные по 30-40 кв.м. .. Тоже могу сделать 32 кв.м. но нужно будет пожертвовать комнатой на первом этаже, но не хотелось бы в старости бегать на второй этаж туда-сюда. И как-то хочу сделать дом компактным, но при этом чтобы не было слишком тесно. В 100 метровом доме в два этажа полюбому будите бегать с этажа на этаж. Не хотите бегать стройте одноэтажник. Спальни по 13-14 метров при наличии приточно-вытяжной вентиляции это самый рациональный вариант. В кухне будет темно. Единственное окно выход под навес террасы. Кухня должна быть самым светлым помещением в доме. Посилання на коментар Поділитися на інших сайтах More sharing options...
motos Опубліковано: 4 квітня 2021 Автор Поділитись Опубліковано: 4 квітня 2021 В 100 метровом доме в два этажа полюбому будите бегать с этажа на этаж. Не хотите бегать стройте одноэтажник. Спальни по 13-14 метров при наличии приточно-вытяжной вентиляции это самый рациональный вариант. В кухне будет темно. Единственное окно выход под навес террасы. Кухня должна быть самым светлым помещением в доме. Добавил в ширину дома еще 0,6 метра (1 газоблок), и получил немного больше размер комнат и кухни. На кухне будет 1 окно почти в пол, и дверь с окном. Второе окно не куда влепить по сути. т.к. на стенах планирую шкафчики кухонные. Посилання на коментар Поділитися на інших сайтах More sharing options...
Рекомендовані повідомлення
Створіть акаунт або увійдіть у нього для коментування
Ви маєте бути користувачем, щоб залишити коментар
Створити акаунт
Зареєструйтеся для отримання акаунта. Це просто!
Зареєструвати акаунтУвійти
Вже зареєстровані? Увійдіть тут.
Увійти зараз