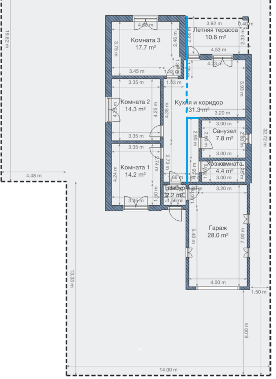
koks87 Опубліковано: 21 травня 2021 Поділитись Опубліковано: 21 травня 2021 Имею узкий участок не стандартной формы. Нарисовал план одноэтажного дома с гаражом. Выслушаю все аргументированные замечания и советы по улучшению. Посилання на коментар Поділитися на інших сайтах More sharing options...
vadimv Опубліковано: 21 травня 2021 Поділитись Опубліковано: 21 травня 2021 Выслушаю все аргументированные замечания и советы по улучшению. 0. Без расстановки мебели и указания сторон света неинформативно. 1. Гараж можно и сократить по длине метров до 6, если не собираетесь там F150 ставить. 2. Тамбур маловат. Лично я бы меньше 2х2 не делал. Кстати, зачем там ступенька на стене? 3. Санузел 7,8 наоборот великоват. И одного совмещенного санузла на 3 спальни мало. 4. Зачем такой широкий коридор - 2,46? 5. Кухня далеко от входа. Плюс в ней только одно окно и то под навесом - будет темно. 6. В комнате 17,7 еще одна ступенька на стене. 7. Гостиной фактически нет. Внутренних несущих стен не будет? 2 Посилання на коментар Поділитися на інших сайтах More sharing options...
koks87 Опубліковано: 21 травня 2021 Автор Поділитись Опубліковано: 21 травня 2021 (змінено) 1) на участке пока не планируется ни каких хоз построек , а нужно где-то хранить велосипеды 3шт. И прочий инвентарь , для этого пока будет использоваться гараж и 7 метров не такой уж и большой , сейчас у меня гараж стандартных размеров 6*4 как раз таки метра и не хватает 2) тамбур пересмотрю , возможно и маловат но пока не понимаю за счёт чего его сделать больше не увеличивая при этом размер дома. Там нет ступеньки, не знаю почему так на рисунке отобразилось 3) санузел один в доме один на улице, считаю вполне достаточно, даже не представляю где можно разместить второй, а главное зачем 4) по поводу коридора согласен полностью , предложите вариант по его уменьшению 5) в кухне одно окно и дверь стеклянная в пол, мне кажется света должно быть достаточно 6) в комнате тоже нет ступенек , внешние стены будут толщиной 40 см, внутренние(перегородки) 20см Главное условие, из-за особенностей участка, дом в ширину не должен превышать 10м, иметь 3 отдельные комнаты и гараж. Змінено 21 травня 2021 користувачем koks87 Посилання на коментар Поділитися на інших сайтах More sharing options...
vadimv Опубліковано: 21 травня 2021 Поділитись Опубліковано: 21 травня 2021 3) санузел один в доме один на улице, считаю вполне достаточно, даже не представляю где можно разместить второй, а главное зачем - мы как-то гостили у родычей в загородном доме, вечером образовывалась очередь в санузел - если в доме три спальни, то я так понимаю, что жильцов будет 4 или больше. И чтобы очередей не было - лучше иметь два санузла (раздельный санузел). На улице не вариант, даже летом, не говоря уже про зиму. У нас тоже есть. 4) по поводу коридора согласен полностью , предложите вариант по его уменьшениюЯ бы сделал по центру несущую стену (сплошная голубая линия), а на кухне соединил бы ее балкой. Сильно упростит конструкцию крыши. 1 Посилання на коментар Поділитися на інших сайтах More sharing options...
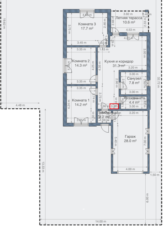
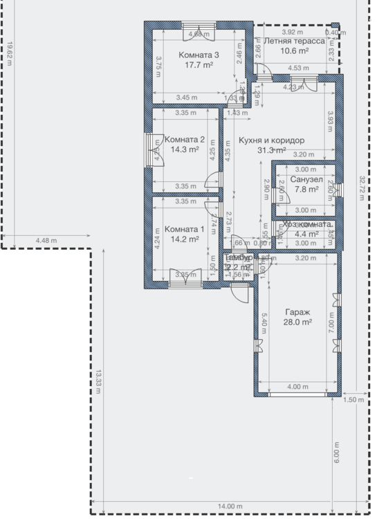
koks87 Опубліковано: 21 травня 2021 Автор Поділитись Опубліковано: 21 травня 2021 если в доме три спальни, то я так понимаю, что жильцов будет 4 или больше. На самом деле это 2 спальни и Зал. В семье пока три человека. Не знаю будет ли больше, Зал - это запас на будущее, вдруг семья увеличится и тогда он превратится в ещё одну спальню. Там где красный квадрат хотелось бы поставить какой-то шкаф для верхней одежды, чтоб зайдя в дом было куда куртку повесить и т.д. А если заузить коридор,не будет ли он слишком тесным ? Посилання на коментар Поділитися на інших сайтах More sharing options...
vadimv Опубліковано: 22 травня 2021 Поділитись Опубліковано: 22 травня 2021 А если заузить коридор,не будет ли он слишком тесным ? 1. При односторонней застройке коридора с незначительным движением достаточна ширина 0,9 м, лучше 1 м. Расстояние между осями стен 1,25 м. 2. При односторонней застройке коридора с интенсивным движением для свободного встречного прохода 2 чел. необходимая ширина коридора равна 1,3 — 1,4 м. 3. При двусторонней застройке коридора с интенсивным движением для прохода 2 чел. необходима ширина коридора 1,6 м, для 3 человек — 2 м. 4. При односторонней застройке коридора с незначительным движением ширина коридора равна ширине двери +50 см; при ширине двери 90 см ширина коридора ≥ 1,4 м. 5. При односторонней застройке коридора с интенсивным движением и ширине двери 90 см нормальная ширина коридора ≥ 1,80 м. 6. При двусторонней застройке коридора с интенсивным движением и при смещённом расположении дверей требуемая ширина коридора 2 м. 7. При двусторонней застройке коридора с расположением дверей друг против друга обычно принимается ширина коридора 2,4 — 2,6 м. Расстояние между осями стен 2,5м neufert.totalarch.com/utility/2 1 Посилання на коментар Поділитися на інших сайтах More sharing options...
koks87 Опубліковано: 22 травня 2021 Автор Поділитись Опубліковано: 22 травня 2021 В случае сужения коридора там не возможно будет поставить шкаф. Если все же его сузить то расширишься санузел и хоз комната, а они и так не маленькие. Единственный плюс в этом что удлинится стена кухни Посилання на коментар Поділитися на інших сайтах More sharing options...
Gonchik Опубліковано: 22 травня 2021 Поділитись Опубліковано: 22 травня 2021 На самом деле это 2 спальни и Зал. В семье пока три человека. Не знаю будет ли больше, Зал - это запас на будущее, вдруг семья увеличится и тогда он превратится в ещё одну спальню. Там где красный квадрат хотелось бы поставить какой-то шкаф для верхней одежды, чтоб зайдя в дом было куда куртку повесить и т.д. А если заузить коридор,не будет ли он слишком тесным ? Одного санузла иногда и для троих мало. Я бы послушал Вадима. И выделил бы из санузла и кладовки отдельно туалет с умывальником. 4 Посилання на коментар Поділитися на інших сайтах More sharing options...
koks87 Опубліковано: 22 травня 2021 Автор Поділитись Опубліковано: 22 травня 2021 Одного санузла иногда и для троих мало. Я бы послушал Вадима. И выделил бы из санузла и кладовки отдельно туалет с умывальником. Как по мне одного санузла вполне хватит, Даже для семьи из 4-х человек. Вот по поводу широкого коридора я согласен и маленького тамбура тоже дельное замечание Посилання на коментар Поділитися на інших сайтах More sharing options...
Gonchik Опубліковано: 22 травня 2021 Поділитись Опубліковано: 22 травня 2021 Ну да, Вы правы) сейчас в новых квартирах 60-80 метров по два. Зачем - не понятно. Для дома и одного вполне достаточно. Деревянный на улице стоит копейки) 1 Посилання на коментар Поділитися на інших сайтах More sharing options...
koks87 Опубліковано: 22 травня 2021 Автор Поділитись Опубліковано: 22 травня 2021 (змінено) Ну да, Вы правы) сейчас в новых квартирах 60-80 метров по два. Зачем - не понятно. Для дома и одного вполне достаточно. Деревянный на улице стоит копейки) Правда не понятно, зачем семье из 3-х - 4-х человек 2 санузла ))) Змінено 22 травня 2021 користувачем koks87 Посилання на коментар Поділитися на інших сайтах More sharing options...
Gonchik Опубліковано: 23 травня 2021 Поділитись Опубліковано: 23 травня 2021 С такими вводными, как у Вас, мне нравится такого плана: www.dobredomy.pl/projekt/ametystII/ В фейсбуке есть группа, где народ делится реализациями именно этого дома. Я не то, чтобы со своим уставом в чужой монастырь, может кому-то пригодится. Даже где-то в почте у меня этот проект есть в виде поэтажки, разрезов, узлы основные показаны. Поляки, конечно, в своем репертуаре - монолитно-каркасная технология, стена 25 + почти столько же наружного утепления. 1 Посилання на коментар Поділитися на інших сайтах More sharing options...
koks87 Опубліковано: 23 травня 2021 Автор Поділитись Опубліковано: 23 травня 2021 С такими вводными, как у Вас, мне нравится такого плана: www.dobredomy.pl/projekt/ametystII/ В фейсбуке есть группа, где народ делится реализациями именно этого дома. Я не то, чтобы со своим уставом в чужой монастырь, может кому-то пригодится. Даже где-то в почте у меня этот проект есть в виде поэтажки, разрезов, узлы основные показаны. Поляки, конечно, в своем репертуаре - монолитно-каркасная технология, стена 25 + почти столько же наружного утепления. Если Вам не сложно скиньте ссылку на эту группу в фейсбуке и план который у вас на почте, рассмотрю более подробно. Спасибо Добавлено через 43 минуты С такими вводными, как у Вас, мне нравится такого плана: www.dobredomy.pl/projekt/ametystII/ В фейсбуке есть группа, где народ делится реализациями именно этого дома. Я не то, чтобы со своим уставом в чужой монастырь, может кому-то пригодится. Даже где-то в почте у меня этот проект есть в виде поэтажки, разрезов, узлы основные показаны. Поляки, конечно, в своем репертуаре - монолитно-каркасная технология, стена 25 + почти столько же наружного утепления. К вводным ещё нужно добавить наличие всего одного этажа , мансардный этаж тоже не хочу Посилання на коментар Поділитися на інших сайтах More sharing options...
koks87 Опубліковано: 23 травня 2021 Автор Поділитись Опубліковано: 23 травня 2021 Фото Посилання на коментар Поділитися на інших сайтах More sharing options...
ПГС-Проект Опубліковано: 24 травня 2021 Поділитись Опубліковано: 24 травня 2021 Если есть возможность, делайте отступ в передней части не 6,0м а хотя-бы 7,0м. Отмостка или пандус уже минимум 1,0м(остается 5,0м) Далее фундамент забора(как правило площадью во внутрь участка), уже меньше 5.0 остается. Теперь думаем о длине авто, куда будет открываться багажник и сами ворота соответственно. А ведь хорошо бы еще оставить по 0.5 м для возможности "пройти вокруг авто". Посилання на коментар Поділитися на інших сайтах More sharing options...
koks87 Опубліковано: 24 травня 2021 Автор Поділитись Опубліковано: 24 травня 2021 Если есть возможность, делайте отступ в передней части не 6,0м а хотя-бы 7,0м. Отмостка или пандус уже минимум 1,0м(остается 5,0м) Далее фундамент забора(как правило площадью во внутрь участка), уже меньше 5.0 остается. Теперь думаем о длине авто, куда будет открываться багажник и сами ворота соответственно. А ведь хорошо бы еще оставить по 0.5 м для возможности "пройти вокруг авто". Ворота уличные будут открываться наружу, ворота в гараже открываться будут вверх. Размер авто 4,4м. 6 метров я написал чистого места, от забора до стен гаража. Получается запас 1,5 метра, думаете этого будет мало? Посилання на коментар Поділитися на інших сайтах More sharing options...
san6ka Опубліковано: 24 травня 2021 Поділитись Опубліковано: 24 травня 2021 Правда не понятно, зачем семье из 3-х - 4-х человек 2 санузла ))) А как можно в ванной полежать когда кому-то в туалет приспичило? Не хотите делать еще один, хотя бы сделайте раздельный - это минимальный уровень комфорта, Вы же для себя строите, а не на продажу. 3 Посилання на коментар Поділитися на інших сайтах More sharing options...
vadimv Опубліковано: 24 травня 2021 Поділитись Опубліковано: 24 травня 2021 ФотоРаз уж появилась ориентация по сторонам света, добавлю свое любимое - лично я бы не делал террасу на юго-запад, это самое жаркое направление, там летом в самую спеку после полудня и до заката будет очень жарко. Только если полностью затенить ее большим деревом аля орех или каштан. У наших родычей в коттедже сделана такая терраса - они ее забросили и перенесли зону отдыха в затененный соседним домом угол участка. У нас в беседке с западной стороны по краям растет две взрослые вишни, а посередине, где абрикос еще не подрос - беседка затенена виноградом. Иначе в ней невозможно летом после полудня находиться. Посилання на коментар Поділитися на інших сайтах More sharing options...
koks87 Опубліковано: 24 травня 2021 Автор Поділитись Опубліковано: 24 травня 2021 А как можно в ванной полежать когда кому-то в туалет приспичило? Не хотите делать еще один, хотя бы сделайте раздельный - это минимальный уровень комфорта, Вы же для себя строите, а не на продажу. Давайте тему санузла закроем. Добавлено через 37 секунд Раз уж появилась ориентация по сторонам света, добавлю свое любимое - лично я бы не делал террасу на юго-запад, это самое жаркое направление, там летом в самую спеку после полудня и до заката будет очень жарко. Только если полностью затенить ее большим деревом аля орех или каштан. У наших родычей в коттедже сделана такая терраса - они ее забросили и перенесли зону отдыха в затененный соседним домом угол участка. У нас в беседке с западной стороны по краям растет две взрослые вишни, а посередине, где абрикос еще не подрос - беседка затенена виноградом. Иначе в ней невозможно летом после полудня находиться. Мне вообще бы хотелось её перенести , вернее поменять с комнатой местами, но как я не крутил у меня это не получилось Посилання на коментар Поділитися на інших сайтах More sharing options...
san6ka Опубліковано: 24 травня 2021 Поділитись Опубліковано: 24 травня 2021 Давайте тему санузла закроем. Зря-зря... ну как хотите Мне вообще бы хотелось её перенести , вернее поменять с комнатой местами, но как я не крутил у меня это не получилось Может повернуть комнаты иначе? 1 Посилання на коментар Поділитися на інших сайтах More sharing options...
Zak Опубліковано: 25 травня 2021 Поділитись Опубліковано: 25 травня 2021 Соседний участок уже застроен? Как далеко их постройки от границы? Могут не разрешить строить в 1,5 метрах от границы если соседи еще не построились или если между домами меньше 8ми метров. Посилання на коментар Поділитися на інших сайтах More sharing options...
Gonchik Опубліковано: 25 травня 2021 Поділитись Опубліковано: 25 травня 2021 Соседний участок уже застроен? Как далеко их постройки от границы? Могут не разрешить строить в 1,5 метрах от границы если соседи еще не построились или если между домами меньше 8ми метров. Кто здесь?))) Посилання на коментар Поділитися на інших сайтах More sharing options...
koks87 Опубліковано: 25 травня 2021 Автор Поділитись Опубліковано: 25 травня 2021 Соседний участок уже застроен? Как далеко их постройки от границы? Могут не разрешить строить в 1,5 метрах от границы если соседи еще не построились или если между домами меньше 8ми метров. До соседней постройки достаточно метров Посилання на коментар Поділитися на інших сайтах More sharing options...
Studio Z500 Опубліковано: 25 травня 2021 Поділитись Опубліковано: 25 травня 2021 Можно рассмотреть такие проекты как Z498, Zx129 1 Посилання на коментар Поділитися на інших сайтах More sharing options...
koks87 Опубліковано: 31 травня 2021 Автор Поділитись Опубліковано: 31 травня 2021 Зря-зря... ну как хотите Может повернуть комнаты иначе? Очень интересный проект, а не могли бы Вы скинуть ссылку где на него можно посмотреть? Или может у Вас есть ещё чертежи или картинки Посилання на коментар Поділитися на інших сайтах More sharing options...
Рекомендовані повідомлення
Створіть акаунт або увійдіть у нього для коментування
Ви маєте бути користувачем, щоб залишити коментар
Створити акаунт
Зареєструйтеся для отримання акаунта. Це просто!
Зареєструвати акаунтУвійти
Вже зареєстровані? Увійдіть тут.
Увійти зараз