Перейти до публікації
Пошук в
  • Додатково...
Шукати результати, які містять...
Шукати результати в...

Хамам, парогенератор HygroMatik

Vstar

Рекомендовані повідомлення

Бажаю здоров'я, так вийшло, що моя дружина не хотіла розпочинати будівництво будинку якщо проектом не буде передбачено парової а саме Хамам, їй найбільше підходив цей температурний режим в цілому, та й для процедур типу скрабів саме воно. Я не міг відмовити в бажанні коханої. А мені байдуже де відпочивати тому сперечань не могло бути ).

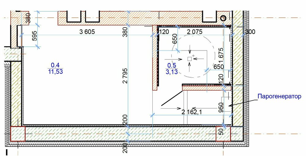
В проекті я передбачив основні технічні вимоги як на мене:

  • дренаж як в хамам так і звісно душова;
  • опалення в кімнаті відпочинку тепла підлога водяна але безпосередньо в паровій (підлога з лежаками) та душова частина - електропідігрів, це дає можливість комфортно експлуатувати дане приміщення не в опалювальний період;
  • примусова вентиляція.

Не експерт в парогенераторах але принцип роботи HygroMatik мені сподобався, і для мого об'єму оптимальна модель С10.

Купель в паровій не планувалось так як не вбачається необхідності а от лійка душова то обов'язково.

В загальному проектні рішення спокійно лежали майже 5 років ) та складаються з трьох основних приміщень: кімната відпочинку, душова та хамам.

721969134_1.thumb.jpg.176cb847cd6600c7c74c6dc88d44cd7c.jpg

Лежаки - там де довша сторона пласка а там де коротша частина анатомічна (напівсидяча). Ну і обов'язково купол )).

По мірі часу та виконання буду доповнювати гілку.

 

Бажаю успіхів!

  • Лайк 1
Посилання на коментар
Поділитися на інших сайтах

Примусовий витяжний канал згідно схеми

Прихований текст

20230411_092442(1).thumb.jpg.4449866017ccf5ab58c7f88ae2a967ba.jpg

З вологих приміщень забирається повітря, потрапляє в вентиляційний стояк за допомогою канального вентилятора ac infinity cloudline t4 (досить тихо працює). Для конденсату який буде, передбачено вивід в каналізацію. Вентиляція зібрана на пластику Вентс (температура в гарячому приміщенні не вище 45 градусів). Приток чистого повітря в парову через щілину під дверима близько 30мм.

Бажаю Перемог!

 

 

Посилання на коментар
Поділитися на інших сайтах

Вітаю, також з моїх пунктів був купол. Все будівництво починається з "бумаги", зробив розгортку та нарізав частини з пінопласту товщиною 20мм

740266912_.thumb.jpg.51423c99830bd729dca3c40df64c0c03.jpg

 

Далі посклеював це все клей піною як на фото

20201225_123841.thumb.jpg.30c42a02e33aba048f097becfd4d95df.jpg

20201225_130253.thumb.jpg.0a6b52e4036d401e42461ae81ba6b7b9.jpg

20201225_151816.thumb.jpg.83c3a42f6fe9ebf82d9a96cb967b72e3.jpg

20201226_160203.thumb.jpg.dd3be396d98ea8a1fc0843c8f24d20c5.jpg

Після чого затягнув армоклеєм по фасадній сітці в два шари з зовнішньої та внутрішньої сторін.

Опорну частину підсилив gрофілем для гіпсокартону UD.

20210103_130530.thumb.jpg.7bed911183a509384102abec2a3b930a.jpg

20211031_150550.thumb.jpg.62e39b4e8a17380d3ae2585a8963e849.jpg

 

 

  • Лайк 2
Посилання на коментар
Поділитися на інших сайтах

Фото разводи в середине хамама, и выводы к парогенератору.

Техзадание от хамамщиков.

В личку пишите, вышлю, остался от заказчика проек хамама с визуализацией. (реквизиты, реклама, сюда выкладывать не стану).

IMG_4780.JPG

IMG_4781.JPG

IMG_5489.JPG

План хамам.JPG

  • Лайк 1
Посилання на коментар
Поділитися на інших сайтах

  • 2 тижні потому...

Вітаю!

Кімнату парової утеплив XPS 50мм на клей піну, та дюбелі "парасольки"

Прихований текст

20230208_221715.thumb.jpg.042cb1c46dfa8d7597396a78fbad5733.jpg

 

Для виготовлення анатомічного лежака роздрукував макет в маштабі

20230209_185524.thumb.jpg.0736961a9deeedd4e15b950873271f96.jpg

Виготовив його з екструдера, та поверх наніс 3 шари фасадної сітки на клей

20230210_180726.thumb.jpg.ab5cd3597a8b296c3479a051dc14cde3.jpg

20230216_204744.thumb.jpg.a0656114d84ddd5e94276744039fc2e4.jpg

Лежак вийшов зручний.

Бажаю успіхів!

Посилання на коментар
Поділитися на інших сайтах

Продовжив роботу з куполом, для зручності виконання, чашу купола вирішив обкласти мозаїкою на підлозі

Прихований текст

20211106_085121.thumb.jpg.cb5503fd23538a6defcbf9317c50a1da.jpg

Після чого шви затер епоксидною фугою Mira.

Також виникла ідея зробити "Зіркове небо", для цього згенерував мапу зіркового неба на певну дату та роздрукував в маштабі купола

20211229_191215.thumb.jpg.39095e1878ee69266333f1124d4788b6.jpg

 

Зірки в сузір'ях розділив на 3 типи яскравості і відповідно використав кристалики трьох типів називається в пошуку (For fiber optic end fitting optical fiber tailpiece caps)

Прихований текст

s-l500.jpg.03eff5201a7967b85f342ca199e79ebd.jpg s-l501.jpg.11a78864714448f06deb92582cd505a0.jpg s-l502.jpg.af770d1f7cf3063aa7396cad66d9abba.jpg

 

Макет зафіксував в куполі та розпочав монтаж кристаликів, попередньо зробивши отвори алмазною фрезою 6мм

 

20220503_205138.thumb.jpg.db7cbba9a8e47424122311112e1ff389.jpg

20220525_190029.thumb.jpg.c3750f9cb55e124908c0fc710c8cf55b.jpg

Кристали фіксував тимчасово на скотч.

 

Змінено користувачем Vstar
  • Лайк 1
Посилання на коментар
Поділитися на інших сайтах

Вітаю!

Змонтував трубу витяжної вентиляції

20221004_213514.thumb.jpg.da083c549011e9a60f62cecb2bdce5e3.jpg

Також змонтував купол на своє місце проживання )

20221004_213457.thumb.jpg.cd21ac68e0b0dd3ba121259347aaff5f.jpg

 

20230216_212323.thumb.jpg.792308803ec283b6e417d7cc4b906d79.jpg

 

 

 

Після чого виконано монтаж оптоволокна Fiberstars 300, кристали одразу садив на герметик

20230218_112400.thumb.jpg.b26c63c00a2e6ec3ce9434f6cbb51939.jpg

20230217_165200.thumb.jpg.d60df12a9e5b3560e58b885c8b6ea141.jpg

 

20230217_165412.thumb.jpg.44a1ba663fa8e175b89ab33ce509c081.jpg

 

 

Процес досить нудний та довготривалий. Після завершення підшив стелю XPS 20мм та зовні купола задув напилювальним утеплювачем

 

20230219_101744.thumb.jpg.46aca6e7bfbee4e5121bb1a06423bddd.jpg

 

20230218_145740.thumb.jpg.9dde4bc130748043a63a3443ebdfe629.jpg

 

Завершив етап

IMG-f6ffc4fb031dddbd6c6e91863ab61a59-V.thumb.jpg.dbdb610f7ad562a66b336384f449813e.jpg

 

Бажаю успіхів!

 

Змінено користувачем Vstar
  • Лайк 4
Посилання на коментар
Поділитися на інших сайтах

Крокуємо.

Готове приміщення з утеплювачем (попереднє фото) захистив фасадною сіткою (стіни 2 шари, лежаки 3 шари) втопленою у армоклей. Після висихання покрив полімерною ізоляцією (МС) в 2 шари

20230228_204110.thumb.jpg.588e29171d95d811840ea38297aa74f3.jpg

 

Посилання на коментар
Поділитися на інших сайтах

Далі діло за розкладкою кабелю підігріву (крок + - 100мм). На мою площу кабелю обігріву пішло 100м.п. (здається потужність 1,1 кВт).

На термодатчиках не акцентував увагу раніше, але вони були прокладені в кількості 3 штуки в різних місцях, для кабелю обігріву, керування вентиляцією і парогенератора. Все це було змонтовано на етапі утеплювача до гідроізоляції.

20230302_194707.thumb.jpg.12ec33b76612d65650f4e9138b48149b.jpg

20230302_194722.thumb.jpg.8bd2b914813324af99adb2b13dfa4dcc.jpg

 

20230302_194734.thumb.jpg.00ff54877e7d74b69fce3ff958207df7.jpg

 

Захистив його знову ж таки фасадною сіткою з клеєм

20230302_213002.thumb.jpg.1c24173108181ad1ad9f03362dd053e8.jpg

20230302_212940.thumb.jpg.e14d1637a5d8d1f7381e92ab7f23b065.jpg

 

 

По фоткам надіюсь все зрозуміло, якщо будуть запитання, постараюсь відповісти.

Все підготовлено для укладки мозаїки.

Бажаю успіхів!

Змінено користувачем Vstar
Посилання на коментар
Поділитися на інших сайтах

  • 2 тижні потому...

Вітаю! Бавлюся з укладкою мозаїки. Листи різні за розмірами і приходиться розрізати на дрібніші полоси, щоб не було помітно різниці

20230317_221238.thumb.jpg.2f5d01643c1dedba63104e28061a825b.jpg

 

Ось так "бубка до бубки" та й вимальовується

20230402_174451.thumb.jpg.2943aed60c378a7e414fefddf900d82f.jpg

 

20230402_174501.thumb.jpg.7e014d496731a072de3c854bd688b823.jpg

 

20230409_172409.thumb.jpg.4390dd8f9b5197e2a0fee6d0c597b48f.jpg

 

20230409_172424.thumb.jpg.3432011af42517412cea56da3214fc9b.jpg

 

 

 

 

  • Лайк 2
Посилання на коментар
Поділитися на інших сайтах

  • 1 місяць потому...

Доброго дня.

був в одній римській парній.

в них теж приміщення парної має такий купол як у Вашій конструкції.

неприємним моментом є коли пар конденсується випадають капельки якраз на лежак зі стелі.

 

 

image.png.02779dc5c984df29e4f44d859dfe631b.png

Посилання на коментар
Поділитися на інших сайтах

Доброго дня!  Так гарячі крапельки скрапують на розігріте тіло, а чому це не приємно?  Скільки ходив в хамам,  це відчуття мені і подобається. Я саме коли розраховував розміри купола, то враховува, щоб як змога більше крапельок попадало )).

Посилання на коментар
Поділитися на інших сайтах

15 годин тому, Vstar сказав:

Доброго дня!  Так гарячі крапельки скрапують на розігріте тіло, а чому це не приємно?  Скільки ходив в хамам,  це відчуття мені і подобається. Я саме коли розраховував розміри купола, то враховува, щоб як змога більше крапельок попадало )).

ну нас було там 4 осіб то один мінус цієї парної ці каплі, особливо коли падають на обличчя. 

  • Лайк 1
Посилання на коментар
Поділитися на інших сайтах

'

21.06.2023 в 10:31, Dr.Yura сказав:

ну нас було там 4 осіб то один мінус цієї парної ці каплі, особливо коли падають на обличчя.

На обличчя у мене точно падати не буде, адже лежаки при стінці і голова при краю стіни, відповідно край напівсфери не попадатиме в зону обличчя. Значить ця парна не для Вас.

Лежак.jpg

Змінено користувачем Vstar
  • Дякую 1
Посилання на коментар
Поділитися на інших сайтах

  • 2 тижні потому...
В 19.06.2023 в 12:11, Dr.Yura сказал:

неприємним моментом є коли пар конденсується випадають капельки якраз на лежак зі стелі.

"Ключовим моментом" є -«конденсується»😥...

В 20.06.2023 в 19:15, Vstar сказал:

Так гарячі крапельки скрапують на розігріте тіло, а чому це не приємно?

 ...🤔навряд чи вдасться отримати "гарячі крапельки "на розігріте тіло..

 ..після фазового переходу ,конденсат залише енергію тепла на відносно холодній стелі..

 "гарячі крапельки"можна отримати з"гарячої" поверхні ,(як в банях Маслова) але на "гарячій стелі" не відбудеться конденсації ..

 тут вже діло уподобань ,-«купол з зірками " та "контрастним дощем "..,-або підігрітий купол без конденсату...😎

  • Лайк 1
Посилання на коментар
Поділитися на інших сайтах

Все, що до тіла торкається від 36 градусів, по відчуттям гаряче. На смак і колір... кожному різне ).

Прошу уточнити, Ви вважаєте, що стеля у формі купола в Хамам не потрібна? Не зовсім розумію

Посилання на коментар
Поділитися на інших сайтах

53 минуты назад, Vstar сказал:

Все, що до тіла торкається від 36 градусів, по відчуттям гаряче

 тобто ..,маємо розуміти,що Т*поверхні купола 36+(за Цельсієм ?)

 

59 минут назад, Vstar сказал:

На смак і колір... кожному різне ).

Я так само , сказав вище...

 

1 час назад, Vstar сказал:

Ви вважаєте, що стеля у формі купола в Хамам не потрібна?

навпаки,я переконаний в ідеалі такого рішення !🤗..але ж мова йшла не про "геометрію",а про "фізику",та очікуванні наслідки.

  • Лайк 1
Посилання на коментар
Поділитися на інших сайтах

3 хвилини тому, termOS сказав:

тобто ..,маємо розуміти,що Т*поверхні купола 36+(за Цельсієм ?)

Я зможу перевірити тепловізором температуру як завершу роботи. Якщо цікаво, можу навіть прозвітувати з фото тут )

Посилання на коментар
Поділитися на інших сайтах

2 години тому, Vstar сказав:

Все, що до тіла торкається від 36 градусів, по відчуттям гаряче. На смак і колір... кожному різне ).

Прошу уточнити, Ви вважаєте, що стеля у формі купола в Хамам не потрібна? Не зовсім розумію

проблема не в формі куполу, я писав що каплі зриваються і падають на людину в тому місці де купол переходить в плоску стелю малюнок 1

я був в іншій парній там стеля була овалом малюнок 2

 

parna_kupol.jpg

Посилання на коментар
Поділитися на інших сайтах

  • 2 тижні потому...

Вітаю!

Завершив оздоблення приміщення.

Приміщення маленьке і об'єктив телефона не захвачує сприйняття в живу.

20230717_222622.thumb.jpg.c25b1bbc490bc0e6de88c99aa212a16f.jpg

 

20230717_222757.thumb.jpg.755b9af2a6ea6cef82cd0a657d599085.jpg

 

20230717_222833.thumb.jpg.2614d0151449c8408c3933ff176c2489.jpg

 

20230717_222612.thumb.jpg.abe4aadc97d2d2c1855f49e2be844ad3.jpg

20230717_222538.thumb.jpg.d9c94814045dde59bc1da10c03025236.jpg

Результатом задоволений.

 

  • Лайк 6
Посилання на коментар
Поділитися на інших сайтах

Змонтував на плануєме місце парогенератор та підключив тимчасово

20230717_224630.thumb.jpg.ee9dbcaf7e4410002c28d238a97d7adf.jpg

Не втримався і запустив.

В цілому задоволений, прогрівається приміщення за 1,5 год повністю.

Притока повітря під дверима хватає (були думки монтувати приточний вентилятор але не потрібно).

Лежаки і стіни прогріті дуже рівномірно, брав тепловізор показав рівномірне прогрівання стін та лежака.

Що б я не робив: нагрівальний кабель змонтований по лежаках та стінах - це зайве. Треба було лише на підлогу змонтувати.

 

Що далі:

Адаптую в парогенератор аромоподачу ефірного масла і звісно оздоблення плиткою.

  • Лайк 2
Посилання на коментар
Поділитися на інших сайтах

18.07.2023 в 11:31, Vstar сказав:

Лежаки і стіни прогріті дуже рівномірно, брав тепловізор показав рівномірне прогрівання стін та лежака.

 

стіни і лежаки прогрілись від цього парогенератора?

запитую тому що  в парній про яку я писав там власники забували кілька разів включити підігрів лежаків, вони були прохолодні, це не приємно, згодом вони прогрівались трохи через +-2 години.

  • Лайк 1
Посилання на коментар
Поділитися на інших сайтах

Створіть акаунт або увійдіть у нього для коментування

Ви маєте бути користувачем, щоб залишити коментар

Створити акаунт

Зареєструйтеся для отримання акаунта. Це просто!

Зареєструвати акаунт

Увійти

Вже зареєстровані? Увійдіть тут.

Увійти зараз
×
×
  • Створити...