jordano Опубліковано: 29 липня 2023 Поділитись Опубліковано: 29 липня 2023 (змінено) Доброго дня усім. Тема про будівництво маленького каркасника. Збирався будувати будинок по більше і не каркасник, але війна внесла свої корективи, тож вирішив почати з маленького каркасника, та залишити місто для майбутнього будинка. Змінено 29 липня 2023 користувачем jordano 1 Посилання на коментар Поділитися на інших сайтах More sharing options...
jordano Опубліковано: 29 липня 2023 Автор Поділитись Опубліковано: 29 липня 2023 (змінено) Ділянку приватизував два роки тому, вийшло безкоштовно, та почав з доведення його до ладу і посадки винограду Змінено 29 липня 2023 користувачем jordano 3 Посилання на коментар Поділитися на інших сайтах More sharing options...
jordano Опубліковано: 29 липня 2023 Автор Поділитись Опубліковано: 29 липня 2023 Цього року почав с забору, його було треба робити навколо всій ділянки, задоволення не дешеве, 3000 у.о. 1 Посилання на коментар Поділитися на інших сайтах More sharing options...
jordano Опубліковано: 29 липня 2023 Автор Поділитись Опубліковано: 29 липня 2023 (змінено) Вирішив що каркас будинку треба щоб хтось збудував, а все інше буду робити сам, тож згадав одну фірму яка у нас в основному виробляє кроквяні ферми, та іноді каркасні будинки, та домовився з ними про будівництво будинку. Вирішили що вони будують поли з утепленням, каркаси стін, та дах з покриттям. Змінено 29 липня 2023 користувачем jordano 2 Посилання на коментар Поділитися на інших сайтах More sharing options...
jordano Опубліковано: 29 липня 2023 Автор Поділитись Опубліковано: 29 липня 2023 Далі треба було зробити якийсь фундамент, вирішив зробити палі тесе, тож купив бур тисе та взяв в оренду мотобур, та почав робити ями під палі. Опалубку вище землі зробив з рубероїду та підкладочного килима, те що купив із самого дешевого в акваізолі. Нав'язав арматурні каркаси та взяв будівельну тачку, замовив 3 куби бетону, позвав друга та разом залили. Десь 6 днів на це пішло. Разом з цим забетонував швелер під ворота. 2 Посилання на коментар Поділитися на інших сайтах More sharing options...
jordano Опубліковано: 29 липня 2023 Автор Поділитись Опубліковано: 29 липня 2023 (змінено) Далі треба було підвести трубу для води та прокласти каналізаційні труби туди де вони будуть заходити в будинок. Трубу для води обмотав гріючим кабелем, засунув в каучукову ізоляцію і обернув ще скорлупою із ппу. Змінено 29 липня 2023 користувачем jordano 2 Посилання на коментар Поділитися на інших сайтах More sharing options...
OlegArh Опубліковано: 29 липня 2023 Поділитись Опубліковано: 29 липня 2023 (змінено) Успіхів та вдачі! Це стандартний модульний будинок, чи індівідуальна розробка? Скількі беруть сьогодні за монтаж каркасу: чи за кв. метр, чі за якусь іньшу одиницю виміру. Дякую. Підписався. Змінено 29 липня 2023 користувачем OlegArh 1 Посилання на коментар Поділитися на інших сайтах More sharing options...
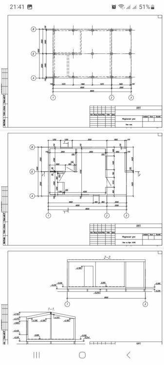
jordano Опубліковано: 29 липня 2023 Автор Поділитись Опубліковано: 29 липня 2023 З виробником будинка домовились що каркас зроблять із модулей, які удобно транспортувати і збирати на ділянці. Тож через 2 тижні він був вже готовий, але я ще тиждень робив фундамент. Привезли маніпулятором, їм встановили нижнє перекриття, вигрузили стіни і почали збирати. Боявся що не попаду в закладні, але все пройшло добре. 2 Посилання на коментар Поділитися на інших сайтах More sharing options...
jordano Опубліковано: 29 липня 2023 Автор Поділитись Опубліковано: 29 липня 2023 (змінено) 20 хвилин тому, OlegArh сказав: Успіхів та вдачі! Це стандартний модульний будинок, чи індівідуальна розробка? Яке зовнішне покриття стіни - OSB, чі укосіни та щось іньше? Скількі беруть сьогодні за монтаж каркасу: чи за кв. метр, чі за якусь іньшу одиницю виміру. Може викладете креслення розв`ертки стіни - просто цікаво. Дякую. Підписався. Не стандартний, але за основу був взятий сканді 2, змінив планування, і мені спроектували під мої забаганки. Пиріг перекриття полу знизу вверх- оцинкований лист, осб 10 мм, утеплення 200 мм, осб 22, стіни профлист, вітрозахист, утеплення 150 мм, пароізоляція, імітація бруса, дах утеплення 200 мм. По цінам краще до виконавців www.drevkon.com.ua/ . Я ще не розрахувався, пару днів ще треба, метал чекаємо на дах. Змінено 29 липня 2023 користувачем jordano 2 Посилання на коментар Поділитися на інших сайтах More sharing options...
OlegArh Опубліковано: 29 липня 2023 Поділитись Опубліковано: 29 липня 2023 4 минуты назад, jordano сказал: Не стандартний, але за основу був взятий сканді 2, змінив планування, і мені спроектували під мої забаганки. Пиріг перекриття полу знизу вверх- оцинкований лист, осб 10 мм, утеплення 200 мм, осб 22, стіни профлист, вітрозахист, утеплення 150 мм, імітація бруса, дах утеплення 200 мм. По цінам краще до виконавців www.drevkon.com.ua/ . Я ще не розрахувався, пару днів ще треба, метал чекаємо на дах. Буцім то нічого, окрім оцинковки знизу перекриття - буде конденсат, та за пару років нижня OSB запліснявіє, завоняє та потрощиться. Краще його демонтувати, а замість нього, від гризунів, встановити сітку із "очком" 5-10 мм. Цие ІМХО, та за досвідом. 1 Посилання на коментар Поділитися на інших сайтах More sharing options...
jordano Опубліковано: 29 липня 2023 Автор Поділитись Опубліковано: 29 липня 2023 (змінено) Лобову буду переробляти, один одного не зрозуміли ми, буде заподліцо з стіною Змінено 29 липня 2023 користувачем jordano 1 Посилання на коментар Поділитися на інших сайтах More sharing options...
jordano Опубліковано: 29 липня 2023 Автор Поділитись Опубліковано: 29 липня 2023 (змінено) 3 хвилини тому, OlegArh сказав: Буцім то нічого, окрім оцинковки знизу перекриття - буде конденсат, та за пару років нижня OSB запліснявіє, завоняє та потрощиться. Краще його демонтувати, а замість нього, від гризунів, встановити сітку із "очком" 5-10 мм. Цие ІМХО, та за досвідом. Навесні подивлюсь, та може демонтую Змінено 29 липня 2023 користувачем jordano Посилання на коментар Поділитися на інших сайтах More sharing options...
volkoff Опубліковано: 29 липня 2023 Поділитись Опубліковано: 29 липня 2023 44 минуты назад, jordano сказал: Не стандартний, але за основу був взятий сканді 2, змінив планування, і мені спроектували під мої забаганки. Пиріг перекриття полу знизу вверх- оцинкований лист, осб 10 мм, утеплення 200 мм, осб 22, стіни профлист, вітрозахист, утеплення 150 мм, пароізоляція, імітація бруса, дах утеплення 200 мм. По цінам краще до виконавців www.drevkon.com.ua/ Ви хоть поцiкавились шо це за плити ДCП?...Цi плити дуже "фонять" фольмардегiдами у теплi, а вони у вас скрiзь i всюди). Я з таких плит собаки будку не хотiв робити, а ви собi времянку не ясно на який срок. 1 Посилання на коментар Поділитися на інших сайтах More sharing options...
jordano Опубліковано: 29 липня 2023 Автор Поділитись Опубліковано: 29 липня 2023 Ну не скрізь, близько тільки на полу, на стінах до них 150 мм утеплення, а так у нас і заводи добре "фонять" 1 Посилання на коментар Поділитися на інших сайтах More sharing options...
romaniff Опубліковано: 1 серпня 2023 Поділитись Опубліковано: 1 серпня 2023 (змінено) В 29.07.2023 в 19:50, OlegArh сказал: Буцім то нічого, окрім оцинковки знизу перекриття - буде конденсат, та за пару років нижня OSB запліснявіє, завоняє та потрощиться. Краще його демонтувати, а замість нього, від гризунів, встановити сітку із "очком" 5-10 мм. Цие ІМХО, та за досвідом. Приєднуюсь до зауваження - знизу перекриття краще зняти профлист, бо він працює як пароізоляція - може сутево нашкодити, стати причиною накопичення вологи в нижньому перекриті! Живимо 7 років в каркаснику. Пиріг зверзу вниз - осб22, утеплення між лаг 200мм, потім додатково утеплення 50мм степлером перпендикулярно лагам, вітрозахістна мембрана на степлер, дві кішки. Зрозуміло, хотів би змонтувати сітку 0,5х0,5мм, але це дуже дорого, а більшого розміру сутку недоцільно. Поки кішки рятують - у хаті за весь час мишей не помічено, крім єдиної, якую кішка принесла з тераси похизуватись перед нами. Змінено 1 серпня 2023 користувачем romaniff 2 Посилання на коментар Поділитися на інших сайтах More sharing options...
jordano Опубліковано: 3 серпня 2023 Автор Поділитись Опубліковано: 3 серпня 2023 Накрився. Хлопці з компанії Древкон закінчили свою роботу. Дякую їм, все зроблено добре, так як і замовляв, все в рамках проекту та кошторису, робота зайняла п'ять днів. Далі вікна та зовнішня зашивка. 6 Посилання на коментар Поділитися на інших сайтах More sharing options...
tayatlas Опубліковано: 4 серпня 2023 Поділитись Опубліковано: 4 серпня 2023 Утепление слабовато, а это дополнительные расходы на отопление. Из личного опыта: потолок и пол - не менее 250 мм (а лучше 300), стены - не менее 200 мм (а лучше 250). В этом случае в каркаснике (или любом другом доме из инертных материалов) наблюдается "паритет" температур: при измерении пирометром температуры стен и потолока показатели поверхностей равны показателям внутреннего воздуха на высоте 1,5 м 2 Посилання на коментар Поділитися на інших сайтах More sharing options...
newbee2020 Опубліковано: 6 серпня 2023 Поділитись Опубліковано: 6 серпня 2023 підскажіть все таки по ціні за метр такої коробки Посилання на коментар Поділитися на інших сайтах More sharing options...
jordano Опубліковано: 6 серпня 2023 Автор Поділитись Опубліковано: 6 серпня 2023 (змінено) Del Змінено 6 серпня 2023 користувачем jordano Посилання на коментар Поділитися на інших сайтах More sharing options...
jordano Опубліковано: 6 серпня 2023 Автор Поділитись Опубліковано: 6 серпня 2023 51 хвилину тому, newbee2020 сказав: підскажіть все таки по ціні за метр такої коробки Десь 170 2 2 Посилання на коментар Поділитися на інших сайтах More sharing options...
djokoo Опубліковано: 7 жовтня 2023 Поділитись Опубліковано: 7 жовтня 2023 Як будівництво проживає? 1 Посилання на коментар Поділитися на інших сайтах More sharing options...
jordano Опубліковано: 10 жовтня 2023 Автор Поділитись Опубліковано: 10 жовтня 2023 07.10.2023 в 22:32, djokoo сказав: Як будівництво проживає? Будую по трохи, встановили вікна та дверь, практично доробив фасад, сусід зварив відкатні ворота, далі септиком займусь поки погода ще дозволяє і буду внутри починати. 9 1 Посилання на коментар Поділитися на інших сайтах More sharing options...
vsv-avto Опубліковано: 11 жовтня 2023 Поділитись Опубліковано: 11 жовтня 2023 Доброго дня! Що за профлист на даху? Посилання на коментар Поділитися на інших сайтах More sharing options...
jordano Опубліковано: 11 жовтня 2023 Автор Поділитись Опубліковано: 11 жовтня 2023 (змінено) 1 година тому, vsv-avto сказав: Доброго дня! Що за профлист на даху? Однаковий на стінах та на даху tile.ua/falts-nastyl/ Змінено 11 жовтня 2023 користувачем jordano 2 Посилання на коментар Поділитися на інших сайтах More sharing options...
Рекомендовані повідомлення
Створіть акаунт або увійдіть у нього для коментування
Ви маєте бути користувачем, щоб залишити коментар
Створити акаунт
Зареєструйтеся для отримання акаунта. Це просто!
Зареєструвати акаунтУвійти
Вже зареєстровані? Увійдіть тут.
Увійти зараз