DVIJOK Опубліковано: 7 вересня 2023 Поділитись Опубліковано: 7 вересня 2023 Не совсем барнхаус, просто по стилю ближе именно к ним. Можно сказать модернизированный. В общем 2 постройка от коллаборации BarnCulture. Первая тут. За время между двумя стройками произшло очень много событий, от волонтерства и квадроведения, до проектирования еще нескольких барнов и модульных домов для переселенцев. Но в итоге к нам пришел заказчик и сказал - я хотеть. Ну раз ты хотеть - мы строить. Проектирование этого дома пошло быстрее, но пришлось решать ряд вопросов связанных... эээ... с безопасностью. Понятное дело, что даже от непрямого попадания не спасет, а вот от обломков после работы пво вполне. Ну и грунты, межосевой шаг, металлические рамы и некоторые другие параметры, продиктовали первый этаж из бетона. Точнее из перлитобетона, с последущим утеплением. Второй этаж уже деревянный конструктив, тобишь каркасник. Все технологии отработаны на первой стройке, поэтому кто следил за темой, поймут о чем я... да да, те самые параллельные стенам стропила, те самые металлические рамы и те самые замечания - у вас все сгниет, так это не работает, вы все неправильно делаете и вообще все развалиться Пока планы и картиночка. Далі буде. 14 Посилання на коментар Поділитися на інших сайтах More sharing options...
i.may Опубліковано: 8 вересня 2023 Поділитись Опубліковано: 8 вересня 2023 10 годин тому, DVIJOK сказав: пришел заказчик и сказал - я хотеть цікаво... Без тамбура? На першому поверсі мусово 2 душових? Зміст двох виходів з майстер-спальні? Яка варильна поверхня на вуличній кухні; чи є витяжка? 1 Посилання на коментар Поділитися на інших сайтах More sharing options...
DVIJOK Опубліковано: 8 вересня 2023 Автор Поділитись Опубліковано: 8 вересня 2023 1 час назад, i.may сказал: цікаво... Без тамбура? На першому поверсі мусово 2 душових? Зміст двох виходів з майстер-спальні? Яка варильна поверхня на вуличній кухні; чи є витяжка? Так, без. Тамбур, ще років з 10 назад став апендиксом у сучасних будинках. Все інше обговорювалось з замовником і планування це результат його бажань. Витяжка є. Буде поверхня чи ні, не принципово, це буде вирішуватись по факту. 1 1 Посилання на коментар Поділитися на інших сайтах More sharing options...
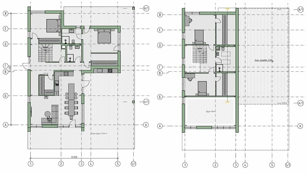
DVIJOK Опубліковано: 9 вересня 2023 Автор Поділитись Опубліковано: 9 вересня 2023 Форма участка и посадка здания. С посадкой определялись долго, вертели, крутили, делали забавные ролики с ходом тени... (у нас, у архитекторов это называется инсоляция :). Правда генплан еще не отработан, но в процессе. Так же несколько фоток самого участка. За деревья бились. Пытался посадить дом так, что бы уцелели все, но увы, некоторые пришлось убрать, так как оказались чуть подпорчеными и старенькими, а часть потому как мешали. Посадка дома2.mp4 5 Посилання на коментар Поділитися на інших сайтах More sharing options...
labuda Опубліковано: 12 вересня 2023 Поділитись Опубліковано: 12 вересня 2023 как планируете каркас террасы делать, бетон отливать? 1 Посилання на коментар Поділитися на інших сайтах More sharing options...
DVIJOK Опубліковано: 12 вересня 2023 Автор Поділитись Опубліковано: 12 вересня 2023 1 час назад, labuda сказал: как планируете каркас террасы делать, бетон отливать? Да, почти весь первый этаж с перекрытием это бетон Посилання на коментар Поділитися на інших сайтах More sharing options...
andry07 Опубліковано: 12 вересня 2023 Поділитись Опубліковано: 12 вересня 2023 В 07.09.2023 в 22:33, DVIJOK сказал: металлические рамы и некоторые другие параметры, продиктовали первый этаж из бетона. Точнее из перлитобетона, с последущим утеплением. Второй этаж уже деревянный конструктив, тобишь каркасник Металевий каркас, монолітний бетон та дерев'яний каркас в одному будинку..... На мій погляд не вистачає кілька несучих стін із цегли, щоб уже всі метеріали охопити. Посилання на коментар Поділитися на інших сайтах More sharing options...
DVIJOK Опубліковано: 12 вересня 2023 Автор Поділитись Опубліковано: 12 вересня 2023 4 минуты назад, andry07 сказал: Металевий каркас, монолітний бетон та дерев'яний каркас в одному будинку..... На мій погляд не вистачає кілька несучих стін із цегли, щоб уже всі метеріали охопити. Будуть перегородки з цегли. Наразі, не бачу нічого дивного - звичайна монолітна-каркасна технологія, яку застосовують повсемісно у багатоповерховому будівництві. Посилання на коментар Поділитися на інших сайтах More sharing options...
andry07 Опубліковано: 12 вересня 2023 Поділитись Опубліковано: 12 вересня 2023 27 минут назад, DVIJOK сказал: Наразі, не бачу нічого дивного - звичайна монолітна-каркасна технологія, яку застосовують повсемісно у багатоповерховому будівництві. Цікаво. І як в монолітно-каркасному багатоповерховому будівництві застосовують металеві рами? Я вже не питаю про дерев'яний каркас. Я не критикую, просто мені цікаво. В моєму розумінні є металевий несучий каркас із рам, зовнішні стіни ненесучі, або самонесучі. Нащо там там моноліт? Посилання на коментар Поділитися на інших сайтах More sharing options...
DVIJOK Опубліковано: 12 вересня 2023 Автор Поділитись Опубліковано: 12 вересня 2023 4 часа назад, andry07 сказал: Цікаво. І як в монолітно-каркасному багатоповерховому будівництві застосовують металеві рами? Я вже не питаю про дерев'яний каркас. Я не критикую, просто мені цікаво. В моєму розумінні є металевий несучий каркас із рам, зовнішні стіни ненесучі, або самонесучі. Нащо там там моноліт? Я розумію. Так, у монолітно каркасному доволі часто застосовують метал. Але... ну треба визнати, не так як у нас. Частково у темі про перший барнхаус я розповідав навіщо рами. В даному випадку, рами це несучий каркас для покрівлі і, як не дивно, інтер'єр. Моноліт вирішено було зробити тому, що (це було вирішено тількі після кількох етапів консультацій) - по-перше, ми не хотіли влазити у дерев'яні перекриття, навіть на частковому металевому каркасі. До того ж, його треба на щось міцне спирати, вирішили саме на моноліт, він дозволяє зробити стіну тоньше аніж у цеглі, чи, прости господи у газобетоні. По-друге рами доволі високі і щоб іх закріпити (а їх хитає без бокових зв'язків) ми анкеримо їх у бетон першого рівня, і це нівелює декілька проблем. По-трете, замовник свідомо відмовися від сховища (читай льоху ) тому моноліт це вирішення, хоча і часткове, безпеки. Посилання на коментар Поділитися на інших сайтах More sharing options...
andry07 Опубліковано: 12 вересня 2023 Поділитись Опубліковано: 12 вересня 2023 Дякую за розгорнуту відповідь. Хоча, на мій погляд, простіше було виставити рами, між ними кинути металеві балки, на які оперти плити перекриття та поставити вертикальні зв'язки. Класичне каркасне рішення. А розглядати бетонні стіни першого поверху як сховище при таких прорізах я б не став. Краще зробіти тільки стіни санвузла з бетону. Посилання на коментар Поділитися на інших сайтах More sharing options...
DVIJOK Опубліковано: 13 вересня 2023 Автор Поділитись Опубліковано: 13 вересня 2023 15 часов назад, andry07 сказал: Дякую за розгорнуту відповідь. Хоча, на мій погляд, простіше було виставити рами, між ними кинути металеві балки, на які оперти плити перекриття та поставити вертикальні зв'язки. Класичне каркасне рішення. А розглядати бетонні стіни першого поверху як сховище при таких прорізах я б не став. Краще зробіти тільки стіни санвузла з бетону. Проходили. Але це класичне рішення для промислових споруд. Тим більше шо вартість металу в такому випадку, буде перекривати відлив з бетону. Та і точкові опори на ті грунти не прокатять, в нас подушка тількі 800х300 для утримання периметру та опору. Посилання на коментар Поділитися на інших сайтах More sharing options...
DVIJOK Опубліковано: 13 вересня 2023 Автор Поділитись Опубліковано: 13 вересня 2023 Цікаве відео з коптеру. І так, дозвіл військових був. Ground3.mp4 1 Посилання на коментар Поділитися на інших сайтах More sharing options...
volkoff Опубліковано: 14 вересня 2023 Поділитись Опубліковано: 14 вересня 2023 В 07.09.2023 в 22:33, DVIJOK сказал: Не совсем барнхаус, просто по стилю ближе именно к ним. Можно сказать модернизированный. В общем 2 постройка от коллаборации BarnCulture. Первая тут. Ну,если Вы выставляете на загал,то можно критиковать "от и до"-).. Я посмотрел по первому вашему "Барну" то если не ошибаюсь, те конструкции из "двутавров" сваренные -они наверное по дол. 600 одна шт.(метал с работой) На тот момент -это четверть суммы от"коробки"из кер-блоков. А по всей коробке с материалами и тройной работой -это намного дороже от коробки из кер-блоков в комплексе.(прикидывали с приятелем), или заказчику пофигу с удорожанием? В 07.09.2023 в 22:33, DVIJOK сказал: Но в итоге к нам пришел заказчик и сказал - я хотеть. Ну раз ты хотеть - мы строить. И этому заказчику тоже пофигу (по деньгам) главное такую "колибу"?).. А какая цена (м2 или м3) перлитобетона, и это с армированием?..и какое утепление будет?,может здесь тоже дороже керамических стен с перекрытием в целом. Я смотрел примерно такие же проекты (Польские)так у них из кер-блока,вот один из них -фото. И этот проект более симпатичен и с Перголой в лучшем варианте. 2 Посилання на коментар Поділитися на інших сайтах More sharing options...
DVIJOK Опубліковано: 15 вересня 2023 Автор Поділитись Опубліковано: 15 вересня 2023 21 час назад, volkoff сказал: Я посмотрел по первому вашему "Барну" то если не ошибаюсь, те конструкции из "двутавров" сваренные -они наверное по дол. 600 одна шт.(метал с работой) На тот момент -это четверть суммы от"коробки"из кер-блоков. А по всей коробке с материалами и тройной работой -это намного дороже от коробки из кер-блоков в комплексе.(прикидывали с приятелем), или заказчику пофигу с удорожанием? Честно, я не помню куда задевал смету, искать ее сейчас лень, поэтому не скажу сколько стоили на тот момент. Мы не рассматривали тогда керамоблок, так как при этой технологии он не нужен. Все нужно считать. В данном обьекте мы вроде как на начальном этапе рассматривали керамоблок, но без рам. Я уже не помню суть разговора, но от керамики отказались. 21 час назад, volkoff сказал: И этому заказчику тоже пофигу (по деньгам) главное такую "колибу"?).. Первым заказчиком были мы сами. У этого денег не считал, он посмотрел и сказал хорошо. 21 час назад, volkoff сказал: А какая цена (м2 или м3) перлитобетона, и это с армированием?..и какое утепление будет?,может здесь тоже дороже керамических стен с перекрытием в целом. Только по материалам, где-то 5 - 5,5 т м3 вместе с армировкой, сейчас как раз идет вязка каркаса и заливка. Да, утепление будет. Может дороже, для керамики нужно отливать усиленную плиту, в наших условиях. 22 часа назад, volkoff сказал: Я смотрел примерно такие же проекты (Польские)так у них из кер-блока,вот один из них -фото. И этот проект более симпатичен и с Перголой в лучшем варианте. Все проекты из каталогов, это кот в мешке. Я за свою практику еще не видел каталожников, которые не переделывались бы. Если нравиться - на здоровье. Я таких валом видел на газобетоне, они еще дешевле. Посилання на коментар Поділитися на інших сайтах More sharing options...
DVIJOK Опубліковано: 15 вересня 2023 Автор Поділитись Опубліковано: 15 вересня 2023 Посилання на коментар Поділитися на інших сайтах More sharing options...
volkoff Опубліковано: 15 вересня 2023 Поділитись Опубліковано: 15 вересня 2023 19 минут назад, DVIJOK сказал: Все нужно считать. В данном обьекте мы вроде как на начальном этапе рассматривали керамоблок, но без рам. Я уже не помню суть разговора, но от керамики отказались. Ну и зря! ).. Может не тот кер-блок считали, я имею ввиду по "теплопроводности и комплектности", потому как нет ни у кого (из аналогов) такой комплектности и по коефф.(R) как у Хелуз. Я с ними уже лет шесть сотрудничаю, и лучше по качеству и теплопроводности нет ни у кого(даже немцы-Венербергер уступают по прочности и "R"), тут - https://www.stroimdom.com.ua/topic/228712-teplaya-keramika-heluz-family-dymohody-rolletperemychki-teploe-keramperekrytie/?do=getNewComment Возьмем в пример по внутренним перегородкам, там в цену блока входит -"клей,анкера,перемычки". И есть такие спец-блоки с М200 (AKU-акустические) которых кстати так же нет у аналогов и так же "перемычки(3в1)ролетные" на внешние стены. И можно быстрее делать кладку "лего" без остановки по сравнению с др. материалами. (и вспомагательные мат. не нужны,как при др.мат.) Те же дымоходы и вент-каналы которые покупаете у др.фирмах, а у Хелуз они дешевле в комплексе. Так же и с перекрытием и др. 19 минут назад, DVIJOK сказал: Только по материалам, где-то 5 - 5,5 т м3 вместе с армировкой, сейчас как раз идет вязка каркаса и заливка. Да, утепление будет. Может дороже, для керамики нужно отливать усиленную плиту, в наших условиях. Какую плиту "усиленную" нужно отливать? ).. (вы имеете ввиду по "нагрузке-тоннаж") я вас уверяю,что коробка из ГБ может быть тяжелее с её армопоясами,арматурой,плитами и др. (возможно будет легче "м2"стены и от этого полистирол-бетона с его армир.доп-утеплением) Наверное такой бетон с полистирол шариками (фото) но, у него по коефф. на толщину-40см. по моему(R=2,8) как пояснял мне инженер с этого предприятия,то еще его нужно до утеплять, минимум (100мм.)ваты. Выходит что, с полистирол-бетон,армировка и утепление с двойной работой по каждому виду мат. -это примерно в полтора раза будет дороже от кер-блока в комплексе, которого утеплять не нужно.(все на теплых клеях) Там еще новинки по дверям и стеклопакетам,напишу в ЛС. 2 Посилання на коментар Поділитися на інших сайтах More sharing options...
andry07 Опубліковано: 15 вересня 2023 Поділитись Опубліковано: 15 вересня 2023 23 минуты назад, volkoff сказал: нет ни у кого (из аналогов) 24 минуты назад, volkoff сказал: кстати так же нет у аналогов аналагавнет. десь я це вже чув..... 1 3 1 Посилання на коментар Поділитися на інших сайтах More sharing options...
volkoff Опубліковано: 15 вересня 2023 Поділитись Опубліковано: 15 вересня 2023 20 минут назад, andry07 сказал: аналагавнет. десь я це вже чув..... "Чув дзвiн,та не тямиш i не знаеш де вiн").. ехх, диванi специ, (менi сподобалось на ютубi), як той офiцер з передка розказував -цi диванi специ пишуть на ФБ, "та шо не можна по бистрому пройти тi мiнi поля,трашеi", а ви встаньте з диванiв i покажiть як це робить!)...так i тут, покажiть де i у кого! 1 Посилання на коментар Поділитися на інших сайтах More sharing options...
Яло Опубліковано: 16 вересня 2023 Поділитись Опубліковано: 16 вересня 2023 Скління планується з фасадної системи? Посилання на коментар Поділитися на інших сайтах More sharing options...
DVIJOK Опубліковано: 16 вересня 2023 Автор Поділитись Опубліковано: 16 вересня 2023 5 часов назад, Яло сказал: Скління планується з фасадної системи? напевно. А є варіанти? Посилання на коментар Поділитися на інших сайтах More sharing options...
Яло Опубліковано: 16 вересня 2023 Поділитись Опубліковано: 16 вересня 2023 5 часов назад, DVIJOK сказал: напевно. А є варіанти? Ні. Варіантів немає. Такі розміри лише з фасадної системи. Або робити якісь пермички по горизонталі. Посилання на коментар Поділитися на інших сайтах More sharing options...
DVIJOK Опубліковано: 3 жовтня 2023 Автор Поділитись Опубліковано: 3 жовтня 2023 Уважаемые производители, давайте лучше в личку. Не нужно писать тут наводящие вопросы и якобы вытягивать из ответов напрашивающиеся выводы. Если вы хотите зайти на обьект, давайте сразу в личку ваши предложения по просчетам, проекту и скидкам Так, продолжаем разговор. Залили подушку. Бетонную. На подушку залили стенки фундамента, толщиной 200 мм и к ним же присобачили стаканы под наши мет. рамы. Сказать, что это сложные узлы для такого обьекта, это ни сказать ничего - промудохались однозначно. К сожалению, в данном случае, получили из упрощения монтажа, гемморой. Кто помнит, на предыдущем обьекте, мы рамы приваривали к закладным. Тогда, посчитали это за ошибку и решили упростить монтаж, заведением рам в стаканы и последующим обмоноличиваем (если есть такой термин:). После того, как все связали, сделали опалубку, залили, пришло осознание того, что нужно было применять именно предыдущий метод монтажа - сварку на закладную. В этот раз у нас рамы имеют несколько точек крепления в монолит, и это избавляет от закрепления в стакан. Но увы, хорошая мысля, приходит опосля. Зато теперь будем знать, вариантов не осталось :). Нет, это не про*б, это обыкновенная работа и опыт. Посилання на коментар Поділитися на інших сайтах More sharing options...
andry07 Опубліковано: 3 жовтня 2023 Поділитись Опубліковано: 3 жовтня 2023 8 часов назад, DVIJOK сказал: решили упростить монтаж, заведением рам в стаканы и последующим обмоноличиваем Нічого не зрозуміло. Ви хотіли зробити з моноліту стакани як для збірних залізобетонних колон? Щось накшталт такого: Посилання на коментар Поділитися на інших сайтах More sharing options...
DVIJOK Опубліковано: 3 жовтня 2023 Автор Поділитись Опубліковано: 3 жовтня 2023 1 минуту назад, andry07 сказал: Нічого не зрозуміло. Ви хотіли зробити з моноліту стакани як для збірних залізобетонних колон? Щось накшталт такого: Чого не зрозуміло, коли ви самі все правильно написали. Вже зробили. 1 Посилання на коментар Поділитися на інших сайтах More sharing options...
Рекомендовані повідомлення
Створіть акаунт або увійдіть у нього для коментування
Ви маєте бути користувачем, щоб залишити коментар
Створити акаунт
Зареєструйтеся для отримання акаунта. Це просто!
Зареєструвати акаунтУвійти
Вже зареєстровані? Увійдіть тут.
Увійти зараз