ajeksa Опубліковано: 7 грудня 2009 Поділитись Опубліковано: 7 грудня 2009 "Если Всевышний не построит дома, и человек не построит..." Итак, имею мечту, к 35 годам построить свой дом с фонтаном... В этом году купили небольшой участок (32мх44м) под Киевом, начали строительство дома. Буду рад критике, советам, подсказкам бывалых... 1 Посилання на коментар Поділитися на інших сайтах More sharing options...
ajeksa Опубліковано: 7 грудня 2009 Автор Поділитись Опубліковано: 7 грудня 2009 Участок на момент покупки (начало июня): В июне я стал счастливым обладателем собственного кусочка земли... Чем-то чувствую, что принесет мне это много хлопот и забот... но с Богом... Посилання на коментар Поділитися на інших сайтах More sharing options...
ajeksa Опубліковано: 7 грудня 2009 Автор Поділитись Опубліковано: 7 грудня 2009 Устанавливаем красную метку (уровень) к которому будем приводить плоскость участка. Использовав пакет мела наносим разметку котлована под дом. Посилання на коментар Поділитися на інших сайтах More sharing options...
ajeksa Опубліковано: 7 грудня 2009 Автор Поділитись Опубліковано: 7 грудня 2009 30 Июля начинаем копать котлован... от красной метки водяным уровнем переносим отметки, контролируем глубину котлована... Тракторист выкопал яму котлована по водяному уровню, выдержал плоскость +- 5-10 см. Посилання на коментар Поділитися на інших сайтах More sharing options...
ajeksa Опубліковано: 7 грудня 2009 Автор Поділитись Опубліковано: 7 грудня 2009 Котлован копали в течении 3-х дней, в Августе приступили к разметке. Нанесли разметку, проверяя уровень. Ровнять после трактора котлован почти не пришлось. п.с. Проверка углов по формуле 3-4-5, позволила довольно быстро получить ровные углы, и одинаковые диагонали. Посилання на коментар Поділитися на інших сайтах More sharing options...
ajeksa Опубліковано: 7 грудня 2009 Автор Поділитись Опубліковано: 7 грудня 2009 Август вырыты траншеи под фундамент. Фундамент (до пола полуподвала) решили делать 60см шириной, 75см высотой, глубина залегания от красной метки 2,20. Посилання на коментар Поділитися на інших сайтах More sharing options...
ajeksa Опубліковано: 7 грудня 2009 Автор Поділитись Опубліковано: 7 грудня 2009 Под блоки уложили пирог 15см (щебень - 5см,песок - 1см, цемент -1см и т.д.) армируя 10мм арматурой в 4 жилы, обильно залили водой, получили монолитный армопояс Посилання на коментар Поділитися на інших сайтах More sharing options...
ajeksa Опубліковано: 7 грудня 2009 Автор Поділитись Опубліковано: 7 грудня 2009 После высыхания, нижний бетонный пояс готов к установке блоков. Бетон получился с голубоватым отливом, но крепкий. Посилання на коментар Поділитися на інших сайтах More sharing options...
НАТ М Опубліковано: 7 грудня 2009 Поділитись Опубліковано: 7 грудня 2009 "Если Всевышний не построит дома, и человек не построит..." Итак, имею мечту, к 35 годам построить свой дом с фонтаном... В этом году купили небольшой участок (32мх44м) под Киевом, начали строительство дома. Буду рад критике, советам, подсказкам бывалых... а проект есть? интересно увидеть - у нас тоже двухсемейный, сделан только цокольный этаж.... Посилання на коментар Поділитися на інших сайтах More sharing options...
ajeksa Опубліковано: 7 грудня 2009 Автор Поділитись Опубліковано: 7 грудня 2009 В сентябре завозим блоки на участок. Краской наносим на блоки пометки, а также на чертежи. Это нам позволило в момент установки четко понимать куда какой блок устанавливать. Также красной краской нанесли метки на бетонный пояс, по которым будем ровнять блоки. Посилання на коментар Поділитися на інших сайтах More sharing options...
ajeksa Опубліковано: 7 грудня 2009 Автор Поділитись Опубліковано: 7 грудня 2009 Да проект есть, но составленный нами. Выложу чуть ниже. Отец прораб, брат помогает, тоже строитель. Без них не потянул бы. Посилання на коментар Поділитися на інших сайтах More sharing options...
ajeksa Опубліковано: 7 грудня 2009 Автор Поділитись Опубліковано: 7 грудня 2009 Установка боков. Брат в белой кепке, белых штанах. На укладку блоков в помощь были взяты рабочие на жд.вокзале. Платили выше среднего, но и ребята постарались. Посилання на коментар Поділитися на інших сайтах More sharing options...
ajeksa Опубліковано: 7 грудня 2009 Автор Поділитись Опубліковано: 7 грудня 2009 Справа и слева фундаментных блоков уложили щебень пересыпая песком и цементом как пирог, заливая обильно водой. Подготовили опалубку, укрепили, подсыпкой... Посилання на коментар Поділитися на інших сайтах More sharing options...
ajeksa Опубліковано: 7 грудня 2009 Автор Поділитись Опубліковано: 7 грудня 2009 Опалубка была выставлена по уровню. Верхний бетонный армопояс залили при помощи миксера, что-бы получить ровную поверхность. Между бетонными блоками сразу заложены трубки для отвода влаги. Нет желания сверлить в будущем. Фундамент оставлен до весны. Пусть отстоится немного... Посилання на коментар Поділитися на інших сайтах More sharing options...
ajeksa Опубліковано: 7 грудня 2009 Автор Поділитись Опубліковано: 7 грудня 2009 Разметка участка, и расположение дома... типа генплан Посилання на коментар Поділитися на інших сайтах More sharing options...
ajeksa Опубліковано: 7 грудня 2009 Автор Поділитись Опубліковано: 7 грудня 2009 План полуподвала. рад разумной критике или замечаниям бывалых... Посилання на коментар Поділитися на інших сайтах More sharing options...
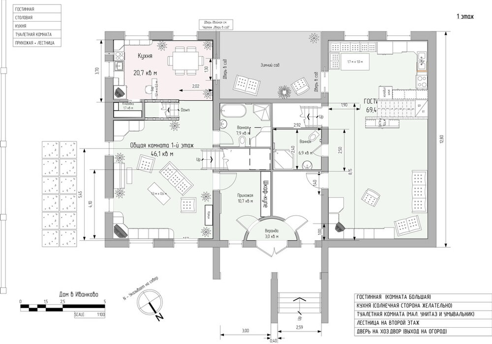
ajeksa Опубліковано: 7 грудня 2009 Автор Поділитись Опубліковано: 7 грудня 2009 План первого этажа... Посилання на коментар Поділитися на інших сайтах More sharing options...
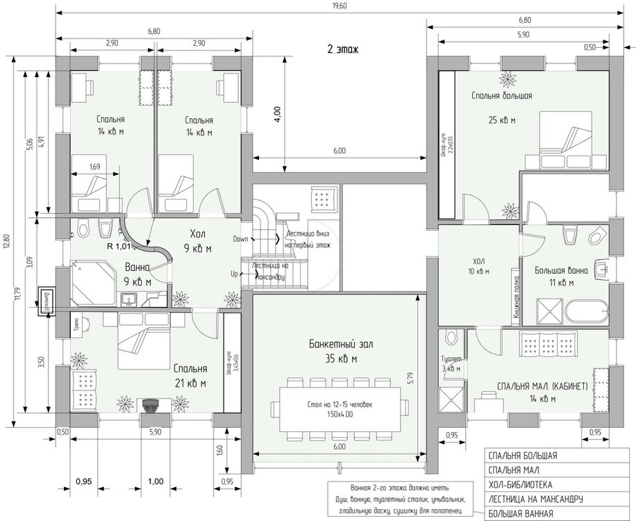
ajeksa Опубліковано: 7 грудня 2009 Автор Поділитись Опубліковано: 7 грудня 2009 План второго этажа... над правой половиной еще думаем... Посилання на коментар Поділитися на інших сайтах More sharing options...
Olena Опубліковано: 7 грудня 2009 Поділитись Опубліковано: 7 грудня 2009 Поздравляю с почином, а Иванково это где ? Посилання на коментар Поділитися на інших сайтах More sharing options...
ajeksa Опубліковано: 7 грудня 2009 Автор Поділитись Опубліковано: 7 грудня 2009 Поздравляю с почином, а Иванково это где ? 6км от Борисполя, по Харьковской трассе (Киевская обл.). Посилання на коментар Поділитися на інших сайтах More sharing options...
Olena Опубліковано: 7 грудня 2009 Поділитись Опубліковано: 7 грудня 2009 О, тогда мы соседи ! - но мы в селе построились (кстати, село - Иванков/Іванків , а Иванково - это котеджный городок в паре км по трассе). Посилання на коментар Поділитися на інших сайтах More sharing options...
ajeksa Опубліковано: 7 грудня 2009 Автор Поділитись Опубліковано: 7 грудня 2009 О, тогда мы соседи ! - но мы в селе построились (кстати, село - Иванков/Іванків , а Иванково - это котеджный городок в паре км по трассе). Мы строимся в с.Иванков. "Дом в Иванково" - это название нашего дома (проекта). Нам понравилась греческая традиция давать имена домам, вот и дали такое имя. ... когда закончим стройку, будет надпись большими буквами слева от входа... Посилання на коментар Поділитися на інших сайтах More sharing options...
Olena Опубліковано: 7 грудня 2009 Поділитись Опубліковано: 7 грудня 2009 Теперь понятно В селе много новых домов и церковь красивая - будет время прогуляйтесь обязательно Посилання на коментар Поділитися на інших сайтах More sharing options...
Славик Опубліковано: 13 грудня 2009 Поділитись Опубліковано: 13 грудня 2009 Привет соседям! Тоже строюсь в Иванкове. А Вы на какой улице? Посилання на коментар Поділитися на інших сайтах More sharing options...
ajeksa Опубліковано: 13 грудня 2009 Автор Поділитись Опубліковано: 13 грудня 2009 На крайней, если проехать под мостом, потом через центр по прямой до края... а вы? Посилання на коментар Поділитися на інших сайтах More sharing options...
Рекомендовані повідомлення
Створіть акаунт або увійдіть у нього для коментування
Ви маєте бути користувачем, щоб залишити коментар
Створити акаунт
Зареєструйтеся для отримання акаунта. Це просто!
Зареєструвати акаунтУвійти
Вже зареєстровані? Увійдіть тут.
Увійти зараз