parfserg Опубліковано: 29 грудня 2009 Поділитись Опубліковано: 29 грудня 2009 Рисую проект дома своей мечты. Стал вопрос о выборе камина . Заинтересовала возможность создания двустороннего (сквозного) камина через капитальную стену. Поиск в гугле и по форумам необходимого результата не принес. Просьба помогите советом кто когда-нибудь стыкался с таким ЧУДОМ. Посилання на коментар Поділитися на інших сайтах More sharing options...
Nykytos Опубліковано: 29 грудня 2009 Поділитись Опубліковано: 29 грудня 2009 (ссылка устарела) тут є двосторонній. В другому ряду справа. На сайті kratki.pl теж бачив, на одному з українських форумів бачив продавців Kratki. Посилання на коментар Поділитися на інших сайтах More sharing options...
parfserg Опубліковано: 29 грудня 2009 Автор Поділитись Опубліковано: 29 грудня 2009 Дякую, але цікавить більше сам спосіб монтажу цієї топки в стіну. Зацікавила тема "Камин отопительный" Alexander Pryakha www.stroimdom.com.ua/forum/showthread.php?t=24177 . Малюю щось подібне , але виникає багато запитань ? Через деякий час вимучу попередній ескіз для обговорення та критики Топку взагалі планую виготовити "сам" (з допомогою спеців :D) Посилання на коментар Поділитися на інших сайтах More sharing options...
parfserg Опубліковано: 8 січня 2010 Автор Поділитись Опубліковано: 8 січня 2010 В перервах між святами, ковбасами , горілкою %) був намальований ескіз моєї каміно-пічки. (ссылка на изображение устарела) Де було використано принцип "отопительного щитка". Переріз димових каналів рівний цеглині. Переріз труби рівний двом цеглинам. Щиток з каміном планується встановити в стіні (ссылка на изображение устарела) загальний вигляд (ссылка на изображение устарела) Ну і основне питання чи буде це працювати і з якими проблемами можна зіштовхнутися ? Дякую за відповіді. Посилання на коментар Поділитися на інших сайтах More sharing options...
Alexander Pryakha Опубліковано: 8 січня 2010 Поділитись Опубліковано: 8 січня 2010 Ну і основне питання чи буде це працювати і з якими проблемами можна зіштовхнутися ? Дякую за відповіді. Приветствую! Основных проблем вижу две 1. Осутствие прямоточного вертикального канала. Подумайте может стоит переставить топку под дымоход, а дымоходные каналы образовать симетрично с двух сторон? 2. Отсутствие газовой камеры - барабана, в который будут попадать дымовые газы при выходе из топки - перед тем как уйти по каналам печи. 2б. Герметичность входа дымовой трубы с топки при входе в кирпичную стену. Я думаю без газовой камеры - работать система будет плохо очень. Попробуйте увеличить максимально объем барабана - ведь основное тепло с дымовых газов будет оставаться в нем. Дом построен? А где будут лежать дрова? Топку может поднять на 5-6 рядов кирпича? Сажетруски внизу предусмотрите. Посилання на коментар Поділитися на інших сайтах More sharing options...
OlegOk Опубліковано: 30 березня 2011 Поділитись Опубліковано: 30 березня 2011 Да, строил такую вещь, есть фотографии Посилання на коментар Поділитися на інших сайтах More sharing options...
parfserg Опубліковано: 8 грудня 2011 Автор Поділитись Опубліковано: 8 грудня 2011 я уже построил такую вещь . фотографии виложу посже Посилання на коментар Поділитися на інших сайтах More sharing options...
Misha_k Опубліковано: 8 грудня 2011 Поділитись Опубліковано: 8 грудня 2011 Ну тогда интересен отчет о работе такой системы ибо.. 1. Двусторонние топки - докоративные топки, не печные. То есть топки не рассчитанные на интенсивную эксплуатацию для нагрева аккумуляционной массы. 2. Через 2 стекла уходит интенсивная потеря тепла через ИК и понижается температура в топочной камере. Поэтому, вижу следующие проблемы: 1 Топка в режиме нормальной работы рассчитанной производителем, не нагреет щиток до необходимой мощности. Сильно выстуженные дымовые газы, приведут к обильному сажеобразованию в каналах и конденсату. 2 Если будете топить в интенсивном режиме при полностью открытой подаче воздуха и максимальной соответственно температуре - просто тупо угробите топку. Посилання на коментар Поділитися на інших сайтах More sharing options...
gazon Опубліковано: 8 грудня 2011 Поділитись Опубліковано: 8 грудня 2011 Проблему может решить кирпичная топка. Посилання на коментар Поділитися на інших сайтах More sharing options...
parfserg Опубліковано: 8 грудня 2011 Автор Поділитись Опубліковано: 8 грудня 2011 Ще треба доробити двері зі склом та виконати декоративну обробку 2 Посилання на коментар Поділитися на інших сайтах More sharing options...
parfserg Опубліковано: 8 грудня 2011 Автор Поділитись Опубліковано: 8 грудня 2011 Працює краще ніж очікувалось. При розігріві топки конвекція теплого повітря пристойна (гасить при піднесенні до нижніх отворів сірник). Сама грубка прогрівається довго так , як стінки виконані товщиною 0,5 цеглини (а не на ребро цеглини), але довше і віддає тепло. Задумка була така : впершу чергу нагрівається металічна топка та конвективно віддає тепло; в той час же прогрівається і грубка яка віддає тепло пізніше після прогріву та загасання полум’я. Теплим повітрям обдувається дві кімнати по обидва боки від каміна+одна кімната та коридор на 2-поверсі. Є проблемка при розпалюванні (дим іде в приміщення), але при закритті топки бляхою все стає на свої місця. Так , що двері зі склом , я думаю, вирішать проблему. Всі роботи (крім зварювання) виконував сам + кладку допомагав робити сусід , який на відміну від мене до цього моменту "мастерок" в руках тримав . Але загальними зусиллями замісили глини , взяли "мастерки". закачали рукави і попекли :D По зарання пордуманій та заготовленій мною порядоці кладка пішла швидко та без недорузумінь. 1 Посилання на коментар Поділитися на інших сайтах More sharing options...
parfserg Опубліковано: 8 грудня 2011 Автор Поділитись Опубліковано: 8 грудня 2011 Да, строил такую вещь, есть фотографии Якщо можна виклади , будь-ласка Посилання на коментар Поділитися на інших сайтах More sharing options...
parfserg Опубліковано: 8 лютого 2012 Автор Поділитись Опубліковано: 8 лютого 2012 Почав виготовляти двері для топки. Фото початку процесу і попередній вигляд. 2 Посилання на коментар Поділитися на інших сайтах More sharing options...
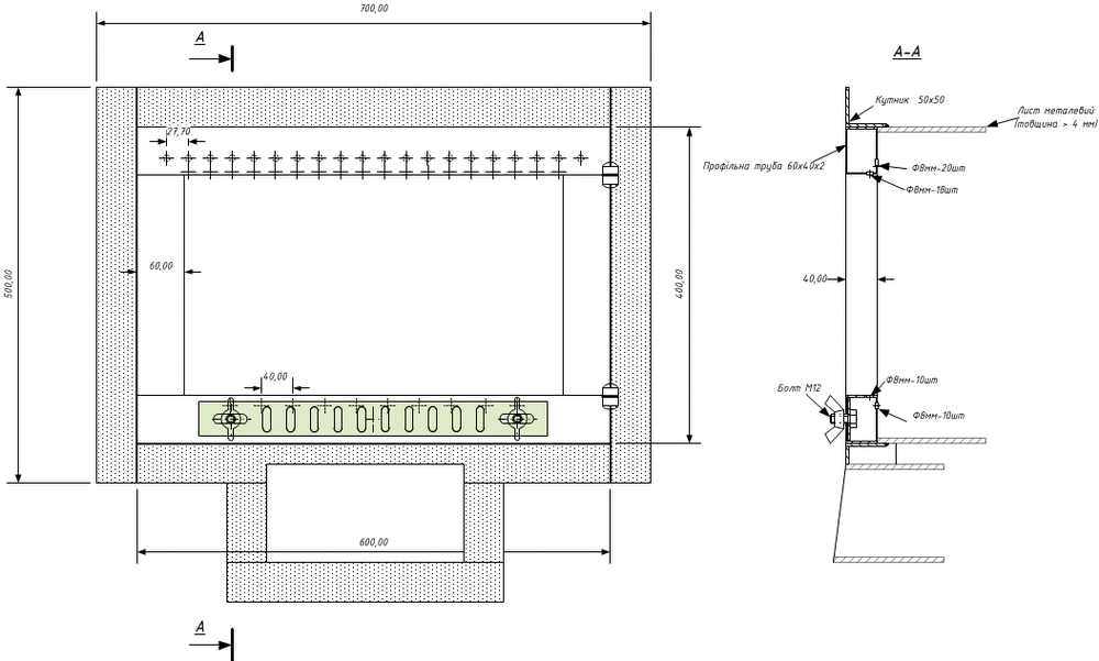
parfserg Опубліковано: 8 лютого 2012 Автор Поділитись Опубліковано: 8 лютого 2012 Ще креслення. 1 Посилання на коментар Поділитися на інших сайтах More sharing options...
parfserg Опубліковано: 11 лютого 2012 Автор Поділитись Опубліковано: 11 лютого 2012 Зробив ручки залишилось тільки приварити їх до дверцят. Максимально цікавіше намагався їх виконати. От що вийшло (гуси-лебеди :D) Посилання на коментар Поділитися на інших сайтах More sharing options...
parfserg Опубліковано: 11 лютого 2012 Автор Поділитись Опубліковано: 11 лютого 2012 А , ще правда на днях відбулася примірка дверцят до самої топки. Ніби все підійшло Посилання на коментар Поділитися на інших сайтах More sharing options...
parfserg Опубліковано: 11 лютого 2012 Автор Поділитись Опубліковано: 11 лютого 2012 (змінено) Купив герметик , чорну фарбу , ущільнюючі шнури для скла та дверцят (все вогнетривке). Змінено 11 лютого 2012 користувачем parfserg Посилання на коментар Поділитися на інших сайтах More sharing options...
Grand kamin Опубліковано: 12 лютого 2012 Поділитись Опубліковано: 12 лютого 2012 все это халтура как люди на такое ведуться. кладка как бык по-л красный кирпич на кладку а где огнеупорный кирпич что за лажа жуть Посилання на коментар Поділитися на інших сайтах More sharing options...
РОМАН ПЕРЕДЕРИЙ Опубліковано: 12 лютого 2012 Поділитись Опубліковано: 12 лютого 2012 Смысл это все городить проще печь кирпичную со стеклянной дверкой. Посилання на коментар Поділитися на інших сайтах More sharing options...
gazon Опубліковано: 12 лютого 2012 Поділитись Опубліковано: 12 лютого 2012 И че хаим человека? Сделал!...сам!...себе!... Как минимум получил удовольствие! Ну и пользу хоть какую. И весьма недурно как для первого раза. Может потом и переделает... Так на то его право распоряжаться своим временем и возможностями. И ошибки делать тоже его право. В общем молоток дядька! П.С. Неошибается тот кто ничего неделает. 1 Посилання на коментар Поділитися на інших сайтах More sharing options...
parfserg Опубліковано: 12 лютого 2012 Автор Поділитись Опубліковано: 12 лютого 2012 все это халтура как люди на такое ведуться. кладка как бык по-л красный кирпич на кладку а где огнеупорный кирпич что за лажа жуть Вертикальний рівень кладки витриманий. Далі зверху буде облицюваняя декоративними матеріалами. Вогнетривка цегла викладена в димоході в місці виходу диму з топки. А я так подивлюсь ви "конкретні" фахівці . Два роки назад я вас тут не наблюдав з вашими порадами, один Alexander Pryakha написав свої зауваження, і критику вашу я не сприймаю. И че хаим человека? Сделал!...сам!...себе!... Как минимум получил удовольствие! Ну и пользу хоть какую. И весьма недурно как для первого раза. Может потом и переделает... Так на то его право распоряжаться своим временем и возможностями. И ошибки делать тоже его право. В общем молоток дядька! П.С. Неошибается тот кто ничего неделает. Дякую. Задоволення дійсно отримую від всього , що роблю своїми руками. Проект моєї чудо-пічки не є досконалим так , як і все на цьому світі. Тай років мені на відміну від цих "фахівців" виповнилося тільки 31. і не знаю , які там люди на що ведуться - мене поки, що все задовільняє. Посилання на коментар Поділитися на інших сайтах More sharing options...
parfserg Опубліковано: 19 лютого 2012 Автор Поділитись Опубліковано: 19 лютого 2012 Ще декілька фото. Діло йде до завершення. Посилання на коментар Поділитися на інших сайтах More sharing options...
parfserg Опубліковано: 19 лютого 2012 Автор Поділитись Опубліковано: 19 лютого 2012 Придбані ковані елементи , які будуть прикрашати двецята. Приблизно буде виглядати десь так Посилання на коментар Поділитися на інших сайтах More sharing options...
parfserg Опубліковано: 26 лютого 2012 Автор Поділитись Опубліковано: 26 лютого 2012 Далі процес виготовлення виглядав так. Викладені та приварені декоративні елементи. Посилання на коментар Поділитися на інших сайтах More sharing options...
parfserg Опубліковано: 26 лютого 2012 Автор Поділитись Опубліковано: 26 лютого 2012 Після цього все було ретельно відшліфовано і пофарбовано Посилання на коментар Поділитися на інших сайтах More sharing options...
Рекомендовані повідомлення
Створіть акаунт або увійдіть у нього для коментування
Ви маєте бути користувачем, щоб залишити коментар
Створити акаунт
Зареєструйтеся для отримання акаунта. Це просто!
Зареєструвати акаунтУвійти
Вже зареєстровані? Увійдіть тут.
Увійти зараз