Игореха Опубліковано: 22 вересня 2011 Автор Поділитись Опубліковано: 22 вересня 2011 Тебе вручат медаль за отвагу и трудовой подвиг Надеюсь что не посмертно:D Посилання на коментар Поділитися на інших сайтах More sharing options...
Игореха Опубліковано: 22 вересня 2011 Автор Поділитись Опубліковано: 22 вересня 2011 Уже привычное двойственное чувство. С одной стороны - радость, что уже заливаем бетон. С другой стороны - столько красоты в бетоне похоронено, останутся только фотографии.:D 4 Посилання на коментар Поділитися на інших сайтах More sharing options...
Игореха Опубліковано: 23 вересня 2011 Автор Поділитись Опубліковано: 23 вересня 2011 Песочек вышел "несколько" иным..... Посилання на коментар Поділитися на інших сайтах More sharing options...
Игореха Опубліковано: 24 вересня 2011 Автор Поділитись Опубліковано: 24 вересня 2011 Ура! Сегодня закончили армопояс. Втроем (я, отец и сосед) работать куда легче было последние два дня. Снял для проверки опалубку с трехдневного бетона. Есть конечно некоторые раковинки, там где бетон был пожестче, но арматура вся в бетоне, так что будет нормально. Хоть и уплотнял как мог, но идеала достичь не удалось. Ну для армопояса результат абсолютно приемлем. Зато несущая балка залита практически на отлично! Одна маленькая раковинка скраю, остальное - монолит, должна держать отлично Завтра пораскручиваю гайки с опалубки и... такой долгожданный отдых. 1 Посилання на коментар Поділитися на інших сайтах More sharing options...
КОРН Опубліковано: 25 вересня 2011 Поділитись Опубліковано: 25 вересня 2011 Ну ты тоже прикалываешься (ссылка устарела) Это ж мертвые души! Посилання на коментар Поділитися на інших сайтах More sharing options...
Игореха Опубліковано: 25 вересня 2011 Автор Поділитись Опубліковано: 25 вересня 2011 Ну ты тоже прикалываешься (ссылка устарела) Это ж мертвые души! Ну а чего мертвые? Это зачинатели - мертвые, но ресурс общедоступный и там уже и живые появляются:D Плагиаторы хрЕновы! Посилання на коментар Поділитися на інших сайтах More sharing options...
Игореха Опубліковано: 27 вересня 2011 Автор Поділитись Опубліковано: 27 вересня 2011 Очередной этап пройден сегодня Вдвоем с отцом + уже постоянный крановщик Иван из Макарова за 5 часов смонтировали 14 плит и подали часть материала на них. Теперь помещения первого этажа стали сразу мемного шире - появился потолок. Но потолок пока очень высокий:D Пирог пола и подвесной потолок уберут 25см высоты и все придет к норме Завтра начинаем кладку второго этажа. Ох и высокий же дом получается Зато с уровня второго этажа далеко видно окрестности 2 Посилання на коментар Поділитися на інших сайтах More sharing options...
Ceazar Опубліковано: 27 вересня 2011 Поділитись Опубліковано: 27 вересня 2011 Очередной этап пройден сегодня Вдвоем с отцом + уже постоянный крановщик Иван из Макарова за 5 часов смонтировали 14 плит и подали часть материала на них. Теперь помещения первого этажа стали сразу мемного шире - появился потолок. Но потолок пока очень высокий:D Пирог пола и подвесной потолок уберут 25см высоты и все придет к норме Завтра начинаем кладку второго этажа. Ох и высокий же дом получается Зато с уровня второго этажа далеко видно окрестности Вот вы меня и догнали... Быстро ваши ребятки стены подымают... По белому завидую. А дом действительно высокий получается. Насколько я помню, будет еще уровень земли подниматься? Посилання на коментар Поділитися на інших сайтах More sharing options...
Игореха Опубліковано: 28 вересня 2011 Автор Поділитись Опубліковано: 28 вересня 2011 (змінено) Вот вы меня и догнали... Быстро ваши ребятки стены подымают... По белому завидую. А дом действительно высокий получается. Насколько я помню, будет еще уровень земли подниматься? Ну стены в таком состоянии уже дней 10 стоят Это я затянул немного сроки с армопоясом, балкой и плитой - ну всего на 2 дня. Абы качественно. Уровень земли будет подниматься, если не по всему участку, то как минимум вокруг дома собираюсь поднимать на 40 см и делать что-то типа открытой террасы шириною около 3х метров. Ну и там где будут тропинки, проезды. Змінено 28 вересня 2011 користувачем Игореха Посилання на коментар Поділитися на інших сайтах More sharing options...
Игореха Опубліковано: 28 вересня 2011 Автор Поділитись Опубліковано: 28 вересня 2011 Строители приехали, но с утра пошел дождик. Успел только по быстрому закрыть пленкой кладку и воздушку с перлитом. Надеюсь что распогодится и день не пропадет в пустую. С утра обнаружил свой косячок Вчера он не проявился. Видимо раствор чуть подсел за ночь и где-то попался камушек щебня, хоть я весь раствор и проверил руками на предмет наличия инородных тел перед монтажем каждой плиты. Последняя плита чуть гуляет. Ну надеюсь это не самое страшное. Попросил хлопцев чтобы зачеканили торцы швов под этой плитою, пока раствор не схватился окончательно. Вот они "прелести" монтажа плит на арматурку;) Посилання на коментар Поділитися на інших сайтах More sharing options...
=YaSto= Опубліковано: 28 вересня 2011 Поділитись Опубліковано: 28 вересня 2011 Строители приехали, но с утра пошел дождик. Успел только по быстрому закрыть пленкой кладку и воздушку с перлитом. Надеюсь что распогодится и день не пропадет в пустую. С утра обнаружил свой косячок Вчера он не проявился. Видимо раствор чуть подсел за ночь и где-то попался камушек щебня, хоть я весь раствор и проверил руками на предмет наличия инородных тел перед монтажем каждой плиты. Последняя плита чуть гуляет. Ну надеюсь это не самое страшное. Попросил хлопцев чтобы зачеканили торцы швов под этой плитою, пока раствор не схватился окончательно. Вот они "прелести" монтажа плит на арматурку;) красавцы - темп отличный а я двери входные загадал, селают скоренько, но блина сумма вырисовалась...(хотя иха 5 штук, чего хотеть + проёмы 3 стандартных, а двое парадных дверей жена закомандовала - хочу большие 2200х1000, правда и смотрется будут конкретнее) Посилання на коментар Поділитися на інших сайтах More sharing options...
Игореха Опубліковано: 28 вересня 2011 Автор Поділитись Опубліковано: 28 вересня 2011 красавцы - темп отличный а я двери входные загадал, селают скоренько, но блина сумма вырисовалась...(хотя иха 5 штук, чего хотеть + проёмы 3 стандартных, а двое парадных дверей жена закомандовала - хочу большие 2200х1000, правда и смотрется будут конкретнее) Спасибо! Но рано еще загадывать. Пока крышу не накрою хоть какую-то, спасть спокойно не смогу Двери у меня на следующий сезон, хотя тоже будут муки выбора. Решил тоже чуть нестандартные парадные двери делать, вот теперь буду изучать этот вопрос во всех подробностях, благо время есть Посилання на коментар Поділитися на інших сайтах More sharing options...
=YaSto= Опубліковано: 29 вересня 2011 Поділитись Опубліковано: 29 вересня 2011 Спасибо! Но рано еще загадывать. Пока крышу не накрою хоть какую-то, спасть спокойно не смогу Двери у меня на следующий сезон, хотя тоже будут муки выбора. Решил тоже чуть нестандартные парадные двери делать, вот теперь буду изучать этот вопрос во всех подробностях, благо время есть Ну а чё изучать - просто вопрос в цене... ну и если сильно навороченные задумаеш, то может выйти, что не все такие делают в таком размере. А так всё решаемо. Как нам - так надоели мелкие двери в которые вечно что-то не влазит. Раз уж строим свой дом будем делать усё как нам хочется... Посилання на коментар Поділитися на інших сайтах More sharing options...
Игореха Опубліковано: 29 вересня 2011 Автор Поділитись Опубліковано: 29 вересня 2011 Ну а чё изучать - просто вопрос в цене... ну и если сильно навороченные задумаеш, то может выйти, что не все такие делают в таком размере. А так всё решаемо. Как нам - так надоели мелкие двери в которые вечно что-то не влазит. Раз уж строим свой дом будем делать усё как нам хочется... Тут дело в том, что если делать входные двери с расчетом на габарит, то и остальные двери в доме надо делать такими-же Потому как если в тамбур и коридор габарит занести сможешь, то дальше-то все равно не пройдет ;) Эххх.. отпустил строителей на два дня. Погода не летная. Глядя на прогноз погоды и на реальное положение вещей, трудно предугадать вообще когда будут дожди, а когда нет. Посилання на коментар Поділитися на інших сайтах More sharing options...
=YaSto= Опубліковано: 29 вересня 2011 Поділитись Опубліковано: 29 вересня 2011 у меня ща внутри дома работы, дождь только настроение портит, а так движемся по графику а с дверями скажу так - если фасад где они стоят большой, то в обычном размере они куцо смотрятся, однозначно лучше чуть больше ставить а негабарит - мы как-то с тестем у него на даче через окно втаскивали на лямках на 2 этаж (там оказалось самое большое окно) - так тож бывает:D Посилання на коментар Поділитися на інших сайтах More sharing options...
Игореха Опубліковано: 29 вересня 2011 Автор Поділитись Опубліковано: 29 вересня 2011 у меня ща внутри дома работы, дождь только настроение портит, а так движемся по графику а с дверями скажу так - если фасад где они стоят большой, то в обычном размере они куцо смотрятся, однозначно лучше чуть больше ставить а негабарит - мы как-то с тестем у него на даче через окно втаскивали на лямках на 2 этаж (там оказалось самое большое окно) - так тож бывает:D Предполагаю, что некоторый негабарит мне проще будет тоже через окна затаскивать:D Може какой подъемник придумать для этих хозцелей Посилання на коментар Поділитися на інших сайтах More sharing options...
КОРН Опубліковано: 3 жовтня 2011 Поділитись Опубліковано: 3 жовтня 2011 Я так полагаю, со дня на день мы должны увидеть многоэтажку под Макаровом;) Где фотки? Ты ж сейчас должен только подзатыльники раздавать и фоткать:D Посилання на коментар Поділитися на інших сайтах More sharing options...
Игореха Опубліковано: 3 жовтня 2011 Автор Поділитись Опубліковано: 3 жовтня 2011 Я так полагаю, со дня на день мы должны увидеть многоэтажку под Макаровом;) Где фотки? Ты ж сейчас должен только подзатыльники раздавать и фоткать:D Из-за дождей, работа реально началась с субботы. Пока выгнали рядов 10 облицовки второго этажа. Чуть терпения ;) Думаю, если с погодой будет нормально, то второй этаж должен вырости недельки через две. Не буду загадывать - уже не лето :D Посилання на коментар Поділитися на інших сайтах More sharing options...
3Dshnik Опубліковано: 3 жовтня 2011 Поділитись Опубліковано: 3 жовтня 2011 Из-за дождей, работа реально началась с субботы. Пока выгнали рядов 10 облицовки второго этажа. Чуть терпения ;) Думаю, если с погодой будет нормально, то второй этаж должен вырости недельки через две. Не буду загадывать - уже не лето :D Мне счас сложно представить как это - "не лето", я на работе в ОАЭ, тут просто летом было ацки жарко, а счас стало просто жарко... Эх скучаю за дождем... Посилання на коментар Поділитися на інших сайтах More sharing options...
Игореха Опубліковано: 3 жовтня 2011 Автор Поділитись Опубліковано: 3 жовтня 2011 Эх скучаю за дождем... Можем выслать... много... вместе с холодами :D Бартером на ваши "просто жарко":rolleyes: 1 Посилання на коментар Поділитися на інших сайтах More sharing options...
Игореха Опубліковано: 5 жовтня 2011 Автор Поділитись Опубліковано: 5 жовтня 2011 Ничего сверхнового не происходит пока. Идет кладка второго этажа. Но чтобы тема не покрылась плесенью, выложу пару фотографий того что сделано на сегодня. Посилання на коментар Поділитися на інших сайтах More sharing options...
=YaSto= Опубліковано: 5 жовтня 2011 Поділитись Опубліковано: 5 жовтня 2011 Ничего сверхнового не происходит пока. Идет кладка второго этажа. Но чтобы тема не покрылась плесенью, выложу пару фотографий того что сделано на сегодня. красивенько. так я погляжу дверной проём у тебя вроде обычный, или это с далека так выглялит. просто у меня вышли 2200х1000 в двое парадных дверей 1 Посилання на коментар Поділитися на інших сайтах More sharing options...
Игореха Опубліковано: 5 жовтня 2011 Автор Поділитись Опубліковано: 5 жовтня 2011 красивенько. так я погляжу дверной проём у тебя вроде обычный, или это с далека так выглялит. просто у меня вышли 2200х1000 в двое парадных дверей Проем - между одним "обычным" и вторым "обычным" :D - 960 по ширине. Посилання на коментар Поділитися на інших сайтах More sharing options...
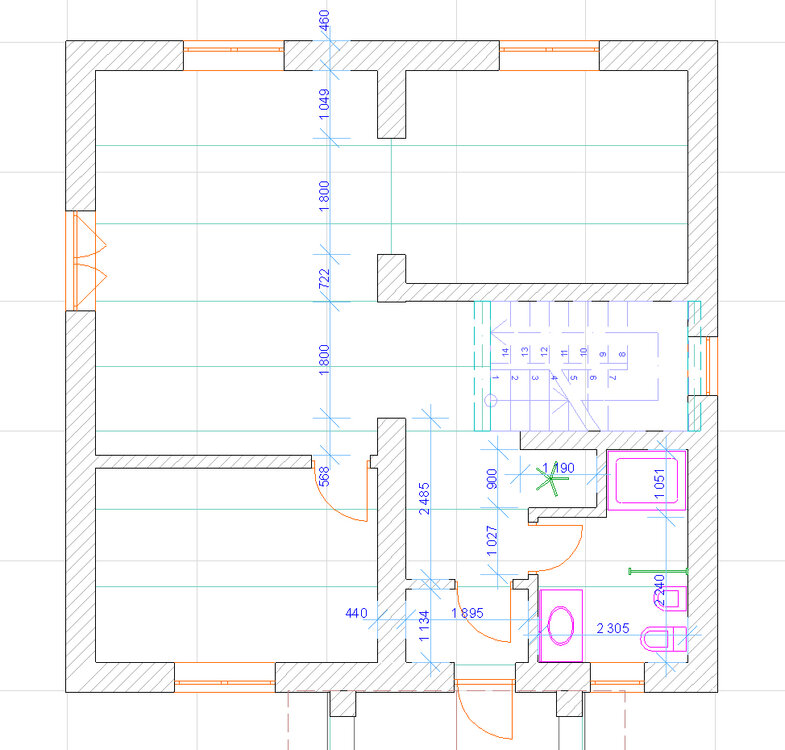
Игореха Опубліковано: 5 жовтня 2011 Автор Поділитись Опубліковано: 5 жовтня 2011 Еще хотелось бы некоторого стороннего критического взгляда на один "угол". На сегодня планировка сильно не изменилась, но уже почти пришел к конечному варианту. Как обычно не хватает 10 см:D Второй этаж остался без изменений, только немного поиграл с шириной кладовки и санузла. Ну и решил сделать часть центральной несущей стены в 1 кирпич. Не хочу чтобы 2 дверных проема были глубиной по 40 см в несущей стене, да и на 13 см расширю коридор на втором этаже. Надо будет только при заливке армопояса в этом месте сделать балку (совмещенную с армопоясом), т.к. сверху тоже будут плиты. Больше всего неопределенностей доставляет угол на первом этаже (нижний правый по схеме), там где тамбур/санузел/гардероб/холл. Уже раз пять его переигрывал, но есть сомнения. Кому не трудно, обратите внимание на него. Может у кого еще мысль появится. Несущие стены и перестенок возле лестницы в кирпич уже есть и останутся нетронутыми. А вот перестенки этих помещений в полкирпича еще пока планирую и обыгрываю Посилання на коментар Поділитися на інших сайтах More sharing options...
Ceazar Опубліковано: 5 жовтня 2011 Поділитись Опубліковано: 5 жовтня 2011 Больше всего неопределенностей доставляет угол на первом этаже (нижний правый по схеме), там где тамбур/санузел/гардероб/холл. Уже раз пять его переигрывал, но есть сомнения. Кому не трудно, обратите внимание на него. Может у кого еще мысль появится. Несущие стены и перестенок возле лестницы в кирпич уже есть и останутся нетронутыми. А вот перестенки этих помещений в полкирпича еще пока планирую и обыгрываю ИМХО: Объеденить гардеробную с с/у и не заморачиваться... место для складирования вещей можно организовать в других помещениях... в том числе и подвальных. Посилання на коментар Поділитися на інших сайтах More sharing options...
Рекомендовані повідомлення
Створіть акаунт або увійдіть у нього для коментування
Ви маєте бути користувачем, щоб залишити коментар
Створити акаунт
Зареєструйтеся для отримання акаунта. Це просто!
Зареєструвати акаунтУвійти
Вже зареєстровані? Увійдіть тут.
Увійти зараз