Igor_M Опубліковано: 25 лютого 2011 Поділитись Опубліковано: 25 лютого 2011 Газобетон StoneLite (Бровары) St400x200x600 паз/гребень D500, 480грн./м.куб., ну и доставка с выгрузкой. Сертификаты дали? Паспорт качества на партию дали? Какие точные параметры там написаны по плотности, по прочности, по морозостойкости? Посилання на коментар Поділитися на інших сайтах More sharing options...
Ceazar Опубліковано: 28 лютого 2011 Автор Поділитись Опубліковано: 28 лютого 2011 Собственно те самые СтоунЛайт, по накладным идет как Д500 В2,5 400*200*600. Поддоны не вскрывал, отец убедил что этого пока делать не надо, чтобы уменьшить заинтересованность местных жителей. Посилання на коментар Поділитися на інших сайтах More sharing options...
AНДРЮША Опубліковано: 28 лютого 2011 Поділитись Опубліковано: 28 лютого 2011 По бокам сделайте разрезы, что бы влага испарялась. Посилання на коментар Поділитися на інших сайтах More sharing options...
AnnaKiev Опубліковано: 28 лютого 2011 Поділитись Опубліковано: 28 лютого 2011 Сколько кубов машина за один раз привезла? Посилання на коментар Поділитися на інших сайтах More sharing options...
Ceazar Опубліковано: 28 лютого 2011 Автор Поділитись Опубліковано: 28 лютого 2011 Сколько кубов машина за один раз привезла? Всего в одной машине помещается 20 поддонов (машина - длинномер). Но мне приехало 2 по 19, 1поддон заберу со склада в Белогородке (не взяли по причине возможного перегруза (слова Дмитрия КиевБудПостач)). 1 Посилання на коментар Поділитися на інших сайтах More sharing options...
Киевбудпостач Опубліковано: 28 лютого 2011 Поділитись Опубліковано: 28 лютого 2011 Всего в одной машине помещается 20 поддонов (машина - длинномер). Но мне приехало 2 по 19, 1поддон заберу со склада в Белогородке (не взяли по причине возможного перегруза (слова Дмитрия КиевБудПостач)). Добрый день! Разрешите пояснить: Норма загрузки Стоунлайт при пакетировке 2,16 м.куб на поддоне составляет: Д500 - 17 поддонов на фуру, Д400 - 20 поддонов на фуру. В нашем случае заказан был блок Д500 (поэтому 17 поддонов). Учитывая, что размер блока 400мм пакетируется из рассчета 1,92 м.куб. на поддон - мы увеличили количество поддонов до 19 на машину. К сожалению обе фуры отказались взять 20-й поддон, но и это не проблема, т.к. наш склад находится в непосредственной близости от строительного объекта. По поводу сертификатов и паспортов. На каждую партию выписывается паспорт качества. Сертификат выдается 1 раз в году. Все, кому необходим паспорт - могут попросить меня и я на каждую Вашу машину буду в комплект документов вкладывать паспорт качества на партию. Сертификат и протоколы испытания блоков можно взять непосредственно на сайте завода. С Уважением, Дмитрий Посилання на коментар Поділитися на інших сайтах More sharing options...
3Dshnik Опубліковано: 4 березня 2011 Поділитись Опубліковано: 4 березня 2011 Скажите пожалуйста, а во сколько обошелся вам котлован(экскаватор)/фундамент(блоки+плюс кран) примерно... Спасибо! Посилання на коментар Поділитися на інших сайтах More sharing options...
Ceazar Опубліковано: 6 березня 2011 Автор Поділитись Опубліковано: 6 березня 2011 Скажите пожалуйста, а во сколько обошелся вам котлован(экскаватор)/фундамент(блоки+плюс кран) примерно... Спасибо! Вот в этом посте подробный фин.отчет: www.stroimdom.com.ua/forum/showpost.php?p=762038&postcount=106 1 Посилання на коментар Поділитися на інших сайтах More sharing options...
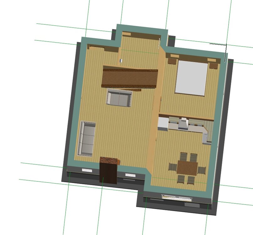
Ceazar Опубліковано: 6 березня 2011 Автор Поділитись Опубліковано: 6 березня 2011 Вот "немного" побаловался в архикаде, с планировкой первого этажа. Старался придерживаться своих чертежей. Теперь приблизительно можно ориентироваться каким образом осуществить вентиляцию на кухне и куда воду подводить. Посилання на коментар Поділитися на інших сайтах More sharing options...
goncha Опубліковано: 7 березня 2011 Поділитись Опубліковано: 7 березня 2011 ЗдраВствуйте, уважаемый! Мое уважение людям, которое к чему-то стремятся в жизни, в частности к строительству дома... Теперь по делу: хочу поинтересоваться посадкой дома на местности (сами садили?) и отметкой 0.000 относительно дороги... Со временем отм. дороги будет только расти, неуклонно приближаясь к отм. низа окон (проверено эмпирически)... Поэтому если посадка дома слишком низкая, то через окна вид будет специфический.... Второе, я б задумался о серьезном дренаже участка, учитывая отм. соседних участков: необходима дренажная система (скорее всего по периметру с водоотводом воды куда-то, в "якийсь рівчак")... Иначе по весне ваш участок будет превращаться в "водосборник" со всех вышерасположенных соседей! Посилання на коментар Поділитися на інших сайтах More sharing options...
Ceazar Опубліковано: 9 березня 2011 Автор Поділитись Опубліковано: 9 березня 2011 Геометрию проверяли? Интересно мнение, сам выбираю между поставщиками газбетона - одно дело, производитель и образцы на выставке - другое - мнение реального пользователя. Из-за того что начал таять снег, один поддон (крайний) начал неспеша наклоняться, и дабы он не грохнулся в болото я решил его вскрыть и часть блоков переложить на пустой поддон, оставшийся от кирпичей, а заодно и посмотреть на геометрию блоков. Ну что сказать, я остался очень доволен, блоки очень ровные, на неочищеной поверхности плиты перекрытия блоки лежать почти идеально. На поддоне тоже все легли достаточно красиво ( между блоками на поддоне присутствуют мелкие осколки потому и виднеются небольшие щели, не было желания парадно-выходные перчатки пачкать и сметать мусор). 2 Посилання на коментар Поділитися на інших сайтах More sharing options...
Ceazar Опубліковано: 12 квітня 2011 Автор Поділитись Опубліковано: 12 квітня 2011 На выходных, 2-3 апреля было сделано немало (по впечатлениям к вечеру . Расчистили и побелили деревья, снесли ветки в кучу, навели "фен-шуй" на участке, на склонах и вокруг дома посеяли травку (дабы летом после дождя не ждать долго пока земля высохнет, а сразу приступать к работам). Расконсервировали стройку... жена занималась нанесением первого слоя гидроизоляции под кирпичную кладку, а я с отцом занимался установкой трофейной двери в подвал... позже увязали плиты перекрытия между собой... пока наловчился гнуть арматуру - уже и нечего было вязать )))). Еще завел в дом трубу под воду (которую буду брать с отцовской скважины) и кабель под электричество (времянка... источник тот-же). Посилання на коментар Поділитися на інших сайтах More sharing options...
Ceazar Опубліковано: 12 квітня 2011 Автор Поділитись Опубліковано: 12 квітня 2011 Перед началом кладки коробки нужно провести все подготовительные работы... Одной из основных задач стоит решение вопроса двух монолитных участков в прогоне который оставлен под лестницу (на рисунке темно-серые). Суть вопроса состоит в том что не знаю как лучше их сделать, как закрепить... получается одним краем мои монолитики будут лежать на армпоясе, а другим на ВОЗДУХЕ :bad:... Из придуманных мною вариантов решения пока один ( на мой взгляд достойный) - это возведение стены в полкирпича ( на рисунке показан бирюзовым цветом) и уже на нее опирать монолитные железобетонные участочки... лестницу же в подвал сделать не прямой а забежной... получившееся помещение возможно будет использоваться как склад для сезонных вещей. Прошу комментировать, вопрос достаточно важен. Посилання на коментар Поділитися на інших сайтах More sharing options...
Шульман Опубліковано: 12 квітня 2011 Поділитись Опубліковано: 12 квітня 2011 Я эту проблему решил еще в прошлом году. У меня было два монолитных участка, при этом один из них похож на Ваш. Решения было реализовано следующее - на торец (там где не было опоры) пустили 24 швелер который приварили к 150 уголку, что послужило опорой на лежащие плиты. Проделали отверстия в литах друг на против друга, куда вставили 22 - 24 арматуру и поперечно 16 арматуру, с низу подставили опалубку. Крепит опалубку можно таким способом www.stroimdom.com.ua/forum/showpost.php?p=717743&postcount=56 на последнем фото эпоказан этот участок, и еще один нюанс - к швелеру приварили уголок на который потом можно будет опереть лестницу. Посилання на коментар Поділитися на інших сайтах More sharing options...
Olegus Опубліковано: 12 квітня 2011 Поділитись Опубліковано: 12 квітня 2011 Уважаемый Дмитрий а можно вопрос. ТС пишет, что доставка стоила 1000 за фуру. Т.е. на куб где-то получилось по 25 грн. Это везли всего несколько километров по Белогородки или издалека? А если надо будет провезти километров 15 в Музычи. Это 2000 грн? Заранее спасибо за ответ. Добрый день! Разрешите пояснить: Норма загрузки Стоунлайт при пакетировке 2,16 м.куб на поддоне составляет: Д500 - 17 поддонов на фуру, Д400 - 20 поддонов на фуру. К сожалению обе фуры отказались взять 20-й поддон, но и это не проблема, т.к. наш склад находится в непосредственной близости от строительного объекта. Посилання на коментар Поділитися на інших сайтах More sharing options...
Киевбудпостач Опубліковано: 12 квітня 2011 Поділитись Опубліковано: 12 квітня 2011 Уважаемый Дмитрий а можно вопрос. ТС пишет, что доставка стоила 1000 за фуру. Т.е. на куб где-то получилось по 25 грн. Это везли всего несколько километров по Белогородки или издалека? А если надо будет провезти километров 15 в Музычи. Это 2000 грн? Заранее спасибо за ответ. Нет. 1000 грн была доставка с завода. В Музычи на сегодня платипримерно 1100 - 1200, но не стоит забывать что когда возили ТС была одна цена на солярку, сегодня другая. У меня есть темка на форуме. Давайте там писать. Думаю некорректно будет устраивать консультации по газобетону в теме, посвященной совсем другому вопросу. Приношу свои извинения ТС. С Уважением, Дмитрий. 2 Посилання на коментар Поділитися на інших сайтах More sharing options...
Ceazar Опубліковано: 12 квітня 2011 Автор Поділитись Опубліковано: 12 квітня 2011 Я эту проблему решил еще в прошлом году. У меня было два монолитных участка, при этом один из них похож на Ваш. Решения было реализовано следующее - на торец (там где не было опоры) пустили 24 швелер который приварили к 150 уголку, что послужило опорой на лежащие плиты. Проделали отверстия в литах друг на против друга, куда вставили 22 - 24 арматуру и поперечно 16 арматуру, с низу подставили опалубку. Крепит опалубку можно таким способом www.stroimdom.com.ua/forum/showpost.php?p=717743&postcount=56 на последнем фото эпоказан этот участок, и еще один нюанс - к швелеру приварили уголок на который потом можно будет опереть лестницу. Спасибо за идею. Достаточно интересно придумано решение опоры боковой части монолита на плиты. Теперь вопрос, какие у вас плиты, смотрю что 24 швеллер заподлицо с плитам... у меня плиты (как мне кажется) больше, порядка 30см высотой... По поводу отверстий в плитах, хотелось бы меньше их делать... не хочу уменьшать жесткость конструкции плит... Вот думаю, может сделать как у вас, но не заподлицо с плитами, а по размеру швеллера. Поделитесь информацией как ведет себя данная конструкция, нет ли боковых трещин... и я так понимаю лестницу еще не ставили... Посилання на коментар Поділитися на інших сайтах More sharing options...
Шульман Опубліковано: 12 квітня 2011 Поділитись Опубліковано: 12 квітня 2011 Поделитесь информацией как ведет себя данная конструкция, нет ли боковых трещин... и я так понимаю лестницу еще не ставили... После зимы трещин не наблюдалось . А сверлить не бойтесь, сверлите в места там где в плите по торцу небольшие углубления и будет все нормально, просто таким образом вы снимете значительную нагрузку со швелера. 1 Посилання на коментар Поділитися на інших сайтах More sharing options...
Ceazar Опубліковано: 18 квітня 2011 Автор Поділитись Опубліковано: 18 квітня 2011 Еще привез кирпичик для внутренней несущей стены и перегородок. Брал через посредника, везли непосредственно с Винницкого завода "КЕРАМИК". Получилось в итоге намного дешевле вместе с доставкой чем покупать в непосредственной близости. Качество кирпича отец, построивший себе дом, оценил как "Нормальний кірпіч, наш будинок з гіршого зведений". Посилання на коментар Поділитися на інших сайтах More sharing options...
Ceazar Опубліковано: 18 квітня 2011 Автор Поділитись Опубліковано: 18 квітня 2011 Из подготовительных работ необходимо было закончить приямок, начатый осенью 2010 (не успели по причине начала морозов... :sad:)... часть пола отслоилась, так как после работ ночью ударил мороз... Пришлось соскребать сапкой... к процедуре подключилась с огромным желанием помогать дочка, освободив меня для организации опалубки на стены... А жена тем временем наносила финишный слой гидроизоляции и по окончании промазки занялась "доставкой" стройматериала на объект. Финалом субботы была заливка стен приямка. Посилання на коментар Поділитися на інших сайтах More sharing options...
Ceazar Опубліковано: 18 квітня 2011 Автор Поділитись Опубліковано: 18 квітня 2011 Рано утром в воскресенье приступили к кирпичной кладке, которая будет служить опорой газобетонных стен. Под первый кирпич произвели закладку монеток... и приступили 8-) Организовали уступы под монолиты (которые еще следует сделать). За день выполнили чуть больше 1/4 части всей кладки. Посилання на коментар Поділитися на інших сайтах More sharing options...
AНДРЮША Опубліковано: 18 квітня 2011 Поділитись Опубліковано: 18 квітня 2011 Зачем кирпич, почему сразу не положить ГБ на армопояс? Посилання на коментар Поділитися на інших сайтах More sharing options...
Igor_M Опубліковано: 18 квітня 2011 Поділитись Опубліковано: 18 квітня 2011 Зачем кирпич, почему сразу не положить ГБ на армопояс? Присоединяюсь к вопросу... На какой отметке у вас пол будет первого этажа? Если ниже уровня кирпича, то кирпич будет мостиком холода... Посилання на коментар Поділитися на інших сайтах More sharing options...
Ceazar Опубліковано: 18 квітня 2011 Автор Поділитись Опубліковано: 18 квітня 2011 Зачем кирпич, почему сразу не положить ГБ на армопояс? Газобетон ниже по высоте на 2см, а компенсировать раствором не хотел, к тому же нужно было подрезать в этом случае почти весь ряд из газоблоков, потому как армпояс имеет ширину 40см и такую же ширину имеет и газобетон, но надо учесть что на армпояс ложатся и плиты. Присоединяюсь к вопросу... На какой отметке у вас пол будет первого этажа? Если ниже уровня кирпича, то кирпич будет мостиком холода... Третий ряд кирпича вышел вровень с плитами перекрытия, и всю эту конструкцию планирую дошить ЭППС. Блоки планирую укладывать с напуском в 4-5 см (еще точно не придумал )... ну а потом еще планирую стяжку заливать, вот и получится что "0" будет выше кирпичной кладки. Посилання на коментар Поділитися на інших сайтах More sharing options...
Ceazar Опубліковано: 27 квітня 2011 Автор Поділитись Опубліковано: 27 квітня 2011 "Очі бояться, а руки роблять" Не знаю как там успевают каменщики за смену укладывать багатенно кирпичей, но у меня с отцом дело идет не сильно быстро. За выходные практически закончили кирпичную кладку нулевого цикла, устали ужасно, солнце просто разошлось... не думали что жара может настать так внезапно. Не забыли про закладные для основы террасы, правда еще точно не придумал окончательный метод ее реализации. Еще радует то что совсем скоро приступим к возведению стен... Пока взрослые работают - малышне раздолье, бегают по стройке в жмурки играют... игру поменяли- гвозди сортировали, маленькая - маленькие, большой - большие... :D Посилання на коментар Поділитися на інших сайтах More sharing options...
Рекомендовані повідомлення
Створіть акаунт або увійдіть у нього для коментування
Ви маєте бути користувачем, щоб залишити коментар
Створити акаунт
Зареєструйтеся для отримання акаунта. Це просто!
Зареєструвати акаунтУвійти
Вже зареєстровані? Увійдіть тут.
Увійти зараз