vovan_adm Опубліковано: 30 травня 2017 Поділитись Опубліковано: 30 травня 2017 Цена с бытовой техникой и телевизором?Фурнитура какой фирмы установлена?Blum? фурнитура Blum, цена без техники! 1 Посилання на коментар Поділитися на інших сайтах More sharing options...
Асгард Опубліковано: 31 травня 2017 Поділитись Опубліковано: 31 травня 2017 фурнитура Blum, цена без техники! Ящики нижние понятно, а нижние большие фасады выдвигаются или просто петли?Почему ручки по центру? Посилання на коментар Поділитися на інших сайтах More sharing options...
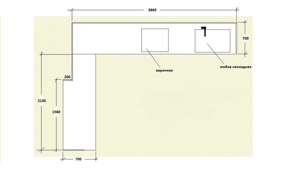
blacktigra Опубліковано: 31 травня 2017 Поділитись Опубліковано: 31 травня 2017 В целом общий вид. Глубина столешницы и кухонных ящиков под ней 70см! Симпатично получилось. А чего решили взять глубже столешницу? Был уже такой опыт эксплуатации или впервые решили попробовать? Посилання на коментар Поділитися на інших сайтах More sharing options...
starckad2010 Опубліковано: 31 травня 2017 Поділитись Опубліковано: 31 травня 2017 Материал столешницы какой? Имею в виду производителя кварцевого агломерата? Посилання на коментар Поділитися на інших сайтах More sharing options...
Ледащо Опубліковано: 31 травня 2017 Поділитись Опубліковано: 31 травня 2017 Плитка на момент фото, еще не была уложена. В целом общий вид. Глубина столешницы и кухонных ящиков под ней 70см! LED подсветка всех шкафов и рабочей зоны присутствует. Стоимость 5,5к $ + столешница кварц около 1600-1650$ (заказал отдельно). Красиво! Но есть вопросы по вытяжке - где вентканал, труба? Вытяжка только на фильтрах что ли? на визуале ручки серебристые красивее, ну и можно было бы белую варочную, а то она больше всего выделяется, это всего лишь мое личное мнение Посилання на коментар Поділитися на інших сайтах More sharing options...
allanek Опубліковано: 31 травня 2017 Поділитись Опубліковано: 31 травня 2017 столешница кварц около 1600-1650$ (заказал отдельно). Будьте добры, озвучьте размеры вашей столешницы и какой кварцит заказали(производителя)? На днях заказала кварцитовую столешницу(кухня+остров), любопытно сравнить стоимость И что вошло в стоимость вашей столешницы- стоимость самого камня, выезд на дом для замера, доставка, установка? Посилання на коментар Поділитися на інших сайтах More sharing options...
Инаа Опубліковано: 1 червня 2017 Поділитись Опубліковано: 1 червня 2017 Помогите найти похожую ножку под столешницу! Конусная - белая или бронза! можно без стеклянных круглых вставок. И второй момент: "Как бы вы присоединили стеклянный круг к столешнице?" Заранее благодарна) Посилання на коментар Поділитися на інших сайтах More sharing options...
3579km Опубліковано: 1 червня 2017 Поділитись Опубліковано: 1 червня 2017 Подскажите, возможно кто-то заказывал кухню в компаниях Wood Systems, Anova, Textura? Посилання на коментар Поділитися на інших сайтах More sharing options...
vovan_adm Опубліковано: 4 червня 2017 Поділитись Опубліковано: 4 червня 2017 Ящики нижние понятно, а нижние большие фасады выдвигаются или просто петли?Почему ручки по центру? Отметил все выдвижные ящики в 2-ух верхних, скрытые ящики для приборов! Посилання на коментар Поділитися на інших сайтах More sharing options...
vovan_adm Опубліковано: 4 червня 2017 Поділитись Опубліковано: 4 червня 2017 Симпатично получилось. А чего решили взять глубже столешницу? Был уже такой опыт эксплуатации или впервые решили попробовать? Я предложил супруге, она согласилась. Ни разу не пожалели. С маленьким ребенком можно и чуть дальше поставить посуду и вместимость больше. Так что если есть место, ВСЕМ РЕКОМЕНДУЮ! Добавлено через 5 минут Красиво! Но есть вопросы по вытяжке - где вентканал, труба? Вытяжка только на фильтрах что ли? на визуале ручки серебристые красивее, ну и можно было бы белую варочную, а то она больше всего выделяется, это всего лишь мое личное мнение Вент. канал скрыт в коробе вверху, поэтому кухню подтянули вверх. Так получилось, что обои и мебель у нас больше золоте, поэтому ручки заменили на бело-золотые. Был у друзей негативный опыт эксплуатации белой варочной, решили поставить черную. Не могу сказать, что она черное пятно))). Окна темно коричневого профиля ее дополняют. Добавлено через 1 минуту Материал столешницы какой? Имею в виду производителя кварцевого агломерата? hanstone ba-205 1 Посилання на коментар Поділитися на інших сайтах More sharing options...
vovan_adm Опубліковано: 4 червня 2017 Поділитись Опубліковано: 4 червня 2017 Будьте добры, озвучьте размеры вашей столешницы и какой кварцит заказали(производителя)? На днях заказала кварцитовую столешницу(кухня+остров), любопытно сравнить стоимость И что вошло в стоимость вашей столешницы- стоимость самого камня, выезд на дом для замера, доставка, установка? hanstone ba-205 стоимость под ключ! локация монтажа с.Процев. компания из Броваров. 1 Посилання на коментар Поділитися на інших сайтах More sharing options...
irina1969 Опубліковано: 5 червня 2017 Поділитись Опубліковано: 5 червня 2017 Будьте добры, озвучьте размеры вашей столешницы и какой кварцит заказали(производителя)? На днях заказала кварцитовую столешницу(кухня+остров), любопытно сравнить стоимость И что вошло в стоимость вашей столешницы- стоимость самого камня, выезд на дом для замера, доставка, установка? Алла, все-таки не гранит ? Посилання на коментар Поділитися на інших сайтах More sharing options...
allanek Опубліковано: 5 червня 2017 Поділитись Опубліковано: 5 червня 2017 Алла, все-таки не гранит ? Гранит был, его привезли, у меня была тихая истерика от увиденного, не хотела показывать мужу, что его желание гранитной столешницы обернулось катастрофой, он это и сам понял, поэтому утром загрузил гранитные столешницы и уехали они к исполнителю. О "катастрофе" рассказывала. Мне не повезло с "руками", возможно, что и станок внёс свою лепту в "красоту". Ничего страшного в самом граните не было, выбрала покостовку, как по мне, достаточно приятна глазу. Вопрос был в обработке самого гранита, а это уже зависит и от оборудования, и от ручек, которые обрабатывают сляб. Что было у меня- плохо обработанныя края, со сколами, то есть при состыковке двух половин, это"безобразие" никуда не денешь. Две части одной столешницы разнились по высоте в 1мм. Проблемы с фаской, которая была сделана в разные стороны, вместо прямого угла было скругление, плохо отшлифована поверхность. которая на солнце "шла" вся полосами, как объяснили, то забыли прошлифовать вторично, список длинный ...можно продолжать, но не хочу. Гранитная столешница, если вписывается в вашу кухню- это красиво и практично, при условии, что сляб, из которого делается ваш заказ, попал не в кривые руки. Но больше экспериментировать у меня нет желания, поэтому не захотела ни заново сделанных столешниц, ни возвращения к граниту( не нашему) вообще. Зайдите в тему по видам столешниц, один из форумчан выкладывал фотографии сделанного заказа столешниц из покостовки, очень презентабельно всё выглядит. Эти фотографии, кстати, перевесили моё нежелание гранитной столешницы, но мне не повезло с руками мастера. Если настроена на гранит, то не отказывайся от этой мысли, просто выбирай правильного исполнителя. Если бюджет позволяет, то можно смотреть в сторону бразильского или индийского, там есть слябы неземной красоты, с другой стороны, по стоимости он, практически, такой же, как акрил с кварцитом и как по мне, то менее пластичен в работе , в плане стоимости у украинского гранита бесспорное преимущество. После ценника в 6000-7000 грн , очень трудно переключиться на цену, в разы превышающую стоимость моей "катастрофы", поэтому, с большим нежеланием, но просчитала бразильский гранит, циферка крутилась в районе той, которая была за кварц. Со вздохом облегчения:D заказала кварц. Вариант МДФ-ной столешницы категорически отметался мужем и здесь он был прав:D - в доме, где преобладают натуральные материалы, где нет ничего из "синтетики", странновато было бы видеть столешницу из МДФ, пусть и имитирующую натуральный камень. В том же homax стоимость моей столешницы, высотой 6см, затянула на 22000грн и это с учётом 20% скидки по какой-то акции, трудно назвать эту циферку гуманной, поразмыслив, было решено превысить бюджет и заказать столешницу из акрила или кварца, не принципиально, какой из двух материалов, вопрос рассматривался в плоскости визуального выбора, кварц понравился больше. Понравится ли он мне в готовом изделии, буду знать в конце недели. 1 Посилання на коментар Поділитися на інших сайтах More sharing options...
irina1969 Опубліковано: 5 червня 2017 Поділитись Опубліковано: 5 червня 2017 спасибо...просто я еще не очень сильно погружалась в эту тему и твои наблюдения полезны для меня...кстати, муж тоже за гранит:D но я думаю попустит 1 Посилання на коментар Поділитися на інших сайтах More sharing options...
atco Опубліковано: 9 червня 2017 Поділитись Опубліковано: 9 червня 2017 Я так понимаю фасады из лдсп почти никто не заказывает уже?☺ Посилання на коментар Поділитися на інших сайтах More sharing options...
allanek Опубліковано: 10 червня 2017 Поділитись Опубліковано: 10 червня 2017 ...просто я еще не очень сильно погружалась в эту тему ... Вчера установили столешницы. Это очень красиво, даже перестала думать о стоимости этой красоты:D. Выбор столешницы очень влияет на визуальную картинку , по крайней мере, в моём случае это так, столешница должна была связать разрозненные части интерьера воедино, я очень нервничала, но всё получилось Если бюджет позволяет расщедриться на акрил или кварц- оно того стОит. 1 Посилання на коментар Поділитися на інших сайтах More sharing options...
max_13 Опубліковано: 10 червня 2017 Поділитись Опубліковано: 10 червня 2017 Я так понимаю фасады из лдсп почти никто не заказывает уже?☺ Очень много заказывают Лдсп -самые продаваемые фасады, тем более они сейчас красивые с течнением по рисункy, с J-ручкой и та Посилання на коментар Поділитися на інших сайтах More sharing options...
atco Опубліковано: 10 червня 2017 Поділитись Опубліковано: 10 червня 2017 Очень много заказывают Лдсп -самые продаваемые фасады, тем более они сейчас красивые с течнением по рисункy, с J-ручкой и та Просто мне тут один конструктор говорит,что их на 4-5 лет хватит.. Был удивлен так как у родителей уже 13 лет почти как новые Посилання на коментар Поділитися на інших сайтах More sharing options...
Ируськин Опубліковано: 10 червня 2017 Поділитись Опубліковано: 10 червня 2017 Вчера установили столешницы. Это очень красиво, даже перестала думать о стоимости этой красоты:D. Выбор столешницы очень влияет на визуальную картинку , по крайней мере, в моём случае это так, столешница должна была связать разрозненные части интерьера воедино, я очень нервничала, но всё получилось Если бюджет позволяет расщедриться на акрил или кварц- оно того стОит. А можно фото увидеть? Тоже интересует вопрос столешницы. Посилання на коментар Поділитися на інших сайтах More sharing options...
allanek Опубліковано: 10 червня 2017 Поділитись Опубліковано: 10 червня 2017 А можно фото увидеть? Тоже интересует вопрос столешницы. Нет, фото не будет, я не готова показывать внутреннее пространство своего дома. На форуме есть тема про виды столешниц, там выложено приличное количество фотографий столешниц из акрила, кварца и гранита) 1 Посилання на коментар Поділитися на інших сайтах More sharing options...
ip1982 Опубліковано: 12 червня 2017 Поділитись Опубліковано: 12 червня 2017 Вчера установили столешницы. Это очень красиво, даже перестала думать о стоимости этой красоты:D. Выбор столешницы очень влияет на визуальную картинку , по крайней мере, в моём случае это так, столешница должна была связать разрозненные части интерьера воедино, я очень нервничала, но всё получилось Если бюджет позволяет расщедриться на акрил или кварц- оно того стОит. Полностью согласен, я тоже остановился на кварците. Цена получилась не маленькая (1150 евро) как за не очень большую столешницу, но в эту сумму входит выезд специалиста из Киева в Житомир на замеры (размеры снимались по уже установленной кухне лазерным сканером), а также привозка и монтаж столешницы специалистами фирмы-продавца. В итоге все подошло идеально, монтаж сделали качественно. 2 Посилання на коментар Поділитися на інших сайтах More sharing options...
Alex90 Опубліковано: 14 червня 2017 Поділитись Опубліковано: 14 червня 2017 Одна з останніх робіт. Така собі не звична, і дуже не легка у виготовленні. Фасади комбіновані, масив ясена та дуба, стільниця фанера фсф+3мм ламель дуба, всі видимі панелі шпон. Фурнітура blum самої кращої категорії. 4 Посилання на коментар Поділитися на інших сайтах More sharing options...
irina1969 Опубліковано: 15 червня 2017 Поділитись Опубліковано: 15 червня 2017 Одна з останніх робіт. Така собі не звична, і дуже не легка у виготовленні. Фасади комбіновані, масив ясена та дуба, стільниця фанера фсф+3мм ламель дуба, всі видимі панелі шпон. Фурнітура blum самої кращої категорії. Яка гарна !!! А що там за шафкою з " плетенним" фасадом ? Дуже непросто буде за ним дбати Посилання на коментар Поділитися на інших сайтах More sharing options...
max_13 Опубліковано: 15 червня 2017 Поділитись Опубліковано: 15 червня 2017 Одна з останніх робіт. Така собі не звична, і дуже не легка у виготовленні. Фасади комбіновані, масив ясена та дуба, стільниця фанера фсф+3мм ламель дуба, всі видимі панелі шпон. Фурнітура blum самої кращої категорії. Красивая , дорогая кухня и такой странный выбор заказчиком мойки (как то дешево выглядит) В целом молодцы Посилання на коментар Поділитися на інших сайтах More sharing options...
Alex90 Опубліковано: 15 червня 2017 Поділитись Опубліковано: 15 червня 2017 Яка гарна !!! А що там за шафкою з " плетенним" фасадом ? Дуже непросто буде за ним дбати За шафкою котел. Та думаю з прибиранням все буде добре. От за дерев'яною стільницею треба буде доглядати. 1 Посилання на коментар Поділитися на інших сайтах More sharing options...
Рекомендовані повідомлення
Створіть акаунт або увійдіть у нього для коментування
Ви маєте бути користувачем, щоб залишити коментар
Створити акаунт
Зареєструйтеся для отримання акаунта. Це просто!
Зареєструвати акаунтУвійти
Вже зареєстровані? Увійдіть тут.
Увійти зараз