OJuli Опубліковано: 23 травня 2013 Поділитись Опубліковано: 23 травня 2013 Качество, конечно, дешевым не бывает! Даже то же ЛДСП должно быть лучшего качества. И клеиться оно должно не в гаражах при +5 градусах по цельсию... Дешевые варианты я давно уже не рассматриваю. Ни для себя, ни для клиентов. Так вот, если сравнивать все материалы в своем лучшем (достойном) качестве, то все они примеоно на одном уровне. И при чем тут скрипки и яхты??? Мы же о мебели говорим. Не знаю ни одной хозяйки, которая бы за свою жизнь не хотела бы, хотя бы 2 раза поменять обстановочку на кухне. Отсюда вывод: мебель на века (?????) - это лишнее) А дерево я тоже люблю, оно у меня в фаворе Добавлено через 7 минут Вот за это спасибо.Какие данные Вам нужны? Желательно план помещения с выводами, список техники с размерами, которая должна будет интегрироваться в мебель и список отдельностоящей техники. Ну и ваши пожелания (угловая, прямая, островная, параллельная, полуостров и т.д.; цвет, материал, желаемая высота навесных ящиков, наличие или отсутствие дополнительных опций таких как свет, стекло, разные корзины, системы хранения, пеналы, барные стойки и т. д.) Этого хватит для первого этапа. План вы можете выслать непосредственно мне на почту indpro@i.ua или выложить здесь. Сразу ПАПЕРЕДЖУЮ, что срочно делать не могу, т.к. работаю. Всем нарисую обязательно в свободное время. Посилання на коментар Поділитися на інших сайтах More sharing options...
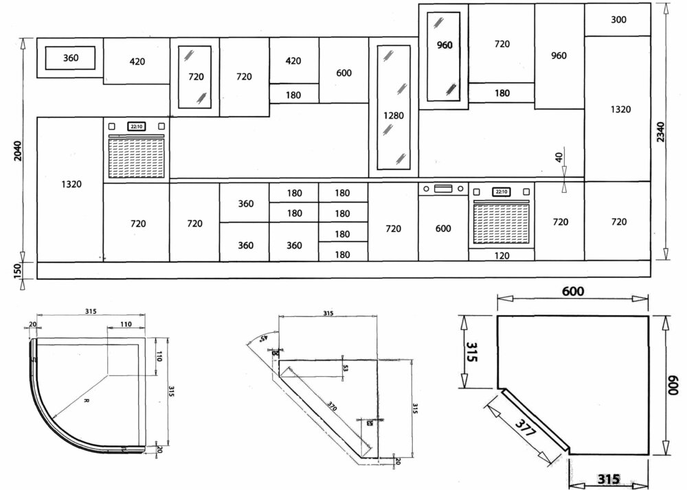
OJuli Опубліковано: 23 травня 2013 Поділитись Опубліковано: 23 травня 2013 Получается у меня вот такие картинки. Плюс размеры, конечно Посилання на коментар Поділитися на інших сайтах More sharing options...
Zhorik S Опубліковано: 23 травня 2013 Поділитись Опубліковано: 23 травня 2013 Получается у меня вот такие картинки. Плюс размеры, конечно [ATTACH]278889[/ATTACH] [ATTACH]278890[/ATTACH] [ATTACH]278891[/ATTACH] [ATTACH]278892[/ATTACH] [ATTACH]278893[/ATTACH] [ATTACH]278894[/ATTACH] [ATTACH]278895[/ATTACH] Здравствуйте! Меня зовут Юля. Могу просчитать и даже красиво нарисовать вашу кухню производства Польша. Займусь вами в субботу-воскресенье, если это не поздно Добавлено через 11 минут Занимаюсь мебелью не много, не мало 8 лет. Могу утверждать, что все современные материалы для фасадов кухни примерно на одном уровне - у каждого есть свои недостатки и достоинства. Краска бьется, пленка отклеивается, ЛДСП разбухает, дерево крутит, пластик ведет(если он на ДСП)... Поэтому, я бы не советовала долго мучиться по этому вопросу. Выбирайте то, что радует глаз! За каждым материалом есть свой способ ухода, очистки и т. д. Это нужно учитывать. Так как ЛДСП не "купать" мокрой тряпкой, МДФ пленку не греть, краску не царапать ежиком, а дерево нужно каждые 6 месяцев натирать специальными средствами, чтоб не ссохлось и т.д. Главное в кухне, по-моему, это фурнитура, так как она "работает" на кухне больше всего. Уделите внимание системам хранения и доступа в труднодоступные углы, чтобы по максимуму использовать пространство. Здесь экономить не надо. Это мое мнение. Если кому нужна помощь в разработке проекта кухонной мебели, я с удовольствием помогу (по мере возможности в выходные) А причем здесь,"поменять обстановочку"? Если изначально,Вы написали за качество? Или Вы не понимаете,что сами пишете? Добавлено через 1 минуту Качество, конечно, дешевым не бывает! Даже то же ЛДСП должно быть лучшего качества. И клеиться оно должно не в гаражах при +5 градусах по цельсию... Дешевые варианты я давно уже не рассматриваю. Ни для себя, ни для клиентов. Так вот, если сравнивать все материалы в своем лучшем (достойном) качестве, то все они примеоно на одном уровне. И при чем тут скрипки и яхты??? Мы же о мебели говорим. Не знаю ни одной хозяйки, которая бы за свою жизнь не хотела бы, хотя бы 2 раза поменять обстановочку на кухне. Отсюда вывод: мебель на века (?????) - это лишнее) А дерево я тоже люблю, оно у меня в фаворе Добавлено через 7 минут Желательно план помещения с выводами, список техники с размерами, которая должна будет интегрироваться в мебель и список отдельностоящей техники. Ну и ваши пожелания (угловая, прямая, островная, параллельная, полуостров и т.д.; цвет, материал, желаемая высота навесных ящиков, наличие или отсутствие дополнительных опций таких как свет, стекло, разные корзины, системы хранения, пеналы, барные стойки и т. д.) Этого хватит для первого этапа. План вы можете выслать непосредственно мне на почту indpro@i.ua или выложить здесь. Сразу ПАПЕРЕДЖУЮ, что срочно делать не могу, т.к. работаю. Всем нарисую обязательно в свободное время. А на мой вопрос,по поводу-фурнитуры,не ответили! Так зачем же тогда фурнитура-если кухня развалится? Посилання на коментар Поділитися на інших сайтах More sharing options...
OJuli Опубліковано: 24 травня 2013 Поділитись Опубліковано: 24 травня 2013 Жорик, на Ваш вопрос ответила: дешевые варианты не рассматриваю, и другим не советую! За сим, обсуждать кухни, которые разваливаются, не считаю нужным. А фурнитура должна быть BLUM. И точка. А про обстановочку, - это к тому, что нет смысла ставить мебель из дерева из которого изготавливают скрипки и яхты, потому что ЗАЧЕМ ОНА НУЖНА на 200 лет??? Правнукам по наследству передавать??? Заложенный срок эксплуатации, на мой взгляд, не должен превышать 20 лет. Все, что может прослужить дольше, это пустая переплата. Еще раз повторюсь, это лично мое мнение, и я никому его не пытаюсь навязать. Мои клиенты, по крайней мере, со мной согласны. Посилання на коментар Поділитися на інших сайтах More sharing options...
Seriy Опубліковано: 24 травня 2013 Поділитись Опубліковано: 24 травня 2013 Поделитесь мнением по такой проблеме. Шкаф под сушку посуды- у меня дома в нем дно не сплошное, а сделано из двух планок по краям, т е гуляет воздух и посуда сушится. Сейчас вот купил в Эпицентре кухню, а в ней сушильный шкаф глухой со всех сторон- а как же там будет сушиться посуда? Думаю просверлить в стенках, дне,верху дырки, что была циркуляция воздуха. Может есть другие решения? И какое стандартное расстояние от столешницы да низа повешенных шкафов. 55 см? Посилання на коментар Поділитися на інших сайтах More sharing options...
max_13 Опубліковано: 24 травня 2013 Поділитись Опубліковано: 24 травня 2013 И какое стандартное расстояние от столешницы да низа повешенных шкафов. 55 см? стандарт между верхом и низом 60см (без учета толщины столешницы) если столешница 40мм, то 560соответсвенно Но можно менять под себя 1 Посилання на коментар Поділитися на інших сайтах More sharing options...
AlSkil Опубліковано: 24 травня 2013 Поділитись Опубліковано: 24 травня 2013 Поделитесь мнением по такой проблеме. Шкаф под сушку посуды- у меня дома в нем дно не сплошное, а сделано из двух планок по краям, т е гуляет воздух и посуда сушится. Сейчас вот купил в Эпицентре кухню, а в ней сушильный шкаф глухой со всех сторон- а как же там будет сушиться посуда? Думаю просверлить в стенках, дне,верху дырки, что была циркуляция воздуха. Может есть другие решения? И какое стандартное расстояние от столешницы да низа повешенных шкафов. 55 см? Есть сушки с алюминиевой рамой внизу, не требует ни дна тумбы ни планок. эстетично и не подвержено негативному вилянию влаги. ПОкупайте именно такую сушку а из эпицентровского наборчика дно изымайте. Добавлено через 3 минуты стандарт между верхом и низом 60см (без учета толщины столешницы) если столешница 40мм, то 560соответсвенно Но можно менять под себя Я так себе представлял, что нет стандарта. Например вот кухня с пеналом советского периода Мрия высотой пенала определяла это расстояние как 450мм. Мне кажется что чем ниже тем удобней, но вступает в конфликт с обзором рабочей зоны на столешнице и с теплом, исходящим вверх от варочной панели. Но и тут есть решение - раздвинуть в стороны (если возможно) верхние секции по сторонам от варочной панели за счет более широкой вытяжки или отодвинув их от вытяжки. К тому же есть 3 стандартных варианта высоты столешницы - 860, 880, 910 (ножки 100 120 и 150 соответственно + 720 каркас +40столешница) и для этих разных высот одно и то же расстояние от столешницы до верхних секций будет давать разную высоту от уровня пола. 1 Посилання на коментар Поділитися на інших сайтах More sharing options...
KOLSSfasadi Опубліковано: 24 травня 2013 Поділитись Опубліковано: 24 травня 2013 Я привел примеры, когда компании берут на себя весь или практически весь риск, работая с частными клиентами. По всей видимости они прикинули, поработали и убедились, что проблемы возникают редко, риск приемлемый, возможные потери вполне покрывается прибылью. Поэтому возможна и аренда без залога, и кредит без залога, и 10% аванс и т.д. Кухонщики же упорно хотят покрыть авансом как минимум все затраты, а некоторые хотят еще и 100% предоплату. Наверное кухонщики "прикинули, поработали и убедились" что проблемы возникают достаточно часто, риск неприемлем, возможные потери не покрываются прибылью. Посилання на коментар Поділитися на інших сайтах More sharing options...
max_13 Опубліковано: 24 травня 2013 Поділитись Опубліковано: 24 травня 2013 Я так себе представлял, что нет стандарта. типа чтоб духовка встала Посилання на коментар Поділитися на інших сайтах More sharing options...
Atos_ua Опубліковано: 24 травня 2013 Поділитись Опубліковано: 24 травня 2013 Полностью согласна с предидущим автором по поводу того, что максимум риска несет заказчик. Заказали кухню в Ра-дизайн (ФОП Салий Радион), внесли предоплату - 8000 грн. Дом наш сгорел. Попросили изготовителя или упаковать заказ (если он готов - выкупим без монтажа), или приостановить, если не готов (до восстановления доМА). Все это время я звонила изготовителю, сообщала, что мы согласны забрать упакованную кухню. С помощью форумчан отстроились по новой. Вновь обратилась к изготовителю. Он зачем- то послал своего работника на новые замеры, несмотря на наши уверения, ччто сохранилась полностью как-раз та стенка, где должна была стоять кухня. Замерили еще раз - выяснили, что (судя по нашим копиям чертежей - ничего не изменилось). А далее нам была озвучена новая цена - значительно превышающая договорную. С тех пор - выиграли все суды, передали дело исполнительной службе - до сих пор деньги нам не вернули (равно, как и кухню). Изготовитель мотивировал это тем, что его затопило и он понес убытки (в числе прочих заказов пропала и наша кухня). При этом парень далеко не бедствует - просто он банальный вор. Сейчас сделали кухню в BRW - за те же деньги. Очень довольны качеством, фабричным исполнением и монтажем. Посилання на коментар Поділитися на інших сайтах More sharing options...
nikrash Опубліковано: 24 травня 2013 Поділитись Опубліковано: 24 травня 2013 Если материал - МДФ крашенный, то почти любая фирма, делающая крашенные фасады МДФ. Был бы премного благодарен за контакты, потмоу как, оказывается, далеко не любая . Посилання на коментар Поділитися на інших сайтах More sharing options...
OJuli Опубліковано: 25 травня 2013 Поділитись Опубліковано: 25 травня 2013 Сейчас сделали кухню в BRW - за те же деньги. Очень довольны качеством, фабричным исполнением и монтажем. Я как раз работаю в этой компании. Могу сказать, что кухни действительно качественные и красивые. Посилання на коментар Поділитися на інших сайтах More sharing options...
ozzy66 Опубліковано: 25 травня 2013 Поділитись Опубліковано: 25 травня 2013 соберет короба, установит. Это не сложно. Можно даже самому Мне интересно было бы посмотреть как это у Вас все легко и просто.Не парьте людям мозги.Установка и сборка тоже стоят нормальных денег. Добавлено через 10 минут Так зачем же тогда фурнитура-если кухня развалится? При хорошей фурнитуре кухня не развалится!!!!!! Посилання на коментар Поділитися на інших сайтах More sharing options...
Zhorik S Опубліковано: 25 травня 2013 Поділитись Опубліковано: 25 травня 2013 Мне интересно было бы посмотреть как это у Вас все легко и просто.Не парьте людям мозги.Установка и сборка тоже стоят нормальных денег. Добавлено через 10 минут При хорошей фурнитуре кухня не развалится!!!!!! А хорошая фурнитура,это какая? Хорошая фурнитура,это не только-BLUM BLUM-используется,потому что,пока другого в Украине нет.Выбора нет Но есть еще и такое- Grass (Австрия), Volpato (Италия), Vibo (Италия), Giusti (Италия), Forma e Funzione (Италия). Создал вам выбор. Всех благ Посилання на коментар Поділитися на інших сайтах More sharing options...
max_13 Опубліковано: 26 травня 2013 Поділитись Опубліковано: 26 травня 2013 Мне интересно было бы посмотреть как это у Вас все легко и просто.Не парьте людям мозги.Установка и сборка тоже стоят нормальных денег. Добавлено через 10 минут При хорошей фурнитуре кухня не развалится!!!!!! о чем базар?? Посилання на коментар Поділитися на інших сайтах More sharing options...
Borisg Опубліковано: 26 травня 2013 Поділитись Опубліковано: 26 травня 2013 BLUM-используется,потому что,пока другого в Украине нет.Выбора нет Что-то вы перегибаете, всё, что вы перечислили есть, а ещё Hettich,Hafele . Блюм наверное больше известен потребителям, а мебельщики знают и используют и всё остальное. Посилання на коментар Поділитися на інших сайтах More sharing options...
Zhorik S Опубліковано: 26 травня 2013 Поділитись Опубліковано: 26 травня 2013 Что-то вы перегибаете, всё, что вы перечислили есть, а ещё Hettich,Hafele . Блюм наверное больше известен потребителям, а мебельщики знают и используют и всё остальное. Замечательно Вот и создаем потребителю выбор. А то такое впечатление,что скрытая реклама-BLUM:) А потребитель не может сам разобраться. Потребитель не сидит сутками с каталогами и другой инфо Посилання на коментар Поділитися на інших сайтах More sharing options...
OJuli Опубліковано: 27 травня 2013 Поділитись Опубліковано: 27 травня 2013 А мы Hettich используем для всей остальной мебели. А в кухнях только Blum. Посилання на коментар Поділитися на інших сайтах More sharing options...
Borisg Опубліковано: 27 травня 2013 Поділитись Опубліковано: 27 травня 2013 И чем вам Хеттих в кухнях неугодил? Посилання на коментар Поділитися на інших сайтах More sharing options...
shao Опубліковано: 27 травня 2013 Поділитись Опубліковано: 27 травня 2013 подскажите где хороший выбор фурнитуры - ручек на фасады? интересует посмотреть/потрогать/заказать. Посилання на коментар Поділитися на інших сайтах More sharing options...
mebli-land Опубліковано: 27 травня 2013 Поділитись Опубліковано: 27 травня 2013 И чем вам Хеттих в кухнях неугодил? Если поставить Хеттих и Блюм рядом, то тогда заметите разницу при тандембоксах ( к примеру). Блюм плавно и без счелчка закрывается, а в Хеттихе идет выраженная остановка с счелчком и уже после закрытие. Вот эта мелочь, на мой вгляд, и играет важную роль в выборе Блюма а не Хеттиха. Посилання на коментар Поділитися на інших сайтах More sharing options...
AlSkil Опубліковано: 27 травня 2013 Поділитись Опубліковано: 27 травня 2013 типа чтоб духовка встала Никогда не связывал высоту рабочей зоны с духовкой. Бывает, что духовка в пенале на высоте от пола "H.ножки + 360 (290/ 420 / 580)", а над ней еще СВЧ , СВЧ производители выше 1200 от пола не рекомендуют ставить. Да и духовка не всегда в пенале. Добавлено через 7 минут Полностью согласна с предидущим автором по поводу того, что максимум риска несет заказчик. С тех пор - выиграли все суды, передали дело исполнительной службе - до сих пор деньги нам не вернули (равно, как и кухню). Изготовитель мотивировал это тем, что его затопило и он понес убытки (в числе прочих заказов пропала и наша кухня). При этом парень далеко не бедствует - просто он банальный вор. Сейчас сделали кухню в BRW - за те же деньги. Очень довольны качеством, фабричным исполнением и монтажем. Это он кому мотивировал затоплением, суду или ИС? Затопило как, через кровлю или паводок\наводнение? И "все суды", это что значит, что он подавал апелляции? Добавлено через 9 минут Если поставить Хеттих и Блюм рядом, то тогда заметите разницу при тандембоксах ( к примеру). Блюм плавно и без счелчка закрывается, а в Хеттихе идет выраженная остановка с счелчком и уже после закрытие. Вот эта мелочь, на мой вгляд, и играет важную роль в выборе Блюма а не Хеттиха. Да, есть такая фитча у Хетих, но можно ли считать это изъяном? Есть другое, Иннотех от Хетих более туго открывается чем тандембокс Блюм. И на это есть довольно обоснованное технологическое объяснение. В основе - разная организация скольжения. Я - за тандембокс от Блюм. Были негативные примеры с Хетих пару раз. Один раз в карго Хетих, второй раз в карго Инокса. Не дотягивала одна направляющая, а на новенькой Иноксе за 1 месяц карго стало влетать без смягчения. Иннотех шумнее, как-то более туго работает, макс. доступная высота ящика ниже чем у Блюм. В Хетих одна пружина, в Блюм две (растянуты по-разному чтобы обеспечить равномерность движения в разных стадиях закрытия). Иннотех от Хетих дороже Блюма в Киеве. А подъемные мех-змы от Блюм вообще вне сравнения. Посилання на коментар Поділитися на інших сайтах More sharing options...
Borisg Опубліковано: 27 травня 2013 Поділитись Опубліковано: 27 травня 2013 От "Сенсис" всё равно не откажусь! Посилання на коментар Поділитися на інших сайтах More sharing options...
Atos_ua Опубліковано: 28 травня 2013 Поділитись Опубліковано: 28 травня 2013 Это он кому мотивировал затоплением, суду или ИС? Затопило как, через кровлю или паводок\наводнение? И "все суды", это что значит, что он подавал апелляции? Он тянул время, сначала отказывался получать письменные уведомления, получил заказное письмо только от моего доверенного лица (другая фамилия). не являлся в суд, а потом его адвокат потребовал пересмотра дела, т.к. ответчик не присутствовал на заседании, затем после выигранного нами пересмотра - подавал аппеляции и вновь не являлся. В общем, так протянул два года. Исполнительная служба говорит, что мы не единственные, у кого к нему претензии. А про то, что он понес убытки, говорилось и истцу (то есть, мне), и суду. Посилання на коментар Поділитися на інших сайтах More sharing options...
ozzy66 Опубліковано: 28 травня 2013 Поділитись Опубліковано: 28 травня 2013 Что-то вы перегибаете, всё, что вы перечислили есть, а ещё Hettich,Hafele . Блюм наверное больше известен потребителям, а мебельщики знают и используют и всё остальное. Hettich,Hafele это порожень по сравнению с BLUM.Имел не осторожность связаться с Hettich и имел проблему на свою голову Добавлено через 9 минут И чем вам Хеттих в кухнях неугодил? А вы поставьте подъемный механизм Хеттиш и Блюм и увидите большую разницупри этом цена на подъемники почти одинаковая Посилання на коментар Поділитися на інших сайтах More sharing options...
Рекомендовані повідомлення
Створіть акаунт або увійдіть у нього для коментування
Ви маєте бути користувачем, щоб залишити коментар
Створити акаунт
Зареєструйтеся для отримання акаунта. Це просто!
Зареєструвати акаунтУвійти
Вже зареєстровані? Увійдіть тут.
Увійти зараз