k.alena Опубліковано: 17 травня 2017 Поділитись Опубліковано: 17 травня 2017 Как только вы начнете мыть пол возле шкафа с боковиной в пол, низ боковины быстро начнет вздуваться. Ну если Вы моете пол по принципу палубы - вылили ведро воды и развезли это все по поверхности - то конечно вздуется. А так... 13 лет моем, нигде ничего не вздулось. Это при том, что кромки не заторцованы а одета П-образная накладка (или как ее назвать?) т.е. возможностей для влаги просочиться больше ;) Добавлено через 1 минуту При такой конструкции, как на фото, можно отрегулировать шкаф не по стене, а по горизонтали. И тогда двери раздвижной системы будут работать правильно, а не съезжать в сторону. Мне казалось, что шкафы всегда выставляют по уровню, а не по стене при любых видах конструкции ... Посилання на коментар Поділитися на інших сайтах More sharing options...
mest_3844 Опубліковано: 17 травня 2017 Поділитись Опубліковано: 17 травня 2017 С торцом вам просто повезло. А может, там еще и просиликонили под П-образной кромкой? А регулировка шкафа гораздо более практичная в конструкции с отдельным дном (как на фото) 1 Посилання на коментар Поділитися на інших сайтах More sharing options...
lagish Опубліковано: 18 травня 2017 Поділитись Опубліковано: 18 травня 2017 низ боковины быстро начнет вздуваться. Вы считаете,что вздутый цоколь поменять проще или дешевле чем вздутую боковину? Посилання на коментар Поділитися на інших сайтах More sharing options...
k.alena Опубліковано: 18 травня 2017 Поділитись Опубліковано: 18 травня 2017 С торцом вам просто повезло. На всех шкафах? Везучая я А может, там еще и просиликонили под П-образной кромкой? Никто ничего не силиконил. У меня на доли мм утолщалось ДСП только в шкафу с сушкой для посуды, куда влага попадает непосредственно и регулярно. И назвать это "вздутием" - большое преувеличение... Используйте качественную ДСП и будет Вам счастье ;) Посилання на коментар Поділитися на інших сайтах More sharing options...
lagish Опубліковано: 12 червня 2017 Поділитись Опубліковано: 12 червня 2017 Прошу совета. Есть желание на гардеробную поставить или "купейную" одну дверь,рваспашную или в алюминевом рамочном профиле.Наполнение фотопечать,проём 2300*870. Какой вариант практичнее в данном случае? Посилання на коментар Поділитися на інших сайтах More sharing options...
glumanes Опубліковано: 12 червня 2017 Поділитись Опубліковано: 12 червня 2017 Прошу совета. Есть желание на гардеробную поставить или "купейную" одну дверь,рваспашную или в алюминевом рамочном профиле.Наполнение фотопечать,проём 2300*870. Какой вариант практичнее в данном случае? Распашная великовата будет Посилання на коментар Поділитися на інших сайтах More sharing options...
lagish Опубліковано: 13 червня 2017 Поділитись Опубліковано: 13 червня 2017 Распашная великовата будет Так раздвижная совсем смешная... А чем чревата величина?Не охота делить на две половины,тем более,что 350мм проёма занимает боковина пенала. Посилання на коментар Поділитися на інших сайтах More sharing options...
Borisg Опубліковано: 13 червня 2017 Поділитись Опубліковано: 13 червня 2017 Так раздвижная совсем смешная... Может складные? 1 Посилання на коментар Поділитися на інших сайтах More sharing options...
lagish Опубліковано: 14 червня 2017 Поділитись Опубліковано: 14 червня 2017 Может складные? "Троллейбус" не охота.Не корректно открываются,плохо фиксируются закрытыми. Забыл сказать,порога(днища) не будет. Посилання на коментар Поділитися на інших сайтах More sharing options...
Yutxaus Опубліковано: 14 червня 2017 Поділитись Опубліковано: 14 червня 2017 Прошу совета. Есть желание на гардеробную поставить или "купейную" одну дверь,рваспашную или в алюминевом рамочном профиле.Наполнение фотопечать,проём 2300*870. Какой вариант практичнее в данном случае? Покажите рисунком или фото место размещения шкафа. Т.к. есть ньюансы ... Посилання на коментар Поділитися на інших сайтах More sharing options...
lagish Опубліковано: 14 червня 2017 Поділитись Опубліковано: 14 червня 2017 Покажите рисунком С рисунком сложно...я на пальцах. Имеем нишу,глубиной 1300,широной 870,высотта 2500.В нише будет два шкафа.Первый по короткой стороне глубиной 600,второй по длинной примыкает к первому,глубиной 350(остаётся870-350=520мм прохода по ширине ниши).Всё это спрятано за общим фасадом.Одинарный сдвигать некуда,двойной,слишком узкие половинки. Думаю может это будет фасад в аллюминевом М-4 профиле на петлях... Посилання на коментар Поділитися на інших сайтах More sharing options...
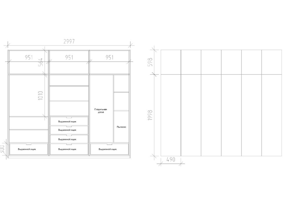
Добрый Эээх Опубліковано: 16 червня 2017 Поділитись Опубліковано: 16 червня 2017 Все привет. Интересует мнение знатоков про шкаф. Вводные: Есть ниша в зале которую хотелось бы заполнить чем то полезным. Так как нет кладовки в доме, то есть желание соорудить нечто для хранения всего, что жалко выбросить и просто бытовых вещей. Ширина ниши 2997мм Высота 2650мм Глубина 400мм. Из-за такой глубины отказался от механизма купе. Мне уже говорили, что полки не рекомендуют делать шире 800мм, но вариантов нет, если делать не 3 ниши, а 4, то ширина двери остаётся вообще 355мм, что при высоте в 2 метра будет как троллейбусная дверь. Полки, что над выдвижными ящиками будут посажены на шканты и конфирматы. Остальные скорее всего на полкодержатели. ДСП корпуса - 18мм Фасады ещё не выбрал, но рекомендовали использовать хороший МДФ с лазерной поклейкой кромки. Или же ДСП но с PUR клеем По итогу, хотел бы получить что то, как на фото. Посилання на коментар Поділитися на інших сайтах More sharing options...
lagish Опубліковано: 16 червня 2017 Поділитись Опубліковано: 16 червня 2017 Покажите рисунком Получился рисунок... Посилання на коментар Поділитися на інших сайтах More sharing options...
Borisg Опубліковано: 17 червня 2017 Поділитись Опубліковано: 17 червня 2017 Получился рисунок... Справа сделать глухую часть, (она же может быть стенкой полок) , а собственно дверь сделать на ширину прохода. 1 Посилання на коментар Поділитися на інших сайтах More sharing options...
Волчок Опубліковано: 18 червня 2017 Поділитись Опубліковано: 18 червня 2017 С рисунком сложно...я на пальцах. Имеем нишу,глубиной 1300,широной 870,высотта 2500.В нише будет два шкафа.Первый по короткой стороне глубиной 600,второй по длинной примыкает к первому,глубиной 350(остаётся870-350=520мм прохода по ширине ниши).Всё это спрятано за общим фасадом.Одинарный сдвигать некуда,двойной,слишком узкие половинки. Думаю может это будет фасад в аллюминевом М-4 профиле на петлях... Сделайте складную дверь или на механизмах Hettich Wing line 770 или Starke. Или на боковину шкафа глубиной 350 мм навесьте на равнолежащих петлях дверь шириной оставшегося проема (520 мм). 1 Посилання на коментар Поділитися на інших сайтах More sharing options...
glumanes Опубліковано: 21 червня 2017 Поділитись Опубліковано: 21 червня 2017 Все привет. Интересует мнение знатоков про шкаф. Вводные: Есть ниша в зале которую хотелось бы заполнить чем то полезным. Так как нет кладовки в доме, то есть желание соорудить нечто для хранения всего, что жалко выбросить и просто бытовых вещей. Ширина ниши 2997мм Высота 2650мм Глубина 400мм. Из-за такой глубины отказался от механизма купе. Мне уже говорили, что полки не рекомендуют делать шире 800мм, но вариантов нет, если делать не 3 ниши, а 4, то ширина двери остаётся вообще 355мм, что при высоте в 2 метра будет как троллейбусная дверь. Полки, что над выдвижными ящиками будут посажены на шканты и конфирматы. Остальные скорее всего на полкодержатели. ДСП корпуса - 18мм Фасады ещё не выбрал, но рекомендовали использовать хороший МДФ с лазерной поклейкой кромки. Или же ДСП но с PUR клеем По итогу, хотел бы получить что то, как на фото. Нормальный вариант, только сделайте весь шкаф на рафиксах Посилання на коментар Поділитися на інших сайтах More sharing options...
Dimonn4ik Опубліковано: 23 червня 2017 Поділитись Опубліковано: 23 червня 2017 Всем привет Нужен шкаф купе. - Выполнить замер (коцюбинское) - Проконсультировать по наполнению - Изготовить - Привезти - Установить Материал: - ДСП Свиспан дуб усурийский - Алюсервис раздвижная система - Рейсовские телескопические направляющие усиленные - Дверь дуб усурийский верх низ по 40см центр зеркало - Без задней стенки и без одной боковины ( встроенный ) (Либо аналогичное наполнение советуйте) Интересует цена в комплексе. Предварительный чертеж прикрепляю жду ответа заранее спасибо. Посилання на коментар Поділитися на інших сайтах More sharing options...
Scholl Опубліковано: 25 червня 2017 Поділитись Опубліковано: 25 червня 2017 Добрый вечер. Мастера мебельщики прошу помочь определить что за система у шкафа-купе на фотографиях ? Посилання на коментар Поділитися на інших сайтах More sharing options...
lagish Опубліковано: 25 червня 2017 Поділитись Опубліковано: 25 червня 2017 что за система у шкафа-купе примерно такая Посилання на коментар Поділитися на інших сайтах More sharing options...
Scholl Опубліковано: 26 червня 2017 Поділитись Опубліковано: 26 червня 2017 А какой алюминиевый профиль (производитель, ширина) нужно использовать, чтобы сделать фасады шкафа из стекла "Лакобель" или акрила ? Киньте, пожалуйста, ссылку на профиля, которые выдержат... Посилання на коментар Поділитися на інших сайтах More sharing options...
Волчок Опубліковано: 26 червня 2017 Поділитись Опубліковано: 26 червня 2017 А какой алюминиевый профиль (производитель, ширина) нужно использовать, чтобы сделать фасады шкафа из стекла "Лакобель" или акрила ? Киньте, пожалуйста, ссылку на профиля, которые выдержат... Все зависит от размера фасадов. В каждой системе есть свои ограничения. Но в любой системе профилей можно применить как заполнение стекло "лакобель" или акрил. Например viyar.ua/catalog/razdvizhnye_sistemy_starke/ или аналогичные алюминиевые системы. Посилання на коментар Поділитися на інших сайтах More sharing options...
Scholl Опубліковано: 1 липня 2017 Поділитись Опубліковано: 1 липня 2017 Все зависит от размера фасадов. В каждой системе есть свои ограничения. Но в любой системе профилей можно применить как заполнение стекло "лакобель" или акрил. Например viyar.ua/catalog/razdvizhnye_sistemy_starke/ или аналогичные алюминиевые системы. Размеры фасада: 2500х985мм. - 2 шт. А вот этот Хеттиховский профиль можно применить для стекла "лакобель" или акрила ? Или он предназначен для других целей ? Спасибо. viyar.ua/catalog/profil_slideline_55_l_4000mm_alyuminiy_1079090_hettich/ Посилання на коментар Поділитися на інших сайтах More sharing options...
Borisg Опубліковано: 1 липня 2017 Поділитись Опубліковано: 1 липня 2017 предназначен для других целей ? Именно так, это ходовой профиль для системы с маленькими дверями из ДСП. Посилання на коментар Поділитися на інших сайтах More sharing options...
Scholl Опубліковано: 1 липня 2017 Поділитись Опубліковано: 1 липня 2017 Именно так, это ходовой профиль для системы с маленькими дверями из ДСП. А Вы не подскажите качественный профиль шириной от 50 мм ? Посилання на коментар Поділитися на інших сайтах More sharing options...
Borisg Опубліковано: 1 липня 2017 Поділитись Опубліковано: 1 липня 2017 viyar.ua/catalog/profil_vertikalnyy_zakrytyy_kvadro_anodir_pokrytie_serebro_5_2m/ 1 Посилання на коментар Поділитися на інших сайтах More sharing options...
Рекомендовані повідомлення
Створіть акаунт або увійдіть у нього для коментування
Ви маєте бути користувачем, щоб залишити коментар
Створити акаунт
Зареєструйтеся для отримання акаунта. Це просто!
Зареєструвати акаунтУвійти
Вже зареєстровані? Увійдіть тут.
Увійти зараз