Janeva Опубліковано: 5 жовтня 2010 Поділитись Опубліковано: 5 жовтня 2010 Старшему 10 с половиной лет, уже достаточно самостоятельный ребенок. Сам ездит в школу (недалеко) и в бассейн (на Спартак с двумя пересадками). Иногда помогает, если оооочень попросить:D Младшие еще малявки, разнополые двойняшки, в декабре будет два года. Все, пошли женские ути-пути... мы никак не пойдем на второго - жилплощадь маленькая, а вы помещаетесь сейчас в жилом пространстве или к строительству дома также подтолкнуло увеличение семейства? Молодцы, одним словом, еще и детки маленькие, а вы строиться надумали. Напорства, решительности и удачи вам! 1 Посилання на коментар Поділитися на інших сайтах More sharing options...
Damiani Опубліковано: 13 жовтня 2010 Автор Поділитись Опубліковано: 13 жовтня 2010 Ура!!! у нас уже есть фундамент!!!:Yahoo!: Ушло ок. 36 кубов бетона, почти тонна арматуры, 4 куба досок на опалубку, 10 кг проволоки и 10 кг гвоздей. Посилання на коментар Поділитися на інших сайтах More sharing options...
Damiani Опубліковано: 13 жовтня 2010 Автор Поділитись Опубліковано: 13 жовтня 2010 Работнички допустили ляп пришлось доливать еще несколько кубов бетона, что бы этот ляп выровнять Окончательный вариант нашего фундамента Посилання на коментар Поділитися на інших сайтах More sharing options...
Sandi Опубліковано: 13 жовтня 2010 Поділитись Опубліковано: 13 жовтня 2010 Работнички допустили ляп пришлось доливать еще несколько кубов бетона, что бы этот ляп выровнять Окончательный вариант нашего фундамента Фундамент благополучия. 1 Посилання на коментар Поділитися на інших сайтах More sharing options...
Oleksandr Protsev Опубліковано: 13 жовтня 2010 Поділитись Опубліковано: 13 жовтня 2010 С началом, Вас. До весны останавливаетесь? Похоже, что мы будем строиться параллельно. Удачи. 1 Посилання на коментар Поділитися на інших сайтах More sharing options...
Damiani Опубліковано: 13 жовтня 2010 Автор Поділитись Опубліковано: 13 жовтня 2010 С началом, Вас. До весны останавливаетесь? Похоже, что мы будем строиться параллельно. Удачи. Спасибо)) Да, продолжение будет уже весной. А пока мы ждем проект от нашего архитектора. Посилання на коментар Поділитися на інших сайтах More sharing options...
Banan Опубліковано: 14 жовтня 2010 Поділитись Опубліковано: 14 жовтня 2010 Поздравляю вас, соседи! Удачи вам во всём! Если могу быть чем-то полезен, буду рад. 1 Посилання на коментар Поділитися на інших сайтах More sharing options...
Damiani Опубліковано: 14 жовтня 2010 Автор Поділитись Опубліковано: 14 жовтня 2010 Спасибо Кстати, как вы там? Переехали в дом? Посилання на коментар Поділитися на інших сайтах More sharing options...
Banan Опубліковано: 14 жовтня 2010 Поділитись Опубліковано: 14 жовтня 2010 Спасибо Кстати, как вы там? Переехали в дом? Ну если мой дом можно назвать полноценным домом, то почти переехал. Сейчас самостоятельно укладываю плитку и всё, что бы возможно было перезимовать. Через неделю обязан освободить сьёмную квартиру и окончательно переехать в Малютянку... Другого варианта пока нет Посилання на коментар Поділитися на інших сайтах More sharing options...
Damiani Опубліковано: 15 жовтня 2010 Автор Поділитись Опубліковано: 15 жовтня 2010 Banan, надеюсь, что с продажей дома вы передумали;) Все наладится))) Посилання на коментар Поділитися на інших сайтах More sharing options...
Banan Опубліковано: 15 жовтня 2010 Поділитись Опубліковано: 15 жовтня 2010 Banan, надеюсь, что с продажей дома вы передумали;) Все наладится))) Так оно и есть... Надеюсь, спасибо! 1 Посилання на коментар Поділитися на інших сайтах More sharing options...
Damiani Опубліковано: 15 жовтня 2010 Автор Поділитись Опубліковано: 15 жовтня 2010 Хочу поделиться своей радостью:Yahoo!: Сегодня нам наконец-то привезли нового члена семьи - бигленыша по имени Верона Санвита (ссылка на изображение устарела)(ссылка на изображение устарела) Это маленькое чудо приехало к нам из славного города Львова и уже успело за несколько часов пребывания в нашем доме загонять моих двух младших детей Дети в восторге от пёсы. Посилання на коментар Поділитися на інших сайтах More sharing options...
Nat Опубліковано: 15 жовтня 2010 Поділитись Опубліковано: 15 жовтня 2010 Хочу поделиться своей радостью:Yahoo!: Поздравляем с прибавлением в семействе ! 1 Посилання на коментар Поділитися на інших сайтах More sharing options...
Damiani Опубліковано: 15 жовтня 2010 Автор Поділитись Опубліковано: 15 жовтня 2010 Поздравляем с прибавлением в семействе ! Спасибо! Вы не представляете, как я ей рада)) Ждала с самого ее рождения))) Конечно это не охранная собака, и не сторожевая:D Это в первую очередь домашний любимец))))) Посилання на коментар Поділитися на інших сайтах More sharing options...
Banan Опубліковано: 15 жовтня 2010 Поділитись Опубліковано: 15 жовтня 2010 Ой, какая добряшка... Надеюсь на знакомство 1 Посилання на коментар Поділитися на інших сайтах More sharing options...
Damiani Опубліковано: 15 жовтня 2010 Автор Поділитись Опубліковано: 15 жовтня 2010 Ой, какая добряшка... Надеюсь на знакомство мы надеемся тоже Там у нас вроде зайцы водятся (жена Максима говорила), будет кому на них охотится:D Посилання на коментар Поділитися на інших сайтах More sharing options...
pochta5 Опубліковано: 16 жовтня 2010 Поділитись Опубліковано: 16 жовтня 2010 Как интересно... Как раз сегодня встречался с Максимом, смотрел участки Еще один потенциальный сосед... Сравниваю с Рославичами. Посилання на коментар Поділитися на інших сайтах More sharing options...
Damiani Опубліковано: 17 жовтня 2010 Автор Поділитись Опубліковано: 17 жовтня 2010 Как интересно... Как раз сегодня встречался с Максимом, смотрел участки Еще один потенциальный сосед... Сравниваю с Рославичами. Присоединяйтесь! Будем рады соседству! Посилання на коментар Поділитися на інших сайтах More sharing options...
Vasiliev Опубліковано: 18 жовтня 2010 Поділитись Опубліковано: 18 жовтня 2010 Работнички допустили ляп пришлось доливать еще несколько кубов бетона, что бы этот ляп выровнять Окончательный вариант нашего фундамента Чем-то наш напоминает Ну и поздравляю с очередным пополнением семейства . Часть энергии детки на собаку сливать будут :D. Собаку обучите менять памперсы и читать сказки и будет вам помощник. 1 Посилання на коментар Поділитися на інших сайтах More sharing options...
Damiani Опубліковано: 18 жовтня 2010 Автор Поділитись Опубліковано: 18 жовтня 2010 (змінено) Чем-то наш напоминает Ну и поздравляю с очередным пополнением семейства . Часть энергии детки на собаку сливать будут :D. Собаку обучите менять памперсы и читать сказки и будет вам помощник. Спасибо! и ваше семейство тоже с пополнением да-да, мечта любой мамки - иметь бесплатную няньку:D Пока же приходится менять подгузники всем троим:D Пы.сы. То, что я удалила - привет от среднего ре Змінено 18 жовтня 2010 користувачем Damiani Посилання на коментар Поділитися на інших сайтах More sharing options...
Breakneck Опубліковано: 18 жовтня 2010 Поділитись Опубліковано: 18 жовтня 2010 Мои поздравления с окончанием фундамента! Удачной стройки! 1 Посилання на коментар Поділитися на інших сайтах More sharing options...
Damiani Опубліковано: 18 жовтня 2010 Автор Поділитись Опубліковано: 18 жовтня 2010 Мои поздравления с окончанием фундамента! Удачной стройки! А вам еще раз спасибо за наводку;) Посилання на коментар Поділитися на інших сайтах More sharing options...
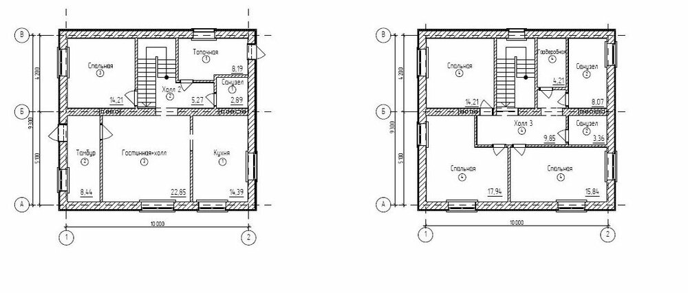
Damiani Опубліковано: 26 жовтня 2010 Автор Поділитись Опубліковано: 26 жовтня 2010 А мы уже с проектом!!!!:Yahoo!: Вот так будет выглядеть наш дом в скором будущем Планировка первого и второго этажа Посилання на коментар Поділитися на інших сайтах More sharing options...
Nat Опубліковано: 26 жовтня 2010 Поділитись Опубліковано: 26 жовтня 2010 А мы уже с проектом!!!!:Yahoo!: Вот так будет выглядеть наш дом в скором будущем Поздравляем ! Это уже серьезная заявка на успех ... 1 Посилання на коментар Поділитися на інших сайтах More sharing options...
Vasiliev Опубліковано: 27 жовтня 2010 Поділитись Опубліковано: 27 жовтня 2010 Красота... Поздравляю, теперь можете визуализировать свои мечты уже явным образом. Молодцы, тамбур не забыли... Камин в гостиной будет? У вас в каждой спальне вентканал что ли будет стоять? Как-то странно. Ну ладно справа там все ясно - 3 с-у и кухня. А слева? Где канал дымоудаления и канал вентиляции для топочной? Перекрываться чем будем? Сборным ж-б? 1 Посилання на коментар Поділитися на інших сайтах More sharing options...
Рекомендовані повідомлення
Створіть акаунт або увійдіть у нього для коментування
Ви маєте бути користувачем, щоб залишити коментар
Створити акаунт
Зареєструйтеся для отримання акаунта. Це просто!
Зареєструвати акаунтУвійти
Вже зареєстровані? Увійдіть тут.
Увійти зараз