Перейти до публікації
Пошук в
  • Додатково...
Шукати результати, які містять...
Шукати результати в...

смета на фундамент и подвал

AleSok

Рекомендовані повідомлення

Мне фирма строит дом в Киево-Святошинском районе.

Сейчас делают фундамент-подвал. Вот такие вот расценки. Качество хорошее, прораб контролирует, подвоз и закупку материалов делают сами, если надо. Залив бетона из миксиров

 

На сколько это адекватная стоимость, по сравнению с рыночными?

 

Спасибо

Акт №1_на строительство дома.xls

Змінено користувачем AleSok
Посилання на коментар
Поділитися на інших сайтах

я не спец в сметах, но что помоему дофига :)) изготовление опалубки и установка опалубки (п. 1.4 и 1.5) - это что принципиально разные процессы какие-то, что они посчитаны дважды и по недурственной цене такой?

 

Общепроизводственные расходы - это что за прелесть?

 

охрана участка реально нужна? какой срок выполнения работ? 34 дня?

бетон какой-то дешовый - 200 гривен. что за марка? или это трюк такой - мол мы вам за бетон меньше выставим, а на работах своё возьмём?

 

Меня как человека, которого ждёт тоже в ближайшее время общая цифра пугает. какой у вас размер фундамента и площадь/глубина подвала. я как то думал что эта прелесть размером 10*10 больше 7 - 8 штук бакинских не потянет. у вас вижу получилось больше.

 

но спросите мнения специалистов - я профан чес говоря.

Посилання на коментар
Поділитися на інших сайтах

Ответил в личку.

 

Gamburger-- эта прелесть и больше 5куе не потянет.

200гривень это не бетон, а бетонирование. и 200грн очень нормальная стоимость за куб, учитывая что за опалубку берут в итоге 50грн, за армировку 3700грн -тонна. Можна построить один фундамент в год и радоваться жизни.:drinks: Да охрана порадовала тоже.

Посилання на коментар
Поділитися на інших сайтах

Мне фирма строит дом в Киево-Святошинском районе.

Сейчас делают фундамент-подвал. Вот такие вот расценки. Качество хорошее, прораб контролирует, подвоз и закупку материалов делают сами, если надо. Залив бетона из миксиров

 

На сколько это адекватная стоимость, по сравнению с рыночными?

 

Спасибо

 

ни фига себе .... я закончил этап перекрытого и утепленного цоколя и уже точно представляю сколько это стоит...это дорого

 

особенно порадовал экскаватор ... за эти деньги я смог бы вырыть 4-е котлована, но у меня грунта поболее, около 400 кубов :)

Посилання на коментар
Поділитися на інших сайтах

Ответил в личку.

 

Gamburger-- эта прелесть и больше 5куе не потянет.

200гривень это не бетон, а бетонирование.

 

то есть стоимость бетона вообще не включена сюда? тогда вообще сумасшедшая цена

Посилання на коментар
Поділитися на інших сайтах

особенно порадовал экскаватор ... за эти деньги я смог бы вырыть 4-е котлована, но у меня грунта поболее, около 400 кубов :)

 

если по-конкретней - по чём у Вас куб рытья котлована экскаватором? (включая его доставку на объект)

Посилання на коментар
Поділитися на інших сайтах

если по-конкретней - по чём у Вас куб рытья котлована экскаватором? (включая его доставку на объект)

 

Самый стандартный экскаватор Атлас с 1.2м.куб. ковшом за смену 8 часов отрабатывает 300 кубов. Это для него норма при неспешной работе. Смена по Киевской области 1800-2000 грн. Ну доставка 250 грн, ну 500. В Вашем варианте по максимуму 2-е смены. Берем максимум - 2000*2+500 = 4500, а реально около 3000-3500грн.

 

А вообще считают от 7 до 10 грн за куб.

 

Это по Вашей смете самое вопиющее...а остальное - много позиций, но реально нужно говорить об стоимости за куб залитого бетона с армированием, опалубкой и т.п. и его стоимость должна колебаться в зависимости от сложности и вариантов заливки от 250 до 350грн за куб. Цифры ориентировочные, но на мой взгляд не далекие от истины.

 

16т.грн за доску для опалубки - проще было взять профессиональную опалубку ИМХО, результат лучше, стоимость работ - дешевле, да и аренда я думаю дешевле.

Посилання на коментар
Поділитися на інших сайтах

Мне фирма строит дом в Киево-Святошинском районе.

Сейчас делают фундамент-подвал. Вот такие вот расценки. Качество хорошее, прораб контролирует, подвоз и закупку материалов делают сами, если надо. Залив бетона из миксиров

 

На сколько это адекватная стоимость, по сравнению с рыночными?

 

Спасибо

 

:crazy: мне нечего добавить, везде и все завышено! Как по мне проще было по рекомендациям ворумчан найти себе хорошую бригаду которая все это сделала бы намного дешевле!

пысы. убило в смете - охрана участка - 5тищ.... разгрузка/погрузка и складирование тоже не мало..., а они за еклектричевство которое будут юзать для подогрева пищи вам будут оплачивать? а запитка прорабского вагончика? а воду сами будут себе из дому возить?

Посилання на коментар
Поділитися на інших сайтах

а можно увидеть проект, понять сложность. какой участок. чтобы иметь представление о чем идет речь.
Посилання на коментар
Поділитися на інших сайтах

Пункт 1.2. У меня работали - 18грн м3 (экскаватор - ковш 1м3 и краз 16кубовик ) это был ландшафт, а под фундамент экскаватор 30 грн м.п при глубине 2.5 метра, а метров было 100
Посилання на коментар
Поділитися на інших сайтах

Зачем так сложно?

У меня было все гораздо проще:

 

- Разбивка здания и вынос осей в натуру - 400 грн.

- Разработка грунта вручную с перемещением в отвалы - 50 грн/м3

- Работа экскаватора (включая доставку) - 200 грн/час.

- Монолитные работы из миксера (включая установку/снятие опалубки, армирование) - 200 грн/м3

- Обратная засыпка - 25 грн/м3

 

Мой подвал с фундаментом обошелся мне в 80 т. грн. с материалами (50 м3 бетона) из них за работу заплатил 16 т. грн.

Посилання на коментар
Поділитися на інших сайтах

:crazy: мне нечего добавить, везде и все завышено! Как по мне проще было по рекомендациям ворумчан найти себе хорошую бригаду которая все это сделала бы намного дешевле!

пысы. убило в смете - охрана участка - 5тищ.... разгрузка/погрузка и складирование тоже не мало..., а они за еклектричевство которое будут юзать для подогрева пищи вам будут оплачивать? а запитка прорабского вагончика? а воду сами будут себе из дому возить?

 

Строители на участке по ночам не жили. Охрана была выставлено по согласованию со мной, дабы не украли доски на 16 000 грн и арматуру на 22 000 грн. Да, складирование стоило денег, так как надо было 15 кубов доски уложить в подвал для хранения на зиму.

 

По остальным позициям интересует прежде всего конструктивное сравнение цен которые существенно влияют на стоимость, а не мелочёвка в виде складирования доски

Посилання на коментар
Поділитися на інших сайтах

Строители на участке по ночам не жили. Охрана была выставлено по согласованию со мной, дабы не украли доски на 16 000 грн и арматуру на 22 000 грн. Да, складирование стоило денег, так как надо было 15 кубов доски уложить в подвал для хранения на зиму.

 

По остальным позициям интересует прежде всего конструктивное сравнение цен которые существенно влияют на стоимость, а не мелочёвка в виде складирования доски

 

Поставить опалубку, вязка арматуры, заливка с беномешалки с уплотнением, а потом снять опалубку 300-350 грн м.куб. с миксера однозначно дешевле!

Посилання на коментар
Поділитися на інших сайтах

Мне фирма строит дом в Киево-Святошинском районе.

Сейчас делают фундамент-подвал. Вот такие вот расценки. Качество хорошее, прораб контролирует, подвоз и закупку материалов делают сами, если надо. Залив бетона из миксиров

 

На сколько это адекватная стоимость, по сравнению с рыночными?

 

Спасибо

 

Как бывший снабженец, по материалам все нормуль, в пределах допуска (можно конечно было где то сэкономить, но начинка выделки не стоит). По всем работам не берусь судить, но по арм-каркасу 2200 за тону многовато, у меня знакомые за такую цену сложные МК делают, а арм-каркас - работа фигня.

 

А вот тут

арматуру на 22 000 грн.
вы погарячились батенька, исходя из вышеописанных 3,4тн на 22 кило грн, 1тн=6407 что весьма дорого на сегодня (причем какая бы то не была арматура)
Посилання на коментар
Поділитися на інших сайтах

  • 3 тижні потому...

А Ваш подрядчик - фирма, предоставляет все соответствующие документы на свою работу?

Журналы выполнения работ?

Акты на скрытые работы?

Назначен ли приказом прораб?

Заключен ли письменный договор строительного подряда?

Установлен ли щит или вывеска - паспорт строительства, размером 100х150 см.

Убедились ли Вы в наличии у фирмы лицензии генерального подрядчика?

Или фирма Вам просто фундамент залила за такие деньги?

Если всего этого нет, то и разницы нет, кто строит. Зачем переплачивать?

В целях экономии можно обратиться к "черным строителям", их номера телефонов можно найти на столбах, на табличках из ДВП.

В Вашем случае, главное, что бы Вас все устраивало. Иногда целесообразно переплатить нормальным, ответственным строителям, чем пытаться сэкономить, но заработать инфаркт миокарда....

Посилання на коментар
Поділитися на інших сайтах

А Ваш подрядчик - фирма, предоставляет все соответствующие документы на свою работу?

Журналы выполнения работ?

Акты на скрытые работы?

Назначен ли приказом прораб?

Заключен ли письменный договор строительного подряда?

Установлен ли щит или вывеска - паспорт строительства, размером 100х150 см.

 

жесть... вам явно не на этот форум...

по ценам на работы..

1. господа, зачем сравнивать ленточные заглубленные фундаменты с монолитным подвалом??? а ведь судя по смете именно об этом речь и идет(300м3 котлован) кто сейчас готов выйти и сделать такой монолит за 350грн/м3 и чтобы все было включено? причем не понимая не количества перегородок, не сложности????

2. в принципе смета немного завышена, но это уже индивидуально - ведь есть еще куча нюансов, которые могут влиять на стоимость...

по экскаватору - дорого, это однозначно

Посилання на коментар
Поділитися на інших сайтах

  • 1 місяць потому...

дайте на рассмотрение проект - здесь всё посчитаем.

А на первый взгляд строитесь на Рублевке, или на горном склоне.

Посилання на коментар
Поділитися на інших сайтах

  • 4 тижні потому...
Зачем так сложно?

У меня было все гораздо проще:

 

- Разбивка здания и вынос осей в натуру - 400 грн.

- Разработка грунта вручную с перемещением в отвалы - 50 грн/м3

- Работа экскаватора (включая доставку) - 200 грн/час.

- Монолитные работы из миксера (включая установку/снятие опалубки, армирование) - 200 грн/м3

- Обратная засыпка - 25 грн/м3

 

Мой подвал с фундаментом обошелся мне в 80 т. грн. с материалами (50 м3 бетона) из них за работу заплатил 16 т. грн.

 

а какие парамеры фундамента и подвала. у вас именно подвал? какой высоты помещение подвальное? я просто по фотографии не вижу чтобы выл подвал. скажите когда вы строили, чтобы понимать поменялись цены или нет.

 

у нас планироется цокольный этаж с углублением где-то на 2 метра - 2,20 м в землю и по параментам 10,4 на 11 метров.

 

пока архитектор расчитывает фунджаменты интересно ориентирочоно во что выльется всё.

Посилання на коментар
Поділитися на інших сайтах

ни фига себе .... я закончил этап перекрытого и утепленного цоколя и уже точно представляю сколько это стоит...это дорого

 

особенно порадовал экскаватор ... за эти деньги я смог бы вырыть 4-е котлована, но у меня грунта поболее, около 400 кубов :)

 

если не сложно - скиньте параметры вашего цоколя и общую стоимость работ в личку. и если подрядчик был нормальный - может контактами поделитесь.

Посилання на коментар
Поділитися на інших сайтах

дайте на рассмотрение проект - здесь всё посчитаем.

А на первый взгляд строитесь на Рублевке, или на горном склоне.

 

если не сложно - буду благодарен если сможете прикинуть ориентировочную стоимость

1087362946__1_1.thumb.JPG.bd22f6e3669aee220bd8fdb77f25f419.JPG

453204975__1_3.thumb.JPG.c256bcb0402dffdb73377946ff74b417.JPG

Посилання на коментар
Поділитися на інших сайтах

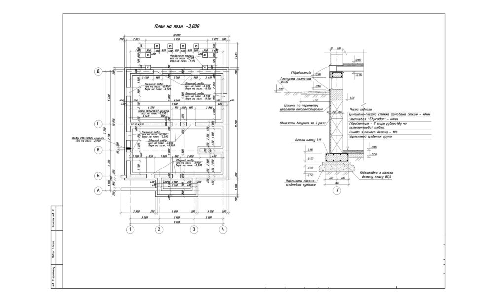
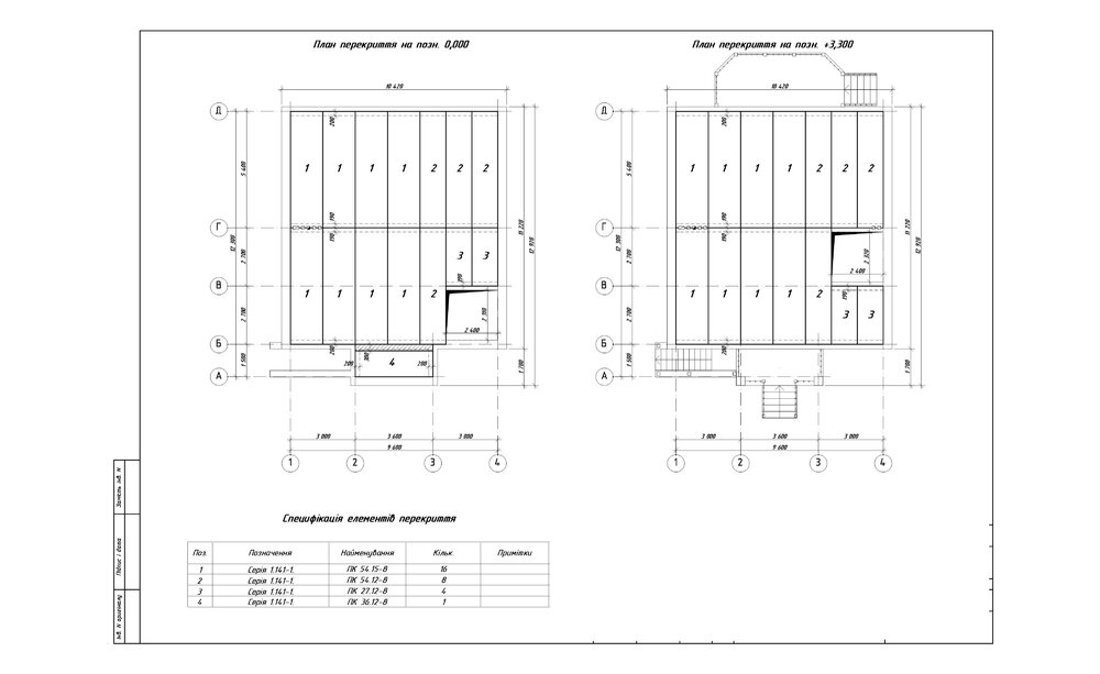
вот чертежи фундамента который мне стало жалко зарывать и я сделал подвал на 135 м2 (перепад высоты потолка от 1.90 до 2.20)

 

сверху будет основной дом

«Нанси» - рациональный коттедж с гаражом (проект коттеджа 16F)

Автор проекта: Проекты Владимира Тарасова, ООО «АДС Альфаплан»

www.alfaplan.com.ua/catalog/item_383/

Fundament0.pdf

Fundament1.pdf

Fundament2.pdf

Fundament3.pdf

Посилання на коментар
Поділитися на інших сайтах

Створіть акаунт або увійдіть у нього для коментування

Ви маєте бути користувачем, щоб залишити коментар

Створити акаунт

Зареєструйтеся для отримання акаунта. Це просто!

Зареєструвати акаунт

Увійти

Вже зареєстровані? Увійдіть тут.

Увійти зараз
×
×
  • Створити...