IgorP Опубліковано: 23 січня 2011 Автор Поділитись Опубліковано: 23 січня 2011 Вот у архитекторов нынче аппетит. Вроде ж кризис... Мне предлагали сделать проект за 5000 грн - это весь проект от А до Я без коммуникаций. Коммуникации 3000грн (вентиляцию относят к коммуникациям). Но, когда поговорил с архитекторами из бюро, они сказали, что никто толком считать не будет - возьмут данные со справочников и их впишут, главное перестраховаться - а во сколько финансово эта перестраховка выльется их не интересует. я обращался именно к конструктору, который считал нагрузки (я надеюсь :D), по крайней мере показывал мне расчеты Посилання на коментар Поділитися на інших сайтах More sharing options...
zhdanok Опубліковано: 23 січня 2011 Поділитись Опубліковано: 23 січня 2011 Вертикальное армирование у Вас весьма основательное. Интересно, как это комментировал конструктор? Посилання на коментар Поділитися на інших сайтах More sharing options...
MAX666 Опубліковано: 24 січня 2011 Поділитись Опубліковано: 24 січня 2011 Какая ширина подушки фундамента у Вас ? А то что то мне кааэцца что конструктор перестраховался по фундаменту раз эдак в 4-8. И много лишней арматуры еще тута насувал Посилання на коментар Поділитися на інших сайтах More sharing options...
IgorP Опубліковано: 24 січня 2011 Автор Поділитись Опубліковано: 24 січня 2011 Какая ширина подушки фундамента у Вас ? А то что то мне кааэцца что конструктор перестраховался по фундаменту раз эдак в 4-8. И много лишней арматуры еще тута насувал 0.6 - 1.2 м в зависимости от нагрузок Посилання на коментар Поділитися на інших сайтах More sharing options...
aleeck Опубліковано: 24 січня 2011 Поділитись Опубліковано: 24 січня 2011 мне очень нравится! но с вертикальной арматурой явный перебор, или вы немного добавили "от себя и для себя" Посилання на коментар Поділитися на інших сайтах More sharing options...
bomberman Опубліковано: 6 квітня 2011 Поділитись Опубліковано: 6 квітня 2011 С самого первого приезда я "возлюбил" эту контору - высидеть очередь к главврачу в единственное приемное время (среда с 9 до 12) и когда по сути приема нет , так как у них то проверки, то комиссия. Проблема заключалась в том, что у них по нормам расстояние от воды (море, озеро, река, океан или лужа - для них не важно :D) до строений должно быть не менее 25 м, а у меня рядом канал и дом на расстоянии 20 м (ну не угадал я, а нужно было узнать), то послали меня подальше в мелиорацию за бумагой прикрытия задницы для санстанции что они типа не против уменьшения "береговой охранной зоны". забавно ) у меня ни с СЭС, ни с пожаркой (К-С р-н) при согласовании проекта никаких проблем не возникло (аж удивился) - это единственные организации, где все прошло, как по маслу. Принес в пожарку - никаких очередей. Сказали через 3 дня позвонить, узнать готово или нет. Позвонил - готово - забрал. В СЭС правда ездил два раза - 1й раз не угадал со временем - но в приемный день, опять-таки никаких очередей, заплатил !АЖ 26 грн в бухгалтерию, главврач принял, подписал, всем спасибо, до свиданья... Ну да, ровный участок, никаких водоемов и т.д., но чесслово, были мысли, что на наших чиновников бессовестно гонят - пока, правда, не пришло время сдать госакт Посилання на коментар Поділитися на інших сайтах More sharing options...
IgorP Опубліковано: 6 квітня 2011 Автор Поділитись Опубліковано: 6 квітня 2011 забавно ) у меня ни с СЭС, ни с пожаркой (К-С р-н) при согласовании проекта никаких проблем не возникло (аж удивился) - это единственные организации, где все прошло, как по маслу. Принес в пожарку - никаких очередей. Сказали через 3 дня позвонить, узнать готово или нет. Позвонил - готово - забрал. В СЭС правда ездил два раза - 1й раз не угадал со временем - но в приемный день, опять-таки никаких очередей, заплатил !АЖ 26 грн в бухгалтерию, главврач принял, подписал, всем спасибо, до свиданья... Ну да, ровный участок, никаких водоемов и т.д., но чесслово, были мысли, что на наших чиновников бессовестно гонят - пока, правда, не пришло время сдать госакт самое главное что со временем все решается, правда за деньги и нервы Посилання на коментар Поділитися на інших сайтах More sharing options...
mspacer Опубліковано: 7 квітня 2011 Поділитись Опубліковано: 7 квітня 2011 Нужно сказать, что все работы вплоть до крыши планирую делать своими руками Респект.. И удачи! 1 Посилання на коментар Поділитися на інших сайтах More sharing options...
IgorP Опубліковано: 27 квітня 2011 Автор Поділитись Опубліковано: 27 квітня 2011 Выкладываю отчет с опозданием, но зато сразу с продвижением за месяц. В начале апреля залили армопояс сечением 22,5*20см там где нет опирания плиты перекрытия и высотой 16см там где опираются. Перед заливкой сделал закладные для вывода коммуникаций на второй этаж (последнее фото). Посилання на коментар Поділитися на інших сайтах More sharing options...
IgorP Опубліковано: 27 квітня 2011 Автор Поділитись Опубліковано: 27 квітня 2011 Потом приварили колонны из сваренного швеллера и залили бетон внутрь. Затем краном-манипулятором поставили и приварили балки из двутавра. У внутренней балки снизу приварили полосу шириной 5 см для увеличения площади опирания плит перекрытия. Это было сделано для того чтобы плиты перекрытия можно было положить не сверху балки, а заводить внутрь на нижнюю планку - не хочется лишних выпирающих частей внутри дома. Вовнутрь наружной балки-Т-образника засыпал перлит фракции М-150 для дополнительной теплоизоляции, а в дальнейшем балку нужно будет еще утеплить ЭППС. Посилання на коментар Поділитися на інших сайтах More sharing options...
IgorP Опубліковано: 27 квітня 2011 Автор Поділитись Опубліковано: 27 квітня 2011 На прошлой неделе наконец то положили плиты перекрытия Плиты заказывал на Ковальской, цена со скидкой оказалась ниж всех предложенных. Изначально хотелось поставить плиты с завода Обербетон, но прождав две недели ответа с ценами , так и не получил его. Наверно много заказов у ребят , хотя осенью отвечали намного оперативней. Внутреннюю колонну перед укладкой плит перекрытия приварили к балке только с одной стороны (решил проверить балку на прогиб :D), а после укладки плит сварной шов убрали и балка не прогнулась ни на миллиметр 8-). Рассматриваю как вариант отказаться от внутренней колонны, но во первых на втором этаже будет проходить по этой балке несущая стена и на нее будет опираться стропильная конструкция крыши, а во вторых не хочется дополнительно нагружать стены, на которые опирается балка, все таки более трети нагрузки балка принимает на себя, в общем пока оставляю как есть. Газобетон и кирпич решил сразу не ставить, а сначала сделать анкеровку плит и заделать стыки и дырки с монтажными петлями. Теперь уже можно полюбоваться видом со будущего второго этажа 1 Посилання на коментар Поділитися на інших сайтах More sharing options...
zhdanok Опубліковано: 28 квітня 2011 Поділитись Опубліковано: 28 квітня 2011 Перед заливкой сделал закладные для вывода коммуникаций на второй этаж (последнее фото). А можно подробней об этом? Какие комуникации, будут ли в этом месте на армопоясе плиты перекрытия, подробнее, как реализованы закладные? Может быть есть более крупные фото? Посилання на коментар Поділитися на інших сайтах More sharing options...
IgorP Опубліковано: 28 квітня 2011 Автор Поділитись Опубліковано: 28 квітня 2011 А можно подробней об этом? Какие комуникации, будут ли в этом месте на армопоясе плиты перекрытия, подробнее, как реализованы закладные? Может быть есть более крупные фото? В этом месте будет лестничная площадка, соответственно плит там не будет, а под лестницей планируется шкаф с электрикой и вывод проводки на второй этаж. С другой стороны этой стены будет котельная и некоторые трубы отопления и воды можно будет пустить через эти вырезы. В газобетоне потом будут делаться штробы под разводку. Понятное дело, что всего сразу не предусмотришь, но долбить уже придется немного меньше. 1 Посилання на коментар Поділитися на інших сайтах More sharing options...
Partizanka Опубліковано: 16 травня 2011 Поділитись Опубліковано: 16 травня 2011 Ой! Достраивайте скорей вашего красавца!!! Мы выбрали тот же проект (хотя меня почему то строители отговаривали-советовали что то другое подыскать), это моя мечта, в ближайшее время планируем залить фундамент. Очень понравилось ваше решение планировки, удобно , на мой взгляд (даже подумываю по вашему сделать, а не по оригиналу ). Удачи Вам!!! 1 Посилання на коментар Поділитися на інших сайтах More sharing options...
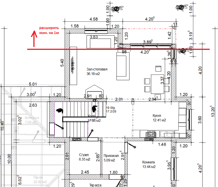
IgorP Опубліковано: 16 травня 2011 Автор Поділитись Опубліковано: 16 травня 2011 Очень понравилось ваше решение планировки, удобно , на мой взгляд (даже подумываю по вашему сделать, а не по оригиналу ). есть изменения по второму этажу (картинка 1) - решили сделать большую просторную детскую путем объединения двух смежных комнат, с возможностью обратного разделения комнат в будущем, если понадобится. Так же поменялось расположение балконной двери и окна в детской. Partizanka, если Вы будете строиться по оригинальным размерам дома, то я бы порекомендовал расширить дом хотя бы на 1 метр в длину (фото 2) - узковат зал получается 2nd floor.pdf 1 Посилання на коментар Поділитися на інших сайтах More sharing options...
IgorP Опубліковано: 16 травня 2011 Автор Поділитись Опубліковано: 16 травня 2011 не хватает времени фотографировать весь процесс, ниже фотоотчет за последнее время. Заделали отверстия в плитах, между плит, по краям плит. 1 Посилання на коментар Поділитися на інших сайтах More sharing options...
IgorP Опубліковано: 16 травня 2011 Автор Поділитись Опубліковано: 16 травня 2011 Местным манипулятором закинул газобетон и клей на второй этаж. Ну и пошел процесс укладки наружных стен Сделал монолитную балку для крепления верхней части стропил гаража (последнее фото). 1 Посилання на коментар Поділитися на інших сайтах More sharing options...
Partizanka Опубліковано: 18 травня 2011 Поділитись Опубліковано: 18 травня 2011 А снаружи чем планируете отделать? Посилання на коментар Поділитися на інших сайтах More sharing options...
одесский волк Опубліковано: 18 травня 2011 Поділитись Опубліковано: 18 травня 2011 Балка двутавровая, или сварены две П-образные? Нагрузку как-то рассчитывали, или только проверили, когда шов делали? Посилання на коментар Поділитися на інших сайтах More sharing options...
IgorP Опубліковано: 20 травня 2011 Автор Поділитись Опубліковано: 20 травня 2011 А снаружи чем планируете отделать? частично диким камнем, остальное пока не знаю Посилання на коментар Поділитися на інших сайтах More sharing options...
IgorP Опубліковано: 20 травня 2011 Автор Поділитись Опубліковано: 20 травня 2011 Балка двутавровая, или сварены две П-образные? двутавр №27, сваренный между собой (один не проходил по прогибу). Нагрузку как-то рассчитывали, или только проверили, когда шов делали? Конструктор еще когда считал фундамент, прикинул и балку. Вообще по расчету подходил двутавр №24х2, но у меня в наличии был 27, запас не помешает :D. И кстати в 24й двутавр я бы не засунул плиты перекрытия, а пришлось бы ставить их только сверху. Посилання на коментар Поділитися на інших сайтах More sharing options...
одесский волк Опубліковано: 20 травня 2011 Поділитись Опубліковано: 20 травня 2011 Так по стандарту плиты должны опираться на поверхность минимум на 10см. Норма вообще 15.. а у Вас здесь около 5 Посилання на коментар Поділитися на інших сайтах More sharing options...
IgorP Опубліковано: 21 травня 2011 Автор Поділитись Опубліковано: 21 травня 2011 Так по стандарту плиты должны опираться на поверхность минимум на 10см. Норма вообще 15.. а у Вас здесь около 5 все нормально, там снизу приварена планка 6 см и зона опирания около 12 см, я уже выкладывал фото, Вы просто не обратили внимание, дублирую ;) Посилання на коментар Поділитися на інших сайтах More sharing options...
demokrat Опубліковано: 22 травня 2011 Поділитись Опубліковано: 22 травня 2011 Ув. IgorP!Стою перед выбором газобетона ААС (Н.Каховка) или UDK.Убедительная просьба порекомендовать . Можно в личку.Заранее спасибо. www.stroimdom.com.ua/forum/images/smilies/drinks.gif Посилання на коментар Поділитися на інших сайтах More sharing options...
Vitasik Опубліковано: 22 травня 2011 Поділитись Опубліковано: 22 травня 2011 и мне по этому поводу интересно услышать мнение человека который уже строит, и почему в личку,я думаю здесь много интересующихся. Посилання на коментар Поділитися на інших сайтах More sharing options...
Рекомендовані повідомлення
Створіть акаунт або увійдіть у нього для коментування
Ви маєте бути користувачем, щоб залишити коментар
Створити акаунт
Зареєструйтеся для отримання акаунта. Це просто!
Зареєструвати акаунтУвійти
Вже зареєстровані? Увійдіть тут.
Увійти зараз