Dmode Опубліковано: 21 серпня 2018 Поділитись Опубліковано: 21 серпня 2018 А как они (все 4) установлены можете сфотать? Может они очень по разному обдуваются? Посилання на коментар Поділитися на інших сайтах More sharing options...
SergGavrik Опубліковано: 21 серпня 2018 Поділитись Опубліковано: 21 серпня 2018 А как они (все 4) установлены можете сфотать? вставлены внутрь воздуховодов на входе и выходе. Гильза датчика висит в потоке воздуха. Сфоткать не получится, там все закрыто. Поверьте, эта разница есть, это уже третье измерение с более фундаментальным подходом.. Возможны конечно погрешности, но не в три градуса... + Еще есть датчики в самой вентиляции на выходе в самую дальнюю комнату и на выходе из ГТО который соединен с входом рекуператора. В самой вентиляции ЗА рекуператором есть нагрев где то на 1,5 градуса за счет прохода воздуха по "теплому чердаку". Вход рекуператора и выход ГТО практически совпадают, с погрешность в 0,2-0, градуса, но там и расстояние есть по дому больше 6 метров. Посилання на коментар Поділитися на інших сайтах More sharing options...
Dmode Опубліковано: 21 серпня 2018 Поділитись Опубліковано: 21 серпня 2018 Я верю что разница есть. Пытаюсь понять что может быть причиной. Без понимания где и как установлено это трудно будет сделать. DS18 это ведь точечный датчик. А как выглядят промышленные датчики? Ханивел Сименс Они дают возможность снизить влияние стратификации, тоесть неравномерного обдува, за счет распределения сенсоров по сечению воздуховода. И если датчик точечный, возможно для того чтобы обеспечить равномерное обдувание всех четырех, их надо смонтировать согласно рекомендаций для датчиков скорости. Вот пример рекомендаци сименс: Посилання на коментар Поділитися на інших сайтах More sharing options...
SergGavrik Опубліковано: 21 серпня 2018 Поділитись Опубліковано: 21 серпня 2018 Я верю что разница есть. Пытаюсь понять что может быть причиной. Без понимания где и как установлено это трудно будет сделать. DS18 это ведь точечный датчик. А как выглядят промышленные датчики? У меня вот такие : И стоят они получаются вот так как справа, только наверное не на 1/3 от сечение воздуховода, а немного меньше : Посилання на коментар Поділитися на інших сайтах More sharing options...
SergGavrik Опубліковано: 21 серпня 2018 Поділитись Опубліковано: 21 серпня 2018 Для понимания схема движения воздуха по датчикам. Опять же, проводил эксперимент. Отключал воздуховоды от рекуператора, и ставил там сопоставимый вентилятор, разница между датчиком который стоит на выходе из ГТО и датчиком который на выходе из вентиляция как раз меньше на вот ту разницу которая нагреваеться в рекуператоре. То есть если его заменить на вентилятор просто то датчик конечный будет сейчас показывать около 20 - 21 градуса. Но тогда станет проблема вытяжной вентиляиции. Посилання на коментар Поділитися на інших сайтах More sharing options...
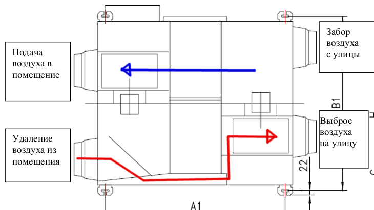
Mlyki Опубліковано: 21 серпня 2018 Поділитись Опубліковано: 21 серпня 2018 У Вашому рекуператорі вхід з вулиці і приплив в будинок до рекуператора під'єнюються один навпроти одного чи по діагоналі? Посилання на коментар Поділитися на інших сайтах More sharing options...
SergGavrik Опубліковано: 21 серпня 2018 Поділитись Опубліковано: 21 серпня 2018 У Вашому рекуператорі вхід з вулиці і приплив в будинок до рекуператора під'єнюються один навпроти одного чи по діагоналі? Напротив, Вот как на картинке с градусами. Посилання на коментар Поділитися на інших сайтах More sharing options...
fim Опубліковано: 23 серпня 2018 Поділитись Опубліковано: 23 серпня 2018 За счет чего такой нагрев при байпасе ? Не может же 80 ватт двигатель греть на 4 градуса воздух при заявленных 360 кубов в час ? И откуда берется нагрев воздуха который выходит на улицу ? p.s. Рекуператор Gree FHBQ-D3.5-K я режим байпас не использую, но провел эксперимент на моем FHBQ-D5 на 3-й скорости (500м3/ч) сначала в режиме байпас, затем авто(т.е. байпас выкл) так: или так в таблице *синим обведено период работы в режиме байпас, красным - авто (т.е. через теплообменник) где: чистая линия: out1 - вход в рекуператор уличного воздуха room2 - подача чистого воздуха в помещение (замер сразу за рекуператором) грязная линия: room1 - забор воздуха из помещения out2 - выброс на улицу saving - сохранение энергии efrecup - кпд в долях единицы по мануалу, чистая линия в режиме байпас или нет идет через теплообменник т.е. в вашем случае имхо, 4С - много, двигатель не может так нагревать, грязная линия должна охлаждаться Посилання на коментар Поділитися на інших сайтах More sharing options...
SergGavrik Опубліковано: 24 серпня 2018 Поділитись Опубліковано: 24 серпня 2018 т.е. в вашем случае имхо, 4С - много, двигатель не может так нагревать, грязная линия должна охлаждаться У вас тоже есть нагрев, но он меньше.. всего пару градусов. И у меня странно что выброс на улицу горячей всего... Посилання на коментар Поділитися на інших сайтах More sharing options...
Serg88 Опубліковано: 24 серпня 2018 Поділитись Опубліковано: 24 серпня 2018 Хм..а если рекуператор на кухню поставить? Вытяжной канал не работает, его голуби забили мусором И воздух свежий пойдет, и вытяжка появится. Жиры и запахи на нем не скажутся? Посилання на коментар Поділитися на інших сайтах More sharing options...
SergGavrik Опубліковано: 24 серпня 2018 Поділитись Опубліковано: 24 серпня 2018 Хм..а если рекуператор на кухню поставить? Я боюсь умрет теплообменник. Он сейчас везде бумажный. На кухню ставят просто вытяжку на улицу. Посилання на коментар Поділитися на інших сайтах More sharing options...
левша Опубліковано: 25 серпня 2018 Поділитись Опубліковано: 25 серпня 2018 Нужны контакты специалистов с опытом установки рекуператора в квартирах. Выручайте! Посилання на коментар Поділитися на інших сайтах More sharing options...
левша Опубліковано: 25 серпня 2018 Поділитись Опубліковано: 25 серпня 2018 ВЕНТС ВУЭ2 250 П ЕС или что-то похожее. 1 Посилання на коментар Поділитися на інших сайтах More sharing options...
dneprstab Опубліковано: 28 серпня 2018 Поділитись Опубліковано: 28 серпня 2018 Нужны контакты специалистов с опытом установки рекуператора в квартирах. Выручайте! А что в квартирах особенного , если это не маломерки стандартные. Сало як сало. В екатерининках днепровских ставили, там потолки и есть куда все спрятать. Посилання на коментар Поділитися на інших сайтах More sharing options...
Mlyki Опубліковано: 28 серпня 2018 Поділитись Опубліковано: 28 серпня 2018 Як підключити датчики і які кращі (вхід, вихід) до рекуператора С&Н HRV3.5KDC? Посилання на коментар Поділитися на інших сайтах More sharing options...
SergGavrik Опубліковано: 28 серпня 2018 Поділитись Опубліковано: 28 серпня 2018 Як підключити датчики і які кращі (вхід, вихід) до рекуператора С&Н HRV3.5KDC? Смотря что в итоге хотите получить ? Я взял модуль на базе ESP2866 и прицепил к нему четыре датчика bs18b20. Они меряют только температуру. В итоге имеем график четырех температур. Можно поставить датчики температура + влажность, будет еще влажность мерять.. Все это через WIFi передается на домашний серверок. 1 Посилання на коментар Поділитися на інших сайтах More sharing options...
Mlyki Опубліковано: 28 серпня 2018 Поділитись Опубліковано: 28 серпня 2018 Ціна питання? Посилання на коментар Поділитися на інших сайтах More sharing options...
SergGavrik Опубліковано: 28 серпня 2018 Поділитись Опубліковано: 28 серпня 2018 Ціна питання? 4 шт. geekmatic.in.ua/sensors/DS18B20_with_cable 1 шт. geekmatic.in.ua/boards/NodeMcu_ESP8266_WeMos 1.шт. geekmatic.in.ua/DS18b20_module Ну и руки с головой. 1 Посилання на коментар Поділитися на інших сайтах More sharing options...
Mlyki Опубліковано: 28 серпня 2018 Поділитись Опубліковано: 28 серпня 2018 Датчики і модуль не підєднано до плати рекуператора? Посилання на коментар Поділитися на інших сайтах More sharing options...
SergGavrik Опубліковано: 28 серпня 2018 Поділитись Опубліковано: 28 серпня 2018 Датчики і модуль не підєднано до плати рекуператора? нет, они сами по себе. Дальше в планах управление рекуператором автоматическое. Посилання на коментар Поділитися на інших сайтах More sharing options...
fim Опубліковано: 3 вересня 2018 Поділитись Опубліковано: 3 вересня 2018 Датчики і модуль не підєднано до плати рекуператора? если говорить о esp и рекуператорах fhbq-d, то 1) имхо лучше espeasy на сегодня нет 2) к espeasy можно написать пакет управления рекуператором и собрать свою прошивку 3) тогда esp сможет принимать команды и отдавать статус рекуператора по http и/или mqtt т.е. можно заморочиться и переписать, например мои скрипты управления рекуператором (python и/или go) на c/cpp тогда это может быть простое управление со смартфона и пр. в том числе одноплатных компьютеров типа малики с одной стороны, вроде красивая идея запихнуть маленькую esp прямо в ящик с платой управления рекуператора (она там спокойно поместится), даже на разъемы самой платы управления (питание брать от туда же, там есть 12в), сделав небольшую pcb но если говорить о нормальном управлении вентиляцией со своей логикой, основанной на анализе каких то данных, которые снимаются не только при помощи этой esp, то такой подход предполагает наличие некого "центрального контроллера" с возможностями, которые esp врядли потянет, а вот малинка сможет а если использовать малинку, то зачем тогда танцы с esp, если можно на прямую (через usb-ttl конвертор) подключить малинку и рекуператор... хз... варианты есть, имхо можно и так, и так Посилання на коментар Поділитися на інших сайтах More sharing options...
SergGavrik Опубліковано: 3 вересня 2018 Поділитись Опубліковано: 3 вересня 2018 3) тогда esp сможет принимать команды и отдавать статус рекуператора по http и/или mqtt т.е. можно заморочиться и переписать, например мои скрипты управления рекуператором (python и/или go) на c/cpp вот тут на связке малина с Iobroker - ESP - RS485 я и споткнулся :D Вернее на связке ESP - конвертер UART - RS485 :D Посилання на коментар Поділитися на інших сайтах More sharing options...
fim Опубліковано: 3 вересня 2018 Поділитись Опубліковано: 3 вересня 2018 вот тут на связке малина с Iobroker - ESP - RS485 я и споткнулся :D Вернее на связке ESP - конвертер UART - RS485 :D в данном случае, зачем вам лишнее звено - ESP? если есть малинка управляйте сразу ней рекуператором, в чем проблема? Посилання на коментар Поділитися на інших сайтах More sharing options...
SergGavrik Опубліковано: 3 вересня 2018 Поділитись Опубліковано: 3 вересня 2018 в данном случае, зачем вам лишнее звено - ESP? если есть малинка управляйте сразу ней рекуператором, в чем проблема? Далеко она по расстоянию, не охота провода тянуть. А ESP уже с датчиками температуры на рекуператоре весит уже. Времени нет садиться разбираться. Если я правильно понимаю нужно пробросить в espeasy порт от конвертора в сеть, вот тут я что то и заткнулся Если не получиться придеться провода тянуть от малины к рекуператору, чего не хотелось бы... Посилання на коментар Поділитися на інших сайтах More sharing options...
Митя. Опубліковано: 11 жовтня 2019 Поділитись Опубліковано: 11 жовтня 2019 Осилил 10 страниц, но не решил для себя задачу. Задумался о рекуператоре или может еще что-то после второй зимы в квартире, думал первая зима после ремонта и с окон вода ручьем из за испарения, но в этом году все повторилось. Что подскажете поставить на кухню 9,5 кв. м, потолки 2,65 м? Вопрос в том что зимой открыть окно не можем, тянет по спине когда готовишь (отговорили оконщики от форточки, теперь жалеем), окна потеют жуть как, вода ручьем. По не опытности в вентиляцую, поставили вытяжку и канал зашили коробом. Теперь как то надо свежий воздух пустить. Еще проблемма в домовой вытяжки нет (вернее есть, но тяги нет), обслуживаюшая компания месяц принимает мои заявки и результата "0". Надо что то думать по вентиляции отталкиваясь от того, что общедомовой системы просто нет. Что поставить хотя бы на кухню для пробы? Теоретичести розетка не очень далеко от окна. С залом сложнее, есть балкон который необходимо отапливать всю зиму. Сквозняков боюсь и я и жена. Что лучше выбирать или сделать? Очень надо. Вводные, квартира 40 кв. м, 8 этаж из 16 Посилання на коментар Поділитися на інших сайтах More sharing options...
Рекомендовані повідомлення
Створіть акаунт або увійдіть у нього для коментування
Ви маєте бути користувачем, щоб залишити коментар
Створити акаунт
Зареєструйтеся для отримання акаунта. Це просто!
Зареєструвати акаунтУвійти
Вже зареєстровані? Увійдіть тут.
Увійти зараз