Сергей_84 Опубліковано: 10 січня 2011 Поділитись Опубліковано: 10 січня 2011 Соответственно, какой мощности должен быть котёл, с учётом запаса и т.п.? я бы советовал 28 квт если с модуляцией котел.....а так, если не учитывать возможного понижения давления газа в морозный период то и 23 квт хватит, но если понизится, то РУЛЕТКА, хотя все равно должно хватать, потому как можно постоянно и не вентилировать помещения Посилання на коментар Поділитися на інших сайтах More sharing options...
Сергей_84 Опубліковано: 10 січня 2011 Поділитись Опубліковано: 10 січня 2011 Так вот, когда лимит 6 тысяч кубов газа будет подходить к концу, возможно, чтобы не перейти в категорию того, "кто за 6 тысяч", придётся конец года потопить электрикой. так делают почти все , у кого стоит паралельно электрокотел Посилання на коментар Поділитися на інших сайтах More sharing options...
domnet Опубліковано: 10 січня 2011 Автор Поділитись Опубліковано: 10 січня 2011 (змінено) я бы советовал 28 квт если с модуляцией котел.....а так, если не учитывать возможного понижения давления газа в морозный период то и 23 квт хватит, но если понизится, то РУЛЕТКА, хотя все равно должно хватать, потому как можно постоянно и не вентилировать помещенияХорошо. Из каких напольных котлов мощностью 28 КВт с бойлером косвенного нагрева можно (и нужно, по-Вашему мнению) выбирать? Ну, или с мощностью "в районе" 28 киловатт. Поскольку, может быть, есть классный котёл, к примеру, мощностью 30 КВт. Не отбрасывать же его только потому, что он чуть превышает потребности? Змінено 10 січня 2011 користувачем domnet Посилання на коментар Поділитися на інших сайтах More sharing options...
domnet Опубліковано: 10 січня 2011 Автор Поділитись Опубліковано: 10 січня 2011 И еще совет: в Киеве есть несколько фирм, которые продают радиаторы, котлы (одна из них кажется называется Тепло Киев). Звоните им, говорите, что хотите приобрести у них радиаторы и называете Ваши площади и характеристики помещений. В тел. режиме вопрос решается за 10мин. Точность +-10%. Но на шару, как Вам хочется. Только сейчас заметил, что Вы посоветовали фирму Теплотехника. Таки да, информацию для расчёта я им отправил, хотя и не по Вашему совету. Посилання на коментар Поділитися на інших сайтах More sharing options...
romi9999 Опубліковано: 10 січня 2011 Поділитись Опубліковано: 10 січня 2011 ...дом то не идеал утепления (в среднем от 70 до 90 вт на кв расчет теплопотерь... А можно полюбопытствовать, что такое "идеал утепления", в вашем понимании? Мне казалось, 100 мм минваты -очень неплохо... Посилання на коментар Поділитися на інших сайтах More sharing options...
Сергей_84 Опубліковано: 10 січня 2011 Поділитись Опубліковано: 10 січня 2011 А можно полюбопытствовать, что такое "идеал утепления", в вашем понимании? Мне казалось, 100 мм минваты -очень неплохо... когда теплопотери около 50 вт на 1 кв м а то и 40......вот это я понимаю будущая экономия Посилання на коментар Поділитися на інших сайтах More sharing options...
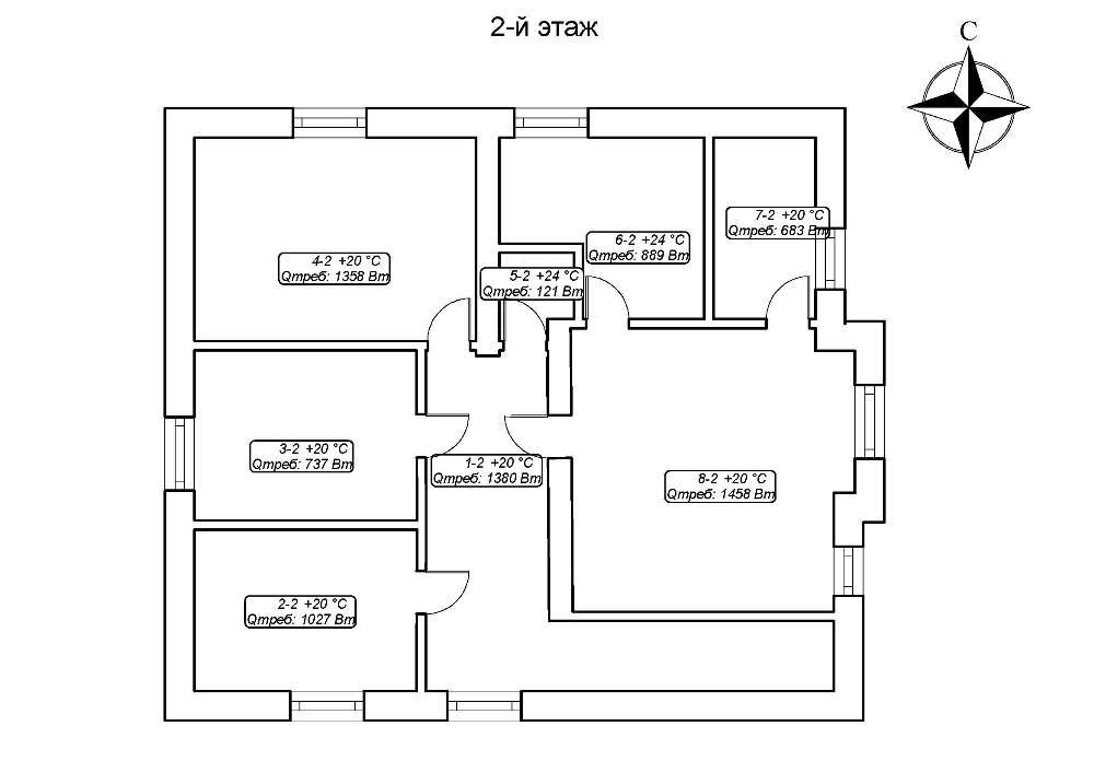
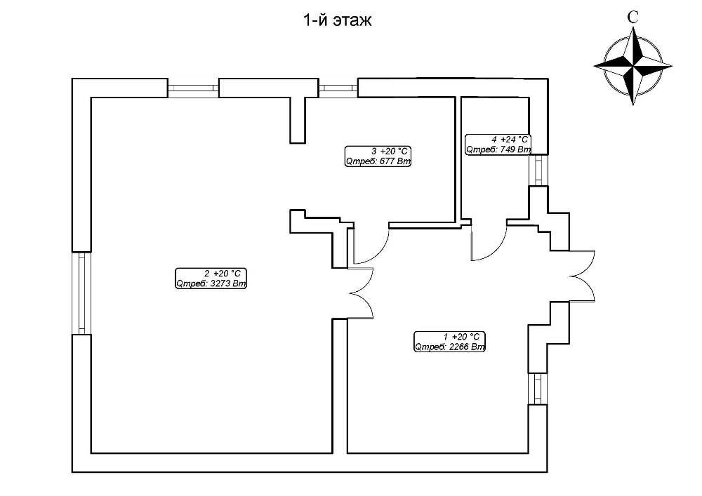
domnet Опубліковано: 10 січня 2011 Автор Поділитись Опубліковано: 10 січня 2011 Вижу, что упустил в данных высоту помещений 1-го и 2-го этажей - 3 метра. Посилання на коментар Поділитися на інших сайтах More sharing options...
Сергей_84 Опубліковано: 10 січня 2011 Поділитись Опубліковано: 10 січня 2011 Вижу, что упустил в данных высоту помещений 1-го и 2-го этажей - 3 метра. зато я не упустил)))) 3 метра) Посилання на коментар Поділитися на інших сайтах More sharing options...
Korni Опубліковано: 10 січня 2011 Поділитись Опубліковано: 10 січня 2011 я бы советовал 28 квт ..... Площадь дома 274,59 из экспликации.... 100вт/м.кв. :D флудеры...... Посилання на коментар Поділитися на інших сайтах More sharing options...
Сергей_84 Опубліковано: 10 січня 2011 Поділитись Опубліковано: 10 січня 2011 Площадь дома 274,59 из экспликации.... 100вт/м.кв. :D флудеры...... нееее.... есть разница.... До просчета я бы 23 квт даже не принимал во внимание, а теперь я могу человеку назвать все ньюансы,что должно хватить и 23 при нормальном давлении газа, но я бы советовал 28 ну или 27...а человек пусть сам решит играть в рулетку с давлением или нет, хватает денег на 28 или нет Так что не надо тут смеяться:rolleyes:;) Посилання на коментар Поділитися на інших сайтах More sharing options...
Korni Опубліковано: 10 січня 2011 Поділитись Опубліковано: 10 січня 2011 нееее.... есть разница.... Ага. Для более чёткого понимания этой разницы рекомендую статью "Опыт проектирования систем кондиционирования и вентиляции в Ирландии" - касательно ранней стадии проекта, в частности. Посилання на коментар Поділитися на інших сайтах More sharing options...
Mendeleev Опубліковано: 10 січня 2011 Поділитись Опубліковано: 10 січня 2011 Площадь дома 274,59 из экспликации.... 100вт/м.кв. :D Поздравляю, угадали Посилання на коментар Поділитися на інших сайтах More sharing options...
murava Опубліковано: 10 січня 2011 Поділитись Опубліковано: 10 січня 2011 .... Или мы чего-то недопонимаем? Мы (тоесть я лично) недопонимаем одного - зачем эта тема родилась, если вникать в ньюансы построения и монтажа Вы не хотите - типа для этого есть "специально обученные абизьяны" вида "отопленец обыкновенный". Вы хотите "прикинуть котел"??? - то и так понятно, что он будет плясать в р-не 30 квт и никак не на половину меньше.... Вы хотите расчитать теплопотери до ватта ??? - зачем, если все равно линейка котлов не до ватта, а с градацией плюс-минус пятерка киловатт... Проверить будушего отполенца? - бесполезно, разве что он вообще дуб-дерево в этом плане. Найдите себе одну "абизьянку" и дрессируйте его во всех позициях. Хоть резудьтат будет, а то коллективный разум на общие вопросы способен родить весьма множество весьма противоречивых решений 5 Посилання на коментар Поділитися на інших сайтах More sharing options...
murava Опубліковано: 10 січня 2011 Поділитись Опубліковано: 10 січня 2011 Ага. .... Ну, вот за что меня многие проектировщики поцеловали бы в десны, дык за вот эту концепцию и ее практическое применение: Часто проектные отделы монтажников или продавцов играют роль проектировщиков, но будучи в полной зависимости от фирмы, они работают на фирму, а не на клиента. Что может предложить клиенту проектный отдел фирмы "ABC"? Проект с оборудованием фирмы "ABC" и только "ABC". Британский клиент это отвергает полностью и сразу, а российский – наоборот, принимает "на ура". На Западе вся прелесть проектировщика в том, что он ни цента не получает от поставщика и подрядчика (русский бизнес прямо противоположен) - он независим априори и находится на стороне клиента. Клиент поручает вести тендер среди поставщиков и подрядчиков проектировщику, как самому сведущему в проекте. Клиент спрашивает – делать/не делать, покупать/не покупать, строить/не строить. По определению проектировщик – консультант (consulting). Очень часто заказчики поручают проектировщику финансовый и технический контроль строительства. Проектировщик регулярно посещает строительную площадку (авторский надзор), что и в России делается, но что важнее, проектировщик в Британии ведет финансовый контроль. Все так называемые "прогрессивки", т.е. отчеты о проделанных работах со стоимостью выполненных работ, контролируются проектировщиком. Посилання на коментар Поділитися на інших сайтах More sharing options...
Korni Опубліковано: 10 січня 2011 Поділитись Опубліковано: 10 січня 2011 ......коллективный разум на общие вопросы способен родить весьма множество весьма противоречивых решений Обломал Мурава тренировку. ....ее практическое применение: Обсуждали, вроде Посилання на коментар Поділитися на інших сайтах More sharing options...
Теплотехник Опубліковано: 10 січня 2011 Поділитись Опубліковано: 10 січня 2011 Отправил письмо. Ответил Вам на почту.... 1 Посилання на коментар Поділитися на інших сайтах More sharing options...
Теплотехник Опубліковано: 10 січня 2011 Поділитись Опубліковано: 10 січня 2011 Главное - требуемая мощность котла, чтобы понять, в каком сегменте этот котёл находится. Для определения ценового сегмента в котором будет находиться котёл теплопотери стоят в конце списка... Вам нужно определиться с типом котла(навесной, напольный, конденсационный, производитель), а не мощностью.... Как я понимаю, до проекта нужно понять, какой котёл выбрать, какую схему разводки труб отопления, какие радиаторы и т.п.? А иначе проект чего будет? Вам нужно понять чего Вы хотите от системы отопления и ГВС? И исходя из этого подбирать вид отопительных приборов (радиаторы, ТП, конвектора и т.п.), чем это всё прогреть (какой котёл) и как это всё между собой связать (автоматика, или отсутствие таковой) Посилання на коментар Поділитися на інших сайтах More sharing options...
Теплотехник Опубліковано: 10 січня 2011 Поділитись Опубліковано: 10 січня 2011 Так а в чём преимущества? Поясню. В кухне газ использовать не будем. Кухонная плита, духовка и т.п. - электрические. Соответственно, газ на лето можно просто перекрыть, вентилем на входе в дом. Зачем следить за газовым оборудованием лишних 6 месяцев в году? А какие конкретно преимущества использования летом для нагрева воды именно газового котла, а не электрического? Тем более, что электрический котёл всё равно будет. Так когда ему работать, как не летом? Иначе совсем застоится без работы. Вы должны отдавать себе отчёт в количестве электричества, которое потребуется Вам для отопления... В Вашем случае ориентировочно 24 кВт/час (это с минимальным запасом на бойлер ГВС) ... Это без бытовых нужд (5-10-15 кВт не знаю Ваших потребностей ) Поэтому я бы Вам посоветовал сделать акцент на газовое оборудование, с возможностью подключения альтернативного котла (для успокоения души ;)) Посилання на коментар Поділитися на інших сайтах More sharing options...
domnet Опубліковано: 10 січня 2011 Автор Поділитись Опубліковано: 10 січня 2011 Для определения ценового сегмента в котором будет находиться котёл теплопотери стоят в конце списка... Вам нужно определиться с типом котла(навесной, напольный, конденсационный, производитель), а не мощностью.... Вам нужно понять чего Вы хотите от системы отопления и ГВС? И исходя из этого подбирать вид отопительных приборов (радиаторы, ТП, конвектора и т.п.), чем это всё прогреть (какой котёл) и как это всё между собой связать (автоматика, или отсутствие таковой) Я писАл не о ценовом сегменте. Почитав форум, мы пришли к выводу, что нужен напольный газовый котёл. С мощностью здесь уже определились. А вот чтобы выбрать производителя, и марку напольного газового котла мощностью в пределах (плюс-минус) 30 КВт , который будет работать с бойлером косвенного нагрева, нужны советы участников форума. Отопление будет, в основном, радиаторами. Тёплый пол возможно будет (или не будет) только на первом этаже в кухне, санузле, и холле. Автоматика нужна для выполнения заданных параметров отопления, в смысле температурного режима, без наворотов установки временнЫх режимов отопления. Посилання на коментар Поділитися на інших сайтах More sharing options...
Сергей_84 Опубліковано: 10 січня 2011 Поділитись Опубліковано: 10 січня 2011 Вы должны отдавать себе отчёт в количестве электричества, которое потребуется Вам для отопления... В Вашем случае ориентировочно 24 кВт/час (это с минимальным запасом на бойлер ГВС) ... Это без бытовых нужд (5-10-15 кВт не знаю Ваших потребностей ) Поэтому я бы Вам посоветовал сделать акцент на газовое оборудование, с возможностью подключения альтернативного котла (для успокоения души ;)) больше добавить нечего) Посилання на коментар Поділитися на інших сайтах More sharing options...
domnet Опубліковано: 10 січня 2011 Автор Поділитись Опубліковано: 10 січня 2011 Вы должны отдавать себе отчёт в количестве электричества, которое потребуется Вам для отопления... В Вашем случае ориентировочно 24 кВт/час (это с минимальным запасом на бойлер ГВС) ... Это без бытовых нужд (5-10-15 кВт не знаю Ваших потребностей ) Поэтому я бы Вам посоветовал сделать акцент на газовое оборудование, с возможностью подключения альтернативного котла (для успокоения души ;)) В том посте шла речь о подогреве воды летом, при помощи резервного электрического котла. Основной котёл для отопления - газовый. Посилання на коментар Поділитися на інших сайтах More sharing options...
Сергей_84 Опубліковано: 10 січня 2011 Поділитись Опубліковано: 10 січня 2011 без наворотов установки временнЫх режимов отопления. вы читаете ,читаете и ничего не понимаете....я вам четко дал понять, что нужны временные режими отопления для экономии и стоит это недорого, а вы опять пишете-БЕЗ...нипайму Есть вещи от которых отказываться просто нельзя и которым вы потом скажете спасибо... Посилання на коментар Поділитися на інших сайтах More sharing options...
domnet Опубліковано: 10 січня 2011 Автор Поділитись Опубліковано: 10 січня 2011 когда теплопотери около 50 вт на 1 кв м а то и 40......вот это я понимаю будущая экономия Чем можно добиться такого уменьшения теплопотерь? Конкретно для моего дома? Нынешнее решение я описАл. Фасад и чердак ещё не утеплены. Что может дать уменьшение теплопотерь в 2 раза против 100 мм минваты на фасаде, и 200 мм минвату на чердаке? Окон у меня не очень много, и их размеры - не очень большие. Посилання на коментар Поділитися на інших сайтах More sharing options...
Сергей_84 Опубліковано: 10 січня 2011 Поділитись Опубліковано: 10 січня 2011 НАВОРОТЫ-это контроллеры и прочая лобуда....это дорого и не всегда оправданно, но иногда необходимо... Посилання на коментар Поділитися на інших сайтах More sharing options...
domnet Опубліковано: 10 січня 2011 Автор Поділитись Опубліковано: 10 січня 2011 вы читаете ,читаете и ничего не понимаете....я вам четко дал понять, что нужны временные режими отопления для экономии и стоит это недорого, а вы опять пишете-БЕЗ...нипайму Есть вещи от которых отказываться просто нельзя и которым вы потом скажете спасибо... Может быть. Если система простая, надёжная в работе, несложная в наладке, и легко программируемая. Посилання на коментар Поділитися на інших сайтах More sharing options...
Рекомендовані повідомлення
Створіть акаунт або увійдіть у нього для коментування
Ви маєте бути користувачем, щоб залишити коментар
Створити акаунт
Зареєструйтеся для отримання акаунта. Це просто!
Зареєструвати акаунтУвійти
Вже зареєстровані? Увійдіть тут.
Увійти зараз