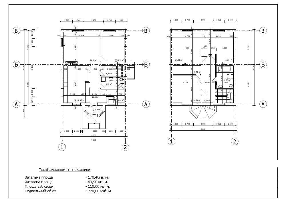
Zhbr Опубліковано: 17 червня 2011 Поділитись Опубліковано: 17 червня 2011 Доброго времени суток, уважаемые форумчане. Прошу Вас, указать на очевидные, в силу Вашей опытности, недостатки следующего рисунка, так сказать потенциального мотива, для проекта моего дома. Расположение участка Киево-Святошинский район село Дмитровка, массив Куба Размер участка 50 на 30 метров, 30 метров фасадная часть, практически идеальный прямоугольник с небольшим, как мне кажется, уклоном в направлении от тыла к фасаду. Почвы песчаные, геология будет сделана, сразу после того, как будут рекомендации архитектора (в данный момент разыскивается) , по размещению дома относительно участка. Семья три человека. Рисунок честно украден из журнала, в оригинале представляет собой работу Российской компании Арт-Стиль из Самары, номер по их внутренней классификации СВ -150 -05. Заранее благодарен за Ваше время, за конструктивную и не очень критику. Посилання на коментар Поділитися на інших сайтах More sharing options...
N_L Опубліковано: 18 червня 2011 Поділитись Опубліковано: 18 червня 2011 Если бы я такой домик себе выбирала, то я бы на месте кухни сделала комнату, гостевую, а кухню перенесла в гостиную, вправо. Там же и вывела все стояки, там же вентканалы. И обязательно сделала бы выход во двор. 1 Посилання на коментар Поділитися на інших сайтах More sharing options...
Victorianets Опубліковано: 18 червня 2011 Поділитись Опубліковано: 18 червня 2011 Я бы лестницу с топочной поменял местами, очень уж топорно ее расположили. На втором этаже ванна просто в угол переедет. Посилання на коментар Поділитися на інших сайтах More sharing options...
N_L Опубліковано: 18 червня 2011 Поділитись Опубліковано: 18 червня 2011 (змінено) Я бы лестницу с топочной поменял местами, очень уж топорно ее расположили. На втором этаже ванна просто в угол переедет. Если лестницу переместить, то надо будет мансардное окно вставлять, иначе она не будет освещена вместе с холлом на втором этаже. Змінено 18 червня 2011 користувачем N_L 1 Посилання на коментар Поділитися на інших сайтах More sharing options...
dedysh Опубліковано: 18 червня 2011 Поділитись Опубліковано: 18 червня 2011 - нету комнаты на 1м этаже - большая гостиная - кухня неудобная - хоть конструкция крыши и простая, но у очень неудачная (большая площадь, практически как в настоящих мансардных, но при этом внешние стены 2эт тоже присутствуют. Имхо, смотрите или в сторону полных 2эт домов и при этом делать минимальную площадь крыши или смотрите в чистые мансардные проекты (например польские). 1 Посилання на коментар Поділитися на інших сайтах More sharing options...
Victorianets Опубліковано: 19 червня 2011 Поділитись Опубліковано: 19 червня 2011 Если лестницу переместить, то надо будет мансардное окно вставлять, иначе она не будет освещена вместе с холлом на втором этаже. Мансардное окно в любом случае на лестнице влепить следует. 1 Посилання на коментар Поділитися на інших сайтах More sharing options...
seyvalter Опубліковано: 21 червня 2011 Поділитись Опубліковано: 21 червня 2011 Що ви хочете? цілком нормальний і адекватиний будиночок, я подібних лише за цей рік зробив два десятки. Очевидних ляпів немає. І наівщо мансардне вікно на сходи якщо є нормальне? 1 Посилання на коментар Поділитися на інших сайтах More sharing options...
N_L Опубліковано: 21 червня 2011 Поділитись Опубліковано: 21 червня 2011 І наівщо мансардне вікно на сходи якщо є нормальне? Человек, наверное, не розглядел. 1 Посилання на коментар Поділитися на інших сайтах More sharing options...
LSveta Опубліковано: 23 червня 2011 Поділитись Опубліковано: 23 червня 2011 А я бы обязательно запроектировала постирочную. Место где будет стоять стиральная машина, гладильная доска и сушилка 1 Посилання на коментар Поділитися на інших сайтах More sharing options...
Artyomovets Опубліковано: 23 червня 2011 Поділитись Опубліковано: 23 червня 2011 ни одной кладовки или гардеробной. кухня отдельно, а я бы объединял с зоной столовой. в своем доме на кухне кушать - не по феньшую... 1 Посилання на коментар Поділитися на інших сайтах More sharing options...
seyvalter Опубліковано: 23 червня 2011 Поділитись Опубліковано: 23 червня 2011 Ну, заради кладовок і феншуя роздувати будинок до 300 кв.м. не всім по кишені. Проектанту то тільки вигода роздувати проект по площі (я сам проектант), а людині то це все за свої кровні будувати... 1 Посилання на коментар Поділитися на інших сайтах More sharing options...
Artyomovets Опубліковано: 23 червня 2011 Поділитись Опубліковано: 23 червня 2011 Ну, заради кладовок і феншуя роздувати будинок до 300 кв.м. не всім по кишені. Проектанту то тільки вигода роздувати проект по площі (я сам проектант), а людині то це все за свої кровні будувати... если посмотреть на размеры помещений - то понятно, что кладовки и гардеробные получатся и на этой площади. 1 Посилання на коментар Поділитися на інших сайтах More sharing options...
вторик Опубліковано: 23 червня 2011 Поділитись Опубліковано: 23 червня 2011 посмотрите мой идеология та же. но с изюминкой. www.stroimdom.com.ua/forum/showpost.php?p=1061858&postcount=17 1 Посилання на коментар Поділитися на інших сайтах More sharing options...
Скрипка Александр Опубліковано: 23 червня 2011 Поділитись Опубліковано: 23 червня 2011 Как по мне спальни большие, 15-17метров более чем достаточно для сна.а вот второй сан узел на втором этаже будет совсем не лишним и гардероб сделайте обязательно 7-9квадратов 1 Посилання на коментар Поділитися на інших сайтах More sharing options...
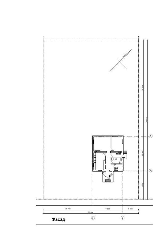
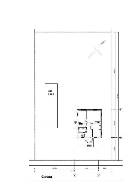
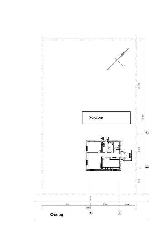
Zhbr Опубліковано: 25 червня 2011 Автор Поділитись Опубліковано: 25 червня 2011 Огромное спасибо, всем откликнувшимся. Некоторые из Ваших рекомендаций я так сказать воспринял, так на втором этаже из самой большой спальни выкроили место для гардеробной, на первом гостиную разделили на две части гостиную и просто комнату, но это решение пока не окончательное, возможно будет логично использовать, что то типа раздвижной ширмы, делящую комнату при необходимости, если возникла потребность раздвинул и комната. Как я подозреваю, принципиальной необходимости в принятии решения на данном этапе нет, то есть можно увидев коробку, так сказать, почувствовать, объем гостиной и для себя решить, что мол 40 метров квадратных это однозначно много и даешь внутреннюю перегородку капитальную, или нет ничего страшного буду делить при возникновении потребности каким то мобильным "девайсом" "аля" раздвижные "стены" получившийся вариант в рисунках прилагаю в миниатюрах. Теперь у меня новый вопрос возник, размещение дома, относительно участка, относительно сторон света, и превалирующих ветров и как это всё логично и правильно увязать с хоз постройками. Выбранный мною "Галпроект", предложил возможно правильный вариант, размещения дома относительно участка, вход смотрит на фасад, несмотря на отсутствие застройщиков, я попросил делать приличные отступы от краёв участка, не хочу портить карму, изначально негативом с потенциальными соседями. Но что смущает, получается теперь, что отдельный выход из топочной, смотрит на соседский забор, и либо делать "дроварню" отдельно стоящим зданием напротив этого доп входа. Плюс переноска дров для складирования вокруг всего дома, нерационально. Альтернативный вариант Сделать зеркальный проект по отношению к текущему, и разместить хоз постройки параллельно дому, тогда выход топочной располагается напротив дровяного склада и функциональность доп входа возрастает И казалось бы вот решение, но пытливый ум как обычно, начинает перебор вариантов, преимущественное направление ветров зимой как прочитал северо западное, возник вариант, развернуть дом так что бы на юго-восточную сторону направить стену кухни и гостиной, а сторону с топочной закрыть от ветров хоз постройками. Схематично всё это как мог изобразил и прошу помощи коллективного мега разума. Посилання на коментар Поділитися на інших сайтах More sharing options...
Artyomovets Опубліковано: 25 червня 2011 Поділитись Опубліковано: 25 червня 2011 т.е. вы уже проект делаете? если хотите - посмотрите как я на 165 метров разметился www.stroimdom.com.ua/forum/showpost.php?p=1018835&postcount=24 гараж и хозблок просто убираем. Посилання на коментар Поділитися на інших сайтах More sharing options...
Zhbr Опубліковано: 25 червня 2011 Автор Поділитись Опубліковано: 25 червня 2011 т.е. вы уже проект делаете? если хотите - посмотрите как я на 165 метров разметился www.stroimdom.com.ua/forum/showpost.php?p=1018835&postcount=24 гараж и хозблок просто убираем. посмотрел второй этаж понравился, а первый не по мне, он наверно уютный должен быть, но у меня чисто субъективное ощущение, много по малу, но это как бы нормально, всем всё не может нравится, это же от человека зависит. Посилання на коментар Поділитися на інших сайтах More sharing options...
metsamor Опубліковано: 28 червня 2011 Поділитись Опубліковано: 28 червня 2011 Если дом расположен в жилой застройке то ветру препятствует не один, а несколько зданий. Каждый из них будет корректировать ветровой поток. Потому предугадать силу и точное направление ветра (как и характер застройки близлежащих участков соседями) с абсолютной точностью сложно. Ну и вся ветровая нагрузка приходиться не только на расположенную на пути потока стену дома, а и на противоположную. Ветер как бы огибает Ваше здание сверху, подобно крылу самолета. То есть будут образовываться 2 вихревые зоны, перед зданием и позади его. 1 Посилання на коментар Поділитися на інших сайтах More sharing options...
Zhbr Опубліковано: 28 червня 2011 Автор Поділитись Опубліковано: 28 червня 2011 В данный момент, нет строений никаких рядом, в чистом поле, что конечно не отменяет того факта, что рано или поздно он будет в застройке) я просто по обывательски решил что строение (сарай) на пути господствующего ветра зимой это хорошо? Посилання на коментар Поділитися на інших сайтах More sharing options...
metsamor Опубліковано: 28 червня 2011 Поділитись Опубліковано: 28 червня 2011 Из чего планируете строить дом, газоблок, пеноблок, кирпич, ракушка...? Какое перекрытие использовать? Что по глубине фундамента? Посилання на коментар Поділитися на інших сайтах More sharing options...
Zhbr Опубліковано: 28 червня 2011 Автор Поділитись Опубліковано: 28 червня 2011 Из чего планируете строить дом, газоблок, пеноблок, кирпич, ракушка...? Какое перекрытие использовать? Что по глубине фундамента? стены полтора кирпича 38 утеплитель 10 облицовочный кирпич 12 перекрытия пустотные ж\б плиты фундамент(его тип и глубина залегания) будет рассчитан после понимания где делать геологию, а этого понимания пока нет так как не понятно как именно расположить дом. Посилання на коментар Поділитися на інших сайтах More sharing options...
Рекомендовані повідомлення
Створіть акаунт або увійдіть у нього для коментування
Ви маєте бути користувачем, щоб залишити коментар
Створити акаунт
Зареєструйтеся для отримання акаунта. Це просто!
Зареєструвати акаунтУвійти
Вже зареєстровані? Увійдіть тут.
Увійти зараз