Скрипка Александр Опубліковано: 1 липня 2011 Поділитись Опубліковано: 1 липня 2011 Решил завести ветку . Про дом думали долго, опыт жизни за городом уже был . Жили в Подмосковье в коттеджном поселке в 30 км от города и поняли что все плюсы загородного проживания убиваются одним минусом -дорогой домой. Поэтому переехав в Киев земля искалась только в черте города и только на правом берегу .Процесс занял 2 года , слава кризису тот участок на который мы точили когти с самого начала подешевел в 2,5 раза( а всего то надо было раз в три месяца звонить и спрашивать "сколько стоит участок? .. скока скока?!!!! "и возмущенно бросать трубку . То ли мои звонки так подействовали(во что хочется верить) то ли бывшим хозяевам очень нужны были деньги , в итоге мы пришли к консэнсусу(интересно как правильно пишется это слово) и мы купили участок потратив на него процентов на 80% больше чем планировали ,но что сделано то сделано . Теперь имеем 10 соток на Куреневке , шанхай на участке (2 дома ,2 туалета, душевая, летняя кухня,курятники,гусятники и еще какие то постройки ) ,ломать которые теперь мешает только дождь Строить будем в два этажа (220-250метров)...с башенкой , "хочется чего то красивого :с черепичной крышей ,с фресками на фасаде , с витражами в окнах с большой террасой в сад , фонтанчиками и ручейками " вот примерно так задание было озвучено архитектору . И теперь он рисует , а мы ждем хорошей погоды для того что бы продолжить разрушительные работы . а почему "Вилла Симфония"..а потому что мы Скрипки а скрипка в симфоническом оркестре главный инструмент , а вилла звучит как то ...богато 6 Посилання на коментар Поділитися на інших сайтах More sharing options...
gerasim_76 Опубліковано: 1 липня 2011 Поділитись Опубліковано: 1 липня 2011 Поздравляю! Ждем фото... Посилання на коментар Поділитися на інших сайтах More sharing options...
Катерина Ш Опубліковано: 1 липня 2011 Поділитись Опубліковано: 1 липня 2011 С почином Вас!!! Посилання на коментар Поділитися на інших сайтах More sharing options...
ДОКС Опубліковано: 1 липня 2011 Поділитись Опубліковано: 1 липня 2011 Название заинтриговало... буду следить... Радости Вам! Посилання на коментар Поділитися на інших сайтах More sharing options...
Скрипка Александр Опубліковано: 2 липня 2011 Автор Поділитись Опубліковано: 2 липня 2011 на первой строение на виллу пока что не очень похожее, на второй тео же ..но уже без крыши .. дожди мешают ..блин Посилання на коментар Поділитися на інших сайтах More sharing options...
Koskos Опубліковано: 2 липня 2011 Поділитись Опубліковано: 2 липня 2011 Ого - много разрушительных работ предстоит - и вывоза мусор! там на фото пару кустов конопли видны - не повредите их - вам потом пригодятся!))) С почином! Удачной стройки!) 1 Посилання на коментар Поділитися на інших сайтах More sharing options...
Зебра Опубліковано: 2 липня 2011 Поділитись Опубліковано: 2 липня 2011 там на фото пару кустов конопли видны - не повредите их - вам потом пригодятся!))) <Зебромуж> Посилання на коментар Поділитися на інших сайтах More sharing options...
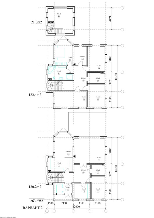
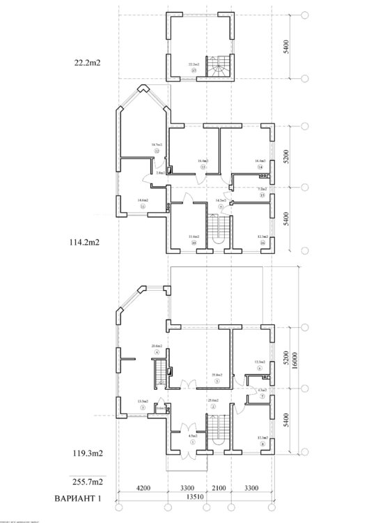
Скрипка Александр Опубліковано: 13 липня 2011 Автор Поділитись Опубліковано: 13 липня 2011 прошу комментарии сами склоняемся ко втором варианту , он попросторней)) Посилання на коментар Поділитися на інших сайтах More sharing options...
olimpiya Опубліковано: 15 липня 2011 Поділитись Опубліковано: 15 липня 2011 Не видя экспликации помещений, я поняла, что у вас 6 спален и один санузел. Как то маловато. А в общем красиво. Посилання на коментар Поділитися на інших сайтах More sharing options...
Скрипка Александр Опубліковано: 16 липня 2011 Автор Поділитись Опубліковано: 16 липня 2011 Не видя экспликации помещений, я поняла, что у вас 6 спален и один санузел. Как то маловато. А в общем красиво. Спален 4 ,гостевая комната на первом этаже, санузлов всего 3 штуки Посилання на коментар Поділитися на інших сайтах More sharing options...
olimpiya Опубліковано: 20 липня 2011 Поділитись Опубліковано: 20 липня 2011 Спален 4 ,гостевая комната на первом этаже, санузлов всего 3 штуки ааа, ну тогда достаточно Посилання на коментар Поділитися на інших сайтах More sharing options...
Скрипка Александр Опубліковано: 21 липня 2011 Автор Поділитись Опубліковано: 21 липня 2011 Сегодня под развалами нашли погреб ,метра2,5 глубиной кирпична выложен , предыдущие хозяева не подозревали о том что такое счастье есть на участке. Будет куда сажать нерадивых строителей 1 Посилання на коментар Поділитися на інших сайтах More sharing options...
Скрипка Александр Опубліковано: 1 вересня 2011 Автор Поділитись Опубліковано: 1 вересня 2011 Набросали фасады , продолжаем ломать старое. Посилання на коментар Поділитися на інших сайтах More sharing options...
Dr.Moro Опубліковано: 1 вересня 2011 Поділитись Опубліковано: 1 вересня 2011 Приятно видеть эскиз, выполненный вручную. Я думал уже не осталось архитекторов, умеющих рисовать. Красивый целостный дом получается. Немного напрягает трехгранный эркер. Раскладка декоративного кирпича имитирует обвалившуюся штукатурку, поэтому не должна быть правильной, особенно под окнами. Важно будет, как вы ее выполните, скорее всего это будет клинкерная плитка? От ее цвета и фактуры будет зависеть почти все. Еще ремарка: такой дом требует большой просторной лестницы, которая станет первым объектом восхищения в интерьере. Хорошо отдать ей всю башню. Та, что спроектирована сейчас - хотя и эргономична( ширина, похоже, 120 см), но кроме функции ничего не несет и, похоже, поэтому спрятана за дверью. Сложные арочные окна 2го этажа выглядят дорого, в пластике будет ужасно. В целом проект очень интересный, не экономьте на изюминках. Посилання на коментар Поділитися на інших сайтах More sharing options...
Скрипка Александр Опубліковано: 1 вересня 2011 Автор Поділитись Опубліковано: 1 вересня 2011 Приятно видеть эскиз, выполненный вручную. Я думал уже не осталось архитекторов, умеющих рисовать. Красивый целостный дом получается. Немного напрягает трехгранный эркер. Раскладка декоративного кирпича имитирует обвалившуюся штукатурку, поэтому не должна быть правильной, особенно под окнами. Важно будет, как вы ее выполните, скорее всего это будет клинкерная плитка? От ее цвета и фактуры будет зависеть почти все. Еще ремарка: такой дом требует большой просторной лестницы, которая станет первым объектом восхищения в интерьере. Хорошо отдать ей всю башню. Та, что спроектирована сейчас - хотя и эргономична( ширина, похоже, 120 см), но кроме функции ничего не несет и, похоже, поэтому спрятана за дверью. Сложные арочные окна 2го этажа выглядят дорого, в пластике будет ужасно. В целом проект очень интересный, не экономьте на изюминках. Кирпич будет настоящий , советский с разбора здания , окна деревянные , возможно арочными останутся только проемы, а окна будут вписаны прямоугольные (посчитаем), с эркером еще поиграемся .. Посилання на коментар Поділитися на інших сайтах More sharing options...
Скрипка Александр Опубліковано: 9 вересня 2011 Автор Поділитись Опубліковано: 9 вересня 2011 как то так ... 2 Посилання на коментар Поділитися на інших сайтах More sharing options...
Татьяна5 Опубліковано: 9 вересня 2011 Поділитись Опубліковано: 9 вересня 2011 главное - что бы Вам нравилось только не обижайтесь, пожалуйста, но очень напоминает дома начала 2000 годов, помпезность, гигантский размер и обязательная смотровая башня, как это все будет выглядеть на 10 сотках - это вопрос 1 Посилання на коментар Поділитися на інших сайтах More sharing options...
Скрипка Александр Опубліковано: 9 вересня 2011 Автор Поділитись Опубліковано: 9 вересня 2011 главное - что бы Вам нравилось только не обижайтесь, пожалуйста, но очень напоминает дома начала 2000 годов, помпезность, гигантский размер и обязательная смотровая башня, как это все будет выглядеть на 10 сотках - это вопрос да,смотровая башня моя прихоть.. там кабинет .. размер не гигантский , 260 метров общей площади ИМХО не так много,.. а так то ..не обижаюсь конечно, нам же там жить, а послушать критику всегда полезно Посилання на коментар Поділитися на інших сайтах More sharing options...
Татьяна5 Опубліковано: 9 вересня 2011 Поділитись Опубліковано: 9 вересня 2011 да,смотровая башня моя прихоть.. там кабинет .. размер не гигантский , 260 метров общей площади ИМХО не так много,.. а так то ..не обижаюсь конечно, нам же там жить, а послушать критику всегда полезно ну, прихотям надо потокать не критика, просто ощущение, хотя какое это имеет значение а соседи выглядят соответствующе или хатки? Посилання на коментар Поділитися на інших сайтах More sharing options...
Скрипка Александр Опубліковано: 9 вересня 2011 Автор Поділитись Опубліковано: 9 вересня 2011 соседи разные .. через дорогу таунхаус : "барак" на три блока метров по 500 каждый , и консульство Кувейта , по бокам хатки , но не страшные .. Посилання на коментар Поділитися на інших сайтах More sharing options...
syrik_81 Опубліковано: 11 вересня 2011 Поділитись Опубліковано: 11 вересня 2011 как то так ... Красиво. Скажите в какой проге рисовали-делали фасад ? Так ка хочу себе "навоять" а не знаю где попробовать. Можно в личку. Посилання на коментар Поділитися на інших сайтах More sharing options...
Скрипка Александр Опубліковано: 29 жовтня 2011 Автор Поділитись Опубліковано: 29 жовтня 2011 Фасад рисовался архитектором, временно все затихло т.к все силы и средства отняла стройка на производстве .Зато на данный момент имеем 1600 кВ м склада 4 Га земли и кучу гемороя по приведению всего этого хозяйства в приличный вид. А на участок завезено 40 кубов ракушняка , ждем еще 80 ... Разгружать его то еще удовольствие Посилання на коментар Поділитися на інших сайтах More sharing options...
Скрипка Александр Опубліковано: 1 листопада 2011 Автор Поділитись Опубліковано: 1 листопада 2011 так рукушняк пилят , и так теперь выглядит двор Посилання на коментар Поділитися на інших сайтах More sharing options...
Скрипка Александр Опубліковано: 24 лютого 2012 Автор Поділитись Опубліковано: 24 лютого 2012 руки чешутся .. заезжаю по выходным на участок , снег побросаю и уезжаю..Зачем-незнаю.. все равно там никто не ходит. 1 Посилання на коментар Поділитися на інших сайтах More sharing options...
lud_mila Опубліковано: 25 лютого 2012 Поділитись Опубліковано: 25 лютого 2012 Очень понравился план дома со второго варианта!!!! А вы на каком остановились? Но с фасадом надо что-то делать ведь это дом жилой, он должен быть домашним, а не напоминать офис........ подумайте и не в обиду..... Посилання на коментар Поділитися на інших сайтах More sharing options...
Рекомендовані повідомлення
Створіть акаунт або увійдіть у нього для коментування
Ви маєте бути користувачем, щоб залишити коментар
Створити акаунт
Зареєструйтеся для отримання акаунта. Це просто!
Зареєструвати акаунтУвійти
Вже зареєстровані? Увійдіть тут.
Увійти зараз