ros2010 Опубліковано: 7 липня 2011 Поділитись Опубліковано: 7 липня 2011 Нужна всесторонняя критика идеи проекта в Садовом товариществе "СКИФ", Киевской обл., Вас-го р-на, Исходные данные: 6 соток 17х36 м., угловой с уклоном с севера на юг. визуализация на фото: вид со стороны такой длинный фасад, с предполагаемым местом "главных" ворот вид по участку с севера на юг и с юга на север Посилання на коментар Поділитися на інших сайтах More sharing options...
ros2010 Опубліковано: 7 липня 2011 Автор Поділитись Опубліковано: 7 липня 2011 собственно идея: вопросы, критика, предложения Спасибо! Посилання на коментар Поділитися на інших сайтах More sharing options...
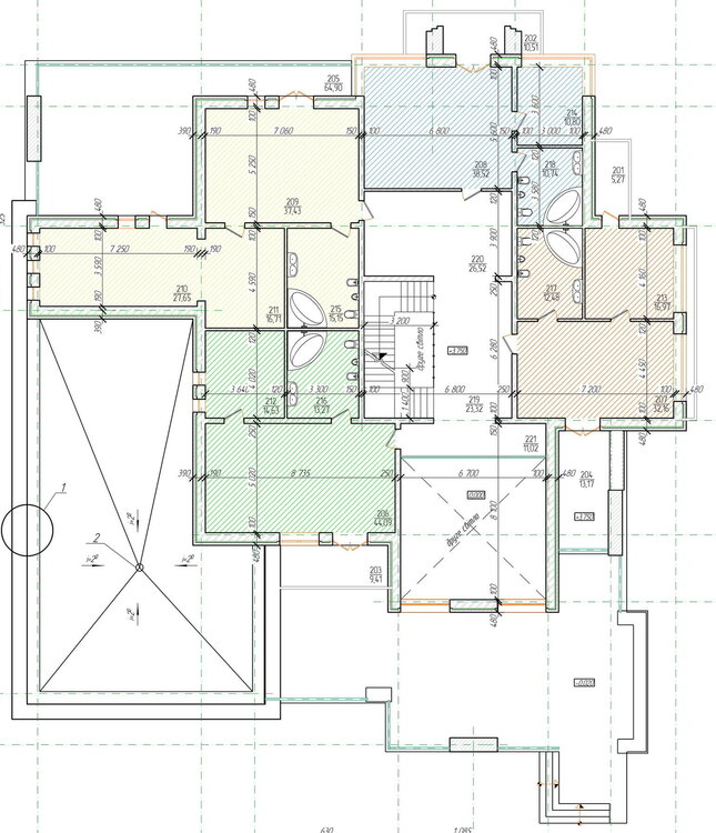
Milalika Опубліковано: 7 липня 2011 Поділитись Опубліковано: 7 липня 2011 добрый день! не понравилось: - гардеробная далеко от входа - кухня и гостинная в разных частях до дома - отсутствие хоз помещений Посилання на коментар Поділитися на інших сайтах More sharing options...
ПЛАСТИК Опубліковано: 7 липня 2011 Поділитись Опубліковано: 7 липня 2011 собственно идея: вопросы, критика, предложения Спасибо! Приветсвую! Вопросы: это реально проект? Критика: какой то не удачный проект Предложения: Найти что нибудь поприличней Посилання на коментар Поділитися на інших сайтах More sharing options...
ros2010 Опубліковано: 7 липня 2011 Автор Поділитись Опубліковано: 7 липня 2011 (змінено) добрый день! не понравилось: - гардеробная далеко от входа - кухня и гостинная в разных частях до дома - отсутствие хоз помещений спасибо за мнение гардеробная на плане - как помещение для длительного хранения вещей, оно же и хоз помещение, суперхозпомещение - это гараж. а для пришел и снял шубу есть тамбур под лестницей со шкафом для верхней одежды и грязной обуви... по поводу удаленности кухни и гостинной, есть возможность поменять местами кухню и комнату, но это не сильно приблизит Змінено 7 липня 2011 користувачем ros2010 Посилання на коментар Поділитися на інших сайтах More sharing options...
ros2010 Опубліковано: 7 липня 2011 Автор Поділитись Опубліковано: 7 липня 2011 Приветсвую! Вопросы: это реально проект? Критика: какой то не удачный проект Предложения: Найти что нибудь поприличней спасибо за мнение! проект пока не реальный - это формирование идеи под участок, :D основная идея - это простота и практичность (собственно для последнего я и вынес эту идею на обсуждение), без эркеров, балконов, башенок и греческой колоннады 8-) Посилання на коментар Поділитися на інших сайтах More sharing options...
Damiani Опубліковано: 7 липня 2011 Поділитись Опубліковано: 7 липня 2011 А мне не нравятся те проемы из гостиной, смотрятся не красиво. Кстати, а где вы планируете ставить котел? У вас отсутствует котельная. Сколько человек планируется жить в доме? Если 4 и больше, то я бы на втором сделала гардеробную комнату. А вообще я бы на первом перенесла кухню на место су и гардероба, рядом с кухней сделала бы су, а комнату на место самой кухни. Посилання на коментар Поділитися на інших сайтах More sharing options...
apxitektop.s Опубліковано: 7 липня 2011 Поділитись Опубліковано: 7 липня 2011 Участок - красивый. А вот по проекту, идеи пока не видно, но есть вопросы : скважина на каком расстоянии до вашего дома, то же относится к септику, кроме того интересно на каком расстоянии дом - до ваших соседских построек? Лестница которая идет над входом - судя по ее геометрии если делать удобными проступь и подступенок - выйдет удар головой при входе. Совет - отдайте в разработку опытному архитектору Посилання на коментар Поділитися на інших сайтах More sharing options...
ros2010 Опубліковано: 7 липня 2011 Автор Поділитись Опубліковано: 7 липня 2011 А мне не нравятся те проемы из гостиной, смотрятся не красиво. - это всего лишь план с указанием места планируемых "проемов" вместо дырок можно было бы просто проставить крестики ;) а без проемов никак низзя, грех не использовать такой вид. Кстати, а где вы планируете ставить котел? У вас отсутствует котельная. Котельная планируется отдельной помещением (комнатой) в гараже (сарае). Сколько человек планируется жить в доме? Если 4 и больше, то я бы на втором сделала гардеробную комнату. 4-ре но вот как это реализовать кроме как отрезать кусок кабинета я не придумаю А вообще я бы на первом перенесла кухню на место су и гардероба, рядом с кухней сделала бы су, а комнату на место самой кухни. объясните мне что за тотальная навязчивая идея женить кухню с гостинной? гостинная это для того, чтобы сидеть и зырить телик, за редким исключением обустройства сабантуев раз в полгода хотя, возможно, я что-то упускаю из достоинств связи кухня+гостинная... что именно? Посилання на коментар Поділитися на інших сайтах More sharing options...
ros2010 Опубліковано: 7 липня 2011 Автор Поділитись Опубліковано: 7 липня 2011 Участок - красивый. А вот по проекту, идеи пока не видно, но есть вопросы : скважина на каком расстоянии до вашего дома, то же относится к септику, кроме того интересно на каком расстоянии дом - до ваших соседских построек? ни скважины ни септика пока еще нет на участке, посему их можно пока двигать, а где, по-вашему, им место? как раз я и выбрал место в северном углу, в т.ч. и из соображений "шахматного" порядка с соседями, у них дом у юго-западной границы. Лестница которая идет над входом - судя по ее геометрии если делать удобными проступь и подступенок - выйдет удар головой при входе. Совет - отдайте в разработку опытному архитектору удар головой на нижних ступеньках? при необходимости над ними можно снять кусок второго этажа. Перед тем как отдать на проработку архитектору я должен сам понять чего я хочу. к сожалению, из сотен готовых проектов я не увидел себя ни в одном. Посилання на коментар Поділитися на інших сайтах More sharing options...
apxitektop.s Опубліковано: 7 липня 2011 Поділитись Опубліковано: 7 липня 2011 Перед тем как отдать на проработку архитектору я должен сам понять чего я хочу. к сожалению, из сотен готовых проектов я не увидел себя ни в одном. абсолютно правильный подход, но оптимальнее всего ,дабы не заморачиваться с поиском истин, о которых вы спрашивали тут, например расстояниях до септика, скважины, соседа, разметке лестницы, лучше изначально совместно с архитектором работать над идеей вашего будущего дома, это будет самый правильный подход, так как набор помещений у вас уже есть, кроме того я уверен, что сама идея по объемно планировочному решению, вернее каким оно должно быть у вас уже созрела Посилання на коментар Поділитися на інших сайтах More sharing options...
ПЛАСТИК Опубліковано: 7 липня 2011 Поділитись Опубліковано: 7 липня 2011 основная идея - это простота и практичность Идея понятна! Про простоту не буду а про практичность следующее: тамбур зажат из за нависания колесницы над ним. Как говорилось, размещение общей комнаты и кухни не очень практичное в таком исполнении, но это на выбор каждого. Расположение камина на общей стенки с гардероб по моему под вопросом, да и близко от входа в общую комнату. Ступеньки в холле будут постоянной полосой препятствия при перемещении таким простым маршрутом как Кухня Гостиная С/У Второй этаж: С/У с двумя входами это супер:D. Спальня-кабинет конечно практично, но спальня гардероб было б лучше (учитывая что их на втором этаже в обще не наблюдается) Холл второго этажа в месте с лестницей, получается самое большое помещение, ну может так надо. слово "гараж" думал расценивать как открытый навес для машины, иначе было б не плохо внутреннее сообщение с домом. Но как я понял я ошибаюсь:D Посилання на коментар Поділитися на інших сайтах More sharing options...
ПЛАСТИК Опубліковано: 7 липня 2011 Поділитись Опубліковано: 7 липня 2011 А вот по проекту, идеи пока не видно, но есть вопросы : скважина на каком расстоянии до вашего дома, то же относится к септику Мне как архитектору кажется что надо скважину и септик "подгонять" под проект а не проект под ... Посилання на коментар Поділитися на інших сайтах More sharing options...
apxitektop.s Опубліковано: 7 липня 2011 Поділитись Опубліковано: 7 липня 2011 Мне как архитектору кажется что надо скважину и септик "подгонять" под проект а не проект под ... на так это - априори :D Посилання на коментар Поділитися на інших сайтах More sharing options...
ros2010 Опубліковано: 7 липня 2011 Автор Поділитись Опубліковано: 7 липня 2011 Идея понятна! Второй этаж: С/У с двумя входами это супер:D. так и не понял, это одобрение или саркастическая ухмылка, но в защиту своей идеи входа спальня-с/у. спрошу, что ни у кого не возникало необходимости прошмыгнуть из спальни сразу в с/у - минуя коридоров :D Спальня-кабинет конечно практично, но спальня гардероб было б лучше (учитывая что их на втором этаже в обще не наблюдается) Холл второго этажа в месте с лестницей, получается самое большое помещение, ну может так надо. жалко отдавать под гардероб самую шикарную сторону дома. к сожалению, без холла и лестницы ни как по поводу гардероба на 2 этаже, - у меня сейчас семья: 2 взрослых + 1 чадо, возможно в далеком будущем будет 2+2... посему столько жилых комнат мне не нужно, и одну из них можно сейчас занять гардеробом. а потом, при необходимости таки перекроить кабинет пополам, получится гардеробокабинет 8-) мой кабинет от моей спальни отделен легким перестенком который можно изменять... слово "гараж" думал расценивать как открытый навес для машины, иначе было б не плохо внутреннее сообщение с домом. Но как я понял я ошибаюсь:D Гараж (скорее сарай) это пристройка к дому с северной стороны, в свою очередь к нему примыкает навес для авто. - так я решил использовать с пользой обязательный отступ от межи к моему строению Практика показывает, что гаражи очень редко используются по их прямому назначению... а по поводу внутреннего сообщения гараж-дом, ничего кроме как путь для поступления запахов машины я в этом не вижу, знаю многих кто реально не доволен наличием перехода гараж-дом (П.С. машины не самые вонючие..) Посилання на коментар Поділитися на інших сайтах More sharing options...
ПЛАСТИК Опубліковано: 7 липня 2011 Поділитись Опубліковано: 7 липня 2011 так и не понял, это одобрение или саркастическая ухмылка, но в защиту своей идеи входа спальня-с/у. спрошу, что ни у кого не возникало необходимости прошмыгнуть из спальни сразу в с/у - минуя коридоров :D Уверен что возникало Иначе б никто не делал с/у при спальнях. Однако в вашем варианте, прошмыгнув из спальни в с/у СРАЗУ не забудьте закрыть вторую дверь ведущую в коридор на щеколду, дабы не с кем не делить ваши мысли в столь уединенном месте Далее комментарии по тексту: под гардероб значит жалко а под кабинет не жалко отдавать самую лучшую сторону дома? А что мешает сделать спальную в этом самом месте? Без лестницы и холла действительно трудно, особенно без лестницы ..в двух этажном доме), но скажу что при размере дома как у вас 11Х8 м можно все разместить. Возможно мне кажется, но вы сильно привязались к первоначальному варианту, отсюда и сложности в перепланировке. Попробуйте оставить несущие стены. может даже и лестницу если она вас устраивает и прикинуть еще несколько вариантов, только новых, а не путем перемещения перегородок этого варианта. Возможно появятся новые идеи. На счет гаража, это дело сугубо личное: в доме, возле дома, в подвале...мне лично все равно- я запахи не слышу Посилання на коментар Поділитися на інших сайтах More sharing options...
apxitektop.s Опубліковано: 7 липня 2011 Поділитись Опубліковано: 7 липня 2011 Уверен что возникало Иначе б никто не делал с/у при спальнях. Однако в вашем варианте, прошмыгнув из спальни в с/у СРАЗУ не забудьте закрыть вторую дверь ведущую в коридор на щеколду, дабы не с кем не делить ваши мысли в столь уединенном месте делал vip хату 1500 м2 на 3 семьи , все родственники, 2 пожилые пары - родители и их дети, детям по 55 лет =) так вот, требовалось разделить второй этаж зонированием, в итоге каждая спальня имеет свой санузел, без коридора, на фото прилагаемом видно, так что все зависит от объемно планировочного решения, поэтому санузлы как раз в тему. Посилання на коментар Поділитися на інших сайтах More sharing options...
ПЛАСТИК Опубліковано: 7 липня 2011 Поділитись Опубліковано: 7 липня 2011 ... поэтому санузлы как раз в тему. :D какие санузлы? Те которые вы продемонстрировали? прекрасные) себе так же хотел бы на старости) Но, то что я описывал выше, помоему к данному примеру вобще никак не относится. Автор в санузел на 2 эт расположил 2 двери: одна из коридора, вторая из спальни...ясно так о чем речь? Посилання на коментар Поділитися на інших сайтах More sharing options...
ros2010 Опубліковано: 8 липня 2011 Автор Поділитись Опубліковано: 8 липня 2011 пользуясь случаем спрошу, чтобы долго не искать, возможно, кто-то знает точно (или скажет где смотреть), потому что я только слышал звон о том, что с декабря 2010 г. отменили лимит по площади застройки садовых участков (6 соток) - так ли это? (раньше это была 1 сотка). И какие минимальные отступы (от межи/от построек) сейчас действуют на участки "для ведення садівництва"? разные советчики советуют разные отступы от 1 до 6 метров %) Посилання на коментар Поділитися на інших сайтах More sharing options...
Телесистемы Опубліковано: 8 липня 2011 Поділитись Опубліковано: 8 липня 2011 пользуясь случаем спрошу, чтобы долго не искать, возможно, кто-то знает точно (или скажет где смотреть), потому что я только слышал звон о том, что с декабря 2010 г. отменили лимит по площади застройки садовых участков (6 соток) - так ли это? (раньше это была 1 сотка). Не было таких лимитов, разве что по уставу товарищества. И какие минимальные отступы (от межи/от построек) сейчас действуют на участки "для ведення садівництва"? разные советчики советуют разные отступы от 1 до 6 метров %) по 360-92 отступ от границы не менее 1м, но также могут быть местные требования , согласно уставу товарищества. 1 Посилання на коментар Поділитися на інших сайтах More sharing options...
ПЛАСТИК Опубліковано: 8 липня 2011 Поділитись Опубліковано: 8 липня 2011 разные советчики советуют разные отступы от 1 до 6 метров %) 6 метров это наверно соседи советуют, чтоб подальше от них строили. У меня тоже не могли цену сложить когда я в метре от забора ленту под фундамент начал рыть. По правилам застройки...1м. А устав кооператива это что? Договоренность не более Посилання на коментар Поділитися на інших сайтах More sharing options...
seyvalter Опубліковано: 8 липня 2011 Поділитись Опубліковано: 8 липня 2011 Не было таких лимитов, разве что по уставу товарищества. по 360-92 отступ от границы не менее 1м, но также могут быть местные требования , согласно уставу товарищества. Точно так! вважайте лише ще на пожежний розрив - 8 метрів між сусідніми спорудами. Якщо сильно треба вийти за одну або другу межу - можна лише по згоді сусіда (нотаріально завіреній) Посилання на коментар Поділитися на інших сайтах More sharing options...
Телесистемы Опубліковано: 8 липня 2011 Поділитись Опубліковано: 8 липня 2011 А устав кооператива это что? Договоренность не более Несоблюдение устава влечет за собой исключение из товарищества. Поэтому стОит заранее подумать к каким это может привести последствиям. Посилання на коментар Поділитися на інших сайтах More sharing options...
Damiani Опубліковано: 8 липня 2011 Поділитись Опубліковано: 8 липня 2011 объясните мне что за тотальная навязчивая идея женить кухню с гостинной? гостинная это для того, чтобы сидеть и зырить телик, за редким исключением обустройства сабантуев раз в полгода хотя, возможно, я что-то упускаю из достоинств связи кухня+гостинная... что именно? вообще у меня тотальная идея - это объединение су и кухни:D Но подумав, поняла, что приближая максимально кухню к гостиной я тем самым хочу облегчить себе работу как хозяйки дома и матери троих детей На счет гостиной вы ошибаетесь. У вас ребенок, а еще планируете одного. Кроме как "зырить телик", в гостиной можно устроить детскую игровую. А теперь задумайтесь - когда жена на кухне, а чады в количестве двух штук играют в гостиной, жене будет намного комфортнее иметь их "на глазах", чем бегая каждые две минуты туда-сюда. Это лично из моего опыта8-) Конечно можно и на кухне совместно с детьми готовить, но у меня они разбегаются. Все выше написанное - мое ИМХО. 2 Посилання на коментар Поділитися на інших сайтах More sharing options...
Дощ Опубліковано: 13 липня 2011 Поділитись Опубліковано: 13 липня 2011 Приветсвую! Вопросы: это реально проект? Критика: какой то не удачный проект Предложения: Найти что нибудь поприличней +1. Проект нікудишній Навіть переробляти немає чого, ні ззовні ні зсередини, зробіть новий Посилання на коментар Поділитися на інших сайтах More sharing options...
Рекомендовані повідомлення
Створіть акаунт або увійдіть у нього для коментування
Ви маєте бути користувачем, щоб залишити коментар
Створити акаунт
Зареєструйтеся для отримання акаунта. Це просто!
Зареєструвати акаунтУвійти
Вже зареєстровані? Увійдіть тут.
Увійти зараз