Uvex Опубліковано: 10 вересня 2011 Поділитись Опубліковано: 10 вересня 2011 Строюсь по архнововскому проекту. Строители уже сделали вентканалы. Есть 2 кирпичных дымохода. В одном - 20-сантиметровый гильзованый канал для камина + вентканалы. В другом - 14-сантиметровый гильзованый канал для газового котла + вентканалы + фановая труба. Первый "дымоход". На первом этаже в районе камина есть 3 дырки для связи с вентканалами. 2 дырки смотрят в сторону кухни. Одна в сторону гостиной (то есть над каминной топкой). На втором этаже эти вентканалы припадают на 2 спальни (есть 2 дырки в стенах). Второй "дымоход". Граничит с котельной и санузлом первого этажа. Есть одна вентилляционная дырка из котельной. И одна дырка со стороны санузла 1-го этажа. Обе эти дырки приводят в одну и ту же шахту. Что самое интересное, я не нашел вентиляционной дырки в санузле 2-го этажа. 1. Может в одно вентиляционное отверстие выходить 2-3 комнаты (например котельная, санузел 1-го этажа и санузел 2-го этажа)? 2. Вытяжка будет прямо над газовой плитой (на схеме есть). Куда мне ее выводить - пробивать отверстие через несущую стену на улицу? 3. Со схемы нифига не понятно, какие комнаты должны иметь выходы в вентиляционные шахты. И в какие именно шахты. 4. В каких комнатах ставить вентиляторы при входе в шахты? 5. Некоторые комнаты (2 спальни) остаются без вентканалов вовсе.. Это нормально? 6. Стоит ли ее пробивать дырку в санузле 2-го этажа? Можно ли попадать в ту самую шахту, куда имеют выход котельная и санузел первого этажа? Спасибо! Посилання на коментар Поділитися на інших сайтах More sharing options...
blacktigra Опубліковано: 10 вересня 2011 Поділитись Опубліковано: 10 вересня 2011 Uvex, а что архитектор говорит? Посилання на коментар Поділитися на інших сайтах More sharing options...
Альберт (СТЕП) Опубліковано: 11 вересня 2011 Поділитись Опубліковано: 11 вересня 2011 Добрый день. Для точных рекомендаций необходимо встречаться на объекте, смотреть и принимать решение. Перезвоните и договоримся насчёт встречи. Посилання на коментар Поділитися на інших сайтах More sharing options...
Uvex Опубліковано: 11 вересня 2011 Автор Поділитись Опубліковано: 11 вересня 2011 Uvex, а что архитектор говорит? проект стандартный. куплен в бюро проектов Посилання на коментар Поділитися на інших сайтах More sharing options...
blacktigra Опубліковано: 11 вересня 2011 Поділитись Опубліковано: 11 вересня 2011 Есть 2 кирпичных дымохода. На втором этаже эти вентканалы припадают на 2 спальни (есть 2 дырки в стенах). Дырок в стене спален быть не должно. Вероятно, это самодеятельность строителей. Вентканалы с кухни не должны обслуживать спальни. Второй "дымоход". Граничит с котельной и санузлом первого этажа. Есть одна вентилляционная дырка из котельной. И одна дырка со стороны санузла 1-го этажа. Обе эти дырки приводят в одну и ту же шахту. Что самое интересное, я не нашел вентиляционной дырки в санузле 2-го этажа. У вас не должно быть шахт. Только кирпичные независимые вентканалы. Шахта - это где проходит несколько воздуховодов, обычно из оцинкованной стали. А дырка в санузле 2-го этажа должна быть в свой отдельный канал. Пытайте строителей, кто украл дырку. 1. Может в одно вентиляционное отверстие выходить 2-3 комнаты (например котельная, санузел 1-го этажа и санузел 2-го этажа)? Ни в коем случае. Вытяжку от двух санузлов вывести в один канал еще можно, но в таком случае не исключено перетекание запахов из нижнего в верхний в случае "опрокидывания тяги". Это решается установкой канального вентилятора после последнего санузла. А вот котельную в этот же канал подключать нельзя, т.к. назначение помещения абсолютно другое. 2. Вытяжка будет прямо над газовой плитой (на схеме есть). Куда мне ее выводить - пробивать отверстие через несущую стену на улицу? Выводите в один из каналов на кухне. Он для этого и предназначен. Можно улучшить вентиляцию кухни продлив второй канал под потолком кухни с помощью оцинкованного воздуховода до угла между мойкой и плитой и расположить вытяжную решетку там. Можно добавить вытяжной вентилятор. Так запахи из кухни будут меньше попадать в гостиную. 3. Со схемы нифига не понятно, какие комнаты должны иметь выходы в вентиляционные шахты. И в какие именно шахты. Судя по чертежу, проектом у вас предусмотрена вытяжка только из таких помещений: - котельная - гараж - с/у на первом этаже - кухня - один канал для вытяжки от зонта, другой канал для естественной вытяжки - гостиная - с/у на втором этаже В принципе это верное решение. Вытяжка непосредственно из жилых помещений обычно не делается. Предполагается, что спальни проветриваются за счет вытяжки из санузлов - таким образом исключается переток запахов. 4. В каких комнатах ставить вентиляторы при входе в шахты? Санузлы, кухня. Можно в гараже, хуже не будет. 5. Некоторые комнаты (2 спальни) остаются без вентканалов вовсе.. Это нормально? Нормально. 6. Стоит ли ее пробивать дырку в санузле 2-го этажа? Можно ли попадать в ту самую шахту, куда имеют выход котельная и санузел первого этажа? См. ответ выше. проект стандартный. куплен в бюро проектов Тогда тем более непонятно. В нормальном проекте должен быть раздел ОВ с разверткой вентканалов и таблицей баланса воздухообменов. Посилання на коментар Поділитися на інших сайтах More sharing options...
Uvex Опубліковано: 11 вересня 2011 Автор Поділитись Опубліковано: 11 вересня 2011 Дырок в стене спален быть не должно. Вероятно, это самодеятельность строителей. Вентканалы с кухни не должны обслуживать спальни. Чем заделать? У вас не должно быть шахт. Только кирпичные независимые вентканалы. Шахта - это где проходит несколько воздуховодов, обычно из оцинкованной стали. А дырка в санузле 2-го этажа должна быть в свой отдельный канал. Пытайте строителей, кто украл дырку. Я путаюсь в терминологии.. Придется лезть на крышу и смотреть в сечение дымохода. Ни в коем случае. Вытяжку от двух санузлов вывести в один канал еще можно, но в таком случае не исключено перетекание запахов из нижнего в верхний в случае "опрокидывания тяги". Это решается установкой канального вентилятора после последнего санузла. А вот котельную в этот же канал подключать нельзя, т.к. назначение помещения абсолютно другое. И что сейчас сделать? Кстати, а на плане как нарисовано? Выводите в один из каналов на кухне. Он для этого и предназначен. Можно улучшить вентиляцию кухни продлив второй канал под потолком кухни с помощью оцинкованного воздуховода до угла между мойкой и плитой и расположить вытяжную решетку там. Можно добавить вытяжной вентилятор. Так запахи из кухни будут меньше попадать в гостиную. Я не понимаю как ее вывести туда.. Ведь она пройдет через коридор.. Это же не эстетично. Спасибо! Посилання на коментар Поділитися на інших сайтах More sharing options...
Uvex Опубліковано: 11 вересня 2011 Автор Поділитись Опубліковано: 11 вересня 2011 Вот, нашел. Это дымоход между котельной и санузлом первого этажа. m.io.ua/img_aa/medium/0654/73/06547339.jpg Левый вентканал выходит на котельную и санузел. Правый - фановая труба. Вот на этапе строительства крыши это видно: g.io.ua/img_aa/large/1214/54/12145446.jpg Теперь еще вопросы: 1. Как в случае одного вентканала обеспечить котельную и 2 санузла? 2. Судя по всему, при достройке этого дымохода бойцы обрезали фановую трубу: (ссылка устарела) На какую высоту она должна возвышаться по отношению вентканалам? Посилання на коментар Поділитися на інших сайтах More sharing options...
blacktigra Опубліковано: 11 вересня 2011 Поділитись Опубліковано: 11 вересня 2011 Чем заделать? Стены кирпичные? Кирпичом и заделайте. И что сейчас сделать? Кстати, а на плане как нарисовано? На плане показан отдельный канал для каждого санузла, отдельный для вытяжки из котельной и отдельный для дымохода. Я не понимаю как ее вывести туда.. Ведь она пройдет через коридор.. Это же не эстетично. У вас пройдут два воздуховода, а их обошьете гипсокартоном. Получится фальшбалка под потолком. Посилання на коментар Поділитися на інших сайтах More sharing options...
Uvex Опубліковано: 11 вересня 2011 Автор Поділитись Опубліковано: 11 вересня 2011 Вот еще нашел вид сверху этого дымохода: m.io.ua/img_aa/medium/1224/95/12249573.jpg По-моему, в итоге только один вент канал Посилання на коментар Поділитися на інших сайтах More sharing options...
Uvex Опубліковано: 11 вересня 2011 Автор Поділитись Опубліковано: 11 вересня 2011 У вас пройдут два воздуховода, а их обошьете гипсокартоном. Получится фальшбалка под потолком. Почему два? Один - вытяжка от кухни, а какой второй? Посилання на коментар Поділитися на інших сайтах More sharing options...
blacktigra Опубліковано: 11 вересня 2011 Поділитись Опубліковано: 11 вересня 2011 Вот, нашел. Это дымоход между котельной и санузлом первого этажа. m.io.ua/img_aa/medium/0654/73/06547339.jpg Левый вентканал выходит на котельную и санузел. Правый - фановая труба. Вот на этапе строительства крышы это видно: g.io.ua/img_aa/large/1214/54/12145446.jpg Я понял. Вероятно, в проекте предполагалось применение каких-то типовых узлов для обустройства вентканалов, уж больно они тонкостенные на чертеже. Но указать их или забыли, или не посчитали нужным. Из кирпича так не сделаешь. Я нахожу только такое объяснение. В доме одна фановая труба? Что это торчит за коньком на фото с готовой кровлей? Как вариант решения - переделать канализацию. Если есть поэтажные планы из раздела ВК - выкладывайте, покумекаем. Теперь еще вопросы: 1. Как в случае одного вентканала обеспечить котельную и 2 санузла? 2. Судя по всему, при достройке этого дымохода бойцы обрезали фановую трубу: (ссылка устарела) На какую высоту она должна возвышаться по отношению вентканалам? 1. Само по себе как-то оно вентилироваться будет за счет естественной тяги. Как именно - покажет эксплуатация. Но возникает проблема если вы планируете ставить вентиляторы. В вашем случае вентиляторы должны быть включены постоянно. Иначе, выключив один из них - получите переток из одного санузла в другой. Можно поставить вентиляторы с обратным клапаном, но они не совсем герметичны. И в любом случае получите переток в котельную. Если не изменяет память, по нормам вытяжка из котельной должна быть только естественная. Т.е. вентилятор в котельной - это будет неправильно. 2. Канализация не совсем мой профиль. Мое мнение - не смертельно если они будут в одном уровне. Посилання на коментар Поділитися на інших сайтах More sharing options...
blacktigra Опубліковано: 11 вересня 2011 Поділитись Опубліковано: 11 вересня 2011 Почему два? Один - вытяжка от кухни, а какой второй? Ну, у меня в голове была картина с вытяжной решеткой в углу кухни, поэтому я предположил что будет два. Один - от зонта, другой - от естественной вентиляции. В проекте, с целью уменьшения количества дымоходов, вытяжку из кухни свели в один узел с дымоходом камина. По правильному, вытяжка должна быть в противоположном конце комнаты от двери. Если не тянуть решетку в угол, то кухня с выключенным зонтом над плитой будет не очень хорошо проветриваться. Посилання на коментар Поділитися на інших сайтах More sharing options...
Uvex Опубліковано: 11 вересня 2011 Автор Поділитись Опубліковано: 11 вересня 2011 Я понял. Вероятно, в проекте предполагалось применение каких-то типовых узлов для обустройства вентканалов, уж больно они тонкостенные на чертеже. Но указать их или забыли, или не посчитали нужным. Из кирпича так не сделаешь. Я нахожу только такое объяснение. В доме одна фановая труба? Что это торчит за коньком на фото с готовой кровлей? Как вариант решения - переделать канализацию. Если есть поэтажные планы из раздела ВК - выкладывайте, покумекаем. Судя по всему одна фановая труба. У меня санузел второго этажа находится прямо над санузлом первого этажа. За коньком торчит второй дымоход - там камин и там 2 вентканала для кухни и гостиной. Что такое ВК? Я вот подумал.. Судя по планам, на первом и втором этажах - разные размеры дымохода (там где санузлы). Наверняка дымоход при попадании на второй этаж "расширяется" и добавляется вентканал для санузла второго этажа. У меня же в реализации один вентканал гонится сверху вниз, захватывая сразу 3 помещения... Че делать? Посилання на коментар Поділитися на інших сайтах More sharing options...
blacktigra Опубліковано: 11 вересня 2011 Поділитись Опубліковано: 11 вересня 2011 Судя по всему одна фановая труба. У меня санузел второго этажа находится прямо над санузлом первого этажа. За коньком торчит второй дымоход - там камин и там 2 вентканала для кухни и гостиной. Что такое ВК? Я вот подумал.. Судя по планам, на первом и втором этажах - разные размеры дымохода (там где санузлы). Наверняка дымоход при попадании на второй этаж "расширяется" и добавляется вентканал для санузла второго этажа. У меня же в реализации один вентканал гонится сверху вниз, захватывая сразу 3 помещения... Че делать? ВК - водопровод и канализация. Я вижу три варианта. 1 - Самый простой. Забить, и оставить как есть. Но это вопрос безопасности и комфорта. 2 - Оставить существующий канал для вентиляции котельной, а вытяжку из санузлов выводить через чердачное пространство на фронтон. 3 - Разбирать кровлю и пристраивать еще два канала. Посилання на коментар Поділитися на інших сайтах More sharing options...
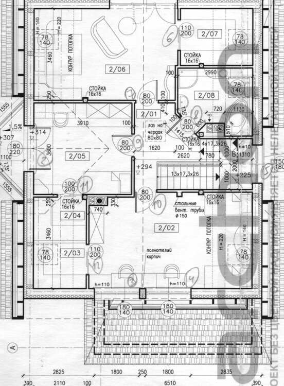
Uvex Опубліковано: 11 вересня 2011 Автор Поділитись Опубліковано: 11 вересня 2011 ВК - водопровод и канализация. Я вижу три варианта. 1 - Самый простой. Забить, и оставить как есть. Но это вопрос безопасности и комфорта. 2 - Оставить существующий канал для вентиляции котельной, а вытяжку из санузлов выводить через чердачное пространство на фронтон. 3 - Разбирать кровлю и пристраивать еще два канала. выкладываю планы: m.io.ua/img_aa/medium/1931/33/19313391.jpg m.io.ua/img_aa/medium/1931/34/19313400.jpg g.io.ua/img_aa/large/1931/34/19313414.jpg g.io.ua/img_aa/large/1931/34/19313427.jpg на деле изменилось расположение сантехники (унитазов, раковин, ванной). Стояки вроде те же. Теперь по вариантам: 1. а. Чем чревато в плане безопасности и комфорта? б. В этом случае пробивать дырку в санузле второго этажа? P.S. В санузле второго этажа есть мансардное окно. 2. Не пойму, как это реализовать? Что нужно сделать со стороны санузлов? И как вывести на фронтон? 3. Это навряд ли И еще.. как сделать вытяжку? Я так и не понял... Как под потолком спрятать трубу диаметром сантиметров 10? Это же уродство будет Посилання на коментар Поділитися на інших сайтах More sharing options...
blacktigra Опубліковано: 12 вересня 2011 Поділитись Опубліковано: 12 вересня 2011 Uvex, у меня в субботу должна быть планерка в Чубинском около полудня. Я мог бы заскочить на вашу стройку и глянуть вживую на ситуацию. Если в это время удобно, киньте мне в личку ваш номер и примерное расположение вашего дома на карте. А то описывать на форуме решения по вентиляции не видя все в живую - это изощренная форма мазохизма. ) Посилання на коментар Поділитися на інших сайтах More sharing options...
Igor_M Опубліковано: 22 вересня 2011 Поділитись Опубліковано: 22 вересня 2011 И еще.. как сделать вытяжку? Я так и не понял... Как под потолком спрятать трубу диаметром сантиметров 10? Это же уродство будет Что с этим вопросом? Нашли решение? Какое? Посилання на коментар Поділитися на інших сайтах More sharing options...
Uvex Опубліковано: 30 вересня 2011 Автор Поділитись Опубліковано: 30 вересня 2011 Итак, спасибо Константину (blacktigra) за то, что побывал у меня на объекте и дал несколько полезных рекомендаций. Решили: 1. Заделать все отверстия в спальнях второго этажа, ибо они выходят в те же вент. каналы, что и вытяжка кухни, вытяжка гостиной. 2. Заделать отверстие в котельной, ибо оно совмещено с тем же вент каналом, что охватывает санузел первого этажа. 3. Пробить дырку в санузле второго этажа. Итого, у 2х санузлов будет один общий вент. канал. Я так и не понял, стоит ли туда ставить вентилятор или нет? 4. В котельной пробить дырку для вытяжки на улицу. 5. Вентиляционные трубы запрятать в фальш балку под потолком. Одна пойдет на вытяжку, вторая пойдет в угол кухни и будет обеспечивать приток. Другими концами эти трубы уйдут в вент каналы, что в каминном дымоходе. Появился новый вопрос.. Есть отдельный стояк, который обслуживает гараж. Он проходит через второй этаж и заканчивается на чердаке. На крыше у меня установлен такой вентиляционный элемент кровли: www.monier.ru/our-production/krovsysfrank/ventil-prohod/produkcija/product/komplekt-dlja-prokhoda-cherez-krovlju-santekhnicheskikh-i-ve/ Из него вниз висит такой вот шланг диаметром 100 мм: www.monier.ru/our-production/krovsysfrank/ventil-prohod/produkcija/product/gibkoe-shlangovoe-soedinenie/ Но он еще не связан с этим вентиляционным каналом. По проекту должен быть канал ф150 диаметра. Этот же элемент - только ф100. Не мало будет? Еще меня смущает, что он как-то накрывается козырьком. Не уменьшает ли это площадь воздуха который заходит? Спасибо! Посилання на коментар Поділитися на інших сайтах More sharing options...
blacktigra Опубліковано: 30 вересня 2011 Поділитись Опубліковано: 30 вересня 2011 Я так и не понял, стоит ли туда ставить вентилятор или нет? Стоит. Только обрати внимание чтобы вентиляторы были с обратными клапанами. Появился новый вопрос.. Есть отдельный стояк, который обслуживает гараж. Он проходит через второй этаж и заканчивается на чердаке. На крыше у меня установлен такой вентиляционный элемент кровли: www.monier.ru/our-production/krovsysfrank/ventil-prohod/produkcija/product/komplekt-dlja-prokhoda-cherez-krovlju-santekhnicheskikh-i-ve/ Из него вниз висит такой вот шланг диаметром 100 мм: www.monier.ru/our-production/krovsysfrank/ventil-prohod/produkcija/product/gibkoe-shlangovoe-soedinenie/ Но он еще не связан с этим вентиляционным каналом. По проекту должен быть канал ф150 диаметра. Этот же элемент - только ф100. Не мало будет? Еще меня смущает, что он как-то накрывается козырьком. Не уменьшает ли это площадь воздуха который заходит? Спасибо! Такие козырки быльше годятся для окончания фановых труб нежели вентиляционных. Производитель лукавит. Тебе больше подошел бы дефлектор. Они бывают разные, если надумаешь менять - можешь погуглить картинки. А по поводу разных диаметров уже ничего не сделаешь - крышу ведь разбирать не будешь. Для естественной вытяжки это не есть хорошо. Но можно решить проблему поставив настенный вентилятор и в гараж. Посилання на коментар Поділитися на інших сайтах More sharing options...
Uvex Опубліковано: 30 вересня 2011 Автор Поділитись Опубліковано: 30 вересня 2011 А по поводу разных диаметров уже ничего не сделаешь - крышу ведь разбирать не будешь. Для естественной вытяжки это не есть хорошо. Но можно решить проблему поставив настенный вентилятор и в гараж. Так это будет вытяжка или поступление воздуха в гараж? Посилання на коментар Поділитися на інших сайтах More sharing options...
blacktigra Опубліковано: 30 вересня 2011 Поділитись Опубліковано: 30 вересня 2011 Так это будет вытяжка или поступление воздуха в гараж? Вытяжка. Гараж относится к "грязным" помещениям. Поэтому в нем должен быть отрицательный баланс воздухообмена по отношению к соседним жилым помещениям. Поступление воздуха будет происходить через неплотности в гаражных воротах и двери в жилую часть. Посилання на коментар Поділитися на інших сайтах More sharing options...
Uvex Опубліковано: 22 лютого 2012 Автор Поділитись Опубліковано: 22 лютого 2012 Костя, еще необходимо прояснить пару моментов. забылось... 1. На кухню 2 вентканала. один - вытяжка над газовой плитой. а второй в углу - тоже вытяжка или приток? лучше с вентилятором или естественно? 2. Далее.. с другой стороны "каминной" стены вроде есть еще один вентканал. очень нужно использовать для камина (прямой приток воздуха в камин). сильно "пострадает гостиная", если останется без вентканала? 3. память подводит.. но я опасаюсь, что один из вентканалов кухни совмещен с вентканалом гостиной (итого всего 2 вентканала на этот стояк). тогда придется забирать вентканал и у кухни, и у гостиной.. и давать его камину. насколько это "страшно"? Спасибо! Посилання на коментар Поділитися на інших сайтах More sharing options...
blacktigra Опубліковано: 22 лютого 2012 Поділитись Опубліковано: 22 лютого 2012 Привет! 1. На кухню 2 вентканала. один - вытяжка над газовой плитой. а второй в углу - тоже вытяжка или приток? лучше с вентилятором или естественно? У тебя все вентканалы в доме это вытяжки. На кухне один вентканал для зонта над плитой, другой - для естественной вытяжки из верхней зоны. Ставить вентилятор, или нет - дело вкуса. Обычно не ставят, т.к. основная копоть от плиты, но над ней будет зонт. 2. Далее.. с другой стороны "каминной" стены вроде есть еще один вентканал. очень нужно использовать для камина (прямой приток воздуха в камин). сильно "пострадает гостиная", если останется без вентканала? Тут все зависит от конструкции камина. Будет дымить или не будет. У меня вызывает сомнение то, что камин сможет втянуть воздух через этот вентканал. Даже если сможет, рекомендую уделить максимум внимания теплоизоляции самого вентканала и его продолжения до топки. Зимой не исключено выпадения конденсата на кирпичной кладке со стороны команты. 3. память подводит.. но я опасаюсь, что один из вентканалов кухни совмещен с вентканалом гостиной (итого всего 2 вентканала на этот стояк). тогда придется забирать вентканал и у кухни, и у гостиной.. и давать его камину. насколько это "страшно"? Не страшно. Можно вентиляцию кухни решить и с одним каналом вот таким способом: Насчет вентилятора - см. п. 1. Но если решишь его не ставить, то обратный клапан вместо него нужен все равно. Иначе когда включишь вытяжку над плитой, воздух будет гонять по кругу. Посилання на коментар Поділитися на інших сайтах More sharing options...
Uvex Опубліковано: 22 лютого 2012 Автор Поділитись Опубліковано: 22 лютого 2012 Тут все зависит от конструкции камина. Будет дымить или не будет. У меня вызывает сомнение то, что камин сможет втянуть воздух через этот вентканал. Даже если сможет, рекомендую уделить максимум внимания теплоизоляции самого вентканала и его продолжения до топки. Зимой не исключено выпадения конденсата на кирпичной кладке со стороны команты. Камин дымить будет, но для этого предназначен специальный нержавеющий дымоход (200 мм). Я так понимаю, втягивается воздух через трубу диаметром 100-125 мм.. которая как раз и уложится в этот вентканал... если ниче не намутал. Не страшно. Можно вентиляцию кухни решить и с одним каналом вот таким способом: Насчет вентилятора - см. п. 1. Но если решишь его не ставить, то обратный клапан вместо него нужен все равно. Иначе когда включишь вытяжку над плитой, воздух будет гонять по кругу. шутка в том, что у меня картина симетричная... сначала идет угловая вытяжка, затем над плитой, и только потом это все хозяйство идет к каминному стояку с вентканалами. как быть в этом случае? спасибо! Посилання на коментар Поділитися на інших сайтах More sharing options...
blacktigra Опубліковано: 22 лютого 2012 Поділитись Опубліковано: 22 лютого 2012 Камин дымить будет, но для этого предназначен специальный нержавеющий дымоход (200 мм). Я так понимаю, втягивается воздух через трубу диаметром 100-125 мм.. которая как раз и уложится в этот вентканал... если ниче не намутал. Ну, то что камин будет дымить, это понятно. Я имел в виду тот дым который может попасть из топки в комнату если будет плохая тяга/в дымоход упадет голубь etc. Второй вентканал как раз предназначен для того, чтобы его удалить. шутка в том, что у меня картина симетричная... сначала идет угловая вытяжка, затем над плитой, и только потом это все хозяйство идет к каминному стояку с вентканалами. как быть в этом случае? Не совсем понял глубину глубин. Есть план? Посилання на коментар Поділитися на інших сайтах More sharing options...
Рекомендовані повідомлення
Створіть акаунт або увійдіть у нього для коментування
Ви маєте бути користувачем, щоб залишити коментар
Створити акаунт
Зареєструйтеся для отримання акаунта. Це просто!
Зареєструвати акаунтУвійти
Вже зареєстровані? Увійдіть тут.
Увійти зараз