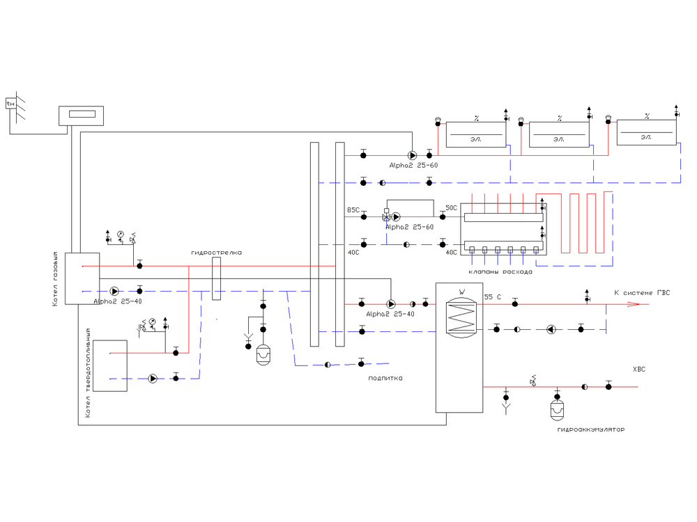
carambassy Опубліковано: 7 жовтня 2011 Поділитись Опубліковано: 7 жовтня 2011 Здравствуйте! Прошу оценки и совета в подборе циркуляционных насосов. Правильно ли во вторичном кольце радиаторов и кольце теплого пола поставить насосы Grundfos Alpha 25-60, а на кольце бойлера косвенного нагрева и первичном кольце котлов Grundfos Alpha 25-40 (на каждом). На линию рециркуляции ГВС выбрал Grundfos UP 15-14 BUT. Котлы не будут работать одновременно, ТТ котел исключительно резервный. Гидрострелку посоветовали ставить из-за чугунного теплообменника котла. Посилання на коментар Поділитися на інших сайтах More sharing options...
murava Опубліковано: 7 жовтня 2011 Поділитись Опубліковано: 7 жовтня 2011 Думаю, правильно. Только в контуре ТТ котла целесообразно поставить смесительный клапан.... 1 Посилання на коментар Поділитися на інших сайтах More sharing options...
Сергей 31 Опубліковано: 7 жовтня 2011 Поділитись Опубліковано: 7 жовтня 2011 Прошу оценки Все красиво и правильно. Только в контуре ТТ котла целесообразно поставить смесительный клапан.... Работа Т.Т. на гидрострелку даст то же самое. 1 Посилання на коментар Поділитися на інших сайтах More sharing options...
naupv Опубліковано: 7 жовтня 2011 Поділитись Опубліковано: 7 жовтня 2011 Здравствуйте! Прошу оценки и совета в подборе циркуляционных насосов. Правильно ли во вторичном кольце радиаторов и кольце теплого пола поставить насосы Grundfos Alpha 25-60, а на кольце бойлера косвенного нагрева и первичном кольце котлов Grundfos Alpha 25-40 (на каждом). На линию рециркуляции ГВС выбрал Grundfos UP 15-14 BUT. Котлы не будут работать одновременно, ТТ котел исключительно резервный. Гидрострелку посоветовали ставить из-за чугунного теплообменника котла. 25-60 довольно мощный насос, для ТП (если конечно у Вас не 200 квадратов), 25-40 я думаю хватит. 1 Посилання на коментар Поділитися на інших сайтах More sharing options...
carambassy Опубліковано: 7 жовтня 2011 Автор Поділитись Опубліковано: 7 жовтня 2011 Хочу еще уточнить теплые полы у меня будут на 1(78 м кв.) и 2(40 м кв.) этаже, насос надо ставить на каждый коллектор ТП? Или хватит одного? Посилання на коментар Поділитися на інших сайтах More sharing options...
murava Опубліковано: 7 жовтня 2011 Поділитись Опубліковано: 7 жовтня 2011 Альфа умеет сама подбирать рабочую точку. Все там нормально будет. Правда на кой ляд платить столько денег за это ее умение - для меня пока загадка. 2 Посилання на коментар Поділитися на інших сайтах More sharing options...
Сергей 31 Опубліковано: 7 жовтня 2011 Поділитись Опубліковано: 7 жовтня 2011 Хочу еще уточнить теплые полы у меня будут на 1(78 м кв.) и 2(40 м кв.) этаже, насос надо ставить на каждый коллектор ТП? Или хватит одного? Хватит одного, но предусмотреть балансировку этажных коллекторов между собой. 1 Посилання на коментар Поділитися на інших сайтах More sharing options...
naupv Опубліковано: 7 жовтня 2011 Поділитись Опубліковано: 7 жовтня 2011 Хочу еще уточнить теплые полы у меня будут на 1(78 м кв.) и 2(40 м кв.) этаже, насос надо ставить на каждый коллектор ТП? Или хватит одного? Хватит одного, но я б поставил на всяк случай по отдельности. 1 Посилання на коментар Поділитися на інших сайтах More sharing options...
carambassy Опубліковано: 8 жовтня 2011 Автор Поділитись Опубліковано: 8 жовтня 2011 Может порекомендуете как всеми этими насосами и котлом управлять централизовано. Котел выбрал: газовый Protherm 30 КLOМ (модуляция 18,2-26 кВт), в нем управление насосом отопления и насоса ГВС, но нет управления смешением теплого пола. Смотрел на: 1. Honeywell SMILE SDC 12-31N 2. KROMSCHRODER E8.**** Вроде как все подходит, особенно 2-й, но смущает один нюанс в нем управление котлом с 1-но или 2-х ступенчатой горелкой, а у меня с модуляцией. Гипотетически еще может подойти контроллер Vaillant VRC 430(630) в нем и шина e-bus, но один монтажник сказал, что в реалии они не дружат. Посилання на коментар Поділитися на інших сайтах More sharing options...
naupv Опубліковано: 8 жовтня 2011 Поділитись Опубліковано: 8 жовтня 2011 KROMSCHRODER дружит со всеми котлами, консультацию и покупку можете здесь получить (ссылка устарела) стр 54-56 А модуляционная горелка стоит, что на одноступенчатом, что на двухступенчатом котле. Но это Вы по "навороченному" хотите, проще установить в котельной насосную группу с подмесом и сервопривод с датчиком тепла, или коллектор с термоэлектрическими сервоприводами (там это добро тоже есть) Посилання на коментар Поділитися на інших сайтах More sharing options...
voVap Опубліковано: 15 листопада 2011 Поділитись Опубліковано: 15 листопада 2011 Все красиво и правильно. Работа Т.Т. на гидрострелку даст то же самое. В данном случае, т.е. при наличии гидрострелки, на ТТ котле смеситель не надо устанавливать? Или можно не устанавливать? Насколько гидросрелка будет обеспечивать необходимую температуру обратного носителя для ТТ котла? Посилання на коментар Поділитися на інших сайтах More sharing options...
ttkotel Опубліковано: 15 листопада 2011 Поділитись Опубліковано: 15 листопада 2011 Гидрострелка ничего никакой температуры не будет обеспечивать, особенно на обратке! Посилання на коментар Поділитися на інших сайтах More sharing options...
Elado Опубліковано: 15 листопада 2011 Поділитись Опубліковано: 15 листопада 2011 Здравствуйте! Прошу оценки и совета в подборе циркуляционных насосов. Правильно ли во вторичном кольце радиаторов и кольце теплого пола поставить насосы Grundfos Alpha 25-60, а на кольце бойлера косвенного нагрева и первичном кольце котлов Grundfos Alpha 25-40 (на каждом). На линию рециркуляции ГВС выбрал Grundfos UP 15-14 BUT. Котлы не будут работать одновременно, ТТ котел исключительно резервный. Гидрострелку посоветовали ставить из-за чугунного теплообменника котла. А вот зачем столько Альф? Ну на радиаторах понятно - стоят термоклапаны. На ТП - если не будет позонной регуляции температуры сервомоторами на ветках - зачем оно? Посчитать характеристики контура и подобрать обычный УПС или Бэйсик. На контуре бойлера тем паче не надо никаких Альф. А вот смеситель на контуре радиаторов я б добавил - иначе погодозависимое будет только при работе газового котла, при ТТ туда пойдет много больше, чем часто надо. Гидрострелку и коллектор можно совместить - эдакая красивая никелированная колонна получиться, но подключать контура так (сверху) - бойлер, радиаторы, ТП. Газовый котел - на 60-70С. Кромшредер Е8 брать на 2 смесительных модуля. И все будет очень и очень на уровне. Единственное в чем слабина - ТТ может закипеть, когда разбор тепла будет мал. Я бы включил его через небольшой буфер и подключал бы уже буфер на прогрев обратки от гидрострелки (работать будет насос газового котла) через 3хходовой. Насос газового котла при этом нужно настроить на непрерывную работу. Кстати, для определения правильности подбора насосов, надо знать расходно-напорные характеристики в контурах, а не "потянет-не потянет". Смеситель на ТТ - если напрямую от гидрострелки - можно и не ставить, т.к. не будет "холодного старта", если буфер - ставить обязательно. Посилання на коментар Поділитися на інших сайтах More sharing options...
Yaroslav N Опубліковано: 24 листопада 2011 Поділитись Опубліковано: 24 листопада 2011 Тоже вопрос по правильному подбору насоса для ТП. У меня 3 контура ТП: 2х45м.п и один 55м.п. металлопластиковой трубы 16х2,25. Все контура подключены к одной гребенке. Труба накручена улиткой. Один насос на ТП. Не могу разобратся как посчитать сопротивления, чтобы определится какой насос выбрать. П.С. добрые люди, зная что я делаю СО дома подарили оставшийся незадействованным в своем строительстве насос wilo top-s 40/4. По характеристикам я понял, что у себя я его нигде задействовать не смогу. Но в комплекте к нему есть wilo display module. Для чего он нужен? Посилання на коментар Поділитися на інших сайтах More sharing options...
ts3 Опубліковано: 24 листопада 2011 Поділитись Опубліковано: 24 листопада 2011 Тоже вопрос по правильному подбору насоса для ТП. У меня 3 контура ТП: 2х45м.п и один 55м.п. металлопластиковой трубы 16х2,25. Все контура подключены к одной гребенке. Труба накручена улиткой. Один насос на ТП. Не могу разобратся как посчитать сопротивления, чтобы определится какой насос выбрать. П.С. добрые люди, зная что я делаю СО дома подарили оставшийся незадействованным в своем строительстве насос wilo top-s 40/4. По характеристикам я понял, что у себя я его нигде задействовать не смогу. Но в комплекте к нему есть wilo display module. Для чего он нужен? На Ваших скромных три контура подойдет любой насос д25 П.С. Они б Вам еще ковш от трактора подарили))))) Посилання на коментар Поділитися на інших сайтах More sharing options...
Yaroslav N Опубліковано: 30 листопада 2011 Поділитись Опубліковано: 30 листопада 2011 Хочу уточнить: любой 25 это 25/4 или 25/6? Дополнительного подпора от котельного насоса у меня нет. Вода идет из ТА. Какой насос мне стоит выбрать с учетом перепада на смесительном клапане 7кПа? Посилання на коментар Поділитися на інших сайтах More sharing options...
Interso Опубліковано: 30 листопада 2011 Поділитись Опубліковано: 30 листопада 2011 Хочу уточнить: любой 25 это 25/4 или 25/6? Дополнительного подпора от котельного насоса у меня нет. Вода идет из ТА. Какой насос мне стоит выбрать с учетом перепада на смесительном клапане 7кПа? 7кПа это всего лиш потери 7см водяного столба а насос 25/4 создаёт 4 м водяного столба,25/6 создаёт 6м водяного столба.Так что насоса 25/4 вам хватит с головой. Посилання на коментар Поділитися на інших сайтах More sharing options...
Сергей_84 Опубліковано: 30 листопада 2011 Поділитись Опубліковано: 30 листопада 2011 7кПа это всего лиш потери 7см водяного столба а насос 25/4 создаёт 4 м водяного столба,25/6 создаёт 6м водяного столба.Так что насоса 25/4 вам хватит с головой. не правильно мыслишь.... 4 м не создает..точнее создает при 0 расходе и 7 кПа это 0,7 метра... Насос 4-ка создает напор 2,5 метра при расходе 1 куб в час (эквивалент 24 киловата при дельте 20) ПС глянул ветки теплого пола...4 действительно хватит 1 Посилання на коментар Поділитися на інших сайтах More sharing options...
Сергей 31 Опубліковано: 30 листопада 2011 Поділитись Опубліковано: 30 листопада 2011 "Как не считай, 25/6 получается". Цитата от "romi9999". 1 Посилання на коментар Поділитися на інших сайтах More sharing options...
Yaroslav N Опубліковано: 30 листопада 2011 Поділитись Опубліковано: 30 листопада 2011 (змінено) Спасибо за попытку, но 7кПа это 70см водяного столба. Если прибавить 25 кПа потери в трубопроводе ТП, это уже будет 3,2м. Моя проблема как раз в том, что я даже приблизительно не знаю какие могут быть потери в трубе. Поэтому и обращаюсь к опытным товарищам. ... долго писал... 24 кВт это как то многовато. Несколько голосов за 25/6 против 1-го за 25/4. Если что-буду его на минимуме использовать. Спасибо за ответы. Змінено 30 листопада 2011 користувачем Yaroslav N Посилання на коментар Поділитися на інших сайтах More sharing options...
Interso Опубліковано: 30 листопада 2011 Поділитись Опубліковано: 30 листопада 2011 [ quote]не правильно мыслишь.... 4 м не создает..точнее создает при 0 расходе и 7 кПа это 0,7 метра... Да правильно както я провтыкалКонвертер значений 7 кПа = 0071380135.pdf Посилання на коментар Поділитися на інших сайтах More sharing options...
Сергей_84 Опубліковано: 30 листопада 2011 Поділитись Опубліковано: 30 листопада 2011 [ quote] Тогда сайт получается врёт? сайт сайтом..а из курса физики 1 атм=100 кПа=10м из этого следует 1м =10 кПа Забудь ссылку на этот сайт..а то напроэктируешь по его расчетам ..нафиг оно тебе надо... Посилання на коментар Поділитися на інших сайтах More sharing options...
Сергей_84 Опубліковано: 30 листопада 2011 Поділитись Опубліковано: 30 листопада 2011 Андрей, чего у тебя все в ПДФ?...уже весь комп в твоих файлах))))) почему ты как картинку не вставляешь? Посилання на коментар Поділитися на інших сайтах More sharing options...
Interso Опубліковано: 30 листопада 2011 Поділитись Опубліковано: 30 листопада 2011 Андрей, чего у тебя все в ПДФ?...уже весь комп в твоих файлах))))) почему ты как картинку не вставляешь? А я незнаю как это делать. Посилання на коментар Поділитися на інших сайтах More sharing options...
Сергей_84 Опубліковано: 30 листопада 2011 Поділитись Опубліковано: 30 листопада 2011 А я незнаю как это делать. в какой программе ты рисуешь свои схемки? и каким образом ты сохранял страничку с сайта??? Посилання на коментар Поділитися на інших сайтах More sharing options...
Рекомендовані повідомлення
Створіть акаунт або увійдіть у нього для коментування
Ви маєте бути користувачем, щоб залишити коментар
Створити акаунт
Зареєструйтеся для отримання акаунта. Це просто!
Зареєструвати акаунтУвійти
Вже зареєстровані? Увійдіть тут.
Увійти зараз