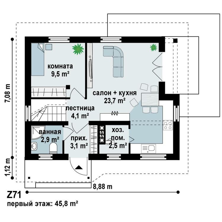
vale3 Опубліковано: 14 жовтня 2011 Поділитись Опубліковано: 14 жовтня 2011 Покритикуйте проект пожалуйста Дом мансардный взял с Z500 проектов Все нравится но хочу убрать террассу и сделать с/у раздельным, сделать шире окна сделать комнаты шире две которые находятся над терассой за счет уменьшения ванной второго этажа а также маленькой комнаты Посилання на коментар Поділитися на інших сайтах More sharing options...
Игорь&Ира Опубліковано: 14 жовтня 2011 Поділитись Опубліковано: 14 жовтня 2011 Покритикуйте проект пожалуйста Дом мансардный взял с Z500 проектов Все нравится но хочу убрать террассу и сделать с/у раздельным, сделать шире окна сделать комнаты шире две которые находятся над терассой за счет уменьшения ванной второго этажа а также маленькой комнаты Проект понравился. Терассу, наоборот, бы увеличил. Подумал бы о балконах и только двух комнатах на втором этаже. А какой бюджет этого дома? Посилання на коментар Поділитися на інших сайтах More sharing options...
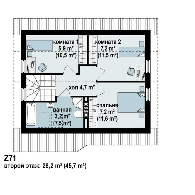
NYUTA Опубліковано: 14 жовтня 2011 Поділитись Опубліковано: 14 жовтня 2011 Покритикуйте проект пожалуйста Дом мансардный взял с Z500 проектов Все нравится но хочу убрать террассу и сделать с/у раздельным, сделать шире окна сделать комнаты шире две которые находятся над терассой за счет уменьшения ванной второго этажа а также маленькой комнаты По проекту - вызывают сомнения габариты кухни - маловато будет. На 1-ом этаже хотите раздельный с/у? он квадратный по пропорциям - вы его перегородкой никак не разделите, чтоб нормальный раздельный с/у получился - только стенки несущие придется двигать. Отсюда вопрос - нужен ли он раздельный? По 2-ому этажу какая-то непонятка с площадями (надеюсь, что правильные те, которые в скобках ). Одну из спален можно сделать больше за счет санузла (уж слишком шикарен), а вторую за счет маленькой комнаты - не стоит. А то маленькая спальня превратиться в кладовку. На 2-ом этаже вообще какой-то кошмар с очертаниями помещений - каждое Г-образной формы. Нехорошо. Посилання на коментар Поділитися на інших сайтах More sharing options...
ПЛАСТИК Опубліковано: 14 жовтня 2011 Поділитись Опубліковано: 14 жовтня 2011 По 2-ому этажу какая-то непонятка с площадями (надеюсь, что правильные те, которые в скобках ) Дом мансардный, площади указаны по второму этажу: по полу и по подрезке помещений скатами. Впервые такое видите? Посилання на коментар Поділитися на інших сайтах More sharing options...
NYUTA Опубліковано: 14 жовтня 2011 Поділитись Опубліковано: 14 жовтня 2011 Дом мансардный, площади указаны по второму этажу: по полу и по подрезке помещений скатами. Впервые такое видите? Просто есть правила определения площади мансардных помещений относительно высоты наклонного потолка при уклоне к горизонту: либо по полу, либо по полу с коэффициентом. Потому две площади "по полу и по подрезке помещений скатами" - некорректно. Посилання на коментар Поділитися на інших сайтах More sharing options...
vale3 Опубліковано: 14 жовтня 2011 Автор Поділитись Опубліковано: 14 жовтня 2011 (змінено) Комнату можно на массардном этаже расширить но на первом этаже находится хоз помещение с котлом и камином над которым дымоход (как обойти???) Вопрос к знатокам. Я сделал туалет раздельным. не будет ли у меня проблем если туалет находится не над туалетор первого этажа??? То что мог порасширать сбрасываю на суд Змінено 14 жовтня 2011 користувачем vale3 Посилання на коментар Поділитися на інших сайтах More sharing options...
ПЛАСТИК Опубліковано: 14 жовтня 2011 Поділитись Опубліковано: 14 жовтня 2011 ссылка не работает Посилання на коментар Поділитися на інших сайтах More sharing options...
ПЛАСТИК Опубліковано: 14 жовтня 2011 Поділитись Опубліковано: 14 жовтня 2011 Просто есть правила определения площади мансардных помещений относительно высоты наклонного потолка при уклоне к горизонту: либо по полу, либо по полу с коэффициентом. Потому две площади "по полу и по подрезке помещений скатами" - некорректно. По правилам подсчета площадей с наклонными стенами, считаеться площадь на уровне 1.4 м от пола. По крайней мере так считают площади в БТИ. А о каких коофициентах идет речь? Указать площадь с коофициентом по Вашему былоб более коректно? Посилання на коментар Поділитися на інших сайтах More sharing options...
Игорь&Ира Опубліковано: 14 жовтня 2011 Поділитись Опубліковано: 14 жовтня 2011 То что мог порасширать сбрасываю на суд Раздельный санузел на втором этаже - цимес. Посилання на коментар Поділитися на інших сайтах More sharing options...
vale3 Опубліковано: 14 жовтня 2011 Автор Поділитись Опубліковано: 14 жовтня 2011 Раздельный санузел на втором этаже - цимес. Ци́мес (идиш צימעס) — десертное блюдо еврейской кухни.[1] Представляет собой сладкое овощное рагу с различными ингредиентами, которые могут варьироваться в зависимости от территории. Соответственно различают морковный, фасолевый, нутовый и другие разновидности цимеса Немного не понял к чему тут он???? ПЫСЫ: Ученные установили что при совмещенном санузле при спуске воды в унитазе микробы перемещаются с унитаза на окружающее пространство в радиусе 5 метров. Мне как то не очень хочется унитазных зверушек на зубных щетках. А также веселого мало если я моюсь а кто то бросает колбасу в унитаз Посилання на коментар Поділитися на інших сайтах More sharing options...
olya7715 Опубліковано: 14 жовтня 2011 Поділитись Опубліковано: 14 жовтня 2011 с котельни должен быть отдельный выход на улицу ещё советую как-то оформить при входе прихожую с дверью, чтобы тепло удерживать Посилання на коментар Поділитися на інших сайтах More sharing options...
Archist Опубліковано: 14 жовтня 2011 Поділитись Опубліковано: 14 жовтня 2011 с котельни должен быть отдельный выход на улицу ... Кому должен? ;) 1 Посилання на коментар Поділитися на інших сайтах More sharing options...
Игорь&Ира Опубліковано: 14 жовтня 2011 Поділитись Опубліковано: 14 жовтня 2011 Ци́мес (идиш צימעס) — десертное блюдо еврейской кухни.[1] Представляет собой сладкое овощное рагу с различными ингредиентами, которые могут варьироваться в зависимости от территории. Соответственно различают морковный, фасолевый, нутовый и другие разновидности цимеса Немного не понял к чему тут он???? А дальше лень было прочитать: Цимес в ашкеназской традиции является обязательным компонентом меню на еврейский Новый год. Несмотря на простые ингредиенты, считается большим деликатесом и лакомством, именно поэтому в переносном значении это слово употребляется в значении «то, что надо», «самое лучшее» ? Посилання на коментар Поділитися на інших сайтах More sharing options...
olya7715 Опубліковано: 15 жовтня 2011 Поділитись Опубліковано: 15 жовтня 2011 должны по строительным нормам Посилання на коментар Поділитися на інших сайтах More sharing options...
Milissa Опубліковано: 15 жовтня 2011 Поділитись Опубліковано: 15 жовтня 2011 Для таких габаритов дома, очень неплохая планировка. Вы правильно сделали, что разделили санузел на втором этаже (он может размещаться над прихожей - это нежилое помещение). Выход из хоз.помещения в кухню - вполне может быть, тем более что там есть окно. Из минусов - это выход из санузла на первом этаже прямо в тамбур (я так понимаю что это прихожая-тамбур). Но вполне решаемо за счет двойной двери. Не делайте ничего с коридором на втором этаже (по советам друзей Вы изменили его Г-образную форму срезав угол). Это явно не делает планировку лучше. 1 Посилання на коментар Поділитися на інших сайтах More sharing options...
seyvalter Опубліковано: 16 жовтня 2011 Поділитись Опубліковано: 16 жовтня 2011 должны по строительным нормам Конкретизуйте, по яких саме нормах (бажано - цитатою з ДБН)?. По нормам - ДОЛЖНО бути ВІКНО, а окремий вихід з котельні стосуєься лише громадських споруд. 8-) Посилання на коментар Поділитися на інших сайтах More sharing options...
Игорь&Ира Опубліковано: 16 жовтня 2011 Поділитись Опубліковано: 16 жовтня 2011 Я бы ещё попытался повыше поднять стены под скатами кровли (без ущерба для внешнего вида домика!), чтобы увеличить полезную площадь помещений на мансарде. Посилання на коментар Поділитися на інших сайтах More sharing options...
olya7715 Опубліковано: 16 жовтня 2011 Поділитись Опубліковано: 16 жовтня 2011 Конкретизуйте, по яких саме нормах (бажано - цитатою з ДБН)?. По нормам - ДОЛЖНО бути ВІКНО, а окремий вихід з котельні стосуєься лише громадських споруд. 8-) Удачи. Вы как-то слишком агресивны.... Консультируйтесь тогда у юристов, а не на форуме. Посилання на коментар Поділитися на інших сайтах More sharing options...
oleg.kotenko. Опубліковано: 16 жовтня 2011 Поділитись Опубліковано: 16 жовтня 2011 Мне проект полностью понравился! Посилання на коментар Поділитися на інших сайтах More sharing options...
seyvalter Опубліковано: 16 жовтня 2011 Поділитись Опубліковано: 16 жовтня 2011 Удачи. Вы как-то слишком агресивны.... Консультируйтесь тогда у юристов, а не на форуме. Абсолютно. Навіть смайлик поставлю :D. Але ви впевнено заявляєте людині що по будівельних (санітарних? пожежних?) нормах там потрібні двері - в той час коли це твердження не відповідає дійсності. Тому я й попросив вас аргументувати своє твердження цитатою з норм в яких ви подібне побачили. І де тут агресія? Посилання на коментар Поділитися на інших сайтах More sharing options...
Игорь&Ира Опубліковано: 16 жовтня 2011 Поділитись Опубліковано: 16 жовтня 2011 с котельни должен быть отдельный выход на улицу Что-то мне подсказывает, что котёл будет работать не на дровах и не на угле. Посилання на коментар Поділитися на інших сайтах More sharing options...
vale3 Опубліковано: 17 жовтня 2011 Автор Поділитись Опубліковано: 17 жовтня 2011 Что-то мне подсказывает, что котёл будет работать не на дровах и не на угле. Котер газовый с подстраховкой твердотопливным(в планах) Посилання на коментар Поділитися на інших сайтах More sharing options...
Игорь&Ира Опубліковано: 17 жовтня 2011 Поділитись Опубліковано: 17 жовтня 2011 Котер газовый с подстраховкой твердотопливным(в планах) Для подстраховки отдельный вход не нужен. 1 Посилання на коментар Поділитися на інших сайтах More sharing options...
oleg.kotenko. Опубліковано: 17 жовтня 2011 Поділитись Опубліковано: 17 жовтня 2011 Начинали с проекта, а закончили маркой котла!? Посилання на коментар Поділитися на інших сайтах More sharing options...
Игорь&Ира Опубліковано: 17 жовтня 2011 Поділитись Опубліковано: 17 жовтня 2011 Начинали с проекта, а закончили маркой котла!? Понравился проект, вот и флудим. Хотелось бы узнать от ТС о спецификации материалов на дом. Посилання на коментар Поділитися на інших сайтах More sharing options...
Рекомендовані повідомлення
Створіть акаунт або увійдіть у нього для коментування
Ви маєте бути користувачем, щоб залишити коментар
Створити акаунт
Зареєструйтеся для отримання акаунта. Це просто!
Зареєструвати акаунтУвійти
Вже зареєстровані? Увійдіть тут.
Увійти зараз