Сергей777 Опубліковано: 31 жовтня 2011 Поділитись Опубліковано: 31 жовтня 2011 Здесь на форуме есть люди, которые строят маленькие дома (до 100 кв. м.) в качестве основного жилья? Почему-то не получилось по поиску ничего такого найти... Суть вопроса в том, что сам я строю для семьи именно такой дом, т.к. не вижу необходимости "давать стране площадей". Ищу единомышленников ) Посилання на коментар Поділитися на інших сайтах More sharing options...
vesta60 Опубліковано: 31 жовтня 2011 Поділитись Опубліковано: 31 жовтня 2011 Строим из газобетона маленький дом с мансардой. Фундамент по внешнему контуру 7,5х7,3. Предпосылки: дом на 2-х (дети взрослые), газа нет и не предвидится - маленький дом проще отопить, да и убирать тоже Посилання на коментар Поділитися на інших сайтах More sharing options...
Сергей777 Опубліковано: 31 жовтня 2011 Автор Поділитись Опубліковано: 31 жовтня 2011 А отчетик какой-то имеется? Здесь или где-нить еще? Посилання на коментар Поділитися на інших сайтах More sharing options...
khersonec Опубліковано: 31 жовтня 2011 Поділитись Опубліковано: 31 жовтня 2011 Здесь на форуме есть люди, которые строят маленькие дома (до 100 кв. м.) в качестве основного жилья? Почему-то не получилось по поиску ничего такого найти... Суть вопроса в том, что сам я строю для семьи именно такой дом, т.к. не вижу необходимости "давать стране площадей". Ищу единомышленников ) У меня тоже дом не большой, до 100 м2. Посилання на коментар Поділитися на інших сайтах More sharing options...
ms0436 Опубліковано: 31 жовтня 2011 Поділитись Опубліковано: 31 жовтня 2011 у меня 8х8 полумасарда.Корбка с обычной крышей и перекрытиями 20 уе уже потянула.Это без облицовки,стены -ракушка 38см+облицовка. Посилання на коментар Поділитися на інших сайтах More sharing options...
AНДРЮША Опубліковано: 31 жовтня 2011 Поділитись Опубліковано: 31 жовтня 2011 У меня домик 48кв.м для ПМЖ. Посилання на коментар Поділитися на інших сайтах More sharing options...
Сергей777 Опубліковано: 1 листопада 2011 Автор Поділитись Опубліковано: 1 листопада 2011 Спасибо за отклик. А то читаю отчеты по стройкам и прям комплексовать начинаю ))) У меня дом 6,5 x 8,5 с мансардным этажем. Получилось вместить все необходимое для семьи из пяти человек: 4 спальни, 2 с\у, большая кухня. Посилання на коментар Поділитися на інших сайтах More sharing options...
Olga Kostyuk Опубліковано: 1 листопада 2011 Поділитись Опубліковано: 1 листопада 2011 Спасибо за отклик. А то читаю отчеты по стройкам и прям комплексовать начинаю ))) А вот это Вы зря! Мы с мужем строим дом площадью 200 метров, а у моей сестры только бассейн что-то около того, и ничего , не комплексуем. Меньше площадь - больше душИ на квадратный метр! 2 Посилання на коментар Поділитися на інших сайтах More sharing options...
Сергей777 Опубліковано: 1 листопада 2011 Автор Поділитись Опубліковано: 1 листопада 2011 А вот это Вы зря! Мы с мужем строим дом площадью 200 метров, а у моей сестры только бассейн что-то около того, и ничего , не комплексуем. Меньше площадь - больше душИ на квадратный метр! Спасибо за поддержку! Тут зреет мысль отчетик соорудить, но все не решался. Видимо, пришло время ) Посилання на коментар Поділитися на інших сайтах More sharing options...
nuht2007 Опубліковано: 1 листопада 2011 Поділитись Опубліковано: 1 листопада 2011 Присоединяюсь, мы вот планируем домик построить около 110 метров. Для всего что необходимо мне и моей семье места хватило. Уже все распланировали. Ой, чего то я так оптимистично, надеюсь что хватит. Посилання на коментар Поділитися на інших сайтах More sharing options...
vesta60 Опубліковано: 1 листопада 2011 Поділитись Опубліковано: 1 листопада 2011 А отчетик какой-то имеется? Здесь или где-нить еще? Хочу создать темку, но как то руки не доходят. Фотки есть может разместить их в своем альбоме? Посилання на коментар Поділитися на інших сайтах More sharing options...
termosam Опубліковано: 1 листопада 2011 Поділитись Опубліковано: 1 листопада 2011 Спасибо за отклик. А то читаю отчеты по стройкам и прям комплексовать начинаю ))) У меня дом 6,5 x 8,5 с мансардным этажем. Получилось вместить все необходимое для семьи из пяти человек: 4 спальни, 2 с\у, большая кухня. Добрый день ..... Тоже немного не пойму....... все строят каких то гигантов ))))) Я начитавшись форум и почувствовав себя с руками, решил проверить свои силы и построить небольшой термодомик решил я это гдетто в августе и вот уже накрыли крышу ))) Домик 5,6 х 10,60м. с мансардой. Все делали вдвоем с другом ....много фото в теме .....ДОБРО ПОЖАЛОВАТЬ www.stroimdom.com.ua/forum/showthread.php?t=69845 Посилання на коментар Поділитися на інших сайтах More sharing options...
damber777 Опубліковано: 1 листопада 2011 Поділитись Опубліковано: 1 листопада 2011 Здесь на форуме есть люди, которые строят маленькие дома (до 100 кв. м.) в качестве основного жилья? Почему-то не получилось по поиску ничего такого найти... Суть вопроса в том, что сам я строю для семьи именно такой дом, т.к. не вижу необходимости "давать стране площадей". Ищу единомышленников ) Построил 8х8,5 м с 2-мя мансардными комнатами. Общая площадь вышла около 96 м2. Сейчай прожываем втроем. Места хватает. Посилання на коментар Поділитися на інших сайтах More sharing options...
TALIIA Опубліковано: 1 листопада 2011 Поділитись Опубліковано: 1 листопада 2011 В мёчтах тоже маленький дом до 100-110 м кв. Посилання на коментар Поділитися на інших сайтах More sharing options...
Ивлева Опубліковано: 1 листопада 2011 Поділитись Опубліковано: 1 листопада 2011 У меня дом до 100 м кв., в будущем планируем мансарду из 3 комнат +санузел. Для четверых маловастенько (муж,я, дочка + старенькая бабушка), но пока расширить не можем т.к. по семейным обстоятельствам. Летом выручает наличие летней кухни + душ с санузлом+беседка. Но метраж - это дело такое, главное - это его наполнение Удачи Вам! Посилання на коментар Поділитися на інших сайтах More sharing options...
Сергей777 Опубліковано: 1 листопада 2011 Автор Поділитись Опубліковано: 1 листопада 2011 Добрый день ..... Тоже немного не пойму....... все строят каких то гигантов ))))) Я начитавшись форум и почувствовав себя с руками, решил проверить свои силы и построить небольшой термодомик решил я это гдетто в августе и вот уже накрыли крышу ))) Домик 5,6 х 10,60м. с мансардой. Все делали вдвоем с другом ....много фото в теме .....ДОБРО ПОЖАЛОВАТЬ www.stroimdom.com.ua/forum/showthread.php?t=69845 Хороший темп. С интересом прочитал отчет. Ждем раскладов по бюджету ;) Посилання на коментар Поділитися на інших сайтах More sharing options...
Сергей777 Опубліковано: 1 листопада 2011 Автор Поділитись Опубліковано: 1 листопада 2011 У меня дом до 100 м кв., в будущем планируем мансарду из 3 комнат +санузел. Для четверых маловастенько (муж,я, дочка + старенькая бабушка), но пока расширить не можем т.к. по семейным обстоятельствам. Летом выручает наличие летней кухни + душ с санузлом+беседка. Но метраж - это дело такое, главное - это его наполнение Удачи Вам! Почему мало? Чего не хватает? Посилання на коментар Поділитися на інших сайтах More sharing options...
Ивлева Опубліковано: 1 листопада 2011 Поділитись Опубліковано: 1 листопада 2011 Точнее, чего хватает). А хватает семейных проблем. В тот момент, когда мы с мужем приняли решение о строительстве дома, на семейном совете подняли вопрос: - кто тогда будет заниматься старым бабушкиным домом 64 года выпуска, ну и ест. самой бабушкой (81 год). До этого с бабушкой жила моя мама, но она квартирный житель... проблемы в виде чистки снега, уборки листьев и т.д. стали вызывать у нее панический ужас. Гм, а мужчин у нас на 4 семьи... аж целый 1 (муж)))). Дом начал валиться, денег туда надо было немеряно (кто связывался с реконструкцией - поймет). Короче, еще много чего сложилось... маму переселили в нашу старую квартиру, сами начали отстраивать нашу семейную реликвию. А теперь чего не хватает - земли. Поэтому пристроили только 1 комнату +тамбур с крыльцом. Дальше расширяться только вверх.... бутовый фундамент позволяет. Но изначально была просьба нашего патриарха - дать спокойно дожить под родной крышей(. Поэтому вот так. У нас квадратов 90 получилось.... после квартиры первое время казалось - красота... но сейчас маловато. Хорошо что полгода практически все время во дворе обитаем Но все равно - при любом метраже очень важна правильная планировка, иначе и на 200 м места мало будет. И - какой образ жизни семья ведет: не всем нужны отдельные рабочие кабинеты и спортзалы. А вот на кладовке (пылесос+чемоданы+пляжный зонтик +инструменты и т.д.) места экономить не надо! Мы замахались по любой мелочи в гараж ходить 2 Посилання на коментар Поділитися на інших сайтах More sharing options...
БеLка Опубліковано: 1 листопада 2011 Поділитись Опубліковано: 1 листопада 2011 Спасибо за отклик. А то читаю отчеты по стройкам и прям комплексовать начинаю ))) У меня дом 6,5 x 8,5 с мансардным этажем. Получилось вместить все необходимое для семьи из пяти человек: 4 спальни, 2 с\у, большая кухня. Сергей, если есть возможность, выложите план дома. Очень интересует планировка. Сами мечтаем о маленьком домике, типа бунгало. Посилання на коментар Поділитися на інших сайтах More sharing options...
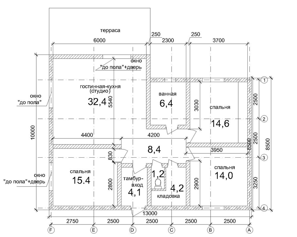
nuht2007 Опубліковано: 1 листопада 2011 Поділитись Опубліковано: 1 листопада 2011 Вот то что мы с мужем прикинули, и если честно остались довольны. Можете глянуть. 4 Посилання на коментар Поділитися на інших сайтах More sharing options...
БеLка Опубліковано: 1 листопада 2011 Поділитись Опубліковано: 1 листопада 2011 Вот то что мы с мужем прикинули, и если честно остались довольны. Можете глянуть. А сколько размер дома? Посилання на коментар Поділитися на інших сайтах More sharing options...
nuht2007 Опубліковано: 1 листопада 2011 Поділитись Опубліковано: 1 листопада 2011 А сколько размер дома? если имеется ввиду площадь, то 109 метров без учета площади, которую занимают перегородки. Мы еще не определились из какого материала делать внутрянку, поэтому предусмотрели максимум который может быть. Строиться планируем по технологии термодом. А габаритные размеры указаны на чертеже. Посилання на коментар Поділитися на інших сайтах More sharing options...
БеLка Опубліковано: 1 листопада 2011 Поділитись Опубліковано: 1 листопада 2011 если имеется ввиду площадь, то 109 метров без учета площади, которую занимают перегородки. Мы еще не определились из какого материала делать внутрянку, поэтому предусмотрели максимум который может быть. Строиться планируем по технологии термодом. А габаритные размеры указаны на чертеже. Да имено габариты дома, пятно застройки. На чертиже плохо видно. Посилання на коментар Поділитися на інших сайтах More sharing options...
nuht2007 Опубліковано: 1 листопада 2011 Поділитись Опубліковано: 1 листопада 2011 Да имено габариты дома, пятно застройки. На чертиже плохо видно. Да вроде нормально просматривается. Вообщем по фасаду 13,5, по оси А - 8,5 м, а по оси F - 10 м. Посилання на коментар Поділитися на інших сайтах More sharing options...
БеLка Опубліковано: 1 листопада 2011 Поділитись Опубліковано: 1 листопада 2011 Да вроде нормально просматривается. Вообщем по фасаду 13,5, по оси А - 8,5 м, а по оси F - 10 м. Это у Вас одноэтажный? А крыша двух или четырехскатная ? Посилання на коментар Поділитися на інших сайтах More sharing options...
Рекомендовані повідомлення
Створіть акаунт або увійдіть у нього для коментування
Ви маєте бути користувачем, щоб залишити коментар
Створити акаунт
Зареєструйтеся для отримання акаунта. Це просто!
Зареєструвати акаунтУвійти
Вже зареєстровані? Увійдіть тут.
Увійти зараз