Ruslan R Опубліковано: 1 листопада 2013 Поділитись Опубліковано: 1 листопада 2013 Вот пару примеров холодного(да простит меня Руслан-горизонтально статику не поставил:D) тамбура и заслонки от снега с крышей. Прощаю :D Вы ж не ровняйте белый ПВХ и ламинированный. В белом по моему больше 3м можно делать цельную конструкцию, ламинированный - 2,5м Добавлено через 18 минут Автокада на смартфоне нема. Поэтому на пальцах - используете обычный термокомпенсатор типа кость, но между верхней рамой и компенсатором ставите любой соединитель той же монтажной глубины, что и рама - подбираете по необходимому армированию (65й соединитель, доборники). Можно поставить, например, сотый доборник с тремя (!) армированиями внутри. Армирование (-я) анкерится к проему, как на вашей картинке. Ход мыслей правильный, но чтобы по жесткости узел с 100мм доборниками был равен узлу со спецпрофилем Веки (там стальная труба 80х80х5мм), то 100мм доборников (с той армировкой которая туда стает) должно быть больше 10шт. :D Добавлено через 4 минуты ... и заслонки от снега с крышей. Опа, я не понял, а что за самодеятельность с ПВХ крышей :D Спасает свес крыши над конструкцией, поэтому будем считать что это исключение. Повторять такое не рекомендуется Посилання на коментар Поділитися на інших сайтах More sharing options...
Ruslan R Опубліковано: 1 листопада 2013 Поділитись Опубліковано: 1 листопада 2013 ... что этот соединитель даже немецкие вековцы в глаза не видели. Почему не видели, как то общался на соседнем форуме (российском) с дилером, так там ему представители Века посчитали именно этот спецпрофиль. Значит есть он в природе. P.S. В подтверждение вставляю скрины которые он мне присылал в личку. Профиль 7 и 8, на рисунке, это и есть этот спецпрофиль. Посилання на коментар Поділитися на інших сайтах More sharing options...
ko&ko Опубліковано: 1 листопада 2013 Поділитись Опубліковано: 1 листопада 2013 Опять 25. Руслан скажите, в конкретном случае, тоже нужен доборник 80*80*5? Ну что же вы его везде пихаете? Считать нагрузку по Y лень? Посилання на коментар Поділитися на інших сайтах More sharing options...
lndigo Опубліковано: 1 листопада 2013 Поділитись Опубліковано: 1 листопада 2013 В белом по моему больше 3м можно делать цельную конструкцию, ламинированный - 2,5м Белый 4 метра, ламинат - 3 метра при наличии створок, 3 и 2,5 соответственно при глухом остеклении. Ну вот вам 80-я труба. Альтернатива же? как то общался на соседнем форуме (российском) с дилером Ну вы сравнили российскую Веку и украинскую :D эти даже стандартные позиции привезти не могут. Опять же - посчитать не значит установить. Хотел бы посмотреть на эту конструкцию в масштабе - по 220 мм пластика в переплетах в три раза толще должны быть, чем на рисунке. Руслан скажите, в конкретном случае, тоже нужен доборник 80*80*5? Ну что же вы его везде пихаете? Упрямый просто 1 Посилання на коментар Поділитися на інших сайтах More sharing options...
Ruslan R Опубліковано: 1 листопада 2013 Поділитись Опубліковано: 1 листопада 2013 Ну вот вам 80-я труба. Альтернатива же? А где это такой доборник взяли? Или внутренние полочки в Paint удалили? Допустим что есть такой, но их нужно тогда 2шт. ставить и ширина профиля, в сборе, будет 90+90+30+30=240+70+70=380мм. Это первое. А второе если он выдержит вес верхней конструкции, то ветровую нет, придется еще тулить накладные уилители (пилястры). Это второе. А третье - и кому нужен такой винегрет?:D Добавлено через 3 минуты Опять 25. Руслан скажите, в конкретном случае, тоже нужен доборник 80*80*5? Ну что же вы его везде пихаете? Считать нагрузку по Y лень? Прочтите внимательно пост №70, я там указал какая труба нужна для конкретного случая. P.S. Узел из Веки привел для понимания процесса. Добавлено через 1 минуту Упрямый просто Внимательнее посты нужно читать Посилання на коментар Поділитися на інших сайтах More sharing options...
lndigo Опубліковано: 1 листопада 2013 Поділитись Опубліковано: 1 листопада 2013 А где это такой доборник взяли? Или внутренние полочки в Paint удалили? Я не по этим делам, это star_a у нас мастер фотошопа. Взял в папке переработчика, и это не доборник, а соединительный профиль. Зачем их два ставить, если он по Y 80 мм, как и вековский профилёк? На ветровую он работает вместе с термокомпенсатором, который как раз к ветру стоит Сдавайтесь уже Посилання на коментар Поділитися на інших сайтах More sharing options...
ko&ko Опубліковано: 1 листопада 2013 Поділитись Опубліковано: 1 листопада 2013 1. Подобного профиля нет не в одной ПВХ системе. По стоимости он наверно будет стоить дороже всей вашей конструкции. 2. В вашем случае, чтобы удешевить конструкцию, необходимо было установить горизонтальную стальную трубу, например 60х60х4мм (сечение на глаз сказал, точнее нужно считать), Для примера, можно указать любой доборник с армиром 60*60*4. А еще лучше посчитать точную цифру.:D Ну а по поводу первого, уже пора признавать. Посилання на коментар Поділитися на інших сайтах More sharing options...
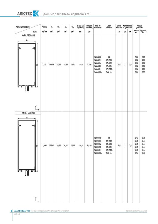
Ruslan R Опубліковано: 1 листопада 2013 Поділитись Опубліковано: 1 листопада 2013 Я не по этим делам, это star_a у нас мастер фотошопа. Взял в папке переработчика, и это не доборник, а соединительный профиль. Зачем их два ставить, если он по Y 80 мм, как и вековский профилёк? На ветровую он работает вместе с термокомпенсатором, который как раз к ветру стоит Сдавайтесь уже Стальная труба 80х80х5мм имеет Jx=Jy=134,73см4. Стальная труба 80х40х5мм имеет Jx=78,38см4 и Jy=25,34см4 От веса верхней конструкции нужно 2 шт. использовать, для ветра сколько термокомпенсаторов нужно чтобы выйти на 134,73см4? P.S. Партизаны никогда не сдаются. Добавлено через 1 минуту Ну а по поводу первого, уже пора признавать. Что признавать. Блин будет время нарисую этот винегрет и сравним. Добавлено через 2 минуты Радует что большинство уже поняли зачем он нужен. Уже не зря 7 страниц "исписали"...:D Посилання на коментар Поділитися на інших сайтах More sharing options...
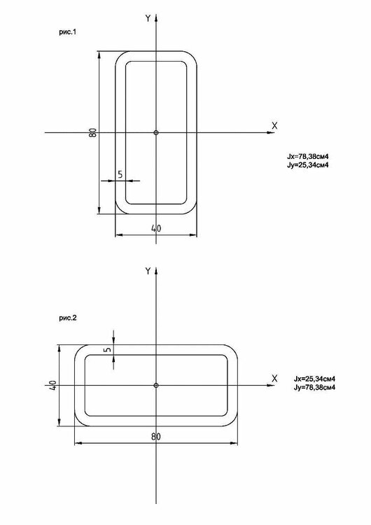
lndigo Опубліковано: 1 листопада 2013 Поділитись Опубліковано: 1 листопада 2013 Стальная труба 80х80х5мм имеет Jx=Jy=134,73см4. Стальная труба 80х40х5мм имеет Jx=78,38см4 и Jy=25,34см4 Руслан, как может Jx быть больше, чем Jy, труба же стоит на меньшем ребре? Посилання на коментар Поділитися на інших сайтах More sharing options...
Ruslan R Опубліковано: 1 листопада 2013 Поділитись Опубліковано: 1 листопада 2013 Руслан, как может Jx быть больше, чем Jy, труба же стоит на меньшем ребре? Ну и? От веса верхней конструкции Jx (ось х горизонтально идет), от ветровой нагрузки Jy (ось y вертикально). P.S. Вы не уходите от темы. Посилання на коментар Поділитися на інших сайтах More sharing options...
lndigo Опубліковано: 2 листопада 2013 Поділитись Опубліковано: 2 листопада 2013 Ну и? От веса верхней конструкции Jx (ось х горизонтально идет), от ветровой нагрузки Jy (ось y вертикально). Что-то с матчастью у вас проблемы. P.S. Вы не уходите от темы. С компенсатором у усилителя будет по х порядка 50 единиц. Да, выйти на 130 не получится. В этом уникальность данного профилька? Будем считать, что вы выкрутились, изначально речь о шла о возможности разместить термокомпенсатор горизонтально. Посилання на коментар Поділитися на інших сайтах More sharing options...
Ruslan R Опубліковано: 2 листопада 2013 Поділитись Опубліковано: 2 листопада 2013 Что-то с матчастью у вас проблемы. :D Ну так давайте подучим матчасть (см. вложение). P.S. В каталогах сечение профиля располагают по разному (можно его положить, а можно поставить - это зависит от размещения сечения на странице каталога), поэтому многие и путают Jx и Jy. Иногда даже и оси x и y местами меняют. Посилання на коментар Поділитися на інших сайтах More sharing options...
Ruslan R Опубліковано: 2 листопада 2013 Поділитись Опубліковано: 2 листопада 2013 С компенсатором у усилителя будет по х порядка 50 единиц. Да, выйти на 130 не получится. В этом уникальность данного профилька? Будем считать, что вы выкрутились, изначально речь о шла о возможности разместить термокомпенсатор горизонтально. Так никто и не спорил о возможности разместить термокомпенсатор горизонтально, для ширины 1000мм он будет работать, а вот для ширины 1500-3000мм уже нет (это без винегрета - доборники и т.д.). Если не получится выйти на 130 единиц, то нет смысла использовать такое соединение, т.е. получится что вес верхней конструкции держать будет, а ветер нет. Нужно винегрет делать, т.е. дополнительно еще и пилястры крутить. Суть поняли? Посилання на коментар Поділитися на інших сайтах More sharing options...
ko&ko Опубліковано: 2 листопада 2013 Поділитись Опубліковано: 2 листопада 2013 Руслан, что-то вы нас пытаетесь запутать. Мы рассматриваем нагрузку сверху вниз. Правильно? Поэтому как не положи трубу, нас интересует только Jy. В одном положении трубы 80*40 Jy=25,34см4, в другом Jy=78,38см4. А Jx в данном случае- это уже ветровая нагрузка. Посилання на коментар Поділитися на інших сайтах More sharing options...
Ruslan R Опубліковано: 2 листопада 2013 Поділитись Опубліковано: 2 листопада 2013 Руслан, что-то вы нас пытаетесь запутать. Мы рассматриваем нагрузку сверху вниз. Правильно? Поэтому как не положи трубу, нас интересует только Jy. В одном положении трубы 80*40 Jy=25,34см4, в другом Jy=78,38см4. А Jx в данном случае- это уже ветровая нагрузка. Нет нас интересует нагрузка перпендикулярная оси Х (это и есть Jx). Если трубу поставить на меньшую полку то она будет нести вес сверху в три раза больше, чем если трубу положить. Посилання на коментар Поділитися на інших сайтах More sharing options...
Ruslan R Опубліковано: 2 листопада 2013 Поділитись Опубліковано: 2 листопада 2013 Вот для примера (понимания где ветер), страница из каталога. Обратите внимание на расположение профиля и как действует ветровая нагрузка на стойку. Здесь от ветра используется показатели Jx, так как ветер действует перпендикулярно оси Х. Посилання на коментар Поділитися на інших сайтах More sharing options...
ko&ko Опубліковано: 2 листопада 2013 Поділитись Опубліковано: 2 листопада 2013 -Аркаша, домой! -Я замерз? -Нет, ты хочешь кушать! Добавлено через 3 минуты Вот для примера (понимания где ветер), страница из каталога. Обратите внимание на расположение профиля и как действует ветровая нагрузка на стойку. Здесь от ветра используется показатели Jx, так как ветер действует перпендикулярно оси Х. Хорошо, тогда нагрузка на ригель не ветровая, как действует по оси Y? Посилання на коментар Поділитися на інших сайтах More sharing options...
lndigo Опубліковано: 2 листопада 2013 Поділитись Опубліковано: 2 листопада 2013 (змінено) Так никто и не спорил о возможности разместить термокомпенсатор горизонтально, для ширины 1000мм он будет работать, а вот для ширины 1500-3000мм уже нет (это без винегрета - доборники и т.д.). Винегрет у вас в голове, Руслан. А это называется системное решение. 130 единиц сопротивления ветровой нагрузке - это для какой ширины и высоты конструкции? Добавлено через 5 минут Ну так давайте подучим матчасть Справедливости ради надо отметить, что вы правы. Змінено 2 листопада 2013 користувачем lndigo Посилання на коментар Поділитися на інших сайтах More sharing options...
Ruslan R Опубліковано: 2 листопада 2013 Поділитись Опубліковано: 2 листопада 2013 Хорошо, тогда нагрузка на ригель не ветровая, как действует по оси Y? См. вложение. Здесь ветровая нагрузка действует перпендикулярно оси Х, значит смотрим показатели Jx, а нагрузка от веса заполнения перпендикулярно оси Y, значит смотрим показатели Jy. 1 Посилання на коментар Поділитися на інших сайтах More sharing options...
Ruslan R Опубліковано: 2 листопада 2013 Поділитись Опубліковано: 2 листопада 2013 Справедливости ради надо отметить, что вы правы. Вы с каким вопросом согласились на данный момент? P.S. Хотя прав я во всех вопросах Посилання на коментар Поділитися на інших сайтах More sharing options...
lndigo Опубліковано: 2 листопада 2013 Поділитись Опубліковано: 2 листопада 2013 Вы с каким вопросом согласились на данный момент? С осями :\ Добавлено через 31 секунду P.S. Хотя прав я во всех вопросах Блажен тот, кто верует Посилання на коментар Поділитися на інших сайтах More sharing options...
Ruslan R Опубліковано: 2 листопада 2013 Поділитись Опубліковано: 2 листопада 2013 [ATTACH]317836[/ATTACH] Из какой ПВХ системы этот профиль? Добавлено через 2 минуты Блажен тот, кто верует Я атеист Посилання на коментар Поділитися на інших сайтах More sharing options...
lndigo Опубліковано: 2 листопада 2013 Поділитись Опубліковано: 2 листопада 2013 Из какой ПВХ системы этот профиль? Рехау. . Посилання на коментар Поділитися на інших сайтах More sharing options...
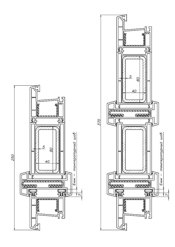
Ruslan R Опубліковано: 2 листопада 2013 Поділитись Опубліковано: 2 листопада 2013 Рехау. Да, есть такой соединитель в 3-х камерке. В 5-ти камерке нет. Вот что получается (см. вложение). Там два варианта. Второй вариант с 2-мя соединителями не имеет право на жизнь из-за того что ПВХ рама заходит в компенсирующий профиль всего 7мм, т.е. ПВХ конструкции, которые будут сверху, нельзя будет делать выше 2000мм, потому что этих 7мм может не хватить для линейного температурного расширения и профиль рамы может выскочить из него. Поэтому нет смысла использовать такой вариант. Первый вариант можно использовать, при условии высоты верхней конструкции до 1600-1800мм и ширине проема до 2500мм. Посилання на коментар Поділитися на інших сайтах More sharing options...
lndigo Опубліковано: 3 листопада 2013 Поділитись Опубліковано: 3 листопада 2013 Ширину проема считал, принимая во внимание только трубу? А еще компенсатор и металл рамы. Так что все 3 м. Итого 3 м ширины и почти 5 м высоты. Нужно больше? Есть у нас для этого более элегантное решение, чем 22 см пластика. Посилання на коментар Поділитися на інших сайтах More sharing options...
Рекомендовані повідомлення
Створіть акаунт або увійдіть у нього для коментування
Ви маєте бути користувачем, щоб залишити коментар
Створити акаунт
Зареєструйтеся для отримання акаунта. Це просто!
Зареєструвати акаунтУвійти
Вже зареєстровані? Увійдіть тут.
Увійти зараз