vopros'nik Опубліковано: 5 грудня 2011 Автор Поділитись Опубліковано: 5 грудня 2011 у меня по проэкту 4 спальни по 15 метров нас в семье 3, но существует еще и престарелые родители..кто знает, как сложится жизнь..а пока 2 пустующие спальни будут как гостевые Спаибо за поддержку, мыслим одинаково. Посмотрела сейчас на свою спальню 15м - нам с мужем хватает с головой. Вот только детям хотелось чуть побольше, надо столы для учебы притулить и не хочется кровати ставить ногами к двери. А вы как решили свою планировку, не поделитесь? Посилання на коментар Поділитися на інших сайтах More sharing options...
irina1969 Опубліковано: 5 грудня 2011 Поділитись Опубліковано: 5 грудня 2011 если вам это поможет, то пожалуйста 1 Посилання на коментар Поділитися на інших сайтах More sharing options...
Oleksandr Protsev Опубліковано: 6 грудня 2011 Поділитись Опубліковано: 6 грудня 2011 Попробуйте представить бюджет подобного дома. Материалы стен и крыши. Вед в дом, потом, оказывается, нужно считать и забор (хороший-очень дорого) и септик и дорожки и ворота и отмостку, водосточку, ливневку.... Не стоит делать гостевую. Очереди гостей желающих заночевать в доме, где живут престарелые родители и взрослые дети-не будет. А близкие люди переночуют и в гостиной. 2irina1969 У Вас в гостиной телевизор будет?Не вижу куда его воткнуть. Нужно расставлять мебель сразу. Посилання на коментар Поділитися на інших сайтах More sharing options...
irina1969 Опубліковано: 6 грудня 2011 Поділитись Опубліковано: 6 грудня 2011 ох уж эти мужчины а где вешать телик:D телик будет над камином,тогда с любой точки он смотрится на ура!! тех-ки это возможно..тем более он будет зеркальным, когда он не работает-зеркало в раме..еще и украшение надеюсь..очень :rolleyes:, что цена на них упадет, когда он мне понадобится Посилання на коментар Поділитися на інших сайтах More sharing options...
Artyomovets Опубліковано: 6 грудня 2011 Поділитись Опубліковано: 6 грудня 2011 телевизор над камином... а как его смотреть? ведь экран будет смотреть в длинный холл... я видел на картинках реализации ТВ над камином, но себе такое не хотел бы... все-таки потоки теплого (очень) воздуха... Посилання на коментар Поділитися на інших сайтах More sharing options...
irina1969 Опубліковано: 6 грудня 2011 Поділитись Опубліковано: 6 грудня 2011 (змінено) как по мне я бы его вообще удалила из своей жизни;) поживем увидим а смотреть его будет неудобно только хозяйке, на кухне, но я это переживу Змінено 6 грудня 2011 користувачем irina1969 Посилання на коментар Поділитися на інших сайтах More sharing options...
AndyAntonov Опубліковано: 6 грудня 2011 Поділитись Опубліковано: 6 грудня 2011 А в чём проблема? Я — удалил. Посилання на коментар Поділитися на інших сайтах More sharing options...
irina1969 Опубліковано: 6 грудня 2011 Поділитись Опубліковано: 6 грудня 2011 А в чём проблема? Я — удалил. очень умный шаг Посилання на коментар Поділитися на інших сайтах More sharing options...
vopros'nik Опубліковано: 6 грудня 2011 Автор Поділитись Опубліковано: 6 грудня 2011 Смотрю как баран на пустые ворота: люди подскажите, а где вы видете у меня камин и телевизор, я что-то совсем не представляю куда это разместить, если только на восточную стену, тогда диван ставить спиной к столовой. И насколько мне известно, дизайнеры говорят что камин и ТВ должны создавать разные зоны. Посилання на коментар Поділитися на інших сайтах More sharing options...
irina1969 Опубліковано: 6 грудня 2011 Поділитись Опубліковано: 6 грудня 2011 телик и камин мой:D:D:D Посилання на коментар Поділитися на інших сайтах More sharing options...
Oleksandr Protsev Опубліковано: 6 грудня 2011 Поділитись Опубліковано: 6 грудня 2011 И насколько мне известно' date=' дизайнеры говорят что камин и ТВ должны создавать разные зоны.[/quote'] Примерно так. Но вместе их ставить, никто не рекомендует. Более того, я не представляю хороший телевизор без домашнего кинотеатра, а с этим у многих вообще беда. Мебель нужно ставить сразу, при разработке проекта. Я вижу бюджет, при котором до телевизора может не дойти очередь. И это не со зла. Посилання на коментар Поділитися на інших сайтах More sharing options...
vopros'nik Опубліковано: 6 грудня 2011 Автор Поділитись Опубліковано: 6 грудня 2011 Для себя любимой можно предусмотреть телек встроенный в вытяжку над печкой, сейчас их много рекламируют. Хотя я не представляю как его уберечь от грязи, после хлопот над плитой все в пару и жиру как бы аккуратно не готовил. Посилання на коментар Поділитися на інших сайтах More sharing options...
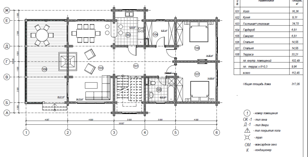
Мечты сбываются Опубліковано: 6 грудня 2011 Поділитись Опубліковано: 6 грудня 2011 Всем добрый вечер! Наконец-то получила первые эскизы' date=' выкладываю их на ваш суд. Хочется узнать ваши коменты. Плана цокольного этажа еще нет, но он практически повторяет план 1 этажа. Какой-то, на мой взгляд дом огромный получается, хочется уменьшить, а где отрезать пока не пойму. Наверно ближе 1 вариант, не люблю "второй свет".[/quote'] Первый вариантик мне тож больше нра... Я бы на кухне развернул бы рабочую поверхность под окно и стену, которая граничит с лестницей...а под левую стенку, которая 60 см. выставил бы всю бытовую технику - она туда просто просится )) Домик конечно длинноватый получился )) но если есть средства, то почему бы и нет... Может действительно стоит отказаться от цокольного - сумма будет прилично сэкономлена! Насколько в нём есть надобность? участок ровный или под уклоном? Посилання на коментар Поділитися на інших сайтах More sharing options...
vopros'nik Опубліковано: 6 грудня 2011 Автор Поділитись Опубліковано: 6 грудня 2011 Домик конечно длинноватый получился )) но если есть средства, то почему бы и нет... Может действительно стоит отказаться от цокольного - сумма будет прилично сэкономлена! Насколько в нём есть надобность? участок ровный или под уклоном? Спасибо за коменты, Вы не поверите, но они действительно ОЧЕНЬ важны нам, строиться собираемся в первый раз, опыта кроме внутренней отделки никакого. Участок абсолютно ровный (бывшее поле) 29.5х50, фасад 29.5 с северной стороны. Посилання на коментар Поділитися на інших сайтах More sharing options...
Oleksandr Protsev Опубліковано: 6 грудня 2011 Поділитись Опубліковано: 6 грудня 2011 Для себя любимой можно предусмотреть телек встроенный в вытяжку над печкой' date=' сейчас их много рекламируют. Хотя я не представляю как его уберечь от грязи, после хлопот над плитой все в пару и жиру как бы аккуратно не готовил.[/quote'] Да, корейцы (китайцы) еще и в холодильник "тулят". А их не интересует сколько нужно проводов, тюнеров и т.п. чепухи. Вы, реально оцените свои силы. При таких объемах экономия на стройматериалах выльется в немалые счета на обогрев-охлаждение. Мой бюджет растет и растет и я рад, что отказался от подвала. Метров 25 на кладовку и котельную может и имело смысл, но это, тоже, не дешево. Погреб должен быть отдельно от дома, чтобы в нем хорошо хранились овощи. Посилання на коментар Поділитися на інших сайтах More sharing options...
irina1969 Опубліковано: 8 грудня 2011 Поділитись Опубліковано: 8 грудня 2011 Мой бюджет растет и растет и я рад, что отказался от подвала. Метров 25 на кладовку и котельную может и имело смысл, но это, тоже, не дешево. Погреб должен быть отдельно от дома, чтобы в нем хорошо хранились овощи. все очень отностельно и нужно смотреть по конкретному участку и проекту..например в моем случае, особенности рельефа и планируемого дома таковы, что всеравно нужно углубляться и закапываться, так почему не использовать это в проекте? мне например нравится, когда все можно совместить в доме..да поначалу это сильно завышает бюджет, но !! посчитаем..отдельно гараж + хозблок +погреб+баня... и все стены, фундамент, работа..на круг намного дороже выходит к тому же у меня красивый участок и хочется побольше оставить свободной земли а погреб мне лично нужен не для овощей, а для хранения консервации и хранения незимующих растений, а в доме самое оно...поэтому все индивидуально Посилання на коментар Поділитися на інших сайтах More sharing options...
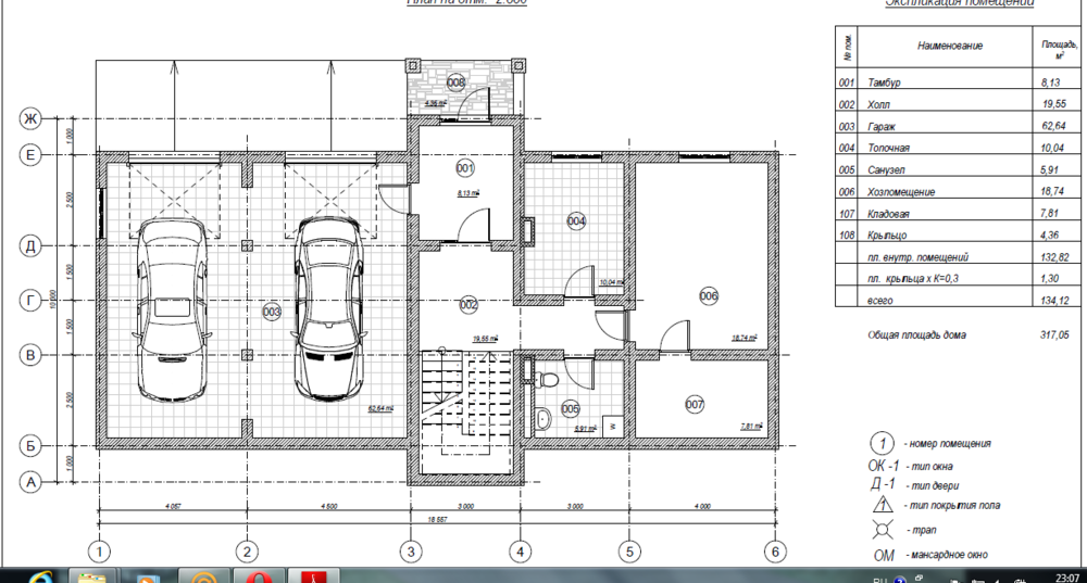
vopros'nik Опубліковано: 8 грудня 2011 Автор Поділитись Опубліковано: 8 грудня 2011 все очень отностельно и нужно смотреть по конкретному участку и проекту..например в моем случае, особенности рельефа и планируемого дома таковы, что всеравно нужно углубляться и закапываться, так почему не использовать это в проекте? мне например нравится, когда все можно совместить в доме..да поначалу это сильно завышает бюджет, но !! посчитаем..отдельно гараж + хозблок +погреб+баня... и все стены, фундамент, работа..на круг намного дороже выходит к тому же у меня красивый участок и хочется побольше оставить свободной земли а погреб мне лично нужен не для овощей, а для хранения консервации и хранения незимующих растений, а в доме самое оно...поэтому все индивидуально Согласна на все сто%. Участок совершено ровный, дом планируем в 1,5-2 кирпича + облицовка. Так как он тяжелый - углубляться придется однозначно. Единственно не знаю, под все домом цокольный этаж делать, или немного сократить. План вроде позволяет под левым блоком сэкономить. Что планируется в цоколе уже писала: котельная, постирочная, комната отдыха, спортзал на 3-4 тренажера и холодная кладовая для консервации и овощей, сейчас овощи храню на балконе, укутываю, когда сильные морозы заношу в комнату и ничего. Поэтому без погреба думаю обойдемся. Посилання на коментар Поділитися на інших сайтах More sharing options...
Oleksandr Protsev Опубліковано: 9 грудня 2011 Поділитись Опубліковано: 9 грудня 2011 посчитаем..отдельно гараж + хозблок +погреб+баня... и все стены, фундамент, работа..на круг намного дороже выходит Вопрос в том, что Вы хотите получить? Если немного "заэкономить", то это одно... только считать нужно в комплексе и с уплатой налогов, гидроизоляцией, обогревом.. Мы хотели делать цоколь, у нас глубокий фундамент, вот только, не нашли у друзей использования пространства по назначению (только у одних в цоколе хорошая сауна, но проблема с использованием туалета (насосы и т.п) и топочные. Остальное-это склады мусора и разговор (десятилетиями-вот вместо этой кучи хлама будет спортзал, кинотеатр...) Особенно умиляет комната отдыха, в подвале 1 Посилання на коментар Поділитися на інших сайтах More sharing options...
irina1969 Опубліковано: 9 грудня 2011 Поділитись Опубліковано: 9 грудня 2011 наверное мне намного проще и я знаю ЧТО хочу получить.. свой проект я выкладывала,а захламить можно и маленькую площадь, просто для себя давно сделала вывод-не жалеть выбрасывать..но и мерять дом мерками квартиры тоже не хо... а у меня желание скорее не сэкономить, а сделать все сразу..пусть это даже растянется во времени Посилання на коментар Поділитися на інших сайтах More sharing options...
vopros'nik Опубліковано: 9 грудня 2011 Автор Поділитись Опубліковано: 9 грудня 2011 Вопрос в том, что Вы хотите получить? Что хотим получить - теоретически знаем, уже два года вынашиваем план постройки дома. Два года бьемся над эскизами, перевели кучу бумаги, то выбрасываем, то добавляем преславутые метры. Но того, единственного решения, чтоб увидеть и - вот оно мое, пока нет. Остальное-это склады мусора и разговор (десятилетиями-вот вместо этой кучи хлама будет спортзал, кинотеатр...) Особенно умиляет комната отдыха, в подвале Ну кто то может и будет умиляться, а у нас этот шаг продуманный. Когда к мужу придут (зимой) друзья сыграть в преферанс например, мне не очень будет удобно, если они сядут в гостиной. Плюс мне также не хочется захломлять гостинную его муз. дисками их где-то штук 500-600 (причем не попса), DVD и прочими его хобби. Так почему бы не выделить комнату, где он будет хоть иногда счатлив (я не переношу громкую музыку, сразу головные боли). Посилання на коментар Поділитися на інших сайтах More sharing options...
Oleksandr Protsev Опубліковано: 9 грудня 2011 Поділитись Опубліковано: 9 грудня 2011 Ну кто то может и будет умиляться, а у нас этот шаг продуманный. Когда к мужу придут (зимой) друзья сыграть в преферанс например, мне не очень будет удобно, если они сядут в гостиной. Плюс мне также не хочется захломлять гостинную его муз. дисками их где-то штук 500-600 (причем не попса), DVD и прочими его хобби. Так почему бы не выделить комнату, где он будет хоть иногда счатлив (я не переношу громкую музыку, сразу головные боли). Обожаю громкую музыку и преферанс:D. Но перед тем как отправить мужа в подвал необходимо объехать несколько домов у которых есть такие подвалы и как там сидится зимой (виски может не хватить, на хорошую партию классики) и сколько нужно потратить на обогрев цокольного этажа. Я надеюсь что у нас будет сауна-сруб с комнатой отдыха (на форс мажор) а, пока, надеюсь, у моей жены "голова не будет болеть и дальше". Это все простая математика. Из чего стены дома, крыша, окна, утепление, мощность котла, коммуникации, расчёт потребления газа (электричества) его стоимость. www.stroimdom.com.ua/forum/showthread.php?t=77285 Посилання на коментар Поділитися на інших сайтах More sharing options...
vopros'nik Опубліковано: 10 грудня 2011 Автор Поділитись Опубліковано: 10 грудня 2011 Это все простая математика. Из чего стены дома, крыша, окна, утепление, мощность котла, коммуникации, расчёт потребления газа (электричества) его стоимость. www.stroimdom.com.ua/forum/showthread.php?t=77285 Вы хотите сказать, что у всех обладателей цокольного этажа жуткий холод там. Стены в 2 кирпича + облицовка, 2 полных этажа, окна двойные стеклопакеты, отопительный котел в цоколе - и это не справиться? Посилання на коментар Поділитися на інших сайтах More sharing options...
ionico Опубліковано: 10 грудня 2011 Поділитись Опубліковано: 10 грудня 2011 Здорово, когда лестница из цокольного этажа на первый и лестница из первого этажа на второй находятся в разных местах. То есть, не одна лестница из цокольного на второй, а разделить их. Благодаря этому, не будет большой лестничной шахты и холод из цоколя не так будет охлаждать дом. 2 Посилання на коментар Поділитися на інших сайтах More sharing options...
Oleksandr Protsev Опубліковано: 10 грудня 2011 Поділитись Опубліковано: 10 грудня 2011 Вы хотите сказать' date=' что у всех обладателей цокольного этажа жуткий холод там. Стены в 2 кирпича + облицовка, 2 полных этажа, окна двойные стеклопакеты, отопительный котел в цоколе - и это не справиться?[/quote'] Конечно справится. Цена вопроса? У Вас должен быть газ (Электричеством ЭТО протопить уж очень дорого). То что Вы выйдете за верхний предел потребления газа, я не сомневаюсь. А цена отопления лишних 100 метров за сезон соизмерима с арендой казино для игры в преферанс и Дворца Спорта для прослушивания громкой музыки. 1 Посилання на коментар Поділитися на інших сайтах More sharing options...
irina1969 Опубліковано: 11 грудня 2011 Поділитись Опубліковано: 11 грудня 2011 Конечно справится. Цена вопроса? У Вас должен быть газ (Электричеством ЭТО протопить уж очень дорого). То что Вы выйдете за верхний предел потребления газа, я не сомневаюсь. А цена отопления лишних 100 метров за сезон соизмерима с арендой казино для игры в преферанс и Дворца Спорта для прослушивания громкой музыки. если бы вы были обладателем цоколя, то ваши рассуждения были бы значимы , а так это все ля-ля тополя..конечно можно сказать, что не обязательно кушать г.., чтобы понять, что перед тобой, но все же конкретным фактам веришь больше ИМХО уж 100 раз простите, лично у меня складывается впечатление, что вы отказались от цоколя и теперь просто утверждаетесь в своем решении, и других пытаетесь убедить в его гениальности 1 Посилання на коментар Поділитися на інших сайтах More sharing options...
Рекомендовані повідомлення
Створіть акаунт або увійдіть у нього для коментування
Ви маєте бути користувачем, щоб залишити коментар
Створити акаунт
Зареєструйтеся для отримання акаунта. Це просто!
Зареєструвати акаунтУвійти
Вже зареєстровані? Увійдіть тут.
Увійти зараз