vopros'nik Опубліковано: 6 лютого 2012 Автор Поділитись Опубліковано: 6 лютого 2012 Бум ещё думать. Посилання на коментар Поділитися на інших сайтах More sharing options...
Alisa3 Опубліковано: 6 лютого 2012 Поділитись Опубліковано: 6 лютого 2012 Я уже подумала: Расположение комнат остаётся такое же, как тебе нравится. Гостиная такой же площади, уменьшиться немного спальня и придётся пожертвовать туалетом возле кухни. Его можно расположить вместо гардеробной при входе. Зато фасады, которые тебе нравятся, будут смотреться при такой форме дома гораздо лучше и проще при строительстве. С размерами можно ещё поиграться. 1 Посилання на коментар Поділитися на інших сайтах More sharing options...
Archist Опубліковано: 6 лютого 2012 Поділитись Опубліковано: 6 лютого 2012 В таком стиле понравился дом, что ты мне показала. Запал в душу. Вот, кстати, свежачокс: (ссылка устарела) 1 Посилання на коментар Поділитися на інших сайтах More sharing options...
vopros'nik Опубліковано: 7 лютого 2012 Автор Поділитись Опубліковано: 7 лютого 2012 Вот, кстати, свежачокс: (ссылка устарела) Проект славный, но мне не хватает 2 спален. 1 Посилання на коментар Поділитися на інших сайтах More sharing options...
Alisa3 Опубліковано: 7 лютого 2012 Поділитись Опубліковано: 7 лютого 2012 Вот, кстати, свежачокс: (ссылка устарела) Опять изменяете нам на Одесском форуме? :D Домик просто великолепен!!! :rolleyes: Мне тоже не хватает двух спален... 1 Посилання на коментар Поділитися на інших сайтах More sharing options...
Archist Опубліковано: 7 лютого 2012 Поділитись Опубліковано: 7 лютого 2012 Проект славный' date=' но мне не хватает 2 спален.[/quote'] Опять изменяете нам на Одесском форуме? :D Домик просто великолепен!!! :rolleyes: Мне тоже не хватает двух спален... Не, ну четыре спальни добавить будет сложновато!.. Посилання на коментар Поділитися на інших сайтах More sharing options...
vopros'nik Опубліковано: 7 лютого 2012 Автор Поділитись Опубліковано: 7 лютого 2012 Не, ну четыре спальни добавить будет сложновато!.. Может тогда по очереди 2 + 2. А мы встанем в очередь Посилання на коментар Поділитися на інших сайтах More sharing options...
Archist Опубліковано: 7 лютого 2012 Поділитись Опубліковано: 7 лютого 2012 Может тогда по очереди 2 + 2. А мы встанем в очередь А как же "оптом - дешевле!"? Посилання на коментар Поділитися на інших сайтах More sharing options...
vopros'nik Опубліковано: 7 лютого 2012 Автор Поділитись Опубліковано: 7 лютого 2012 А как же "оптом - дешевле!"? Не, ну скупой платит дважды И ещё я ужасная единоличница. 1 Посилання на коментар Поділитися на інших сайтах More sharing options...
Alisa3 Опубліковано: 13 лютого 2012 Поділитись Опубліковано: 13 лютого 2012 Поднимаем! Последняя модификация))) 1 Посилання на коментар Поділитися на інших сайтах More sharing options...
vopros'nik Опубліковано: 13 лютого 2012 Автор Поділитись Опубліковано: 13 лютого 2012 А пристройте мне еще гардеробную при спальне, дом получается большой, буду на шкафах экономить. Посилання на коментар Поділитися на інших сайтах More sharing options...
Alisa3 Опубліковано: 13 лютого 2012 Поділитись Опубліковано: 13 лютого 2012 А пристройте мне еще гардеробную при спальне' date=' дом получается большой, буду на шкафах экономить.[/quote'] А окна двигать можно? Посилання на коментар Поділитися на інших сайтах More sharing options...
vopros'nik Опубліковано: 13 лютого 2012 Автор Поділитись Опубліковано: 13 лютого 2012 А окна двигать можно? Не моно, а нуно!!! Посилання на коментар Поділитися на інших сайтах More sharing options...
vopros'nik Опубліковано: 15 лютого 2012 Автор Поділитись Опубліковано: 15 лютого 2012 Алиса. посмотри, пыталась переделать типовые проекты под себя, только не отзеркалила. Посилання на коментар Поділитися на інших сайтах More sharing options...
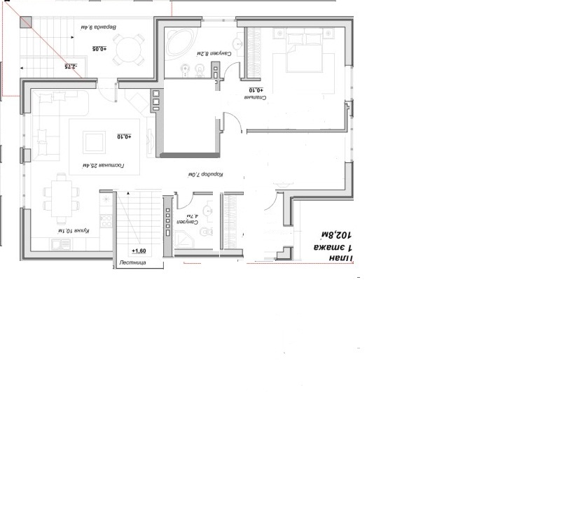
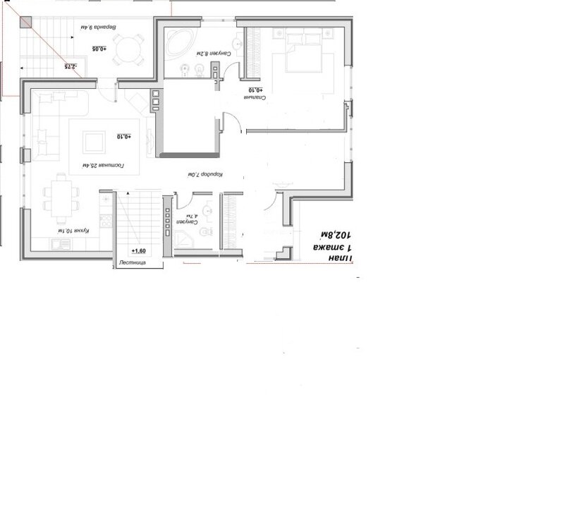
Alisa3 Опубліковано: 15 лютого 2012 Поділитись Опубліковано: 15 лютого 2012 Алиса. посмотри, пыталась переделать типовые проекты под себя, только не отзеркалила. [ATTACH]164706[/ATTACH] [ATTACH]164707[/ATTACH] В первом варианте я бы поменяла местами тамбур и лестницу, а во втором смущает сильно вытянутая гостиная. Может там вход на кухню сразу сделать и перегородку с гостиной передвинуть за эркер? А вообще, дай первоисточник посмотреть Посилання на коментар Поділитися на інших сайтах More sharing options...
vopros'nik Опубліковано: 15 лютого 2012 Автор Поділитись Опубліковано: 15 лютого 2012 В первом варианте я бы поменяла местами тамбур и лестницу, а во втором смущает сильно вытянутая гостиная. Может там вход на кухню сразу сделать и перегородку с гостиной передвинуть за эркер? А вообще, дай первоисточник посмотреть Смотри, первоисточник - это понравившийся нам арх Шильников. - это первый, только отзеркаленный. - это второй, отзеркаленный частично (кухня с гостинной). Посилання на коментар Поділитися на інших сайтах More sharing options...
Alisa3 Опубліковано: 15 лютого 2012 Поділитись Опубліковано: 15 лютого 2012 Смотри, первоисточник - это понравившийся нам арх Шильников. [ATTACH]164748[/ATTACH] - это первый, только отзеркаленный. [ATTACH]164749[/ATTACH] - это второй, отзеркаленный частично (кухня с гостинной). Cейчас мне немного сложно думать: Archist на моей странице Титаник утопил... Посилання на коментар Поділитися на інших сайтах More sharing options...
Archist Опубліковано: 15 лютого 2012 Поділитись Опубліковано: 15 лютого 2012 Cейчас мне немного сложно думать: Archist на моей странице Титаник утопил... Ну вот, то Дед Мороз, то Айсберг! Так и до Кульмана-Дизайнера недалеко... Посилання на коментар Поділитися на інших сайтах More sharing options...
vopros'nik Опубліковано: 16 лютого 2012 Автор Поділитись Опубліковано: 16 лютого 2012 Хватит "Титаники" топить, надо мозги включать, скоро весна, хочется из этого раздела уже переходить в "Как мы строимся". А проекты еще не готовы Посилання на коментар Поділитися на інших сайтах More sharing options...
Alisa3 Опубліковано: 16 лютого 2012 Поділитись Опубліковано: 16 лютого 2012 Хватит "Титаники" топить' date=' надо мозги включать, скоро весна, хочется из этого раздела уже переходить в "Как мы строимся". А проекты еще не готовы[/quote'] Им просто не хочется нас отпускать. Без нас им будет скушно. :D Ладно. Пойду включу моск в своей теме, а то там моя модификация на кухне разнесена в пух и прах, а мне не очень то и хотелось проём оставлять)))) Потом вернусь с мозгами к тебе, а то и вправду что-то расслабились мы на весну. На счёт мозгов у блондинки попрошу не язвить!!!))) Посилання на коментар Поділитися на інших сайтах More sharing options...
vopros'nik Опубліковано: 16 лютого 2012 Автор Поділитись Опубліковано: 16 лютого 2012 Им просто не хочется нас отпускать. Без нас им будет скушно. :D А мы и не собираемся от них уходить, стройка то затянется года на два, они могут типа "надзора" с нами быть, киритиковать что мы не правильно (вернее наши строители) делаем, а мы будем фотоотчет им все время прислать. Нам ведь без них тоже скучно, страшно, вообщем никуда. Ну что "Одесса мама" поможете? Посилання на коментар Поділитися на інших сайтах More sharing options...
Archist Опубліковано: 16 лютого 2012 Поділитись Опубліковано: 16 лютого 2012 А мы и не собираемся от них уходить' date=' стройка то затянется года на два, они могут типа "надзора" с нами быть, [i']киритиковать[/i] что мы не правильно (вернее наши строители) делаем, а мы будем фотоотчет им все время прислать. Нам ведь без них тоже скучно, страшно, вообщем никуда. Ну что "Одесса мама" поможете? Федорыч, чего молчишь? Походу тебя спрашивают! Посилання на коментар Поділитися на інших сайтах More sharing options...
vopros'nik Опубліковано: 16 лютого 2012 Автор Поділитись Опубліковано: 16 лютого 2012 Федорыч, чего молчишь? Походу тебя спрашивают! И вас тоже! А Федорыч сюда не заглядывает. Посилання на коментар Поділитися на інших сайтах More sharing options...
Archist Опубліковано: 16 лютого 2012 Поділитись Опубліковано: 16 лютого 2012 И вас тоже! А Федорыч сюда не заглядывает. Опа! Так в чем вопрос-то? Посилання на коментар Поділитися на інших сайтах More sharing options...
Alisa3 Опубліковано: 16 лютого 2012 Поділитись Опубліковано: 16 лютого 2012 Опа! Так в чем вопрос-то? Вопрос на повестке дня пока один: кто вы? Дед Мороз, Айсберг, Кульмана-Дизайнер или Иванов... :D Шутка. Мы никак не можем выбрать хоть бы приблизительный проект для vopros'nik Я тоже попыталась "подогнать" первый из понравившихся проектов (второй мне вообще не понравился - длинный какой-то): Посилання на коментар Поділитися на інших сайтах More sharing options...
Рекомендовані повідомлення
Створіть акаунт або увійдіть у нього для коментування
Ви маєте бути користувачем, щоб залишити коментар
Створити акаунт
Зареєструйтеся для отримання акаунта. Це просто!
Зареєструвати акаунтУвійти
Вже зареєстровані? Увійдіть тут.
Увійти зараз