Alisa3 Опубліковано: 17 лютого 2012 Поділитись Опубліковано: 17 лютого 2012 Не могу здесь представить мебель в кухне' date=' и камин с телеком в гостинной.[/quote'] А я могу! Как в первоисточнике: Но будем ещё думать. А на сегодня пёсик сдох и пошёл спать...%) 1 Посилання на коментар Поділитися на інших сайтах More sharing options...
vopros'nik Опубліковано: 18 лютого 2012 Автор Поділитись Опубліковано: 18 лютого 2012 А я могу! Как в первоисточнике: [ATTACH]165347[/ATTACH] Но будем ещё думать. А на сегодня пёсик сдох и пошёл спать...%) С картинками сразу понятней стало. Посилання на коментар Поділитися на інших сайтах More sharing options...
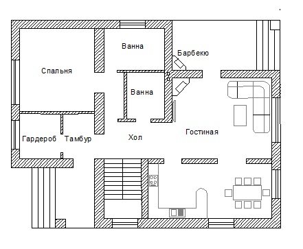
Alisa3 Опубліковано: 18 лютого 2012 Поділитись Опубліковано: 18 лютого 2012 С картинками сразу понятней стало. С картинками то оно всегда понятней. Перепланировала последний проект. Почти идеально: 1 Посилання на коментар Поділитися на інших сайтах More sharing options...
Катерина Ш Опубліковано: 18 лютого 2012 Поділитись Опубліковано: 18 лютого 2012 С картинками то оно всегда понятней. Перепланировала последний проект. Почти идеально: Действительно, очень хорошо!!!! 1 Посилання на коментар Поділитися на інших сайтах More sharing options...
Julla Опубліковано: 18 лютого 2012 Поділитись Опубліковано: 18 лютого 2012 Ничё так... просто и лаконично Девочки! Убедите меня, плиииззз, что ванная из спальни - есть хорошо (в данном проекте, в данном случае) Даже если есть отдельный унитаз, и в этом помещении (не сомневаюсь) свой рукомойник, всё равно жизнь в доме "на земле" предусматривает на первом этаже общую ванную комнату. ИМХО Ну, там заскочить любому члену семьи душ принять (даже при наличии летнего душа на участке), стиральная машина, руки-ноги тщательнЕе помыть (не всегда нужным средствам найдётся место в маленьком туалете) и т.д. Не всё ж через спальню бегать! Я вот чего "придираюсь": себе ж планирую. Ну и... То ли мозги "заточены" на временное, сезонное проживание, а здесь "постоянный" дом и "так надо!"... То ли годы мои и "тяжёлое советское наследие" дают знать и противятся восприятию нового, более прогрессивного. Вот и пытаюсь понять: а в чём прикол? Опять же: в этом проекте, в этой ситуации. Не логичней ли дверь в ванную сделать под (со стороны) лестницы? 1 Посилання на коментар Поділитися на інших сайтах More sharing options...
vopros'nik Опубліковано: 18 лютого 2012 Автор Поділитись Опубліковано: 18 лютого 2012 Ничё так... просто и лаконично Девочки! Убедите меня, плиииззз, что ванная из спальни - есть хорошо (в данном проекте, в данном случае) Даже если есть отдельный унитаз, и в этом помещении (не сомневаюсь) свой рукомойник, всё равно жизнь в доме "на земле" предусматривает на первом этаже общую ванную комнату. ИМХО Ну, там заскочить любому члену семьи душ принять (даже при наличии летнего душа на участке), стиральная машина, руки-ноги тщательнЕе помыть (не всегда нужным средствам найдётся место в маленьком туалете) и т.д. Не всё ж через спальню бегать! Я вот чего "придираюсь": себе ж планирую. Ну и... То ли мозги "заточены" на временное, сезонное проживание, а здесь "постоянный" дом и "так надо!"... То ли годы мои и "тяжёлое советское наследие" дают знать и противятся восприятию нового, более прогрессивного. Вот и пытаюсь понять: а в чём прикол? Опять же: в этом проекте, в этой ситуации. Не логичней ли дверь в ванную сделать под (со стороны) лестницы? В данном проекте не логично. так как этот блок отдается родителям (пожилым). А остальным сходить в туалет и просто помыть руки дорога к тамбуру, там довольно вместительный с/у для всех и гостей. Для спящих на втором этаже - там две ванны, детская и родительская (для менюю и мужа) Посилання на коментар Поділитися на інших сайтах More sharing options...
vopros'nik Опубліковано: 18 лютого 2012 Автор Поділитись Опубліковано: 18 лютого 2012 С картинками то оно всегда понятней. Перепланировала последний проект. Почти идеально: Алиса, умоляю, верни между ванной и комнатой гардеробную, а я тебе за это:rolleyes:и мебель мне верни. Посилання на коментар Поділитися на інших сайтах More sharing options...
Alisa3 Опубліковано: 18 лютого 2012 Поділитись Опубліковано: 18 лютого 2012 Алиса' date=' умоляю, верни между ванной и комнатой гардеробную, а я тебе за это:rolleyes:и мебель мне верни.[/quote'] Я тебе итак всю мебель со своего дома отдала!!!))) Но как говориться: "Для любимого дружка - хоть серёжку из ушка" 1 Посилання на коментар Поділитися на інших сайтах More sharing options...
vopros'nik Опубліковано: 18 лютого 2012 Автор Поділитись Опубліковано: 18 лютого 2012 Я тебе итак всю мебель со своего дома отдала!!!))) Но как говориться: "Для любимого дружка - хоть серёжку из ушка" Вот спасибо. Если бы у тебя лестница другая была, я б у тебя и дом забрала бы:D. За гардеробную спасибо, но хочется ее между спальней и ванной поставить, чтоб шума воды не слышать. То есть из спальни вход в гардеробную, а ванну отдельный, рядом как здесь, или считаешь так хуже? Посилання на коментар Поділитися на інших сайтах More sharing options...
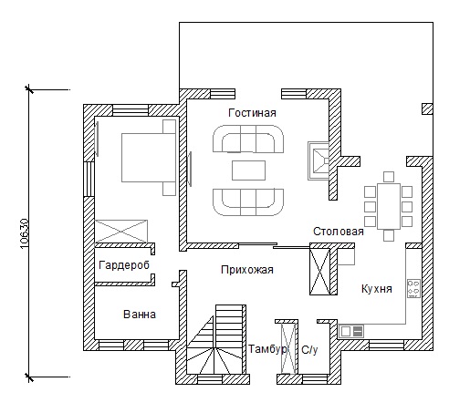
Alisa3 Опубліковано: 18 лютого 2012 Поділитись Опубліковано: 18 лютого 2012 Вот спасибо. Если бы у тебя лестница другая была, я б у тебя и дом забрала бы:D. За гардеробную спасибо, но хочется ее между спальней и ванной поставить, чтоб шума воды не слышать. То есть из спальни вход в гардеробную, а ванну отдельный, рядом как здесь, или считаешь так хуже? Я так долго пыталась сделать гардеробную общедоступной... А такой вариант как ты хочешь было сделать проще всего: И чем это тебе моя лестница не угодила? Вон какая она уже удобная и красивая у меня стала! По-моему, проще подняться по одному пролёту, чем раз подняться, пройтись, а потом опять подняться....8-) А будешь посягать на мой домик - я у тебя твой заберу, он мне тоже уже как родной стал ;) Посилання на коментар Поділитися на інших сайтах More sharing options...
Мечты сбываются Опубліковано: 19 лютого 2012 Поділитись Опубліковано: 19 лютого 2012 Я так долго пыталась сделать гардеробную общедоступной... А такой вариант как ты хочешь было сделать проще всего: [ATTACH]165511[/ATTACH] И чем это тебе моя лестница не угодила? Вон какая она уже удобная и красивая у меня стала! По-моему, проще подняться по одному пролёту, чем раз подняться, пройтись, а потом опять подняться....8-) А будешь посягать на мой домик - я у тебя твой заберу, он мне тоже уже как родной стал ;) Ух-ты....крутили-крутили....а в итоге почти мой финальный вариант получился 1 Посилання на коментар Поділитися на інших сайтах More sharing options...
Alisa3 Опубліковано: 19 лютого 2012 Поділитись Опубліковано: 19 лютого 2012 Ух-ты....крутили-крутили....а в итоге почти мой финальный вариант получился Да, действительно...практически Ваш... Подруга, тебе к Igor83 :D:D:D 1 Посилання на коментар Поділитися на інших сайтах More sharing options...
Мечты сбываются Опубліковано: 19 лютого 2012 Поділитись Опубліковано: 19 лютого 2012 Да, действительно...практически Ваш... Подруга, тебе к Igor83 :D:D:D Да уже была, Ваша Подруга, в гостях....)))) с тех пор я и слежу за всевозможными вариациями и изменениями уже в её ветке....а тут хоп Мой вариант проекта также начинался с одного, а в итоге получилось другое единственное, что прошло через все изменения - это кухня-столовая...практически без изменений 1 Посилання на коментар Поділитися на інших сайтах More sharing options...
Alisa3 Опубліковано: 19 лютого 2012 Поділитись Опубліковано: 19 лютого 2012 Да уже была, Ваша Подруга, в гостях....)))) с тех пор я и слежу за всевозможными вариациями и изменениями уже в её ветке....а тут хоп Мой вариант проекта также начинался с одного, а в итоге получилось другое единственное, что прошло через все изменения - это кухня-столовая...практически без изменений Я тоже была у Вас в гостях в прошлом году Мне нравится Ваш проект очень, но мне нужен домик поменьше и с мансардой 1 Посилання на коментар Поділитися на інших сайтах More sharing options...
Мечты сбываются Опубліковано: 19 лютого 2012 Поділитись Опубліковано: 19 лютого 2012 Я тоже была у Вас в гостях в прошлом году Мне нравится Ваш проект очень, но мне нужен домик поменьше и с мансардой Помню-помню... Дык у меня не такой уж и большой....всего под 180 квадратов )) разве это много...а мансарда!? ну это вопрос...я также сначала хотел именно мансардный...но реалии взяли своё...и сейчас уже не жалею, что передумал, а жизнь покажет )) Посилання на коментар Поділитися на інших сайтах More sharing options...
vopros'nik Опубліковано: 19 лютого 2012 Автор Поділитись Опубліковано: 19 лютого 2012 Ух-ты....крутили-крутили....а в итоге почти мой финальный вариант получился Значит почти родственные души, раз к ПОЧТИ одинаковым планировкам пришли. 1 Посилання на коментар Поділитися на інших сайтах More sharing options...
vopros'nik Опубліковано: 19 лютого 2012 Автор Поділитись Опубліковано: 19 лютого 2012 Да уже была, Ваша Подруга, в гостях....)))) с тех пор я и слежу за всевозможными вариациями и изменениями уже в её ветке....а тут хоп Мой вариант проекта также начинался с одного, а в итоге получилось другое единственное, что прошло через все изменения - это кухня-столовая...практически без изменений Я уже и забыла когда была, пошла посмотрела, вспомнила, давно это было. А раз следите за изменениями, почему не подсказываете, на путь исстинный не направляете:D Как у вас дела, все ли готово к строительству? Пока ждете весну, никакие мысли не приходили, что, что то можно было сделать в проекте по другому? Посилання на коментар Поділитися на інших сайтах More sharing options...
vopros'nik Опубліковано: 19 лютого 2012 Автор Поділитись Опубліковано: 19 лютого 2012 Сообщение от Alisa3 Я так долго пыталась сделать гардеробную общедоступной... А такой вариант как ты хочешь было сделать проще всего: И чем это тебе моя лестница не угодила? Вон какая она уже удобная и красивая у меня стала! По-моему, проще подняться по одному пролёту, чем раз подняться, пройтись, а потом опять подняться....8-) А будешь посягать на мой домик - я у тебя твой заберу, он мне тоже уже как родной стал ;) Эта гардеробная лично для живущих в этой спальне, другим туда ход закрыт. Сегодня была в гостях у строящих двухпролетную лестницу, она мне очень понравилась. Для тебя мне ничего не жалко, только надо отзеркалиться. Посилання на коментар Поділитися на інших сайтах More sharing options...
Мечты сбываются Опубліковано: 19 лютого 2012 Поділитись Опубліковано: 19 лютого 2012 Я уже и забыла когда была, пошла посмотрела, вспомнила, давно это было. А раз следите за изменениями, почему не подсказываете, на путь исстинный не направляете:D Как у вас дела, все ли готово к строительству? Пока ждете весну, никакие мысли не приходили, что, что то можно было сделать в проекте по другому? )) У Вас есть очень хороший Советчик который всё правильно направляет... Уже проплачен газоблок, закуплена часть арматуры жду весны, подключаю свет и сразу же к фундаменту....а пока занимаюсь расстановкой всего и вся на территории - сегодня уже финализировал )) Поменять, как ни странно в проекте ничего не хочется )) - значит наше ) 1 Посилання на коментар Поділитися на інших сайтах More sharing options...
vopros'nik Опубліковано: 19 лютого 2012 Автор Поділитись Опубліковано: 19 лютого 2012 )) У Вас есть очень хороший Советчик который всё правильно направляет... Уже проплачен газоблок, закуплена часть арматуры жду весны, подключаю свет и сразу же к фундаменту....а пока занимаюсь расстановкой всего и вся на территории - сегодня уже финализировал )) Поменять, как ни странно в проекте ничего не хочется )) - значит наше ) Советчиков много не бывает, а с Алисой мы подружились благодаря форуму, чему я безмерно рада. Удачи вам в вашем начинании, не запускайте свою темку, хотя наверно надо будет перейти в другой раздел, а мы будем приходить к вам в гости, и читать о ваших достижениях. 1 Посилання на коментар Поділитися на інших сайтах More sharing options...
Alisa3 Опубліковано: 20 лютого 2012 Поділитись Опубліковано: 20 лютого 2012 Советчиков много не бывает, а с Алисой мы подружились благодаря форуму, чему я безмерно рада. И я тебя люблю, подруга! Помню-помню... Дык у меня не такой уж и большой....всего под 180 квадратов )) разве это много...а мансарда!? ну это вопрос...я также сначала хотел именно мансардный...но реалии взяли своё...и сейчас уже не жалею, что передумал, а жизнь покажет )) 180 квадратов - небольшой. Что значит "реалии взяли своё"? Почему не мансардный? Какие аргументы? Посилання на коментар Поділитися на інших сайтах More sharing options...
vopros'nik Опубліковано: 20 лютого 2012 Автор Поділитись Опубліковано: 20 лютого 2012 Что значит "реалии взяли своё"? Почему не мансардный? Какие аргументы? Вот, вот, объясните нам. С мансардной дешевле получается, и домик аккуратней, а второй полный пишут практичнее. Посилання на коментар Поділитися на інших сайтах More sharing options...
Мечты сбываются Опубліковано: 20 лютого 2012 Поділитись Опубліковано: 20 лютого 2012 Вот' date=' вот, объясните нам. С мансардной дешевле получается, и домик аккуратней, а второй полный пишут практичнее.[/quote'] С мансардой дешевле не особо то и получается...так как Сложность работ+утепление+подбор мебели и т.д. сравнивает эти 2 варианта )) Насчёт аккуратности, то в этом что-то есть...но можно и 2 полноценных этажа построить интересно )) А насчёт практичности, то это 1000% 1 Посилання на коментар Поділитися на інших сайтах More sharing options...
Мечты сбываются Опубліковано: 20 лютого 2012 Поділитись Опубліковано: 20 лютого 2012 И я тебя люблю, подруга! 180 квадратов - небольшой. Что значит "реалии взяли своё"? Почему не мансардный? Какие аргументы? В темке писал уже об этом В первую очередь опыт знакомых...и т.д. А ещё момент с которым недавно знакомые столкнулись после 10 лет эксплуатации мансардного этажа - потекла ни с того ни с сего крыша (( дык пришлось пол потолка разобрать, что бы всё поустранять и т.д....а если бы был полноценный чердак, то это всё решилось бы без особых потерь... Ну как-то так.... 1 Посилання на коментар Поділитися на інших сайтах More sharing options...
vopros'nik Опубліковано: 20 лютого 2012 Автор Поділитись Опубліковано: 20 лютого 2012 В темке писал уже об этом В первую очередь опыт знакомых...и т.д. А ещё момент с которым недавно знакомые столкнулись после 10 лет эксплуатации мансардного этажа - потекла ни с того ни с сего крыша (( дык пришлось пол потолка разобрать, что бы всё поустранять и т.д....а если бы был полноценный чердак, то это всё решилось бы без особых потерь... Ну как-то так.... Спасибо за ответ, потому что тоже в сомнениях были насчет крыши, хотелось и экономно и красиво и практично. Как все не однозначно. Igor83, еще один вопрос, идет дискуссия насчет постаноки терассы по сторонам света, как у вас вопрос решен, у нас ведь с вами одинаково, вход с севера. Посилання на коментар Поділитися на інших сайтах More sharing options...
Рекомендовані повідомлення
Створіть акаунт або увійдіть у нього для коментування
Ви маєте бути користувачем, щоб залишити коментар
Створити акаунт
Зареєструйтеся для отримання акаунта. Це просто!
Зареєструвати акаунтУвійти
Вже зареєстровані? Увійдіть тут.
Увійти зараз