Korni Опубліковано: 14 березня 2013 Поділитись Опубліковано: 14 березня 2013 При заливке фундамента мне говорят, что гильзы для канализации можно сделать при помощи пластиковых баклажек из под воды. Кто то с таким сталкивался? Заранее спасибо. Сделайте гильзы для 110 трубы ИЗ обрезанной 160-й. 2 Посилання на коментар Поділитися на інших сайтах More sharing options...
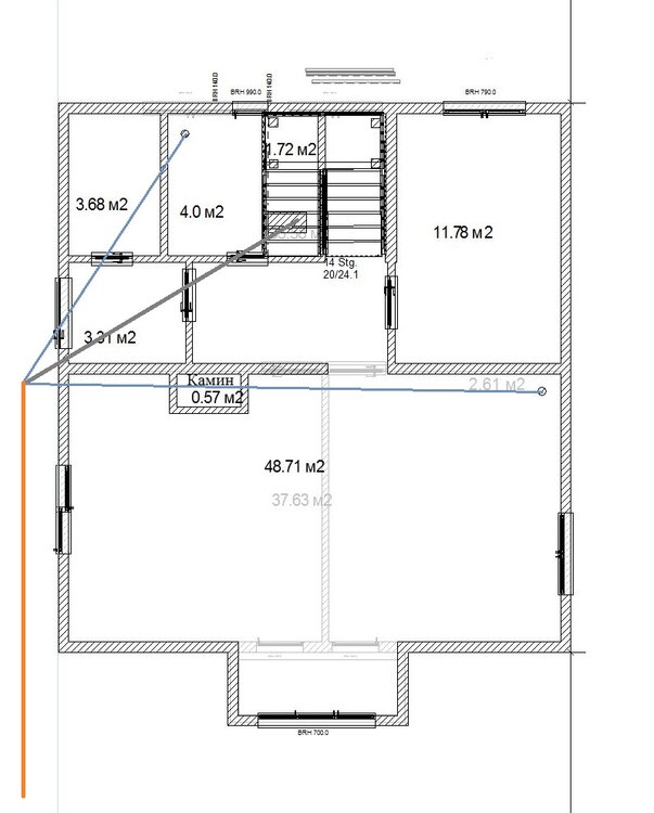
Kevbassa Опубліковано: 17 липня 2014 Поділитись Опубліковано: 17 липня 2014 Добрый день у меня тоже вопрос. Буду закладывать трубы канализации в грунт , сверху бетонная стяжка . Как правильней провести трубы и где нужно ставить ревизии (если они нужны) . Загильзовку сделал перпендикулярно стенам трубой 160 мм, трубы канализации буду использовать диаметром 110мм и 50 мм. длина линии от унитаза до выхода из дома около 9 м Если правильней будет провести трубу под углом как на рис 2 то прийдеться немного разбить дыру в фундаменте нужно ли будет туда вставлять гильзу снова или можно сразу 110 мм трубу? Посилання на коментар Поділитися на інших сайтах More sharing options...
naupv Опубліковано: 18 липня 2014 Поділитись Опубліковано: 18 липня 2014 Второй вариант более правильный, но зачем внутри дома проходить стену, так и не понял, если есть дверной проем. Гильзу нужно делать всегда, в нашем мире ничего не вечно. И каналию, нужно прокладывать по дому так, что если чего, было минимум разрушений дома. Лучше все таки ее класть не по диагонали дома, а как то по наружным стенам (если возможно), в случае перекладки труб, практически весь пол в доме будет изувечен.(если диагональ) 1 Посилання на коментар Поділитися на інших сайтах More sharing options...
Kevbassa Опубліковано: 20 липня 2014 Поділитись Опубліковано: 20 липня 2014 Гильзу внутри дома заложил потому что там фундаментНая лента проходит. Тут как не крути но трубы через дом пройдут и от этого никуда не денешся Посилання на коментар Поділитися на інших сайтах More sharing options...
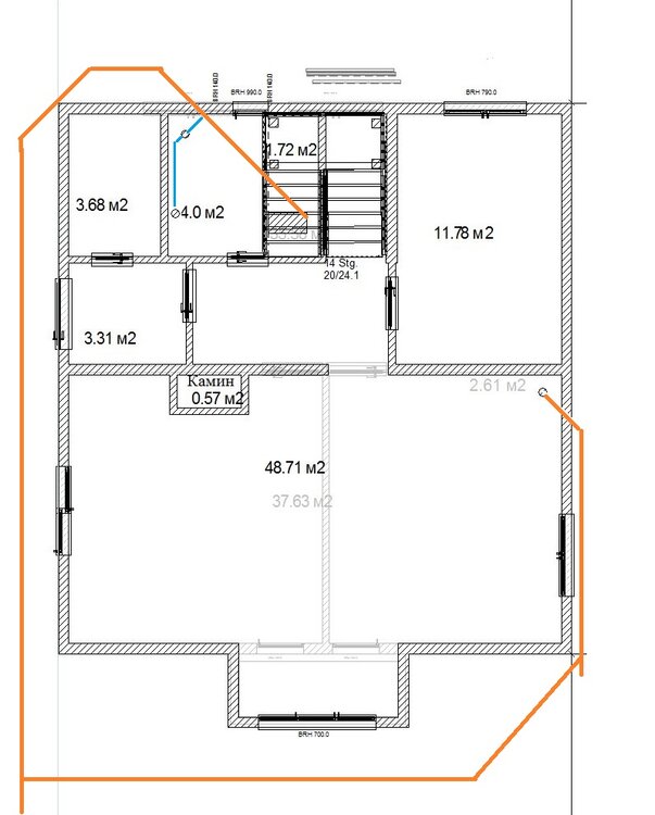
ZIZU Опубліковано: 28 липня 2014 Поділитись Опубліковано: 28 липня 2014 и, что вести канализацию с ухабами прямых углов ? одно дело по вертикали, другое по горизонтали... Посилання на коментар Поділитися на інших сайтах More sharing options...
naupv Опубліковано: 30 липня 2014 Поділитись Опубліковано: 30 липня 2014 с ухабами прямых углов ? 45+45=90:-D Посилання на коментар Поділитися на інших сайтах More sharing options...
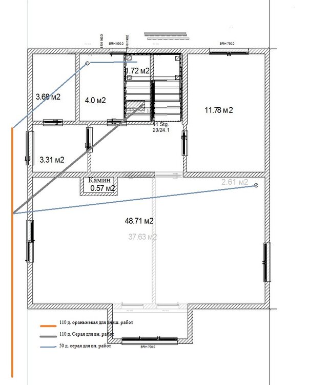
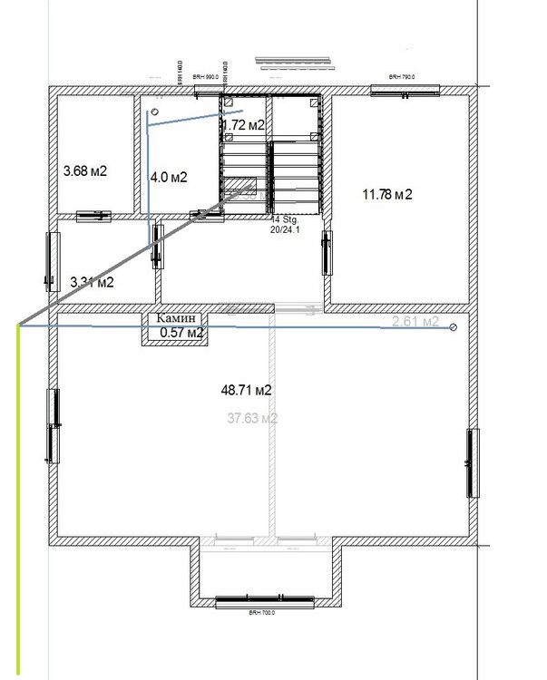
Andrey.S Опубліковано: 22 серпня 2014 Поділитись Опубліковано: 22 серпня 2014 Доброго времени суток. Вот и мы озадачились с разводкой. Перед заливкой пола фундамента Посоветуйте пожалуйста какой вариант лучше выбрать Схематически показал свои представления Не большая расшифровка по схеме: Оранжевая: 110 д. для внеш. работ Серая: 110 д. для вн. работ Серая: 50 д. для вн. работ Я склоняюсь больше к в2 или в4 но он более затратный получится (но скорей всего более надежный, так как внтру проводка труб сведена к минимум) правда в нем больше поворотных углов Как быть уважаемые специалисты, посоветуйте.. Заранее благодарю. Посилання на коментар Поділитися на інших сайтах More sharing options...
zlenka Опубліковано: 29 серпня 2014 Поділитись Опубліковано: 29 серпня 2014 Подскажите, можно ли делать вывод канализации через такую крестовину (после неё в горизонталь выходят два колена по 45 градусов): по бокам - ванна и раковина с одной стороны, стиралка с другой (50), спереди - унитаз (110), сверху поставить заглушку и использовать отверстие для ревизии? Ввсе сантехприборы находятся в одной комнате на одном уровне. Или лучше ванну со стиралкой сместить выше или ниже одним тройником, а унитаз другим? Как на этой картинке: Тогда что должно быть выше? Или без разницы? Дело в том, что ставить много переходников не позволяет глубина заложения трубы в фундаменте, а прокладывать канализацию над чистовым полом не хотелось бы. Очень нужен совет знающих, т.к. хочу на выходных заложить трубы. Посилання на коментар Поділитися на інших сайтах More sharing options...
Korni Опубліковано: 29 серпня 2014 Поділитись Опубліковано: 29 серпня 2014 Можно. Прикольная крестовина 1 Посилання на коментар Поділитися на інших сайтах More sharing options...
naupv Опубліковано: 29 серпня 2014 Поділитись Опубліковано: 29 серпня 2014 Прикольная крестовина Я кстати замечаю у всяких европластов и прочих пластов производства Украина кучу всяких прикольных фитингов, не имеющих аналогов у китов этой индустрии. Пора нашим патентовать свои изделия. Посилання на коментар Поділитися на інших сайтах More sharing options...
Andrey.S Опубліковано: 15 вересня 2014 Поділитись Опубліковано: 15 вересня 2014 (змінено) Добрый день. В процессе работы появилось не много вопросом, как лучше сделать. Я думаю в этом не чего сложного нет, для тех кто уже сталкивался.. 1. Ставлю тройник 110х45°, как с него лучше выйти 1-м колено на 45° или 30° + 15° или 15°+15°+15° ? По высоте достаточно места.. 2. Труба которая выходит с раструбом на верх от тройника (над полом), на сколько раструб должен быть выше от пола минимум-максимум ? 3. Если Ставить Крестовину 110х50х50(с двумя выходами по 50), на каком уровне её лучше расположить ?, над полом так же минимальная высота от пола или под полом ? 4. Прокладываю водопроводную трубу от скважины 32Ø, нужно ли её прокладывать в 110Ø или достаточно будет в 50Ø Благодарю! Змінено 15 вересня 2014 користувачем Andrey.S Посилання на коментар Поділитися на інших сайтах More sharing options...
naupv Опубліковано: 16 вересня 2014 Поділитись Опубліковано: 16 вересня 2014 Добрый день 1.45 2.Заподлицо с будущей плиткой. 3.Под полом. 3.Ничего не понял, куда 110, куда 50? ПЕ трубы можно запросто закапывать в землю. 1 Посилання на коментар Поділитися на інших сайтах More sharing options...
Zinder Опубліковано: 29 березня 2015 Поділитись Опубліковано: 29 березня 2015 (змінено) .Верхняя часть раструба должна быть на 2 см, ниже уровня грязного пола, чтобы при возможном изменении места расположения сантехприборов, можно было перенести канализацию в черновой стяжке. А если не трудно обясните ваш пост пожалуйста, не совсем понял что есть раструб Змінено 29 березня 2015 користувачем Zinder Посилання на коментар Поділитися на інших сайтах More sharing options...
Korni Опубліковано: 29 березня 2015 Поділитись Опубліковано: 29 березня 2015 (змінено) А если не трудно обясните ваш пост пожалуйста, не совсем понял что есть раструб "мама" ------------- Змінено 29 березня 2015 користувачем Korni Посилання на коментар Поділитися на інших сайтах More sharing options...
Zinder Опубліковано: 29 березня 2015 Поділитись Опубліковано: 29 березня 2015 "мама" "мама" ------------- за картинку спс, но чет я приуныл) словами если нетрудно разжуйте чайнику Посилання на коментар Поділитися на інших сайтах More sharing options...
Игорь&Ира Опубліковано: 29 березня 2015 Поділитись Опубліковано: 29 березня 2015 за картинку спс, но чет я приуныл) словами если нетрудно разжуйте чайнику Конец трубы с резинкой. Посилання на коментар Поділитися на інших сайтах More sharing options...
Korni Опубліковано: 29 березня 2015 Поділитись Опубліковано: 29 березня 2015 за картинку спс, но чет я приуныл) словами если нетрудно разжуйте чайнику Почитайте обсуждение, начиная с #14 Посилання на коментар Поділитися на інших сайтах More sharing options...
Yarikys Опубліковано: 30 березня 2015 Поділитись Опубліковано: 30 березня 2015 Уважаемый Korni, помогите и мне советом. как более правильно сделать канализацию. Уже весь мозг сломал. План прикрепил. План 1 (Немного дороже) План 2 (намного проще и дешевле) Но боюсь что если проснётся западло. Будет всем плохо. (соединения закопаны) Вопросы. Нужно ли делать переточный колодец. Или можно обойтись? От врезки канализации до стен моего дома (15-18) метров максимум. На первом угле трубы от канализации многоэтажного дома. Как раз и проходит граница мого частного домика. И какой трубой вести с наружи. 100 или перейти на 110? Посилання на коментар Поділитися на інших сайтах More sharing options...
Korni Опубліковано: 30 березня 2015 Поділитись Опубліковано: 30 березня 2015 ....Вопросы. Нужно ли делать переточный колодец. Или можно обойтись? От врезки канализации до стен моего дома (15-18) метров максимум. На первом угле трубы от канализации многоэтажного дома. Как раз и проходит граница мого частного домика. И какой трубой вести с наружи. 100 или перейти на 110? Я за План 1. Если больше 12м трасса - нужно делать ревизионный колодец. В крайнем случае, можно использовать тройник и вывести 100-ку (она же 110-я труба ) на уровень земли. 100=110, это одна и та же труба. 1 Посилання на коментар Поділитися на інших сайтах More sharing options...
Yarikys Опубліковано: 30 березня 2015 Поділитись Опубліковано: 30 березня 2015 Korni, А какой прок именно от этой трубы? Соединения же зарытые. И можно где-то увидеть как именно выглядит ревизионный колодец канализации. И еще вопрос. 1-2 см уклона на 1 м погонной трубы это хватит или мало? Посилання на коментар Поділитися на інших сайтах More sharing options...
Korni Опубліковано: 30 березня 2015 Поділитись Опубліковано: 30 березня 2015 Korni, А какой прок именно от этой трубы? Соединения же зарытые. И можно где-то увидеть как именно выглядит ревизионный колодец канализации. И еще вопрос. 1-2 см уклона на 1 м погонной трубы это хватит или мало? Не в соединениях проблемы, а в прочистке. Наклон - 2-5% 1 Посилання на коментар Поділитися на інших сайтах More sharing options...
Zinder Опубліковано: 2 квітня 2015 Поділитись Опубліковано: 2 квітня 2015 В идеале вы должны определиться с местами расположения сантехприборов по первому этажу, местах сливов с фильтров, коллекторов, предохранительных клапанов и конечно места расположения стояка на второй этаж. После этого выполнить всю разводку канализации до заливки чернового пола.Верхняя часть раструба должна быть на 2 см, ниже уровня грязного пола, чтобы при возможном изменении места расположения сантехприборов, можно было перенести канализацию в черновой стяжке. Если Вы все это продумаете, Вам потом не придется платить дополнительные средства, за битие бетона и перенос канализации. А монтажники избавятся от не благодарной работы. Покажите пожалуйста отметку грязного пола? Посилання на коментар Поділитися на інших сайтах More sharing options...
B.S.V. Опубліковано: 3 квітня 2015 Поділитись Опубліковано: 3 квітня 2015 Покажите пожалуйста отметку грязного пола? По нижней части жирной красной линии. Далее те же места, но в дальнейшем процессе. Посилання на коментар Поділитися на інших сайтах More sharing options...
sashkaa Опубліковано: 4 квітня 2015 Поділитись Опубліковано: 4 квітня 2015 Прошу совета. Заложена гильза на отм. -1,300 от чистого пола. Есть 2 варианта прокладки труб канализации. 1-й от гильзы по уклону основная магистраль к потребителям через тройники трубы, ну и дальше все понятно. 2-й сразу от стены поднимаю при помощи колен 45 на более высокую отметку трубу и все то же самое. При 2м варианте менше копать. Он будет работать. Файл прикладываю. Помещение будет сауна и душевая, горшка ставить не планирую, хотя все может быть.труби канал.pdf Посилання на коментар Поділитися на інших сайтах More sharing options...
naupv Опубліковано: 4 квітня 2015 Поділитись Опубліковано: 4 квітня 2015 Прошу совета. Заложена гильза на отм. -1,300 от чистого пола. Можно 2-й вариант, ничего страшного в этом нет. Но, если гильза на отметке -1300, то на какой отметке будет вход в септик, прикидывали? Посилання на коментар Поділитися на інших сайтах More sharing options...
Рекомендовані повідомлення
Створіть акаунт або увійдіть у нього для коментування
Ви маєте бути користувачем, щоб залишити коментар
Створити акаунт
Зареєструйтеся для отримання акаунта. Це просто!
Зареєструвати акаунтУвійти
Вже зареєстровані? Увійдіть тут.
Увійти зараз