Перейти до публікації
Пошук в
  • Додатково...
Шукати результати, які містять...
Шукати результати в...

Отопление, водоснабжение, канализация, котельные. Расчёт и монтаж от Korni

Korni

Была ли Вам полезна информация в этой теме?  

449 користувачів проголосувало

У вас немає прав на голосування в цьому опитуванні, або на перегляд результатів опитування. Будь ласка, войдите или зареєструйтеся для голосування в опитуванні.

Рекомендовані повідомлення

Есть еще несколько вопросов по поводу организации водоснабжения.

Весной предстоит решать вопрос выбора источника водоснабжения:

- один колодец или колодец и скважина (пока выкопан только колодец).

 

Все ближайшие соседи(сельские жители) пользуются колодцами. Дебет позволяет закрыть поребность для бытовых нужд и осуществлять полив огорода.

Колодец выкопан в прошлом году, уровень воды 1,5 метра. Попытка выкачать воду в течении 1 часа насосом типа "Каштан" привела к подъему на поверхность (12м) около 800л воды с понижением ее уровня на 50см.

 

Это подтверждает хороший дебет о котором говорили мастера, которые копали колодец.

Весь известный опыт использования скважин жителями окрестностей,говорит о высоком содержании железа.

 

Как Вы считаете будет ли достаточно одного колодца для водоснабжения дома использующегося по-первах в дачном режиме на 6-8 человек?

Какую схема забора воды в случае использования колодца на дом и хоз.посройку с баней, Вы считаете препочтителней - одним насосом типа (например "Водолей") или двумя отдельными насосами?

 

Заранее спасибо за ответ.

Посилання на коментар
Поділитися на інших сайтах

Какую схема забора воды в случае использования колодца на дом и хоз.посройку с баней, Вы считаете препочтителней - одним насосом типа (например "Водолей") или двумя отдельными насосами?

Одним.

 

И обязательно сделайте закрывающуюся крышку на колодец и поставьте своё ведро. Не позволяйте никому набирать чужими (другими) вёдрами.

  • Лайк 1
Посилання на коментар
Поділитися на інших сайтах

И обязательно сделайте закрывающуюся крышку на колодец и поставьте своё ведро. Не позволяйте никому набирать чужими (другими) вёдрами.

 

Спасибо за ответ.

А рекомендация с ведром - это вопрос химии или высших материй?

Посилання на коментар
Поділитися на інших сайтах

А рекомендация с ведром - это вопрос химии или высших материй?

Санитарии.

 

______________

  • Лайк 1
Посилання на коментар
Поділитися на інших сайтах

Технадзор

 

(ссылка на изображение устарела)

 

 

Это что, оштукатурили, а потом решили сделать теплые стены??

 

Если не трудно сорентируйте меня по ценам на медные трубы 10,12,15 мм, и фитинги. А то в инете у одного производителя есть на трубу 10 цена от 25 до 36 грн, а в чем разница не пойму. На 12 от 32 до 43 грн.

Рассматривать метрические трубы (не дюймовые)? Фирмы какие КМЕ, КМК, Sanco, Sanha?

Спасибо.

Посилання на коментар
Поділитися на інших сайтах

Это что, оштукатурили, а потом решили сделать теплые стены??....

Да.

....Если не трудно сорентируйте меня по ценам на медные трубы 10,12,15 мм, и фитинги. А то в инете у одного производителя есть на трубу 10 цена от 25 до 36 грн, а в чем разница не пойму.....

Разница во взаимоотношениях с таможней :)

Я покупаю медь в сл. компаниях - Ромстал, БМУ-77, Леон-Сервис. Ссылки ведут на странички с прайсами. У монтажников, естественно, есть дополнительные скидки.

 

На базаре Юность есть весьма хорошие цены, но я там беру очень редко... В основном, фитинги больших диаметров.

 

....Рассматривать метрические трубы (не дюймовые)? Фирмы какие КМЕ, КМК, Sanco, Sanha?...

Нет, метрические не рассматривайте.

Производителей Вы перечислили очень хороших. Разве что, надо бы добавить греческую Halcor.

 

Но, на самом деле, по трубе и по фитингам (не латунным, медным) подделок не встречал. Основной параметр международного стандарта по медным труба и фитингам - геометрический размер. Проверяется очень легко. Да и вес тоже.

..

Ведущий
параметр
в основных европейских стандартах по фитингам и трубам (EN 1254 и EN 1057) - это именно
геометрический размер зазора

Рекомендую ознакомиться с ГОСТ Р 52922-2008 "ФИТИНГИ ИЗ МЕДИ И МЕДНЫХ СПЛАВОВ ДЛЯ СОЕДИНЕНИЯ МЕДНЫХ ТРУБ СПОСОБОМ КАПИЛЛЯРНОЙ ПАЙКИ. Технические условия". Стандарт гармонизирован и разработан с учетом основных нормативных положений EN 1254.

Цитата:

Диаметральный зазор соединения под пайку макс. 0,20 мм для труб до 18мм и 0,24мм - до 28мм

Для соединения труб между собой капиллярной пайкой используется коаксиальное (телескопическое) соединение с монтажным зазором 0,02-0,40 мм, что обеспечивает возникновение капиллярного эффекта при пайке...

  • Лайк 2
Посилання на коментар
Поділитися на інших сайтах

А какая там толщина штукатурки 2,5-3 см. Ее хватает что бы уложить трубу и заштукатурить штробу? Или нужно будет полностью перештукатуривать стену. Какой диаметр трубы?

 

 

Значит нужно брать дюймовые медные трубы? У метрических размер идет "ровный" - 10 мм, 12 мм, 15 мм, а у дюймовых не ровно 10мм, а 9,56 мм, не 12мм, а 12,7 мм. Правильно?

Посилання на коментар
Поділитися на інших сайтах

А какая там толщина штукатурки 2,5-3 см. Ее хватает что бы уложить трубу и заштукатурить штробу? Или нужно будет полностью перештукатуривать стену. Какой диаметр трубы?

10 мм, всего хватает :)

У метрических размер идет "ровный" - 10 мм, 12 мм, 15 мм, а у дюймовых не ровно 10мм, а 9,56 мм, не 12мм, а 12,7 мм. Правильно?

Нет, метрические не рассматривайте.

Да, (ссылка устарела). Извините, что ввёл в заблуждение.

 

Основные размеры, используемые в отоплении и водоснабжении у нас, это наружный диаметр в 15, 18, 22, 28, 35, 42 мм.

 

Покупая трубы, смотрите чтобы на маркировке был выбит стандарт EN 1057

 

Порекомендую сайт www.coppertube.ru

  • Лайк 1
Посилання на коментар
Поділитися на інших сайтах

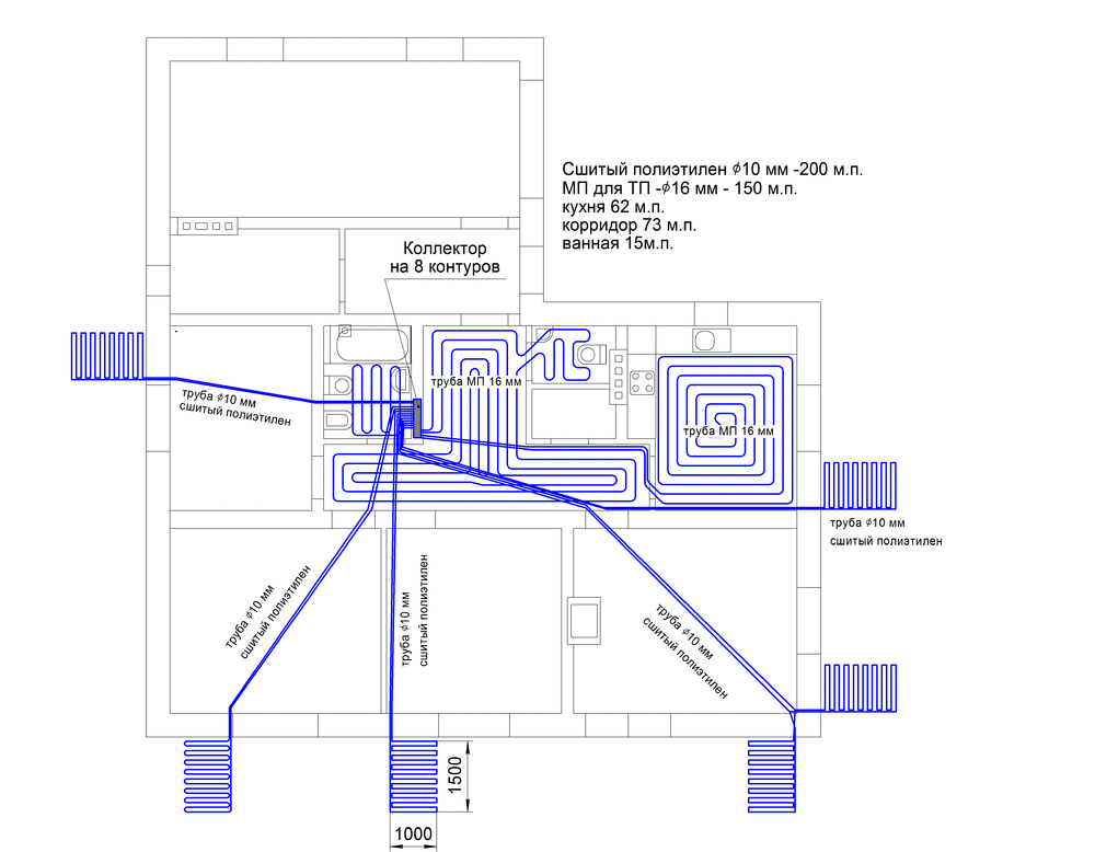
Посмотрите и покритикуйте пожалуйста такую схему отопления - радиаторы, теплый пол и теплые стены. Соотношение диаметров труб, количество секций в радиаторах. Применение теплых стены это вариант максимум, если будут время и деньги. Поэтому принимать в расчет их не стоит.

Допускается ли раскладывать трубы по полу в таком "диагональном положении", нет требования такого как например при монтаже эл. проводки -только горизонтально и вертикально.

Медь конечно дорого...

Спасибо.

1925716851_3(1).thumb.gif.de8bc03920abe2426a140a4bdfd8e967.gif

1802282480_3(2).thumb.gif.7b8a0bca6d7d389d7a69b89d8837ca6f.gif

1225965546_3(3).thumb.gif.231723363bc6b66f612ab6e6c1c447e4.gif

Посилання на коментар
Поділитися на інших сайтах

Посмотрите и покритикуйте пожалуйста такую схему отопления - радиаторы, теплый пол и теплые стены. Соотношение диаметров труб, количество секций в радиаторах. Применение теплых стены это вариант максимум, если будут время и деньги. Поэтому принимать в расчет их не стоит......

ОК, ТС не принимаем в расчёт.

И количество секций радиаторов - тоже. Теплопотери-то неизвестны.

 

Диаметры.... хм....

 

Давайте я дам Вам табличку, на основании которой можно самостоятельно понять, сколько радиаторов (то есть - кВт) можно "повесить" на 16-ю трубу, например.

 

%25D0%259E%25D0%25BF%25D1%2580%25D0%25B5%25D0%25B4%25D0%25B5%25D0%25BB%25D0%25B5%25D0%25BD%25D0%25B8%25D0%25B5%2520%25D0%25B2%25D0%25BD%25D1%2583%25D1%2582%25D1%2580%25D0%25B5%25D0%25BD%25D0%25BD%25D0%25B5%25D0%25B3%25D0%25BE%2520%25D0%25B4%25D0%25B8%25D0%25B0%25D0%25BC%25D0%25B5%25D1%2582%25D1%2580%25D0%25B0%2520%25D1%2582%25D1%2580%25D1%2583%25D0%25B1%25D0%25BE%25D0%25BF%25D1%2580%25D0%25BE%25D0%25B2%25D0%25BE%25D0%25B4%25D0%25BE%25D0%25B2%2520%25D1%2581%25D0%25B8%25D1%2581%25D1%2582%25D0%25B5%25D0%25BC%25D1%258B%2520%25D0%25BE%25D1%2582%25D0%25BE%25D0%25BF%25D0%25BB%25D0%25B5%25D0%25BD%25D0%25B8%25D1%258F.jpg

....Допускается ли раскладывать трубы по полу в таком "диагональном положении", нет требования такого как например при монтаже эл. проводки -только горизонтально и вертикально.....

Допускается, но будет гемморойно укладывать плиты утеплителя.

....Медь конечно дорого...

Миф.

  • Лайк 1
Посилання на коментар
Поділитися на інших сайтах

Коэф. сопротивления теплопередачи:

-стены 2,6

-окна 0,5-0,6

-потолок 2,5 (хотя нужно 4,5-5)

-пол 1,5 (хотя нужно 2,5).

 

Если принять скорость движения теплоносителя 0,4 м/с, то:

-МП труба диам. 16мм и 20мм (внутренний диаметр 12 мм и 16 мм) справляется с запасом, но на фитингах идет уменьшение диаметра, оно как-то учитывается? На трубу 16 мм отверстие в фитинге будет вроде 8 мм, а на 20 мм будет 12 мм?

-Медная труба диам. 10 мм и 12 мм (внутренний диаметр 8 мм и 10 мм)

на скорости 0,4 м/с не справяться, при скорости 0,5 м/с труба 10 мм сможет обслужить максимум 11 секций (12 секций с натягом), 12 мм справится подводкой теплоносителя к 2-м радиаторам.

 

Остается вопрос необходимого количества секций в радиаторе.

 

По цене, посчитаем грубо (что-то по памяти, что-то в интернете нашел, поэтому цены примерные)

МП 16 мм-60 м.п.*10 грн=600 грн

20 мм-35 м.п.*15 грн=525 грн

переход МП 16 /резьба 1/2-12 шт*20 грн=240 грн

уголок 16 мм-12 шт*30 грн=360 грн

тройник 16/20/16-4 шт*50 грн=200 грн

Итого 1925 грн

 

Медь 10 мм-60 м.п.*36=2160 грн.

12 мм-35 м.п.*43=1505 грн.

переход медь 10/ резьба 1/2- 12 шт*10=120 грн

уголок 10 мм- 24 шт*7 грн=168 грн

тройник 10/12/10 4 шт*27=108 грн

Итого 4061 грн

 

Примерно сходится??

Посилання на коментар
Поділитися на інших сайтах

Примерно сходится??

В общем-то, да.

Но МП труба есть и ещё дешевле ;)

"Миф о дороговизне меди". Системы корректней сравнивать
равнозначные по качеству
, как минимум.

Например, "
МП Рехау и медь
". Или "
МП TeCe и медь
" - и не прессмуфта, а "натяжная". Там фитинги подороже будут.

При этом, однозначно, медная (металлическая) система является более качественной и долговечной, чем пластиковая с натяжной муфтой. Даже дорогая немецкая.

 

...Заужения МП-фитингов на такие небольшие нагрузки - не критично.

 

.... Медью работают, в основном, минимум 15-й - так как трудно с комплектующими на другие размеры и народ "боится заужений". Хотя к радиатору вполне можно делать подводки из 10-12 меди.

Соответственно, ценообразование на "редкие" размеры (отличные от 15 в меньшую сторону) бывает очень интересным... и не всегда понятным.

Остается вопрос необходимого количества секций в радиаторе.

Упрощённо, без расчётов, одна секция радиатора на 1 м. кв. отапливаемой площади. И это с большим запасом.

 

Посмотрите тут. Форумчанин уже задавался таким сравнением, в итоге сделал медью. Его обучение пайки заняло 10 минут у меня в гараже.

Получилось весьма и весьма качественно.

 

attachment.php?attachmentid=192222&d=1338990026

  • Лайк 4
Посилання на коментар
Поділитися на інших сайтах

"Миф о дороговизне меди". Системы корректней сравнивать равнозначные по качеству, как минимум.

Например, "
МП Рехау и медь
". Или "
МП TeCe и медь
" - и не прессмуфта, а "натяжная". Там фитинги подороже будут.

При этом, однозначно, медная (металлическая) система является более качественной и долговечной, чем пластиковая с натяжной муфтой. Даже дорогая немецкая.

 

 

 

Согласен полностью, но у нас найти ТЕСЕ и Рехау проблематично. КАН еще можно найти.

 

 

. Медью работают, в основном, минимум 15-й - так как трудно с комплектующими на другие размеры и народ "боится заужений". Хотя к радиатору вполне можно делать подводки из 10-12 меди.

Соответственно, ценообразование на "редкие" размеры (отличные от 15 в меньшую сторону) бывает очень интересным... и не всегда понятным.

 

Так и есть, искал фитинги на 10мм, но не всегда находил, просто отсутствуют и я думал, что это ошибка. К тому же некоторые позиции 10мм были дороже чем 12 или 15 мм (тройники например)

 

Упрощённо, без расчётов, одна секция радиатора на 1 м. кв. отапливаемой площади. И это с большим запасом.

 

Я считал 1 секция на 1,5 м. кв.

Посилання на коментар
Поділитися на інших сайтах

Пластиковые системы служат по 50 лет, как утверждают производители.

Пластик имеет свойство "стареть".

 

Металлические системы, а особенно медь - имеют срок службы, сопоставимый со сроком службы дома. Вечные ;)

 

Порекомендую "для себя" сделать 15-й медью.

  • Лайк 2
Посилання на коментар
Поділитися на інших сайтах

Korni, здравствуйте, нужен совет специалиста.

 

готовлюсь к началу строительного сезона, но с канализацией окончательно не определился. Всего скорее буду делать герметичную емкость под "черные стоки" и не герметичную емкость под "серые"

 

уже нужно определится с выводом из дома.

 

Подскажите как вычислить глубину с которой будет выходить труба. Расстояние с предполагаемым расположением емкостей ориентировочно известно.

 

спасибо

Посилання на коментар
Поділитися на інших сайтах

Подскажите как вычислить глубину с которой будет выходить труба

Почитать эту ветку или СНиП 2.04.02-84* Водоснабжение. Наружные сети и сооружения :)

В общем, минимально регламентируемая глубина заложения канализации - 0,5м при условии утепления.
  • Лайк 1
Посилання на коментар
Поділитися на інших сайтах

Александр, подскажите пожалуйста пару технических моментов чайнику. Вы как-то писали, что нередко опрессовываете контуры ТП воздухом с помощью обычного китайского компрессора. У меня есть автокомпрессор, но там соединение только под сосок автоколеса. Найти переходник под вход в коллектор проблематично(на рынке на десятке точек не помогли)? Второй момент по месту монтажа манометра в коллекторах. Устанавливать его на входе между шаровым краном и гребёнкой подачи или с другой стороны гребёнки? Видел фото обоих вариантов(фото для наглядности, второе в Ворде не вставилось)), а также манометр на гребёнке обратки. Какой вариант правильнее, менее материалоёмок (мне под первый вариант что-то уж очень много деталей предлагают)? Какого давления для опрессовки контуров из Раутерм 17 достаточно? Заранее благодарен за ответ.

IMAG0270.jpg.f25eeadfbd71227a461b07b46773b0d9.jpg

Посилання на коментар
Поділитися на інших сайтах

.....меня есть автокомпрессор, но там соединение только под сосок автоколеса.....

Автокомпрессором не качал, не подскажу.

.....Второй момент по месту монтажа манометра в коллекторах. Устанавливать его на входе между шаровым краном и гребёнкой подачи или с другой стороны гребёнки? .....

Всё равно, где - главное не отсекать от труб ТП. Чтобы можно было проследить динамику падения давления.

....Какого давления для опрессовки контуров из Раутерм 17 достаточно? Заранее благодарен за ответ.....

Испытательное давление - это полтора номинального.

3-4 бара достаточно. Можно до шести.

 

Нормируется (производителем) процедурой проведения испытаний.

 

 

------------

------------

 

Эх-х :)

 

(ссылка на изображение устарела)

 

(ссылка на изображение устарела)

 

(ссылка на изображение устарела)

  • Лайк 2
Посилання на коментар
Поділитися на інших сайтах

практично ли для дома

очень! Если если правильно пользоваться и сделан с пониманием как у Саши.

Посилання на коментар
Поділитися на інших сайтах

Это конечно прикольно, но практично ли для дома.

Зависит от индивидуальных особенностей понимания "практичности".

 

А с опытом я всё больше и больше понимаю, что такого параметра не существует в принципе.

Вернее, он не имеет единой базы сравнения.

"Что русскому хорошо, то немцу - смерть"

Посилання на коментар
Поділитися на інших сайтах

есть возможность реализовать такое, почти.

Очень интересно, хочется не стандартных задач.

Посилання на коментар
Поділитися на інших сайтах

Весьма-весьма полезно и доступно:

Шпаргалка монтажника по солнечным установкам от Meibes (2013)

Гектор рекомендует

solar.thumb.jpg.b430f6bea00ac23cc8b8503884467bb2.jpg

solar2.thumb.jpg.93c215836108d00575b29d2b04bfab62.jpg

solar3.thumb.jpg.809f98589eec25a09d93f2c095916d12.jpg

solar4.thumb.jpg.4cc117349887a19ecb466819914b2293.jpg

Змінено користувачем Korni
  • Лайк 7
Посилання на коментар
Поділитися на інших сайтах

Створіть акаунт або увійдіть у нього для коментування

Ви маєте бути користувачем, щоб залишити коментар

Створити акаунт

Зареєструйтеся для отримання акаунта. Це просто!

Зареєструвати акаунт

Увійти

Вже зареєстровані? Увійдіть тут.

Увійти зараз
×
×
  • Створити...