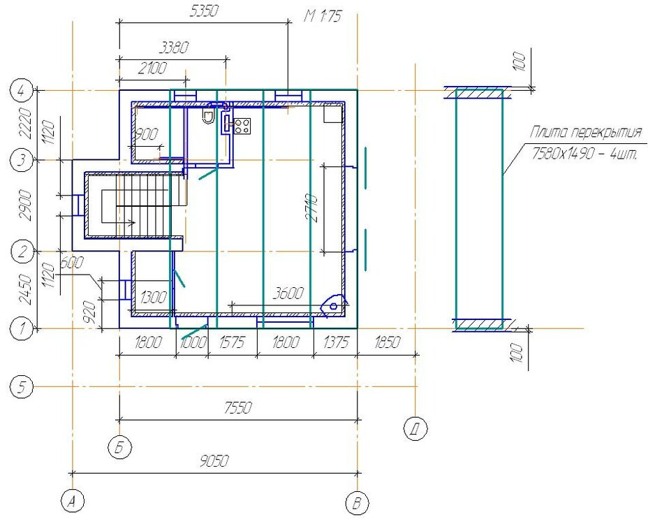
lebmarg Опубліковано: 8 березня 2012 Поділитись Опубліковано: 8 березня 2012 Доброго времени суток! Дом планировали строить из керамблока 2 NF(250*120*138)(2 этажа + мансарда), перекрытие первого этажа - ЖБИ. Перезимовали и теперь подумываем строить из газоблока 375мм или 300мм. Подскажите плиз. безопасно ли ложить плиты перекрытия на газаблок. Мы уже хотели использовать деревянные балки для перекрытия, но пролет великоват(7180х1490 - 4шт). На сколько плита должна заходить на несущую стену(из газоблока)? Можно ли, чтобы край несущей стены и плиты перекрытия были на одном уровне (с фасада, который будем утеплять пенопластом)? Можно ли сделать в несущей стене окно 1800х2000? Спасибо! Посилання на коментар Поділитися на інших сайтах More sharing options...
RomanT-34 Опубліковано: 9 березня 2012 Поділитись Опубліковано: 9 березня 2012 Доброго времени суток! Дом планировали строить из керамблока 2 NF(250*120*138)(2 этажа + мансарда), перекрытие первого этажа - ЖБИ. Перезимовали и теперь подумываем строить из газоблока 375мм или 300мм. Подскажите плиз. безопасно ли ложить плиты перекрытия на газаблок. Мы уже хотели использовать деревянные балки для перекрытия, но пролет великоват(7180х1490 - 4шт). На сколько плита должна заходить на несущую стену(из газоблока)? Можно ли, чтобы край несущей стены и плиты перекрытия были на одном уровне (с фасада, который будем утеплять пенопластом)? Можно ли сделать в несущей стене окно 1800х2000? Спасибо! Подобные вопросы лучше всего задать на сайте производителя блоков. По крайней мере у АЭРОК есть возможность пообщаться с инженером. Посилання на коментар Поділитися на інших сайтах More sharing options...
ВДВ Опубліковано: 9 березня 2012 Поділитись Опубліковано: 9 березня 2012 Доброго времени суток! Дом планировали строить из керамблока 2 NF(250*120*138)(2 этажа + мансарда), перекрытие первого этажа - ЖБИ. Перезимовали и теперь подумываем строить из газоблока 375мм или 300мм. Подскажите плиз. безопасно ли ложить плиты перекрытия на газаблок. Мы уже хотели использовать деревянные балки для перекрытия, но пролет великоват(7180х1490 - 4шт). На сколько плита должна заходить на несущую стену(из газоблока)? Можно ли, чтобы край несущей стены и плиты перекрытия были на одном уровне (с фасада, который будем утеплять пенопластом)? Можно ли сделать в несущей стене окно 1800х2000? Спасибо! Подскажите плиз. безопасно ли ложить плиты перекрытия на газаблок Можно армопояс обязателен и армировать первый и каждый третий ряд.ПО поводу 375-300. для наших широт хватает и 300 с внешней отделкой. 1 Посилання на коментар Поділитися на інших сайтах More sharing options...
lebmarg Опубліковано: 9 березня 2012 Поділитись Опубліковано: 9 березня 2012 Можно армопояс обязателен и армировать первый и каждый третий ряд.ПО поводу 375-300. для наших широт хватает и 300 с внешней отделкой. Спасибо! Подскажите плиз. на счет широкого окна в несущей стене. Над ним как раз плита перекрытия(по всей ширине окна)?! Посилання на коментар Поділитися на інших сайтах More sharing options...
Oleg08 Опубліковано: 10 березня 2012 Поділитись Опубліковано: 10 березня 2012 Я тоже ложил впервые газоблок сам,ничего трудного как оказалось на деле.Прежде плотно перечитал этот форум и всякие видео смотрел на ютубе.Брал Аэрок 375.250.600 паз-гребень, 31кг штучка весит.Размеры моего домика 12 на 16 грубо, Ложил на клей Аэроковский, у них покупал все инструменты для кладки.Очень материалом доволен,сначала в день ложил абсалютно сам по одному ряду,на весь периметр,это уходило 106 блоков примерно,3 с половиной палеты примерно. после метра стены, стало сложновато самому,взял подсобника, чтоб из палет строил мне леса, подносил блоки,мешал клей.Ровно за месяц выложили вдвоем весь первый этаж стены 3 метра высотой,около 60 м2 газоблока.ложили клей кареткой,а для вертикальных швов сделал из зубастого шпателя небольшой ковшик чтоб промазывать вертикальный шов.вертик шов лучше все таки промазывать,чтоб не сифонило боковым ветром. каждый 4 ряд штробил и вставлял арматуру,делал раствор песок цемент 1к2 , пробовал на клей арматуру ложить,клей очень сильно усаживается,не понравилось. На 60 кубов газобетона ушло 50 мешков(25кг) клея,почему так мало не понимаю,должно был больше по их расчетам.Швы получились 1-2 мм всего.Перед каждым другим рядом выравнивал низ шкуркой 27(самая крупная что нашел) штробы под окнами так делал перемычки над окнами клеил 100блоки под армопояс и заодно проверял крепость перемычки )) так выглядит несьемная апалубка из Г.б 100 ширины. армопояс в Г.б это отходы с 60кубов Г.б незнаю как у людей кубами отходы получаются,на подрезку уходит все.Где отбивались кусочки края г.б я их подклеивал обратно на клей пва. до зимы успел и плиты кинуть 12 метровые )) Так что вывод в строительстве один,глаза боятся а руки делают, и очень даже ничего делают ))) 6 Посилання на коментар Поділитися на інших сайтах More sharing options...
dvk Опубліковано: 11 березня 2012 Поділитись Опубліковано: 11 березня 2012 Oleg08, зачетная стройка практически по всем позициям! Так и надо делать всем. Посилання на коментар Поділитися на інших сайтах More sharing options...
Max77 Опубліковано: 11 березня 2012 Поділитись Опубліковано: 11 березня 2012 так выглядит несьемная апалубка из Г.б 100 ширины. армопояс в Г.б Подскажите, на расползалась ли несьемная опалубка из блоков 100мм. при заливке армопояса? И еще, можно подробнее о приспособлении для промазывания вертикальных швов газоблока. Посилання на коментар Поділитися на інших сайтах More sharing options...
dvk Опубліковано: 11 березня 2012 Поділитись Опубліковано: 11 березня 2012 Подскажите, на расползалась ли несьемная опалубка из блоков 100мм. при заливке армопояса? И еще, можно подробнее о приспособлении для промазывания вертикальных швов газоблока. Не расползается. Если только вибратором в нее не тыкать. Т.е. вибратор применять можно и нужно, но не касаться 100мм блоков. И еще. Все таки, если блок 400 мм, то внутрь наружной стороны еще надо 30мм ЭППС. Если 375 мм, то конечно не получится - слишком мало места остается под балку. Хотя опять же, смотря, чем потом нагружать армпояс этот. 1 Посилання на коментар Поділитися на інших сайтах More sharing options...
ВДВ Опубліковано: 11 березня 2012 Поділитись Опубліковано: 11 березня 2012 НУ вот и наглядный пример всем скептикам как можно и проще делать перемычки.делал также кроме армопояса поскольку у меня блок 300. Посилання на коментар Поділитися на інших сайтах More sharing options...
dvk Опубліковано: 11 березня 2012 Поділитись Опубліковано: 11 березня 2012 НУ вот и наглядный пример всем скептикам как можно и проще делать перемычки.делал также У меня 75е уголки внутрях Еще технологичнее, ибо можно блоки двигать и влево-вправо и вверх-вниз. Посилання на коментар Поділитися на інших сайтах More sharing options...
ВДВ Опубліковано: 11 березня 2012 Поділитись Опубліковано: 11 березня 2012 НУ это кто что скомуниздил . Я в общем говорю что можно обойтись без дорогостоящих U-блоков. Посилання на коментар Поділитися на інших сайтах More sharing options...
LITMANENko Опубліковано: 11 березня 2012 Поділитись Опубліковано: 11 березня 2012 По арматуре или уголкам в качестве перемычек выглядит очень заманчиво. Быстро, удобно и всё такое. Думаю, что с этим никто не спорит, но интересует вопрос долговечности, не поржавеет ли металл, не выступит ли ржавчина внизу или сбоку. Что будет лет через 10 скажем? Посилання на коментар Поділитися на інших сайтах More sharing options...
Oleg08 Опубліковано: 11 березня 2012 Поділитись Опубліковано: 11 березня 2012 Приклееные блоки под апалубку,держаться капец как крепко,кое где забыл оставить проемы под плиты.Так потом вырезал и выбивал приклееные блоки,выбиваются не с первого удара))) это на след день после приклейки выбивал. арматуру вставлял под перемычки примерно 22,не думаю что со временем проржавеет ,так как в сырости не собираюсь свой газоблок держать,да и облицуется все таки.Ион на самом деле не очень всасывает в себя воду,некоторые блоки лежали в луже,так всасывается только пару сантиметров воды и все. Посилання на коментар Поділитися на інших сайтах More sharing options...
dvk Опубліковано: 11 березня 2012 Поділитись Опубліковано: 11 березня 2012 По арматуре или уголкам в качестве перемычек выглядит очень заманчиво. Быстро, удобно и всё такое. Думаю, что с этим никто не спорит, но интересует вопрос долговечности, не поржавеет ли металл, не выступит ли ржавчина внизу или сбоку. Что будет лет через 10 скажем? Там нечему ржаветь, внутри высохших газоблоков воды нет, сухо. Проверяется, когда сверлишь дырки под дюбеля или трубы. Двухэтажный дом всю осень до декабря простоял без крыши вообще, с нового года простоял под супердиффузионной мембраной только, без кровли. Результат проб: внутри газоблоков немного сыро только в в верхних 3х рядах второго этажа - ну очень они мокли все это время. Начиная с 4го ряда сверху абсолютно сухие блоки на всю глубину. Металл на перемычках после затвердевания клея практически не несет нагрузки - проверялось вырезанием уголков (рассказывал в какой-то из тем в прошлом месяце). Посилання на коментар Поділитися на інших сайтах More sharing options...
LITMANENko Опубліковано: 12 березня 2012 Поділитись Опубліковано: 12 березня 2012 dvk, вы бы тему создали отдельную по перемычкам с уголками. Описали бы подробно технологию, инструмент. Вот мне например интересно на каком расстоянии их надо устанавливать от внутренней стороны блока и от внешнего. Я так понимаю, что один уголок будет целиком в помещении (и не будет промерзать) а второй уголок будет полностью снаружи, но холод не будет передавать в помещение. Я понимаю, что вы об этом уже писали, но ваши комментарии разрозненные по разным темам и их приходится искать. Было бы удобнее в одной теме обсудить очевидные преимущества этого метода, метода с арматурой и конечно возможные недостатки. Как знать, может кто то уже нашел чем этот вариант плох. Посилання на коментар Поділитися на інших сайтах More sharing options...
YaOlejka Опубліковано: 12 березня 2012 Поділитись Опубліковано: 12 березня 2012 dvk, вы бы тему создали отдельную по перемычкам с уголками. Описали бы подробно технологию, инструмент. Вот мне например интересно на каком расстоянии их надо устанавливать от внутренней стороны блока и от внешнего.поддержу, тоже очень интересует этот вопрос. Посилання на коментар Поділитися на інших сайтах More sharing options...
Рина Опубліковано: 13 березня 2012 Поділитись Опубліковано: 13 березня 2012 не буду создавать новую тему, может тут мне "газоблочники" помогут))) чем вы гидроизолировали фундамент под газоблок? правда ли, что под этот материал можно использовать только битумную мастику? Посилання на коментар Поділитися на інших сайтах More sharing options...
Катерина Ш Опубліковано: 13 березня 2012 Поділитись Опубліковано: 13 березня 2012 не буду создавать новую тему, может тут мне "газоблочники" помогут))) чем вы гидроизолировали фундамент под газоблок? правда ли, что под этот материал можно использовать только битумную мастику? горизонтальная гидроизоляция лучше в исполнении из рулонных материалов, вертикальная - битумная мастика.. 1 Посилання на коментар Поділитися на інших сайтах More sharing options...
Рина Опубліковано: 13 березня 2012 Поділитись Опубліковано: 13 березня 2012 горизонтальная гидроизоляция лучше в исполнении из рулонных материалов вот и мы к этому склоняемся, а нам рассказывают, что в нашем районе с повышенной сейсмо-опасностью это запрещено... сказки? Посилання на коментар Поділитися на інших сайтах More sharing options...
Катерина Ш Опубліковано: 13 березня 2012 Поділитись Опубліковано: 13 березня 2012 вот и мы к этому склоняемся, а нам рассказывают, что в нашем районе с повышенной сейсмо-опасностью это запрещено... сказки? А что за район с повышенной сейсмоопасностью? Честно, я не профи в этом вопросе, но о таком слышу впервые..... Посилання на коментар Поділитися на інших сайтах More sharing options...
Рина Опубліковано: 13 березня 2012 Поділитись Опубліковано: 13 березня 2012 А что за район с повышенной сейсмоопасностью? Закарпатский Посилання на коментар Поділитися на інших сайтах More sharing options...
Владим61 Опубліковано: 13 березня 2012 Поділитись Опубліковано: 13 березня 2012 Не сказки. В сейсмоопасных районах применение горизонтальной рулонной гидроизоляции действительно запрещено. Только цементным раствором. Там вообще много сложностей со строительством. Если интересно: (ссылка устарела) Добавлено через 2 минуты P.S. Я сам вовсе не спец в строительстве, но "гугля" весьма полезная штука. Посилання на коментар Поділитися на інших сайтах More sharing options...
Катерина Ш Опубліковано: 13 березня 2012 Поділитись Опубліковано: 13 березня 2012 Не сказки. В сейсмоопасных районах применение горизонтальной рулонной гидроизоляции действительно запрещено. Только цементным раствором. Там вообще много сложностей со строительством. Если интересно: (ссылка устарела) Так тогда и битумная мастика не подходит. Посилання на коментар Поділитися на інших сайтах More sharing options...
Владим61 Опубліковано: 13 березня 2012 Поділитись Опубліковано: 13 березня 2012 естественно. Посилання на коментар Поділитися на інших сайтах More sharing options...
Рина Опубліковано: 13 березня 2012 Поділитись Опубліковано: 13 березня 2012 капец конечно! Посилання на коментар Поділитися на інших сайтах More sharing options...
Рекомендовані повідомлення
Створіть акаунт або увійдіть у нього для коментування
Ви маєте бути користувачем, щоб залишити коментар
Створити акаунт
Зареєструйтеся для отримання акаунта. Це просто!
Зареєструвати акаунтУвійти
Вже зареєстровані? Увійдіть тут.
Увійти зараз