Lukreciya Опубліковано: 23 лютого 2012 Поділитись Опубліковано: 23 лютого 2012 После двух с половиной лет метаний между: восстанавливать/сносить, строить/выплачивать кредит по земле и обретя в этом году почву под ногами, пришла к выводу - строить, на месте старого дома (о нем – в фотоальбоме). Видимые для меня плюсы такого варианта: 1. Идеальное расположение дома на участке, 2. Подведенные к дому коммуникации, 3. Возможность проживания в доме в период возведения коробки, 4. Экономия на согласовании проекта. Ощутимые минусы: 1. Необходимость «вписывания» в существующие размеры (+0,5 м по периметру). ....больше не нашла. Это мое видение ситуации, а интересно услышать мнение мэтров. Спасибо. Пожалуйста. Посилання на коментар Поділитися на інших сайтах More sharing options...
Lukreciya Опубліковано: 23 лютого 2012 Автор Поділитись Опубліковано: 23 лютого 2012 Участок находится в селе. Ширина участка 24 м. Расположение построек на участке на сегодня выглядит вот так Посилання на коментар Поділитися на інших сайтах More sharing options...
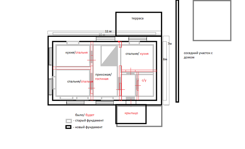
Lukreciya Опубліковано: 23 лютого 2012 Автор Поділитись Опубліковано: 23 лютого 2012 Границы существующего дома на рисунке обозначены серым цветом, а вокруг него черным - новый фундамент. И мое видение расположения комнат в новом доме + терраса. В доме предполагается постоянное проживание одного человека и временное ( раз в неделю зимой и два раза -летом) супружеской пары. Посилання на коментар Поділитися на інших сайтах More sharing options...
DVIJOK Опубліковано: 23 лютого 2012 Поділитись Опубліковано: 23 лютого 2012 А как вы себе представляете проживание в старом доме, во время возведения нового? Вы хотите новый фундамент заливать прямо впритык к старому? Перегородки будете опирать на старый фундамент? По планировке - не очень. Гостиная получается сплошь в транзитах, плюс длинная. Мебель там не встанет. В туалет ходить через тамбур будете(хотя это не критично)? Посилання на коментар Поділитися на інших сайтах More sharing options...
Archist Опубліковано: 23 лютого 2012 Поділитись Опубліковано: 23 лютого 2012 А как вы себе представляете проживание в старом доме, во время возведения нового? Вы хотите новый фундамент заливать прямо впритык к старому? Перегородки будете опирать на старый фундамент? По планировке - не очень. Гостиная получается сплошь в транзитах, плюс длинная. Мебель там не встанет. В туалет ходить через тамбур будете(хотя это не критично)? Ага. И смысл валить старый дом, чтобы повторить его планировку в новом? Посилання на коментар Поділитися на інших сайтах More sharing options...
Alisa3 Опубліковано: 24 лютого 2012 Поділитись Опубліковано: 24 лютого 2012 Может всё же развалить старый дом? У моей подруге развалили кирпичный двухэтажный дом и за сыпали его в фундамент за 5 тыщ. грн. и за пару дней буквально. Посилання на коментар Поділитися на інших сайтах More sharing options...
Archist Опубліковано: 24 лютого 2012 Поділитись Опубліковано: 24 лютого 2012 Может всё же развалить старый дом? У моей подруге развалили кирпичный двухэтажный дом и за сыпали его в фундамент за 5 тыщ. грн. и за пару дней буквально. А еще при разборке старых домов часто клады находят... Посилання на коментар Поділитися на інших сайтах More sharing options...
Lukreciya Опубліковано: 24 лютого 2012 Автор Поділитись Опубліковано: 24 лютого 2012 А как вы себе представляете проживание в старом доме, во время возведения нового? Вы хотите новый фундамент заливать прямо впритык к старому? Перегородки будете опирать на старый фундамент? По планировке - не очень. Гостиная получается сплошь в транзитах, плюс длинная. Мебель там не встанет. В туалет ходить через тамбур будете(хотя это не критично)? Проживание имелось в виду периодическое пребывание. Стройка то припадет как раз на лето, самое время побыть на свежем воздухе. Знаю людей, которые семьями жили в старом доме весь период возведения коробки. Фундамент заливать на расстоянии 30-40 см от старого дома. Старый фундамент - понятие относительное. местами его и вовсе нет. Насчет планировки - посоветуйте что-то. Туалет через тамбур - не смущает. Добавлено через 1 минуту Ага. И смысл валить старый дом, чтобы повторить его планировку в новом? Да я бы и не валила его. Он сам валится. Дерево все сплошь трухлое. Добавлено через 1 минуту А еще при разборке старых домов часто клады находят... Не с нашим счастьем))) Посилання на коментар Поділитися на інших сайтах More sharing options...
Татьяна5 Опубліковано: 24 лютого 2012 Поділитись Опубліковано: 24 лютого 2012 Снесите и стройте Тяжело себе представляю "свежий воздух" в эпицентре стройки Посилання на коментар Поділитися на інших сайтах More sharing options...
DVIJOK Опубліковано: 25 лютого 2012 Поділитись Опубліковано: 25 лютого 2012 Проживание имелось в виду периодическое пребывание. Стройка то припадет как раз на лето, самое время побыть на свежем воздухе. Знаю людей, которые семьями жили в старом доме весь период возведения коробки. Фундамент заливать на расстоянии 30-40 см от старого дома. Старый фундамент - понятие относительное. местами его и вовсе нет. Насчет планировки - посоветуйте что-то. Туалет через тамбур - не смущает. Резон жить в старом при возведении нового, есть только когда живешь постоянно и второго места жительства просто нет. Как правило геморрой наступает потом. когда коробка возведена, а нужно разрушать старый и начинается вынос мусора через окна и двери - медленно, осторожно и матюкаясь почему не сделал этого раньше. Насчет планировки - чисто на словах посоветую сделать в одной половине спальни, в другой кухню и гостиную. Разделить их холом, в котором есть входы в санузел. советую сесть и нормально порисовать. Посилання на коментар Поділитися на інших сайтах More sharing options...
ionico Опубліковано: 25 лютого 2012 Поділитись Опубліковано: 25 лютого 2012 У меня вопрос. В чём выражается стиль кантри? Посилання на коментар Поділитися на інших сайтах More sharing options...
Lukreciya Опубліковано: 26 лютого 2012 Автор Поділитись Опубліковано: 26 лютого 2012 У меня вопрос. В чём выражается стиль кантри? На сегодняшний день - в желании построить на месте старого сельского дома что-то похожее, сохранив внешнюю видимость идентичности построек. Пы.Сы. Дворец из стекла и бетона среди соседских домов будет смотреться просто нелепо. Добавлено через 4 минуты Снесите и стройте Тяжело себе представляю "свежий воздух" в эпицентре стройки Ну зачем же в эпицентре? Разве Вы весь день летом проводите в доме? У нас участок 20 соток, при ширине 24 м. Сами просчитаете длину? А вот туалет и душ в старом доме несколько раз в день будут очень полезны. Добавлено через 8 минут Резон жить в старом при возведении нового, есть только когда живешь постоянно и второго места жительства просто нет. Как правило геморрой наступает потом. когда коробка возведена, а нужно разрушать старый и начинается вынос мусора через окна и двери - медленно, осторожно и матюкаясь почему не сделал этого раньше. Насчет планировки - чисто на словах посоветую сделать в одной половине спальни, в другой кухню и гостиную. Разделить их холом, в котором есть входы в санузел. советую сесть и нормально порисовать. Второе место жительства находится на расстоянии 60 км., в другую сторону от Киева. Есть еще один момент почему не спешу сносить старый дом - перестраховка. На случай крайне критической ситуации, когда не удастся возвести коробку и накрыться за один сезон. Насчет разборки и выноса старого дома думаю, что не все так критично, учитывая то, что дом деревянный и трухлявый. За совет по планировке - спасибоСпальни надо отделить от гостиной однозначно. Подумала об этом же сегодня утром, провожая свою очень "тихую" куму. Посилання на коментар Поділитися на інших сайтах More sharing options...
seyvalter Опубліковано: 27 лютого 2012 Поділитись Опубліковано: 27 лютого 2012 Есть еще один момент почему не спешу сносить старый дом - перестраховка. На случай крайне критической ситуации, когда не удастся возвести коробку и накрыться за один сезон. . Ви просто не уявляєте - наскільки може мотивувати усвідомлення того що відступати вже нікуди :D.... Посилання на коментар Поділитися на інших сайтах More sharing options...
Lukreciya Опубліковано: 27 лютого 2012 Автор Поділитись Опубліковано: 27 лютого 2012 Ви просто не уявляєте - наскільки може мотивувати усвідомлення того що відступати вже нікуди :D.... Но за то я прекрасно осознаю то, что нарисованные от руки деньги не принимают к оплате)) Посилання на коментар Поділитися на інших сайтах More sharing options...
seyvalter Опубліковано: 27 лютого 2012 Поділитись Опубліковано: 27 лютого 2012 Но за то я прекрасно осознаю то, что нарисованные от руки деньги не принимают к оплате)) Значить погано малюєте . Так само було страшно зривати кришу з будинку (надбудовував 2- й поверх), а як зірвав - то за тиждень вигнали і накрили (а справа була в жовтні місяці). Головне матеріал підзібрати - а там раз-два і все. Посилання на коментар Поділитися на інших сайтах More sharing options...
Lukreciya Опубліковано: 27 лютого 2012 Автор Поділитись Опубліковано: 27 лютого 2012 Значить погано малюєте . Так само було страшно зривати кришу з будинку (надбудовував 2- й поверх), а як зірвав - то за тиждень вигнали і накрили (а справа була в жовтні місяці). Головне матеріал підзібрати - а там раз-два і все. Кто на что учился.)) Как то мне пришлось ждать целый год пока клиент рассчитается за поставленный товар. Посилання на коментар Поділитися на інших сайтах More sharing options...
Lukreciya Опубліковано: 27 лютого 2012 Автор Поділитись Опубліковано: 27 лютого 2012 До речі, малювати вчимось разом з другою половинкою.)) Ось що вийшло. Посилання на коментар Поділитися на інших сайтах More sharing options...
DVIJOK Опубліковано: 27 лютого 2012 Поділитись Опубліковано: 27 лютого 2012 Опять двадцать пять. Причем санузел по габаритам не уступает ни спальням ни гостиной. Вы танцавать там будете? Возьмите уже листок в клетку и малюйте. Попытки использовать для рисования компьютер не всегда полезны. Посилання на коментар Поділитися на інших сайтах More sharing options...
Lukreciya Опубліковано: 27 лютого 2012 Автор Поділитись Опубліковано: 27 лютого 2012 Опять двадцать пять. Причем санузел по габаритам не уступает ни спальням ни гостиной. Вы танцавать там будете? Возьмите уже листок в клетку и малюйте. Попытки использовать для рисования компьютер не всегда полезны. Если по клеточкам рисовать, то получается что-то такое. Посилання на коментар Поділитися на інших сайтах More sharing options...
DVIJOK Опубліковано: 27 лютого 2012 Поділитись Опубліковано: 27 лютого 2012 Вы попробуйте обратиться все же к специалисту. Пусть вам нарисует, нормально. Типа вот такого... Посилання на коментар Поділитися на інших сайтах More sharing options...
Lukreciya Опубліковано: 28 лютого 2012 Автор Поділитись Опубліковано: 28 лютого 2012 Вы попробуйте обратиться все же к специалисту. Пусть вам нарисует, нормально. Типа вот такого... за совет спасибо. Идею разделения усвоила. Но у меня были свои значимые пункты, которые учитывались при планировке: 1. чтобы окна большей спальни выходили на восточную сторону и были на противоположной стороне от террасы 2. чтобы стены гостиной и спальни были общими, поскольку в стене будет проходить "коминь" 3. санузел 4,8м2 мне мало. пы.сы. очень понравилась гостиная.) Посилання на коментар Поділитися на інших сайтах More sharing options...
Lukreciya Опубліковано: 28 лютого 2012 Автор Поділитись Опубліковано: 28 лютого 2012 Благодаря форуму начали прорисовываться фасады будущего дома.) выбираем между.. Посилання на коментар Поділитися на інших сайтах More sharing options...
Lukreciya Опубліковано: 7 березня 2012 Автор Поділитись Опубліковано: 7 березня 2012 Метафизика. или что-то подобное Когда в голове уже зародилась идея строительства, невольно начинаешь присматриваться к домам вдоль дороги на работу, в командировках, на отдыхе. И твоя идея начинает приобретать более конкретные черты, постепенно обрастая деталями. Соратники находятся случайно и непредсказуемо. Сегодня поздравляла докторов с наступающим праздником, одна из коллег заговорила о своем сыне - сын дистрибьютор по стройматериалам оказался. К чему я это? А, вспомнила! Сила мысли способна консолидировать вокруг себя энергию, необходимую для воплощения любой мечты в реальность. Посилання на коментар Поділитися на інших сайтах More sharing options...
Lukreciya Опубліковано: 29 березня 2012 Автор Поділитись Опубліковано: 29 березня 2012 Остановились на вот таком варианте планировки, учитывающем пожелания проживающих в доме. ) Через пару недель начинаем лить фундамент 7,5*11,5 Посилання на коментар Поділитися на інших сайтах More sharing options...
Рекомендовані повідомлення
Створіть акаунт або увійдіть у нього для коментування
Ви маєте бути користувачем, щоб залишити коментар
Створити акаунт
Зареєструйтеся для отримання акаунта. Це просто!
Зареєструвати акаунтУвійти
Вже зареєстровані? Увійдіть тут.
Увійти зараз