loader Опубліковано: 24 лютого 2012 Поділитись Опубліковано: 24 лютого 2012 Добрый всем день, Вобщем начали нас последнее время посещать мысли о часном доме в пригороде. Критической необходимости в этом нету, но "хочется", поэтому решили обдумать все варианты неспешно. Исходные данные: - семья пока из 2х человек - участок 21(фасад)х40м, фасад на юго-восток - дом планируется для постоянного проживания, гараж в доме с целью экономии ширины фасада, цокольного этажа не будет - дополнительно будет за домом небольшая банька с терассой, мангалом и хозблоком Перелопатив тонны стандартных проэктов пока наиболее близкие к тому что мы хотим: - Яспис 5 www.tmv.com.ua/ru/mtmstyl/6569/ - Дом в буддлеях www.archon.com.ua/proekt_doma/%D0%B4%D0%BE%D0%BC_%D0%B2_%D0%B1%D1%83%D0%B4%D0%B4%D0%BB%D0%B5%D1%8F%D1%85/m4ad2fee3f266e В ясписе наиболее нравится планировка мансарды. Не нравится - наличие "кабинета" на первом этаже, сложноватый конструктив, угол наклона крыши. В доме в будлеях - нравится внешний вид в т.ч. вариант отделки, угол крыши, вцелом планировка первого этажа, но по нашему мнению маловата кухня и ширина гаража, поэтому проэкт думаем реализовать в слегка увеличиных размерах дома до 13.50м на 12.50м (внешние размеры, внутри увеличение предполагаем будет скромнее т.к. материал скорее всего будет кирпич, но если есть мысли по оригинальным размерам - тоже интересно). Из дополнительных изменений: - бокового балкона не будет - камин/дымоход будет смещен на место где сейчас ТВ - комната над гаражом будет спортзалом по назначению Вобщем мысли/критика/идеи приветствуются Посилання на коментар Поділитися на інших сайтах More sharing options...
vopros'nik Опубліковано: 24 лютого 2012 Поділитись Опубліковано: 24 лютого 2012 Оба проекта достойны обсуждения. Я б не советовала отметать мысли о комнате на первом этаже, всегда хорошо иметь спальню на первом, особенно если возраст приближается к ...., пока молодые мы этого не замечаем. Посилання на коментар Поділитися на інших сайтах More sharing options...
ionico Опубліковано: 25 лютого 2012 Поділитись Опубліковано: 25 лютого 2012 (змінено) Оба проекта по ориентации не очень. Например, проект "Дом в буддлеях" имеет кухню, с/узлы, гараж, которые занимают юго-восточную сторону дома, зато гостиная, спальни - на северо-запад, северо-восток. Змінено 25 лютого 2012 користувачем ionico Посилання на коментар Поділитися на інших сайтах More sharing options...
vopros'nik Опубліковано: 25 лютого 2012 Поділитись Опубліковано: 25 лютого 2012 Оба проекта по ориентации не очень. Например, проект "Дом в буддлеях" имеет кухню, с/узлы, гараж, которые занимают юго-восточную сторону дома, зато гостиная, спальни - на северо-запад, северо-восток. Я думаю вы подскажете как надо, товарищь повернет в нужном направлении - и поменяет ориентацию:D Посилання на коментар Поділитися на інших сайтах More sharing options...
loader Опубліковано: 25 лютого 2012 Автор Поділитись Опубліковано: 25 лютого 2012 Оба проекта по ориентации не очень. Например, проект "Дом в буддлеях" имеет кухню, с/узлы, гараж, которые занимают юго-восточную сторону дома, зато гостиная, спальни - на северо-запад, северо-восток. А что именно не очень в такой ориентации с Вашей точки зрения? У меня примерно следующие мысли (поправьте если где-то заблуждаюсь): Гараж: вариантов нет, т.к. фасад юго-восток, но внешняя стена гаража/спортзала будет на северо-восток т.е. не солнечная, окон там минимум, вроди бы неплохо. Кухня: смотрит на фасад юго-восток, внешняя стена на юго-запад, т.е. свет будет попадать и обзор двора перед домом. Столовая: окно на юго-запад, будет достаточно освещенная Гостинная: окно на северозапад (в обоих проэктах), в яписе + к этому еще окно на юго-запад: окончательно не решили, но думаю что возможно света из столовой (без перестенков) хватит, да и окно на северозапад большое. Переместить гостинную в фронтальную часть дома нет желания - т.к. концепция в том чтобы иметь выход на задний двор с открытой терассой, возможно когда с басейном (эх, говорить не мешки ворочать...) Спальня: выходит на северозапад, мне этот вариант субьективно нравится по 2м причинам: 1. хочу спальню с выходом на внутренний двор 2. необходимости прямого света в спальне не вижу. В принципе можно и окно в крыше прорубить :D на юго-запад если нужно, да и перенести ее на любую другую сторону не проблема, так что готов к аргументам. Посилання на коментар Поділитися на інших сайтах More sharing options...
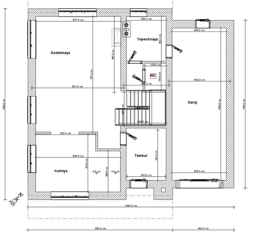
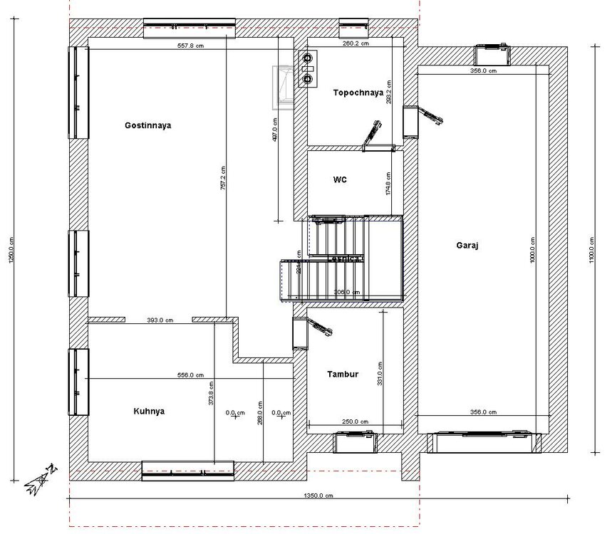
loader Опубліковано: 29 лютого 2012 Автор Поділитись Опубліковано: 29 лютого 2012 Вот последние мысли по первому этажу, желающие могут покоментировать Посилання на коментар Поділитися на інших сайтах More sharing options...
Artyomovets Опубліковано: 29 лютого 2012 Поділитись Опубліковано: 29 лютого 2012 Вот последние мысли по первому этажу, желающие могут покоментировать для меня на первом этаже обязательна кладовка для съедобных припасов, пылесоса, швабры и гардеробная для сезонных вещей. у вас этих помещений нет. поход в санузел - это просто-таки квест... Посилання на коментар Поділитися на інших сайтах More sharing options...
Катерина Ш Опубліковано: 29 лютого 2012 Поділитись Опубліковано: 29 лютого 2012 Вот последние мысли по первому этажу, желающие могут покоментировать Да, туалет из топочной - это круто! Посилання на коментар Поділитися на інших сайтах More sharing options...
Artyomovets Опубліковано: 29 лютого 2012 Поділитись Опубліковано: 29 лютого 2012 Да, туалет из топочной - это круто! мало того, что из топочной. надо выйти из дома, зайти в гараж, а потом уже пройти топочную... я представляю походы друзей, которые приехали на пиво... Посилання на коментар Поділитися на інших сайтах More sharing options...
loader Опубліковано: 29 лютого 2012 Автор Поділитись Опубліковано: 29 лютого 2012 для меня на первом этаже обязательна кладовка для съедобных припасов, пылесоса, швабры и гардеробная для сезонных вещей. у вас этих помещений нет. поход в санузел - это просто-таки квест... 3 метра стены в тамбуре будут под шкаф-купе для "пылесоса, швабры и гардеробная для сезонных вещей" кладовка для еды - както не вижу необходимости, т.к. будет погреб, для остального места на кухне хватит. вход в санузел сразу под лесницей, в чем квест? Посилання на коментар Поділитися на інших сайтах More sharing options...
loader Опубліковано: 29 лютого 2012 Автор Поділитись Опубліковано: 29 лютого 2012 мало того, что из топочной. надо выйти из дома, зайти в гараж, а потом уже пройти топочную... я представляю походы друзей, которые приехали на пиво... в топочную вход из санузла + из гаража. в санузел вход есть. из гаража вход нужен т.к. там выход на задний двор и вероятно будет твердотопливный котел. из гаража возможно будет вход еще в тамбур. возможно вход в топочную сделаю следующим за входом в санузел, гараж будет ниже на 0.5м от уровня пола дома, т.е может под лесницей дверь и разместится... нужно подумать. Посилання на коментар Поділитися на інших сайтах More sharing options...
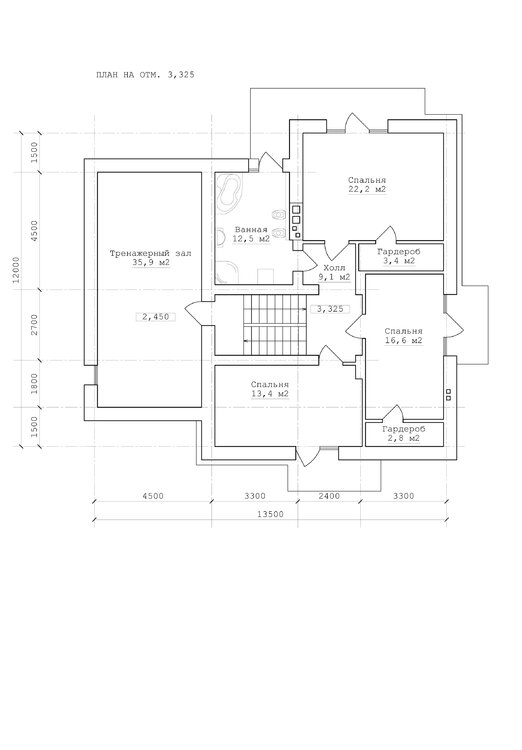
Катерина Ш Опубліковано: 29 лютого 2012 Поділитись Опубліковано: 29 лютого 2012 План первого этажа и внешний вид дома Это мне очень нравиться))) Особенно экстерьер! Посилання на коментар Поділитися на інших сайтах More sharing options...
Artyomovets Опубліковано: 29 лютого 2012 Поділитись Опубліковано: 29 лютого 2012 быстро удалили... там первый этаж был просто классный. на уровне 3.325... Посилання на коментар Поділитися на інших сайтах More sharing options...
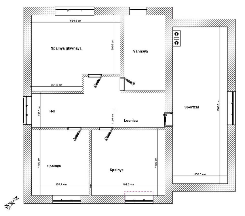
Archer-1 Опубліковано: 29 лютого 2012 Поділитись Опубліковано: 29 лютого 2012 Первый и второй этажи, внешний вид дома 2 Посилання на коментар Поділитися на інших сайтах More sharing options...
Archer-1 Опубліковано: 29 лютого 2012 Поділитись Опубліковано: 29 лютого 2012 там первый этаж был просто классный. на уровне 3.325... ага вот поэтому и удалил Посилання на коментар Поділитися на інших сайтах More sharing options...
Катерина Ш Опубліковано: 29 лютого 2012 Поділитись Опубліковано: 29 лютого 2012 ага вот поэтому и удалил Все равно очень нравиться)))) Посилання на коментар Поділитися на інших сайтах More sharing options...
Archer-1 Опубліковано: 1 березня 2012 Поділитись Опубліковано: 1 березня 2012 ишо один вариант Посилання на коментар Поділитися на інших сайтах More sharing options...
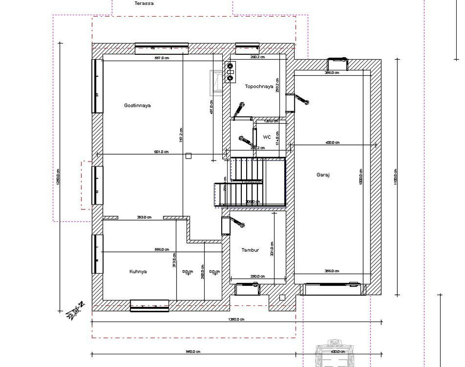
ionico Опубліковано: 1 березня 2012 Поділитись Опубліковано: 1 березня 2012 Вот последние мысли по первому этажу, желающие могут покоментировать Как-то гараж вытянут сильно, вы планируете его на 2 машины, чтобы одна за другой становилась? Посилання на коментар Поділитися на інших сайтах More sharing options...
Artyomovets Опубліковано: 1 березня 2012 Поділитись Опубліковано: 1 березня 2012 Archer-1, а в каких вы состоите отношениях с loader? 1 Посилання на коментар Поділитися на інших сайтах More sharing options...
loader Опубліковано: 1 березня 2012 Автор Поділитись Опубліковано: 1 березня 2012 (змінено) Как-то гараж вытянут сильно, вы планируете его на 2 машины, чтобы одна за другой становилась? Да в этом варианте так и запланировано, но целесообразность пока обдумываю... ЗЫ. прилепил последние творения... Змінено 1 березня 2012 користувачем loader Посилання на коментар Поділитися на інших сайтах More sharing options...
Archer-1 Опубліковано: 1 березня 2012 Поділитись Опубліковано: 1 березня 2012 Archer-1, а в каких вы состоите отношениях с loader? да вроде никаких Посилання на коментар Поділитися на інших сайтах More sharing options...
vopros'nik Опубліковано: 1 березня 2012 Поділитись Опубліковано: 1 березня 2012 Archer-1, а в каких вы состоите отношениях с loader? Может у человека раздвоение личности??? Я вот сразу не догнала что это разные люди, респект за внимательность. Посилання на коментар Поділитися на інших сайтах More sharing options...
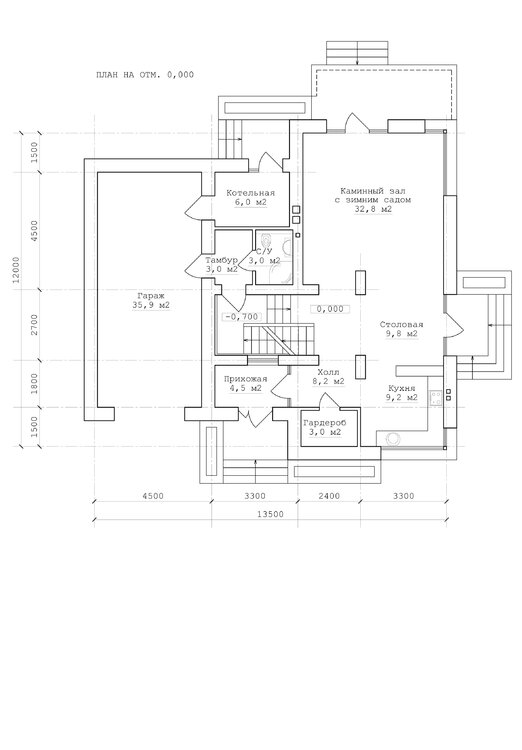
loader Опубліковано: 1 березня 2012 Автор Поділитись Опубліковано: 1 березня 2012 Может у человека раздвоение личности??? Я вот сразу не догнала что это разные люди, респект за внимательность. та не, вроди бы разные люди... та и собственно Archer-1 выложил очень интересные варианты ясписа и уровень их слегка отличается от моих , но я все таки продолжаю мучать нечто усредненное в основном из-за небольшой кухни в ясписе и чуть более сложной конструкции.... хотя по ощущениям еще далековато от финального варианта. выкладываю последние мысли... 1 Посилання на коментар Поділитися на інших сайтах More sharing options...
Archist Опубліковано: 1 березня 2012 Поділитись Опубліковано: 1 березня 2012 та не, вроди бы разные люди... та и собственно Archist_1 выложил очень интересные варианты ясписа и уровень их слегка отличается от моих , но я все таки продолжаю мучать нечто усредненное в основном из-за небольшой кухни в ясписе и чуть более сложной конструкции.... хотя по ощущениям еще далековато от финального варианта. Archist то тут причем? ;) Посилання на коментар Поділитися на інших сайтах More sharing options...
loader Опубліковано: 1 березня 2012 Автор Поділитись Опубліковано: 1 березня 2012 Archist то тут причем? ;) пардон, подправил Посилання на коментар Поділитися на інших сайтах More sharing options...
Рекомендовані повідомлення
Створіть акаунт або увійдіть у нього для коментування
Ви маєте бути користувачем, щоб залишити коментар
Створити акаунт
Зареєструйтеся для отримання акаунта. Це просто!
Зареєструвати акаунтУвійти
Вже зареєстровані? Увійдіть тут.
Увійти зараз