Сергей_84 Опубліковано: 5 березня 2012 Поділитись Опубліковано: 5 березня 2012 Долго не решался создать подобную тему пока меня не натолнкул на это один из форумчан, который находится на стадии строительства коробки. Больше не потому, что нечего сказать, а потому что мало фото, которыми можно было бы привести пример, я никогда не акцентировал внимание при фотосетах на такого рода моменты... Но надеюсь вместе с уже построившимися и коллегами мы сможем помочь многим строящимся, а также самим себе... Ведь не секрет, что заходя на дом для монтажа инженерных сетей сталкиваешься с ситуацией бестолкового отношения к подготовительным этапам строителямии, прорабом, когда абсолютно ничего не предусмотрено и не заложено. И на этой стадии как правило заказчик начинает узнавать очень много нового и прозревать от количества косяков, которые заставят вложить дополнительное количество денег... Затронуть хочется следующие моменты: 1. Что предусмотреть для ввода канализации в дом и ее разводки. Место ввода 2. Что предусмотреть для ввода воды в дом. Место размещения гидроаккумуляторов. 3. Подготовка под фановую канализацию 4. Дымоход и все,что связано с котлом. 5. Высота установки терасных и входных дверей 6. Необходимая толщина стяжки. 7. Ниши под коммуникации и стояки Хочется вести эту ветку не в режиме лекции, в режиме обсуждения с вопросами строящихся,мого в личку получаю вопросов на подобную тематику, поэтому захотелось соединить все воедино и сделать более информативным.. 25 Посилання на коментар Поділитися на інших сайтах More sharing options...
troll_9000 Опубліковано: 5 березня 2012 Поділитись Опубліковано: 5 березня 2012 Оштукатуркеые стены не забудьте Посилання на коментар Поділитися на інших сайтах More sharing options...
Сергей_84 Опубліковано: 5 березня 2012 Автор Поділитись Опубліковано: 5 березня 2012 Оштукатуркеые стены не забудьте на эту тему есть на форуме отдельная ветка от Корни..там столько копий поломано....жуть Хотя это наверное относится больше не к "предусмотреть", а просто взять и сделать... Здесь все таки хочется затронуть 100% однозначные моменты. которые не требует воен)))))и не сделав которые иногда уже и сделать то не сможешь Хотя врядли получится наверное... Вобщем жду вопросов от строящихся чтобы было от чего отталкиваться... Посилання на коментар Поділитися на інших сайтах More sharing options...
troll_9000 Опубліковано: 5 березня 2012 Поділитись Опубліковано: 5 березня 2012 Вобщем жду вопросов от строящихся чтобы было от чего отталкиваться... Монтажник заходит на стадии проектирования И все вопросы снимаются 2 Посилання на коментар Поділитися на інших сайтах More sharing options...
bgt Опубліковано: 5 березня 2012 Поділитись Опубліковано: 5 березня 2012 Мое мнение, что до начала копки траншей или котлована под фундамент, нужно понимать что Вы строите. Сколько с/у и расстановка в них, топочная, кухня. Также нужно знать: - габариты оборудования топочной (котел, бойлер, гидрик, фильтрация, может ТТ и ТА); - расположение с/у и кухонной мойки; - расположение септика; - расположение скважины; - проходы через крышу (фан и дымоход); - система отопления (радиаторы и ТП), для высот стяжки... Все вышеперечисленное это только верхушка айсберга, ибо еще есть электрика, вентиляция и кондиционирование. А в этих системах тоже много подводных камней... Поэтому, определившись с проектом, думаю стоит проконсультироваться у потенциальных исполнителей о этапах выполнения работ. Или возложить эту функция на тех надзор или прораба которые имеют опыт в строительстве (к тех надзору или прорабу не отношу старшего по возрасту дядю Васю, которого слушаются «вуйки» работающие на объекте). Посилання на коментар Поділитися на інших сайтах More sharing options...
B.S.V. Опубліковано: 5 березня 2012 Поділитись Опубліковано: 5 березня 2012 Молодца. Может, меньше отбойниками придется работать. Посилання на коментар Поділитися на інших сайтах More sharing options...
Сергей 31 Опубліковано: 5 березня 2012 Поділитись Опубліковано: 5 березня 2012 Может, меньше отбойниками придется работать. И куда в таком случае ты свои пасочки дениш? Посилання на коментар Поділитися на інших сайтах More sharing options...
Korni Опубліковано: 5 березня 2012 Поділитись Опубліковано: 5 березня 2012 Проё*бы проектантов - наши деньги. Посилання на коментар Поділитися на інших сайтах More sharing options...
B.S.V. Опубліковано: 5 березня 2012 Поділитись Опубліковано: 5 березня 2012 И куда в таком случае ты свои пасочки дениш? Пусть лежат, кушать не просят. И так, в связи с улучшением организации работы, уже треть- отдыхает. А если Серега на досуге все расскажет, то половина будет отдыхать. Посилання на коментар Поділитися на інших сайтах More sharing options...
Сергей_84 Опубліковано: 5 березня 2012 Автор Поділитись Опубліковано: 5 березня 2012 Монтажник заходит на стадии проектирования И все вопросы снимаются это оооочень большая редкость... Посилання на коментар Поділитися на інших сайтах More sharing options...
Korni Опубліковано: 5 березня 2012 Поділитись Опубліковано: 5 березня 2012 это оооочень большая редкость... Кхм.... 20% новых заказчиков. Посилання на коментар Поділитися на інших сайтах More sharing options...
Сергей_84 Опубліковано: 5 березня 2012 Автор Поділитись Опубліковано: 5 березня 2012 Молодца. Может, меньше отбойниками придется работать. мен надоело видеть криво торчащую канализацию с раструбом на высоте 20 см над землей и наглухо забетонированую монолитом.... Мне не нравится когда заказчик смотрит на меня с недоумением при слове "фановая канализация".. Мне не нравится когда первая супенька лесници имеет такую же высоту как и последующие при еще не залитой чистовой сятжке... Мне не нравится когда дверь на терасу стоит на высоте 6 см от чернового пола...а оказывается надо делать теплый пол Когда труба ввода воды торчит херн знает где в центре котельной Мне не нравится, что иногда канализация 50 диаметра(гильза под полиэтиленовую трубу) проложена с 45 углами, типа чтобы легче было вставить 32 полиэтиленку и т....й строитель смотрит на меня и с улыбкой говорит , что старались сделать плавно, б....дь... Меня бесит когда выход из стены из загильзованного дымохода сделан не там , где нужно , а где закончилась метровая стандартная труба в стене и поэтому котел висит на высоте 1 м от пола... Реально иногда создается впечатление , что это все делают умолишенные деб...лы.... Не знаю как Вы, но мне хотелось бы чтобы таких косяков было бы меньше... Добавлено через 53 секунды Кхм.... 20% новых заказчиков. говорю же...боооольшая редкость...каждый пятый это мало....надо приучивать людей заранее думать о будущих работах...а не когда "вчера надо начинать" Добавлено через 1 минуту Проё*бы проектантов - наши деньги. на самом деле мне бы хотелось зарабатывать деньги монтажем системы отопления, а не разваливанием стяжек и стен... не секрет, что человекочасы за такую работу гораздо меньше и подобные работы не выгодны никому..ни заказчику, ни теплотехникам...хотя их приходится делать 6 Посилання на коментар Поділитися на інших сайтах More sharing options...
REYDER Опубліковано: 5 березня 2012 Поділитись Опубліковано: 5 березня 2012 Мне не нравится... а шо делать... Родина наша. Любить ее надо. Посилання на коментар Поділитися на інших сайтах More sharing options...
Сергей_84 Опубліковано: 5 березня 2012 Автор Поділитись Опубліковано: 5 березня 2012 а шо делать... Родина наша. Любить ее надо. 'Родину нужно менять...причем в идеале постараться начать с себя 8 Посилання на коментар Поділитися на інших сайтах More sharing options...
Korni Опубліковано: 5 березня 2012 Поділитись Опубліковано: 5 березня 2012 .....а шо делать... Рекомендация будет не новая..... 1 Посилання на коментар Поділитися на інших сайтах More sharing options...
REYDER Опубліковано: 5 березня 2012 Поділитись Опубліковано: 5 березня 2012 Уехать в Европу? ))))) по сути я согласен спору нет. Посилання на коментар Поділитися на інших сайтах More sharing options...
Сергей_84 Опубліковано: 5 березня 2012 Автор Поділитись Опубліковано: 5 березня 2012 Уехать в Европу? ))))) по сути я согласен спору нет. прочтите еще раз сообщение....только я немного некорректно выразился: замените на "изменять"... Посилання на коментар Поділитися на інших сайтах More sharing options...
Теплотехник Опубліковано: 6 березня 2012 Поділитись Опубліковано: 6 березня 2012 мен надоело .... Мне не нравится ... Мне не нравится ... Не знаю как Вы, но мне хотелось бы чтобы таких косяков было бы меньше... Вот именно поэтому лучше заранее планировать инженерные системы... Именно поэтому нужно заказчику чётко понимать, что он хочет... Посилання на коментар Поділитися на інших сайтах More sharing options...
ppbn21 Опубліковано: 6 березня 2012 Поділитись Опубліковано: 6 березня 2012 Долго не решался создать подобную тему пока меня не натолнкул на это один из форумчан, который находится на стадии строительства коробки. Хочется вести эту ветку не в режиме лекции, в режиме обсуждения с вопросами строящихся,мого в личку получаю вопросов на подобную тематику, поэтому захотелось соединить все воедино и сделать более информативным.. Разрешите начинающему застройщику вклинится в ваш междусобойчик мастеров. Предлагаю на моём примере пройти этапы, которые необходимы от начала проектирования до собственно монтажа систем холодного и горячего водоснабжения, отопления, канализации. Также вы сможете на практике получше узнать в сетях каких предрассудков и заблуждений находятся неподготовленные застройщики и некоторые дипломированные пректировщики. Я нахожусь на стадии проектирования (конструктив). Участок 10 соток. Находится в состоянии "до исторического материализма", т.е. нет ничего, кроме 4 колышков по углам. Представьте, что я пришел к вам в мастерскую, положил на верстак эскизный проект и ... - что делаем дальше? ваши вопросы? мои действия? Посилання на коментар Поділитися на інших сайтах More sharing options...
Катерина Ш Опубліковано: 6 березня 2012 Поділитись Опубліковано: 6 березня 2012 Спасибо Сергею! Хорошая ветка, думаю будет полезной. Поэтому и подписываюсь))) Посилання на коментар Поділитися на інших сайтах More sharing options...
Korni Опубліковано: 6 березня 2012 Поділитись Опубліковано: 6 березня 2012 ....я пришел к вам в мастерскую, положил на верстак эскизный проект и ...... Что Вы называете эскизным проектом? Посилання на коментар Поділитися на інших сайтах More sharing options...
ppbn21 Опубліковано: 6 березня 2012 Поділитись Опубліковано: 6 березня 2012 Что Вы называете эскизным проектом? Этот термин употребляют проектировщики. Его описание дается моими проектировщиками следующим образом: tmv.com.ua/ru/mtmstyl/individualproject/ Стадия ЭП (эскизный проект): - Пояснительная записка - Схема генплана - Поэтажные планы - Фасады здания - Разрезы здания - Компьютерная визуализация проекта - Паспорт отделки фасада Далее будут разрабатываться конструктивный и инженерный разделы. Если быть более точным, то начинать думать об отоплении и ГВС нужно по получению рабочено проекта Стадия РП (рабочий проект): - Пояснительная записка - Общие ведомости по проекту - Генплан - Поэтажные планы - План кровли - Фасады здания - Разрезы здания - Спецификация оконных и дверных проемов - Вентиляционные стояки Имея эту информацию на руках уже можно посчитать теплопотери. Посилання на коментар Поділитися на інших сайтах More sharing options...
Korni Опубліковано: 6 березня 2012 Поділитись Опубліковано: 6 березня 2012 .....Этот термин употребляют проектировщики. Теперь буду знать, спасибо. Но Вы ещё забыли принести ТехЗадание на проектирование ОВВК. Может здесь найдёте кое-что полезное Посилання на коментар Поділитися на інших сайтах More sharing options...
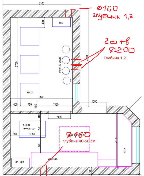
Сергей_84 Опубліковано: 6 березня 2012 Автор Поділитись Опубліковано: 6 березня 2012 Разрешите начинающему застройщику вклинится в ваш междусобойчик мастеров. Предлагаю на моём примере пройти этапы, которые необходимы от начала проектирования до собственно монтажа систем холодного и горячего водоснабжения, отопления, канализации. Также вы сможете на практике получше узнать в сетях каких предрассудков и заблуждений находятся неподготовленные застройщики и некоторые дипломированные пректировщики. Я нахожусь на стадии проектирования (конструктив). Участок 10 соток. Находится в состоянии "до исторического материализма", т.е. нет ничего, кроме 4 колышков по углам. Представьте, что я пришел к вам в мастерскую, положил на верстак эскизный проект и ... - что делаем дальше? ваши вопросы? мои действия? Так как начинать вы будетет с фундамента, то в первую очередь нужно распланировать место размещения скважины и септика по отношению к фундаменту дома, размещению топочной и санузлов и к въезду на участок... Чтобы не тянуть канализацию потом вокруг дома из места вывода к септику, чтобы бурилка имела хороший доступ к скважине, а также был безпрепятственный доступ к септику.. Нужно постараться минимизировать метраж канализации в земле до места ее поворота на стояк в доме... Также на этой стадии перед заливкой фундамента определить места размещения закладных для ввода канализации и для ввода воды... Для канализации достаточно глубины заложения 50-70 см....а для воды я советую углубится на 1,2 метра Хотя бы это сделать в таком виде, как на рисунке, так сказать, от руки Посилання на коментар Поділитися на інших сайтах More sharing options...
Теплотехник Опубліковано: 6 березня 2012 Поділитись Опубліковано: 6 березня 2012 Представьте, что я пришел к вам в мастерскую, положил на верстак эскизный проект и ... - что делаем дальше? ваши вопросы? мои действия? ХЗ что в Вашем понятии эскизный проект... Откуда думаете получать тепло? Газ , дрова, электрика, земля, солнце, другое?... Как планируете отдать это тепло в дом? ТП, радиаторы, конвектора,другое?... Потом делается предложение по реализации систем отопления, водоснабжения и канализации. Для Вас важным на данном этапе есть схема технологических отверстий и и штроб, если такие есть. Отдельным этапом нужно определиться с внешними коммуникациями (вход холодной воды, и вывод канализации), чтобы при заливке фундаментов и стен заложить закладные... Всё выше сказанное тянется недели, а то и месяцы... Часто корректируется, меняется добавляется и выбрасывается, но в любом случае вырисовывается тенденция... 1 Посилання на коментар Поділитися на інших сайтах More sharing options...
Рекомендовані повідомлення
Створіть акаунт або увійдіть у нього для коментування
Ви маєте бути користувачем, щоб залишити коментар
Створити акаунт
Зареєструйтеся для отримання акаунта. Це просто!
Зареєструвати акаунтУвійти
Вже зареєстровані? Увійдіть тут.
Увійти зараз