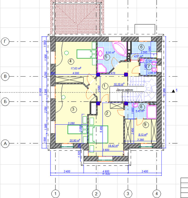
Alleksa Опубліковано: 15 березня 2012 Поділитись Опубліковано: 15 березня 2012 Добрый день всем форумчанам! наконец-то я добралась до этой темы, готова выложить проект дома для обсуждения. Хочу услышать ваши замечания, советы. В доме будем жить я с мужем, планируем расширять семью . Этажность - 2 этажа +чердак; Фундаменты, ленточные, сборные; наружные стены - кирпич или керамические блоки+ минвата 100 мм + штукатурка; перекрытие - пустотные плиты перекрытия; крыша - цем.-песчаная черепица; отопление - газовый котел; планируем позже поставить твердотопливный; В приложении планы, схема участка, и варианты фасадов (визуализации давние поэтому, там есть эркер - его мы убрали) Главные пожелания по проекту, от которых мы отталкивались: - гостиная ~30 кв. м (пожелания мужа); - кухня - возле террасы и недалеко от входа ; - одна жилая комната на 1 эт; - отсутствие балконов - над террасой получился все-таки балкон, но он несет функцию крыши; - о гаража в доме отказались, решили делать навес; Хотелось бы предусмотреть камин, пока у меня нет идей где его поставить. Вот, сбствно и всё Посилання на коментар Поділитися на інших сайтах More sharing options...
Alisa3 Опубліковано: 15 березня 2012 Поділитись Опубліковано: 15 березня 2012 Мне всё нравится. Разве что в топочную ходить через туалет неочень. Посилання на коментар Поділитися на інших сайтах More sharing options...
glirus Опубліковано: 15 березня 2012 Поділитись Опубліковано: 15 березня 2012 Хотелось бы предусмотреть камин, пока у меня нет идей где его поставить. Вот, сбствно и всё Я бы сделал камин двухсторонний на перегородке между залом и столовой Посилання на коментар Поділитися на інших сайтах More sharing options...
Alisa3 Опубліковано: 15 березня 2012 Поділитись Опубліковано: 15 березня 2012 А я между гостиной и коридором... Односторонний разумеется))) Посилання на коментар Поділитися на інших сайтах More sharing options...
Alleksa Опубліковано: 15 березня 2012 Автор Поділитись Опубліковано: 15 березня 2012 Мне всё нравится. Разве что в топочную ходить через туалет неочень. Пробовала двери из кухни сделать - не нравится разрез рабочей зоны. Я бы сделал камин двухсторонний на перегородке между залом и столовой тоже думала, но дымовая труба получится на втором этаже как раз по центру детской А я между гостиной и коридором... Односторонний разумеется))) такой вариант подойдет , думаю, только что делать с телевизорно-саббуферной зоной Посилання на коментар Поділитися на інших сайтах More sharing options...
ionico Опубліковано: 15 березня 2012 Поділитись Опубліковано: 15 березня 2012 По конструкциям вопросы: как планируете перекрывать 2 этаж? Неужели между теми колоннами на 2 этаже собираетесь положить ригель, который будет торчать в потолке спальни по всей длине (если, конечно, не будет подшивного потолка)? В спальне пролёт 5460 - думаю, что не менее 30 см. будет торчать из потолка. Кстати, уж если на 2 этаже колонны, то они должны повториться и на 1. С\у над кухней, думаю, что это минус. Но там хотя бы нет унитаза. На 2 этаже проходной с/у из которого попадаем в гардеробную. Сделайте наоборот - проходную гардеробную. Посилання на коментар Поділитися на інших сайтах More sharing options...
glirus Опубліковано: 15 березня 2012 Поділитись Опубліковано: 15 березня 2012 такой вариант подойдет , думаю, только что делать с телевизорно-саббуферной зоной Ну да, не обратил внимания на планировки второго этажа. Тогда где-то в зоне телевизора или угловой Посилання на коментар Поділитися на інших сайтах More sharing options...
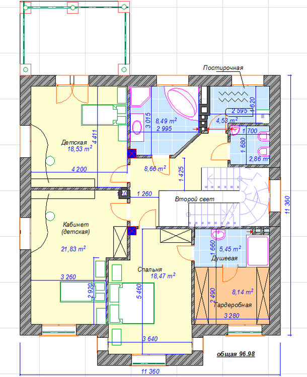
Alleksa Опубліковано: 15 березня 2012 Автор Поділитись Опубліковано: 15 березня 2012 (змінено) По конструкциям вопросы: как планируете перекрывать 2 этаж? Неужели между теми колоннами на 2 этаже собираетесь положить ригель, который будет торчать в потолке спальни по всей длине (если, конечно, не будет подшивного потолка)? В спальне пролёт 5460 - думаю, что не менее 30 см. будет торчать из потолка. Кстати, уж если на 2 этаже колонны, то они должны повториться и на 1. С\у над кухней, думаю, что это минус. Но там хотя бы нет унитаза. На 2 этаже проходной с/у из которого попадаем в гардеробную. Сделайте наоборот - проходную гардеробную. Эскиз рисовала я Второй этаж думаю перекрыть деревянными балками, и опереть их на тавровую балку, или швеллер. Колонны на 2 этаже - кирпичные 380*380 мм, армированные с бетонной подушкой сверху. На эти колоны уложим метл. балки. ......Я поняла о чем вы говорите: тавр/швеллер видно не должно быть, так как деревянную балку мы будем опирать на полку тавра .... весь конструктив еще под ?, будем привлекать конструктора для разработки КЖ, КМ, КД по поводу кухни и с/у над ним - насколько я помню, кухня - это мокрая зона??? надо открыть ДБН, взглянуть... Гардеробная в спальне - это лично мой будуар, ходить туда буду только я, мужской шкафчик в спальне (правда муж пока этого не знает:D). Не хотелось бы делать душ возле огромного витражного окна, который выходит на главную улицу. Перегородка между душевой и гардеробной будет из полупрозрачного стекла (или с рисунком). Змінено 15 березня 2012 користувачем Alleksa Посилання на коментар Поділитися на інших сайтах More sharing options...
lud_mila Опубліковано: 16 березня 2012 Поділитись Опубліковано: 16 березня 2012 (змінено) Alleksa первый этаж это практически мои пожелания !!!! Ну плюс ещё мечта "второй свет" в гостиной, читала все за и против, но всё таки склоняюсь ЗА ! В вашей планировке мне не хватает гардероба возле входа и кладовки возле кухни. Посмотрите в приложении мои наброски, метраж дома немного больше (пытаюсь уменьшить до 200 м, первые варианты были ещё круче). Я конечно не спец, но мне кажется, что несущие стены должны повторятся на 2-м этаже - я рисовала исходя из этого. Обратите внимание на размещение камина, у меня было желание, что-бы камин обязательно проходил через спальню 2-го этажа, т.к. это немного дополнительное отопление. Ну и размещение комнат на 2-м этаже я планировала так, что-бы у них не было общих стенок. В приложении мои 2 последних варианта, для себя склоняюсь ко второму. Удачи !!! Упс... это была моя первая попытка вложит приложение и не удачно , пошла читать что по чём... Змінено 16 березня 2012 користувачем lud_mila Посилання на коментар Поділитися на інших сайтах More sharing options...
Alleksa Опубліковано: 16 березня 2012 Автор Поділитись Опубліковано: 16 березня 2012 Alleksa первый этаж это практически мои пожелания !!!! Ну плюс ещё мечта "второй свет" в гостиной, читала все за и против, но всё таки склоняюсь ЗА ! В вашей планировке мне не хватает гардероба возле входа и кладовки возле кухни. Посмотрите в приложении мои наброски, метраж дома немного больше (пытаюсь уменьшить до 200 м, первые варианты были ещё круче). Я конечно не спец, но мне кажется, что несущие стены должны повторятся на 2-м этаже - я рисовала исходя из этого. Обратите внимание на размещение камина, у меня было желание, что-бы камин обязательно проходил через спальню 2-го этажа, т.к. это немного дополнительное отопление. Ну и размещение комнат на 2-м этаже я планировала так, что-бы у них не было общих стенок. В приложении мои 2 последних варианта, для себя склоняюсь ко второму. Удачи !!! Очень хочу взглянуть на вашу планировку, только не вижу куда смотреть (может мой браузер не отображает фото). В процессе рисования проекта была и гардеробная и кладовка, ужимая площадь - пришлось переиграть планировку. Пока стройка не началась можно еще все предусмотреть, буду выкраивать место. камин думаю разместить в гостиной, дымоход пройдет между нашей спальней и детской(кабинетом). Несущую стену на втором этаже повторять необязательно, но этот момент буду еще уточнять с конструктором. Посилання на коментар Поділитися на інших сайтах More sharing options...
lud_mila Опубліковано: 16 березня 2012 Поділитись Опубліковано: 16 березня 2012 напишите мне на почту не могу вложить файл, я тоже очень хочу что-бы вы посмотрели, т.к. наши планировки очень совпадают Посилання на коментар Поділитися на інших сайтах More sharing options...
Alleksa Опубліковано: 16 березня 2012 Автор Поділитись Опубліковано: 16 березня 2012 отправила Посилання на коментар Поділитися на інших сайтах More sharing options...
lud_mila Опубліковано: 16 березня 2012 Поділитись Опубліковано: 16 березня 2012 когда будете смотреть на планировку гостиной смотрите на неё так: (ссылка устарела) Посилання на коментар Поділитися на інших сайтах More sharing options...
Dex-paketa Опубліковано: 16 березня 2012 Поділитись Опубліковано: 16 березня 2012 Мне нравится, но я бы еще продлил террасу до конца кухонного окна. И больше народу поместится, и что-то типа шахматного столика там можно поставить, и из кухни еду напрямую через окно предавать. Добавлено через 2 минуты И еще - проверьте высоту раковины на 1 этаже, как бы затылком не биться при чистке зубов. 1 Посилання на коментар Поділитися на інших сайтах More sharing options...
vopros'nik Опубліковано: 16 березня 2012 Поділитись Опубліковано: 16 березня 2012 А может в спальне на 2 этаже кровать с тумбочками повернуть в сторону ниши и сделать отдельные входы в туалет и гардеробную, будет удобнее и не сыро. 1 Посилання на коментар Поділитися на інших сайтах More sharing options...
Alleksa Опубліковано: 16 березня 2012 Автор Поділитись Опубліковано: 16 березня 2012 напишите мне на почту не могу вложить файл, я тоже очень хочу что-бы вы посмотрели, т.к. наши планировки очень совпадают Да, планировки похожи. Мне больше нравится второй вариант - так кухня ближе к входу. Но в первом - гостиная выходит на фасад , можно сделать окно, таким образом фасад разбавить, и заодно будет видно кто приехал/пришел. Понравилось расположение комнат на втором этаже, попробую себе так распланировать. Не увидела постирочной/сушки/глажки. Фасады еще не рисовали? Посилання на коментар Поділитися на інших сайтах More sharing options...
lud_mila Опубліковано: 16 березня 2012 Поділитись Опубліковано: 16 березня 2012 Постирочная будет на 2-м этаже, переделаю планировку при входе в хозяйскую спальню (там сейчас гуляет много места), скорее всего вход в постирочную будет из с/у. Как писал Archist: путь грязного белья до постирочной должен быть максимально коротким, т. е. постирочная должна тяготеть к гардеробным (или где вы там будете переодеваться). Фасады ещё не рисовала, пока борюсь с планировкой и уменьшением кв.м до 200. А вы смотрю задавали вопрос по 2-му свету, но решили его сделать возле лестницы. Честно говоря я так не вижу в нём смысла, как по мне основной аффект от 2-го света именно в гостинной. По поводу окна в гостиной: там идёт TV зона и я не хочу что-бы там был свет, да и через стенку гардеробная. А фасад можно разбавить декоративными элементами, отделкой. А вы какой программой пользуетесь ? Да кстати мы с вами соседи Броварской район, правда мы в Погребах ! Посилання на коментар Поділитися на інших сайтах More sharing options...
Alleksa Опубліковано: 16 березня 2012 Автор Поділитись Опубліковано: 16 березня 2012 когда будете смотреть на планировку гостиной смотрите на неё так: (ссылка устарела) да, второй свет в гостиной - шикарно смотрится. но муж против моей затеи , поэтому пришлось "урвать" то, что разрешили. Прикреплю картинку, как я это вижу. А вы какой программой пользуетесь ? Проекты рисую в архикаде, и рендерю в артлантисе. Да кстати мы с вами соседи Броварской район, правда мы в Погребах Да, я обратила внимание в теме по земельным вопросам Мне нравится, но я бы еще продлил террасу до конца кухонного окна. И больше народу поместится, и что-то типа шахматного столика там можно поставить, и из кухни еду напрямую через окно предавать. И еще - проверьте высоту раковины на 1 этаже, как бы затылком не биться при чистке зубов. идея с террасой интересная. Может продлить только пол террасы, без навеса? не хочется затенять кухню, да и по фасаду примыкание колоны к окну будет смотреться не очень (см. фото заднего вида). что- то я про высоту раковины не поняла:D, может высоту лестницы в районе раковины? ~2200мм. прикрепила планы с камином Посилання на коментар Поділитися на інших сайтах More sharing options...
Alleksa Опубліковано: 16 березня 2012 Автор Поділитись Опубліковано: 16 березня 2012 А может в спальне на 2 этаже кровать с тумбочками повернуть в сторону ниши и сделать отдельные входы в туалет и гардеробную' date=' будет удобнее и не сыро.[/quote'] кровать повернула, действительно так лучше будет а вот с еще одной дверью в спальне - будет перебор, как думаете? и опять некуда телек прицепить 1 Посилання на коментар Поділитися на інших сайтах More sharing options...
vopros'nik Опубліковано: 16 березня 2012 Поділитись Опубліковано: 16 березня 2012 кровать повернула, действительно так лучше будет а вот с еще одной дверью в спальне - будет перебор, как думаете? и опять некуда телек прицепить Я думаю, если сделать раздвижную и внутри гардеробной, то место не потеряете и телек напротив кровати поместиться на стене, хотя утверждают, что он не нужен в спальне. И тоже вопрос по поводу раковины на первом этаже, мне кажется что, лестница там все-таки ниже чем 2,2. Посилання на коментар Поділитися на інших сайтах More sharing options...
lud_mila Опубліковано: 16 березня 2012 Поділитись Опубліковано: 16 березня 2012 может переместить окно в гостинной ближе к столовой, а то как-то ТV напротив окна не очень, тем более что сбоку уже есть окно. И. тогда диван будет не под окном. или опять же подвинуть окно, TV перенести на другую сторону, а диван на место TV. Смотрите тв и поглядываете в окошко 1 Посилання на коментар Поділитися на інших сайтах More sharing options...
Alleksa Опубліковано: 23 березня 2012 Автор Поділитись Опубліковано: 23 березня 2012 Вот некоторые корректировочки. Камин поставила там где был ТВ, Тв перенесла на наружную стену. На днях, пока крутила-рисовала проект, решила переиграть террасу, т.е. сделать ее под скатной кровлей, убрать балкончик. Посилання на коментар Поділитися на інших сайтах More sharing options...
sip-building Опубліковано: 23 березня 2012 Поділитись Опубліковано: 23 березня 2012 Добрый день всем форумчанам! наконец-то я добралась до этой темы, готова выложить проект дома для обсуждения. Хочу услышать ваши замечания, советы. В доме будем жить я с мужем, планируем расширять семью . Этажность - 2 этажа +чердак; Фундаменты, ленточные, сборные; наружные стены - кирпич или керамические блоки+ минвата 100 мм + штукатурка; перекрытие - пустотные плиты перекрытия; крыша - цем.-песчаная черепица; отопление - газовый котел; планируем позже поставить твердотопливный; В приложении планы, схема участка, и варианты фасадов (визуализации давние поэтому, там есть эркер - его мы убрали) Главные пожелания по проекту, от которых мы отталкивались: - гостиная ~30 кв. м (пожелания мужа); - кухня - возле террасы и недалеко от входа ; - одна жилая комната на 1 эт; - отсутствие балконов - над террасой получился все-таки балкон, но он несет функцию крыши; - о гаража в доме отказались, решили делать навес; Хотелось бы предусмотреть камин, пока у меня нет идей где его поставить. Вот, сбствно и всё Мне очень понравился. Пожалуй, один из самых функциональных проектов на 200 кв. м. Сколько стоит такой проект? 1 Посилання на коментар Поділитися на інших сайтах More sharing options...
lud_mila Опубліковано: 24 березня 2012 Поділитись Опубліковано: 24 березня 2012 о так камин вписался очень удачно! А решение убрать балкон очень-очень правильное, денег потянет не мало, а експлуатации как таковой не будет. Лучше эти деньги вложить в обустройство террасы, которую будет использовать на все 1000 %! 1 Посилання на коментар Поділитися на інших сайтах More sharing options...
Alleksa Опубліковано: 24 березня 2012 Автор Поділитись Опубліковано: 24 березня 2012 Мне очень понравился. Пожалуй, один из самых функциональных проектов на 200 кв. м. Сколько стоит такой проект? Спасибо :roll:если нравится, значит я в нужном направлении. Проект нисколько не стоит, т. к. рисовала его я сама. Если вы про смету спрашивали, то еще не считали... 1 Посилання на коментар Поділитися на інших сайтах More sharing options...
Рекомендовані повідомлення
Створіть акаунт або увійдіть у нього для коментування
Ви маєте бути користувачем, щоб залишити коментар
Створити акаунт
Зареєструйтеся для отримання акаунта. Це просто!
Зареєструвати акаунтУвійти
Вже зареєстровані? Увійдіть тут.
Увійти зараз