Zak Опубліковано: 4 квітня 2012 Поділитись Опубліковано: 4 квітня 2012 Добрый день. Вот настал и мой черед завести свою ветку в этом разделе. Участок достался в наследство в 2004 году, практический интерес к нему появился только в 2007. Так как финансы пели романсы, то о постройке дома речи не шло. Решил я тогда оборудовать его для отдыха с друзьями. Два года ушло на расчистку участка от зарослей малины, акации и прочей растительности. В 9-10 годах поставил забор, ворота, переоборудовал сарай под бытовку, построил душ, туалет, навес, провел воду и свет. В общем поставленная цель была достигнута. Но как всегда достигнутого показалось мало и захотелось чего-то большего. И в новогоднюю ночь 2011 я понял что хочу на своем участке построить дом. Летом 11-го сделал геологию, топосъемку, вынос в натуру, заказал проект и оформил стройпаспорт, в межсезонье определился с подрядчиком. И на последней неделе марта начало! Посилання на коментар Поділитися на інших сайтах More sharing options...
Zak Опубліковано: 4 квітня 2012 Автор Поділитись Опубліковано: 4 квітня 2012 Так выглядел участок до начала работ (май 2011) 3 Посилання на коментар Поділитися на інших сайтах More sharing options...
Zak Опубліковано: 4 квітня 2012 Автор Поділитись Опубліковано: 4 квітня 2012 Начали с разметки осей: Разметку делал геодезист вот такой штуковиной: По идее было-бы неплохо натянуть по осям веревку , но т.*к. веревки ни у кого не оказалось, то в качестве осей служат гвоздики забитые в «лавочки»: В осенне-зимний период с участка видно море, летом за листвой моря видно не будет: Само море весь день штормило и со стороны моря дул сильный, холодный ветер: Кстати за день до начала работ ветер был ещё сильнее и повалил ворота и порвал шторки на беседке. Обидно, всю зиму шторки провисели, а за день до начала порвались на следующую зиму буду снимать: В связи с пожаром на подстанции в Новых Петровцах и связанных с этим перебоях в электроснабжении было решено повременить с заселением бригады, чтоб они без электричества не задубели (обогреватель электрический). 3 Посилання на коментар Поділитися на інших сайтах More sharing options...
Zak Опубліковано: 4 квітня 2012 Автор Поділитись Опубліковано: 4 квітня 2012 Сегодня приехал вот такой экскаватор... Посилання на коментар Поділитися на інших сайтах More sharing options...
Zak Опубліковано: 4 квітня 2012 Автор Поділитись Опубліковано: 4 квітня 2012 Плодотворно поработал: Посилання на коментар Поділитися на інших сайтах More sharing options...
Zak Опубліковано: 4 квітня 2012 Автор Поділитись Опубліковано: 4 квітня 2012 Пеньки, которые мы вдвоем с трудом смогли сдвинуть с места, экскаватор ворочал как пушинки: Посилання на коментар Поділитися на інших сайтах More sharing options...
Zak Опубліковано: 4 квітня 2012 Автор Поділитись Опубліковано: 4 квітня 2012 В результате на участке имеем следующую картину: 1 1 Посилання на коментар Поділитися на інших сайтах More sharing options...
Zak Опубліковано: 4 квітня 2012 Автор Поділитись Опубліковано: 4 квітня 2012 Ну и под конец рытья нашли бонус что это за мешки и как они туда попали без понятия, но по внешнему виду мешки явно постсоветского происхождения. Наверное кто-то втихаря себе песочка прихватил а мне в замен подложил чего не жалко и аккуратно засыпал Посилання на коментар Поділитися на інших сайтах More sharing options...
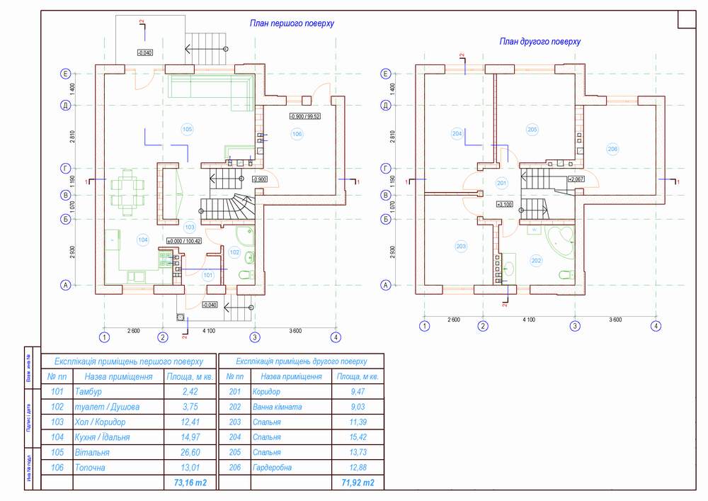
Zak Опубліковано: 4 квітня 2012 Автор Поділитись Опубліковано: 4 квітня 2012 А вот и проект того, что я хочу построить: Дом в 2 этажа, 145 кв.м. внешние стены ГБ 400мм, внутренние из кирпича, фундамент ленточный монолитный, перекрытия терива, крыша плоская. К слову сказать что к архитектурная часть проекта выполнена отлично, мне нравится, а вот с конструктивной повезло меньше, т.*к. содержит она ну очень много ляпов и неоднозначных решений. Посилання на коментар Поділитися на інших сайтах More sharing options...
Zak Опубліковано: 4 квітня 2012 Автор Поділитись Опубліковано: 4 квітня 2012 ...Фасады...: 1 Посилання на коментар Поділитися на інших сайтах More sharing options...
net. Опубліковано: 4 квітня 2012 Поділитись Опубліковано: 4 квітня 2012 продолжайте развивать тему. И удачи в строительстве 2 Посилання на коментар Поділитися на інших сайтах More sharing options...
Zak Опубліковано: 4 квітня 2012 Автор Поділитись Опубліковано: 4 квітня 2012 ...Планы...: 1 Посилання на коментар Поділитися на інших сайтах More sharing options...
Zak Опубліковано: 4 квітня 2012 Автор Поділитись Опубліковано: 4 квітня 2012 Визуализация: 5 1 Посилання на коментар Поділитися на інших сайтах More sharing options...
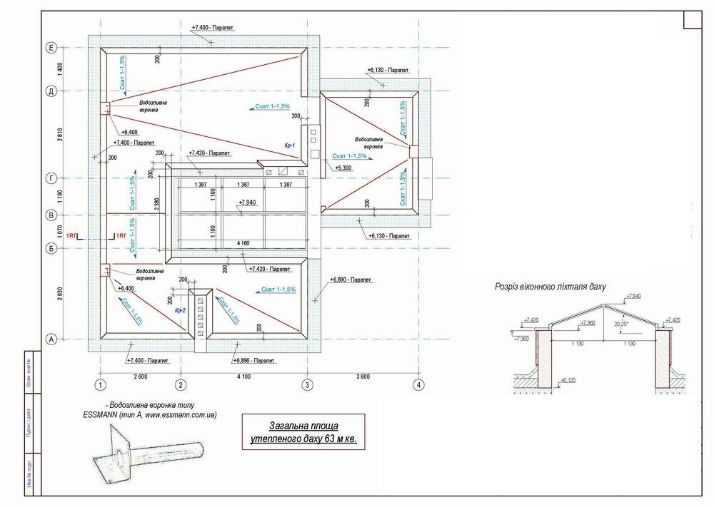
net. Опубліковано: 4 квітня 2012 Поділитись Опубліковано: 4 квітня 2012 удачный проект какой кровельный пирог и как организован водоотвод? Посилання на коментар Поділитися на інших сайтах More sharing options...
Pride Опубліковано: 4 квітня 2012 Поділитись Опубліковано: 4 квітня 2012 Нарядный домик. Подписываюсь! Успехов Вам в строительстве и вообще во всём! 1 Посилання на коментар Поділитися на інших сайтах More sharing options...
Cremator Опубліковано: 4 квітня 2012 Поділитись Опубліковано: 4 квітня 2012 Плоская крыша!!!! :D Подписываюсь Посилання на коментар Поділитися на інших сайтах More sharing options...
features Опубліковано: 4 квітня 2012 Поділитись Опубліковано: 4 квітня 2012 Поздравляю с началом стройки, проект очень необычен за счет своей крыши))) если можно по ходу строительства публикуйте расходы ( основные только) буду с удовольствием наблюдать) удачного строительства. 1 Посилання на коментар Поділитися на інших сайтах More sharing options...
Betsy Опубліковано: 5 квітня 2012 Поділитись Опубліковано: 5 квітня 2012 красиво) второй свет и вообще...море) похож на проект Cremator'а)) 1 Посилання на коментар Поділитися на інших сайтах More sharing options...
Cremator Опубліковано: 5 квітня 2012 Поділитись Опубліковано: 5 квітня 2012 красиво) второй свет и вообще...море) похож на проект Cremator'а)) Архитектор тот же Посилання на коментар Поділитися на інших сайтах More sharing options...
Zak Опубліковано: 5 квітня 2012 Автор Поділитись Опубліковано: 5 квітня 2012 удачный проект какой кровельный пирог и как организован водоотвод? Всем спасибо за теплые отзывы! Кровельный пирог вполне стандартный для плоских крыш: -- Гипердесмо; -- Стяжка-разуклонка; -- ПСБ 35; -- Перекрытие (терива). В принципе крыша такая-же как у форумчанина Cremator (архитектор ведь один и тот-же ). Страничка проекта посвященная водоотводу во вложении. Посилання на коментар Поділитися на інших сайтах More sharing options...
Zak Опубліковано: 5 квітня 2012 Автор Поділитись Опубліковано: 5 квітня 2012 Поздравляю с началом стройки, проект очень необычен за счет своей крыши))) если можно по ходу строительства публикуйте расходы ( основные только) буду с удовольствием наблюдать) удачного строительства. Спасибо! Смета ведется вплоть до гвоздя, как только закончу фундамент, выложу. Добавлено через 1 час 52 минуты Сегодня на участок завезли доски/брус на опалубку, щебень и арматуру, но так как меня на участке не было, то и фоток не будет. 1 Посилання на коментар Поділитися на інших сайтах More sharing options...
S_Lava Опубліковано: 5 квітня 2012 Поділитись Опубліковано: 5 квітня 2012 А на первой фоте у теодолита не Роман ли? дом оригинальный. смело. Интересно. Стеклянная крыша - будет КЛАССНО!!! но дорого. :D У-ДА-ЧИ!!! 1 Посилання на коментар Поділитися на інших сайтах More sharing options...
Zak Опубліковано: 5 квітня 2012 Автор Поділитись Опубліковано: 5 квітня 2012 А на первой фоте у теодолита не Роман ли? дом оригинальный. смело. Интересно. Стеклянная крыша - будет КЛАССНО!!! но дорого. :D У-ДА-ЧИ!!! Спасибо! Чесно говоря имя геодезиста уже не помню. Посилання на коментар Поділитися на інших сайтах More sharing options...
babyboom Опубліковано: 5 квітня 2012 Поділитись Опубліковано: 5 квітня 2012 Поздравляю с началом. Если нужны местные контакты обращайтесь 1 Посилання на коментар Поділитися на інших сайтах More sharing options...
aleks_a77 Опубліковано: 5 квітня 2012 Поділитись Опубліковано: 5 квітня 2012 Подписываюсь! Плоских крыш становится всё больше Уже не так страшно и мне будет продолжать стройку 1 Посилання на коментар Поділитися на інших сайтах More sharing options...
Рекомендовані повідомлення
Створіть акаунт або увійдіть у нього для коментування
Ви маєте бути користувачем, щоб залишити коментар
Створити акаунт
Зареєструйтеся для отримання акаунта. Це просто!
Зареєструвати акаунтУвійти
Вже зареєстровані? Увійдіть тут.
Увійти зараз