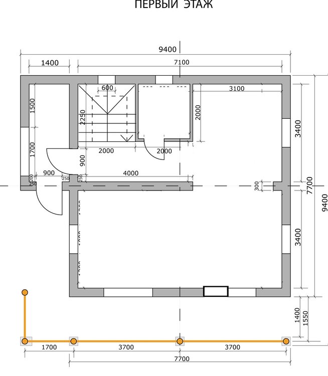
YaOlejka Опубліковано: 11 квітня 2012 Поділитись Опубліковано: 11 квітня 2012 Уважаемые форумчане! Интересует Ваше мнение где лучше расположить ТТ котёл в прикреплённом проекте, проект приобретён на форуме, но ранее он был с камином, а не ТТ котёл. Заранее всем спасибо за советы! Посилання на коментар Поділитися на інших сайтах More sharing options...
Сергей 31 Опубліковано: 11 квітня 2012 Поділитись Опубліковано: 11 квітня 2012 Т.Т. это дрова, сажа и грязь. Посилання на коментар Поділитися на інших сайтах More sharing options...
YaOlejka Опубліковано: 11 квітня 2012 Автор Поділитись Опубліковано: 11 квітня 2012 Т.Т. это дрова, сажа и грязь.Согласен, но место под него надо определить.) Посилання на коментар Поділитися на інших сайтах More sharing options...
Слободарий Опубліковано: 11 квітня 2012 Поділитись Опубліковано: 11 квітня 2012 Вблизи дымохода. И так, чтобы проветрить помещение было легко. 1 Посилання на коментар Поділитися на інших сайтах More sharing options...
YaOlejka Опубліковано: 11 квітня 2012 Автор Поділитись Опубліковано: 11 квітня 2012 Вблизи дымохода. И так, чтобы проветрить помещение было легко. так от его размещения и решится где будет дымоход. Посилання на коментар Поділитися на інших сайтах More sharing options...
Сергей 31 Опубліковано: 11 квітня 2012 Поділитись Опубліковано: 11 квітня 2012 Места мало. Как вариант: Поставить его на улице, под навесом. В доме только бочка, литров на 100. Котловой, уличный контур незамерзайка, а в доме вода. Посилання на коментар Поділитися на інших сайтах More sharing options...
YaOlejka Опубліковано: 11 квітня 2012 Автор Поділитись Опубліковано: 11 квітня 2012 Места мало.Согласен. Так как строить будем сами подбирали простой проект небольшого дома. Добавлено через 2 минуты есть мысли поставить котёл на кухне, в веранде или за кухней пристроить топочную Посилання на коментар Поділитися на інших сайтах More sharing options...
Сергей 31 Опубліковано: 11 квітня 2012 Поділитись Опубліковано: 11 квітня 2012 Повторю; Т.Т. дело грязное. Иоя котельная с отдельным входом и под домом. Так вот, если месяц птопить Т.Т, то есть запах гари. Посилання на коментар Поділитися на інших сайтах More sharing options...
YaOlejka Опубліковано: 11 квітня 2012 Автор Поділитись Опубліковано: 11 квітня 2012 Повторю; Т.Т. дело грязное.Знаю, у меня у родителей такой, я возле него всё детство провёл. Посилання на коментар Поділитися на інших сайтах More sharing options...
Телесистемы Опубліковано: 11 квітня 2012 Поділитись Опубліковано: 11 квітня 2012 с такой планировкой однозначно - в пристройке. иначе будете ее всеравно после первого сезона пристраивать. 1 Посилання на коментар Поділитися на інших сайтах More sharing options...
alekxanders Опубліковано: 11 квітня 2012 Поділитись Опубліковано: 11 квітня 2012 С разрешения ТС влезу и сюда, может ответы на мои вопросы - помогут YaOlejka: А есть ли какие-то общие правила/законы/рекоммендации/принципы по размещению TT котла? У меня просто тоже вопрос - планирую под топочную отвести вот такое помещение площадь сейчас сходу не вспомню (проекта под руками нету) но где-то квадратов 8, смущает только что будет лестница. В последсвии возможно туда станет (если можно будет по правилам) газовый котел. То что грязь - понятно, с этим прийдеться мириться, кроме того - есть вторая входная дверь, то бишь практически с улицы и в топочную. Под котел доп. минифундамент, в топочной стены/пол в плитку, потолок - штукатурку, и дверь пожаробезопасную с приемлемой огнестоякостью... Посилання на коментар Поділитися на інших сайтах More sharing options...
Сергей 31 Опубліковано: 11 квітня 2012 Поділитись Опубліковано: 11 квітня 2012 У меня просто тоже вопрос - планирую под топочную отвести вот такое помещение Для Т.Т. это просто хоромы. Обычно не берут во внимание, что нужно место для монтажа и обслуживания котла. Не говоря о складирование дров. 1 Посилання на коментар Поділитися на інших сайтах More sharing options...
alekxanders Опубліковано: 11 квітня 2012 Поділитись Опубліковано: 11 квітня 2012 Для Т.Т. это просто хоромы. Ну вот и хочеться что бы места было "на вырост", туда так же планирую поставить косвенник, поддерживающий электрокотел, возможно большой электробойлер для горячей воды в неотапливаемый сезон. ну может быть еще что-то, а под лестницей сделаю "кладовку для всякого хлама" Посилання на коментар Поділитися на інших сайтах More sharing options...
Сергей 31 Опубліковано: 11 квітня 2012 Поділитись Опубліковано: 11 квітня 2012 туда так же планирую поставить косвенник, возможно большой электробойлер для горячей воды в неотапливаемый сезон. Комбинированный косвенник уже идет с вмонтированным теном. 1 Посилання на коментар Поділитися на інших сайтах More sharing options...
alekxanders Опубліковано: 11 квітня 2012 Поділитись Опубліковано: 11 квітня 2012 Комбинированный косвенник уже идет с вмонтированным теном. Спасибо не знал, наберусь наглости и в чужой ветке еще не по теме спрошу - не порекомендуете где такие посмотреть? Посилання на коментар Поділитися на інших сайтах More sharing options...
YaOlejka Опубліковано: 11 квітня 2012 Автор Поділитись Опубліковано: 11 квітня 2012 в чужой ветке еще не по теме спрошута норм, мне тоже это интересно. Посилання на коментар Поділитися на інших сайтах More sharing options...
Сергей 31 Опубліковано: 11 квітня 2012 Поділитись Опубліковано: 11 квітня 2012 Мне нравятся "Дразица". Посилання на коментар Поділитися на інших сайтах More sharing options...
Слободарий Опубліковано: 12 квітня 2012 Поділитись Опубліковано: 12 квітня 2012 У меня просто тоже вопрос - планирую под топочную отвести вот такое помещение Смущает лестница. Дым может подниматься в расположенные выше помещения. Или нужно будет придумать систему дымоудаления. Посилання на коментар Поділитися на інших сайтах More sharing options...
alekxanders Опубліковано: 12 квітня 2012 Поділитись Опубліковано: 12 квітня 2012 Смущает лестница. Дым может подниматься в расположенные выше помещения. Или нужно будет придумать систему дымоудаления. Думаю может попробвать сделать это помещение "герметичным" сверху, оставить только вент.канал и подумать на тему доп. подачи воздуха. А вообще - завтра по идее у меня аудиенция с инженером-архитектором на тему системы отопления, вот и проконсультируюсь. Посилання на коментар Поділитися на інших сайтах More sharing options...
Revonik Опубліковано: 17 квітня 2012 Поділитись Опубліковано: 17 квітня 2012 YaOlejka, жаль что в проекте не предусмотрена топочная. Моё мнение такое - разместить в первой комнате от входа, но дополнительно сделать дополнительный вход напрямую с улицы. Такой вариант возможен если складировать топливо можно будет на улице за домом. Жаль, хорошая гардиробная была , так станет складом вёдер, ящиков и т.п. Посилання на коментар Поділитися на інших сайтах More sharing options...
YaOlejka Опубліковано: 29 квітня 2012 Автор Поділитись Опубліковано: 29 квітня 2012 Вопрос решён. Всем спасибо за советы! Тему можно закрыть. Посилання на коментар Поділитися на інших сайтах More sharing options...
Korni Опубліковано: 29 квітня 2012 Поділитись Опубліковано: 29 квітня 2012 Вопрос решён. Всем спасибо за советы! Было бы адекватным рассказать, как решён вопрос. Посилання на коментар Поділитися на інших сайтах More sharing options...
YaOlejka Опубліковано: 29 квітня 2012 Автор Поділитись Опубліковано: 29 квітня 2012 Было бы адекватным рассказать, как решён вопрос.после долгих раздумий и взвешиваний плюсов и минусов данного проекта было решено купить другой. В результате поисков и обдумываний, сегодня стал счастливым обладателем проекта www.archeton.com.ua/proekt-doma_771_obshcheye-opisaniye за что большое спасибо форумчанину sashanik . 1 Посилання на коментар Поділитися на інших сайтах More sharing options...
Рекомендовані повідомлення
Створіть акаунт або увійдіть у нього для коментування
Ви маєте бути користувачем, щоб залишити коментар
Створити акаунт
Зареєструйтеся для отримання акаунта. Це просто!
Зареєструвати акаунтУвійти
Вже зареєстровані? Увійдіть тут.
Увійти зараз