yuratka Опубліковано: 24 жовтня 2008 Поділитись Опубліковано: 24 жовтня 2008 Собственно - моя смета. От чего порекомендуете отказаться, где можно что-то оптимизировать? Сейчас выложу проектюотопление_смета.doc Посилання на коментар Поділитися на інших сайтах More sharing options...
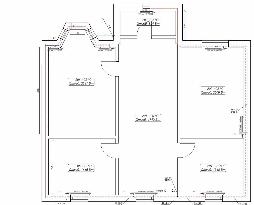
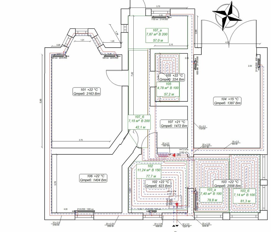
yuratka Опубліковано: 24 жовтня 2008 Автор Поділитись Опубліковано: 24 жовтня 2008 Блин - проект сильно большой - долго сканировать. Выкладываю как пример расчет мощности на квадратный метр отдельно для каждого помещения и примеры планов этажей. Если для оценки нужно что то еще скажите - буду сканировать.кусочек проекта.doc Посилання на коментар Поділитися на інших сайтах More sharing options...
yuratka Опубліковано: 24 жовтня 2008 Автор Поділитись Опубліковано: 24 жовтня 2008 Главные вопросы: - нужно ли переплачивать за конденсационный котел - Vaillant - это хорошо или перебор? - как насчет меди - они говорят что разница в цене будет небольшая с хорошим пластиком, но она оправдана. - радиаторы КЕРМИ? Посилання на коментар Поділитися на інших сайтах More sharing options...
Сергей 31 Опубліковано: 24 жовтня 2008 Поділитись Опубліковано: 24 жовтня 2008 На все Ваши вопросы ответ да. Все очень грамотно и профессионально. Но, по максимуму. Не в ущерб качеству можно кое чего и заменить. Скажите ребятам что дорого, пересчитают. Посилання на коментар Поділитися на інших сайтах More sharing options...
pearlman Опубліковано: 26 жовтня 2008 Поділитись Опубліковано: 26 жовтня 2008 Если разводка медью по наружке тогда все понятно и будет очень эстетично. Если трубы прячут в стены, то это плохо медь прятать в стены можно, только если изолировать их, что-бы раствор не попадал с ними в контакт. Радиаторы выходят дороговато! Посилання на коментар Поділитися на інших сайтах More sharing options...
Jenifer Опубліковано: 28 жовтня 2008 Поділитись Опубліковано: 28 жовтня 2008 Поделитесь, пожалуйста, впечатлениями от дальнейшей работы с фирмой, которая сделала предложение. Ищу сейчас "отопителей", пока безрезультатно, пытаются замылить глаза и втюхать все дорогое...буду благодарна за рекомендации Посилання на коментар Поділитися на інших сайтах More sharing options...
Tavruxa Опубліковано: 31 жовтня 2008 Поділитись Опубліковано: 31 жовтня 2008 А если не сикрет, сколько просят за монтаж подобной системы? Посилання на коментар Поділитися на інших сайтах More sharing options...
STANISLAV Опубліковано: 4 листопада 2008 Поділитись Опубліковано: 4 листопада 2008 Приблизительная стоимость сметы с котельной, отоплением, водоснабжением и канализацией от 35$/м2 с работой и материалом. Для расчета системы отопления водоснабжения и канализации необходимы: поэтажный план дома с описанием помещений, высота потолков, окна, двери, материал стен, крыши для расчета теплопотерь. расмещение радиаторов если есть пожелания, теплого пола размещение сантех. приборов ввод воды и вывод канализации Количество проживающих человек Пожелания по материалу - стоимость, качетво, предпочтения Котельная - котел, бойлер Радиаторы - стальные, алюминевые, .... Материал систем - металлопластик, пластик, поэлителен Или звоните по тел. 8 067 723-66-02, (044) 331-53-90 Станислав Посилання на коментар Поділитися на інших сайтах More sharing options...
Soyka Опубліковано: 5 листопада 2008 Поділитись Опубліковано: 5 листопада 2008 Подскажите, сколько стоит монтаж газопровода при таком расскале: газ во дворе, нужно по периметру дома проложить трубы к 4 газовым конвекторам, установить газовй счетчик и подключить две плиты (одна в доме, одна в летней кухне) Киевская область, Бородянка? Посилання на коментар Поділитися на інших сайтах More sharing options...
Joe Опубліковано: 11 листопада 2008 Поділитись Опубліковано: 11 листопада 2008 Подскажите, сколько стоит монтаж газопровода при таком расскале: газ во дворе, нужно по периметру дома проложить трубы к 4 газовым конвекторам, установить газовй счетчик и подключить две плиты (одна в доме, одна в летней кухне) Киевская область, Бородянка? По опыту моих соседей тысяч 6 грн. Если конвекторы сами ставить будете и дырки под них пробивать. иначе еще по 500 грн за каждый добавьте. Посилання на коментар Поділитися на інших сайтах More sharing options...
Soyka Опубліковано: 12 січня 2009 Поділитись Опубліковано: 12 січня 2009 Спасибо! Очень благодарна за ответ! Посилання на коментар Поділитися на інших сайтах More sharing options...
TVA Опубліковано: 14 травня 2009 Поділитись Опубліковано: 14 травня 2009 Подключение Будеруса с бойлером косвенного. З уровня, на одном из них комната с теплым полом. Я почему-то возмущен от предложения, что приложено к моему сообщению. А Вы?КомПред.doc Посилання на коментар Поділитися на інших сайтах More sharing options...
dimaaprodos Опубліковано: 15 травня 2009 Поділитись Опубліковано: 15 травня 2009 Мне недавно делали систему отопления (фирма см. БС) представители Vaillant и Viessmann так например насос в моем случае Star-RS 25/4 = 81, Z15(правдо C)=116 + на всю комплектацию дали скидку. Посилання на коментар Поділитися на інших сайтах More sharing options...
Теплотехник Опубліковано: 15 травня 2009 Поділитись Опубліковано: 15 травня 2009 Собственно - моя смета. От чего порекомендуете отказаться, где можно что-то оптимизировать? Сейчас выложу проектю Ваша смета датирована 07.10.2008 г. Думаю надо все цены пересчитывать. Для примера (ссылка устарела) №13 на стр. 18 Посилання на коментар Поділитися на інших сайтах More sharing options...
Теплотехник Опубліковано: 15 травня 2009 Поділитись Опубліковано: 15 травня 2009 Поделитесь, пожалуйста, впечатлениями от дальнейшей работы с фирмой, которая сделала предложение. Ищу сейчас "отопителей", пока безрезультатно, пытаются замылить глаза и втюхать все дорогое...буду благодарна за рекомендации Из лозунга "БЫСТРО, КАЧЕСТВЕННО, ДЁШИВО" одно слово нужно вычеркнуть... ;) Посилання на коментар Поділитися на інших сайтах More sharing options...
murava Опубліковано: 16 травня 2009 Поділитись Опубліковано: 16 травня 2009 Подключение Будеруса с бойлером косвенного. З уровня, на одном из них комната с теплым полом. Я почему-то возмущен от предложения, что приложено к моему сообщению. А Вы? Позвольте полюбопытствовать, эта смета принадлежит перу тех же инсталляторов, которые смонтировали Вам разводку? Посилання на коментар Поділитися на інших сайтах More sharing options...
TVA Опубліковано: 20 травня 2009 Поділитись Опубліковано: 20 травня 2009 Позвольте полюбопытствовать, эта смета принадлежит перу тех же инсталляторов, которые смонтировали Вам разводку? :D нравится мне Ваш аватар - очень пригож к таким вопросам... ;) Нет, это бригада поставщиков, обеспечивающая гарантию, обслуживание и ответ за базар. Дай им Бог выдержать меня, если что... Посилання на коментар Поділитися на інших сайтах More sharing options...
murava Опубліковано: 20 травня 2009 Поділитись Опубліковано: 20 травня 2009 Не, ну чего же Нормальная цена за обвязочку Это я так, из соображений личной ехидности и обиды за проигранный тендер на работу спросил Посилання на коментар Поділитися на інших сайтах More sharing options...
TVA Опубліковано: 20 травня 2009 Поділитись Опубліковано: 20 травня 2009 Не, ну чего же Нормальная цена за обвязочку Это я так, из соображений личной ехидности и обиды за проигранный тендер на работу спросил Та ладно, Вы ж сами сперва говорили, что для интереса... Да и, кажется, всы так вышло из-за иногородности. Да? Не нахо ехидничать - я себе вопрос уже решил, а вот люди же на нас равняются тут... Посилання на коментар Поділитися на інших сайтах More sharing options...
Сергей 31 Опубліковано: 20 травня 2009 Поділитись Опубліковано: 20 травня 2009 Подключение Будеруса с бойлером косвенного. З уровня, на одном из них комната с теплым полом. Сметка не интересно. Вы бы показали схему разводки по дому и обвязку котельной. Вот тут бы мы разошлись. Посилання на коментар Поділитися на інших сайтах More sharing options...
TVA Опубліковано: 20 травня 2009 Поділитись Опубліковано: 20 травня 2009 В реале отличается разводка от проекта. А обвязки еще нет - котел не установили. Только гильзовка закончилась. Посилання на коментар Поділитися на інших сайтах More sharing options...
Сергей 31 Опубліковано: 20 травня 2009 Поділитись Опубліковано: 20 травня 2009 Фотка класс. Все красиво. Обвязки, конечно, быть не может. Дизайн котельной решает монтажник, а принципиальная схема уже должна быть. Материалы на котельную покупают по какой-то принципиальной схеме. Да и логика работы у котельной может быть разная. О, начинаем расходиться. Посилання на коментар Поділитися на інших сайтах More sharing options...
TVA Опубліковано: 20 травня 2009 Поділитись Опубліковано: 20 травня 2009 Фотка класс. Все красиво. Обвязки, конечно, быть не может. Дизайн котельной решает монтажник, а принципиальная схема уже должна быть. Материалы на котельную покупают по какой-то принципиальной схеме. Да и логика работы у котельной может быть разная. О, начинаем расходиться. паразиты... Поинтересуюсь, что там у них, ок. Посилання на коментар Поділитися на інших сайтах More sharing options...
Сергей 31 Опубліковано: 20 травня 2009 Поділитись Опубліковано: 20 травня 2009 Другое дело, будем ждать. Посилання на коментар Поділитися на інших сайтах More sharing options...
TVA Опубліковано: 25 травня 2009 Поділитись Опубліковано: 25 травня 2009 Другое дело, будем ждать. Как обещал. Оно? PS: Все будет медь, за исключением подвода воды и гребенок отопительного контура. Посилання на коментар Поділитися на інших сайтах More sharing options...
Рекомендовані повідомлення
Створіть акаунт або увійдіть у нього для коментування
Ви маєте бути користувачем, щоб залишити коментар
Створити акаунт
Зареєструйтеся для отримання акаунта. Це просто!
Зареєструвати акаунтУвійти
Вже зареєстровані? Увійдіть тут.
Увійти зараз