Ayusik Опубліковано: 16 серпня 2012 Автор Поділитись Опубліковано: 16 серпня 2012 Задумався над товщиною фундамента несучого перестінка. Планував 30 см, і стіна на нього в 1,5 кирпіча. Зараз задумався, чи достатньо 30 см? Яку подушку потрібно робити під нього? Розумію що потрібна геологія грунту, проте буду орієнтуватися на сосідів, грибина ями під фундамент копали в основному 1,1-1,2м Посилання на коментар Поділитися на інших сайтах More sharing options...
loader Опубліковано: 16 серпня 2012 Поділитись Опубліковано: 16 серпня 2012 Задумався над товщиною фундамента несучого перестінка. Планував 30 см, і стіна на нього в 1,5 кирпіча. Зараз задумався, чи достатньо 30 см? Яку подушку потрібно робити під нього? Розумію що потрібна геологія грунту, проте буду орієнтуватися на сосідів, грибина ями під фундамент копали в основному 1,1-1,2м планую 40см під несучий перестінок в 1.5 кірпіча (38см), подушка орієнтовно 80см (орієнтовна цифра взята з попереднього збору навантажень з запасом 10% для мінімального табличного опору грунту для просадочних грунтів (1 кг/см2)) поки що це рахував більше для оцінки вартості матеріалів/робіт, можливо ближче до початку будівничтва зроблю геологію і віддам фундамент на перерахунок конструктору. корисна стаття: yak-prosto.com/yak-viznachiti-opir-gruntu/ 1 Посилання на коментар Поділитися на інших сайтах More sharing options...
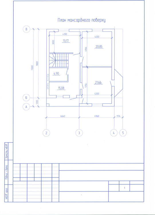
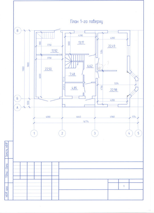
Ayusik Опубліковано: 29 серпня 2012 Автор Поділитись Опубліковано: 29 серпня 2012 Ось. Замовив в Архітектора втілити мої бажання в реальні креслення з врахуванням всіх нюансів. Сьогодні отримав перші креслення. Прошу ВАС знаючих людей, тих хто на цьому ділі, як то кажуть, зїв багато чого )) . Прокоментувати креслення, дайте критики і зауваження. Будуюсь перший, і швидше всього останній раз, хочеться врахувати по максимуму все. Посилання на коментар Поділитися на інших сайтах More sharing options...
Ayusik Опубліковано: 30 серпня 2012 Автор Поділитись Опубліковано: 30 серпня 2012 Вирішив камін поставити в залі, в кутку від кухні, задумався, як правильно робити димоход для кутового каміна? Посилання на коментар Поділитися на інших сайтах More sharing options...
loader Опубліковано: 30 серпня 2012 Поділитись Опубліковано: 30 серпня 2012 Вирішив камін поставити в залі, в кутку від кухні, задумався, як правильно робити димоход для кутового каміна? Є на руках робочий проект з кутовим каміном, зможу ввечері відсканувати креслення якшо вони там є Посилання на коментар Поділитися на інших сайтах More sharing options...
Ayusik Опубліковано: 30 серпня 2012 Автор Поділитись Опубліковано: 30 серпня 2012 Є на руках робочий проект з кутовим каміном, зможу ввечері відсканувати креслення якшо вони там є Буду вдячний. Добавлено через 1 минуту А як на рахунок зауважень по будинку, немає ??? Значить він ідеальний Посилання на коментар Поділитися на інших сайтах More sharing options...
loader Опубліковано: 30 серпня 2012 Поділитись Опубліковано: 30 серпня 2012 Буду вдячний. Добавлено через 1 минуту А як на рахунок зауважень по будинку, немає ??? Значить він ідеальний Як на мене, не спеціаліста, то якихось нюансів не бачу.... На відміну від свого Чим топити плануєте? Посилання на коментар Поділитися на інших сайтах More sharing options...
Ayusik Опубліковано: 30 серпня 2012 Автор Поділитись Опубліковано: 30 серпня 2012 Як на мене, не спеціаліста, то якихось нюансів не бачу.... На відміну від свого Чим топити плануєте? На перший час - електрокотел. з очікуванням підведення газу. Думав, твердопаливний котел ставити, та передумав. Посилання на коментар Поділитися на інших сайтах More sharing options...
Ayusik Опубліковано: 1 вересня 2012 Автор Поділитись Опубліковано: 1 вересня 2012 Задумався над каналом на витяжку на кухні. Як краще , виводити канал над дахом, чи достатньо вивести на вулицю через бокову стіну. ??? Посилання на коментар Поділитися на інших сайтах More sharing options...
loader Опубліковано: 1 вересня 2012 Поділитись Опубліковано: 1 вересня 2012 Задумався над каналом на витяжку на кухні. Як краще , виводити канал над дахом, чи достатньо вивести на вулицю через бокову стіну. ??? Краще над дахом. Просто на вулицю - читав про негатив починаючи від холоду що заходить через канал, закінчуючи намерзанням на фасаді... + якшо планується газ, то краще мати 2 канали: до одного підключена витяжка (примусова вентиляція), інший - природня вентиляція, на скільки я розумію це має відношення до якихось норм при підключенні газу.... Добавлено через 20 минут Є на руках робочий проект з кутовим каміном, зможу ввечері відсканувати креслення якшо вони там є скинув на почту... але скажу, що собі плануємо закриту топку з можливістю обігрівати будинок.... Посилання на коментар Поділитися на інших сайтах More sharing options...
Ayusik Опубліковано: 3 вересня 2012 Автор Поділитись Опубліковано: 3 вересня 2012 але скажу, що собі плануємо закриту топку з можливістю обігрівати будинок.... Ну, в мене також це під питанням: чи мурувати камін чи закрита топка з декоративним оздобленням. А обігрівати будинок і те і те буде, ну маю на увазі кімнату в якій встановлено. Чи ви будете робити теплообмінник з підключенням до системи опалення? Посилання на коментар Поділитися на інших сайтах More sharing options...
vadimv Опубліковано: 3 вересня 2012 Поділитись Опубліковано: 3 вересня 2012 А як на рахунок зауважень по будинку, немає ???Есть вопрос. А что это у вас за загогулина площадью 15,08 кв.м. на втором этаже возле балкона? Посилання на коментар Поділитися на інших сайтах More sharing options...
Ayusik Опубліковано: 3 вересня 2012 Автор Поділитись Опубліковано: 3 вересня 2012 Есть вопрос. А что это у вас за загогулина площадью 15,08 кв.м. на втором этаже возле балкона? Оставил пока как коридор, возле окна балконного столик для чаю ), но продумую варианты: 1) увеличить ванную (не думаю что сделаю так) 2) гардиробная 3) так и оставить коридор. Вот заметил что дверь нада в большую спальню перенести напротив ванной. Посилання на коментар Поділитися на інших сайтах More sharing options...
Ayusik Опубліковано: 7 вересня 2012 Автор Поділитись Опубліковано: 7 вересня 2012 1№39-1-12.-Model.pdf2№39-1-12.-Model.pdf3№39-1-12.-Model.pdf4№39-1-12.-Model.pdf5№39-1-12.-Model.pdf6№39-1-12.-Model.pdf Ось приблизно по цьому буду будуватися, + можливо невеликі зміни в самому процесі будівництва Задумався над: Висота мансардного поверху 2,6м - багато, мало чи нормально? Може 2,4 - зробити? з метою економії? Посилання на коментар Поділитися на інших сайтах More sharing options...
Рекомендовані повідомлення
Створіть акаунт або увійдіть у нього для коментування
Ви маєте бути користувачем, щоб залишити коментар
Створити акаунт
Зареєструйтеся для отримання акаунта. Це просто!
Зареєструвати акаунтУвійти
Вже зареєстровані? Увійдіть тут.
Увійти зараз