Шарманщик Опубліковано: 13 лютого 2010 Поділитись Опубліковано: 13 лютого 2010 И мой пятачёк туда же.... Приямок 2 м глубиной, сверху плита залита 10 см с металлическим люков в уровне земельки, сверху снег - уже восемь лет и не было ни разу никаких проблем с замерзанием-обмерзанием. Конденсат на потолке - это ДА, имеет место быть, го когда порвало корпус шарового 1" крана на гребенке и пол-приямка воды было, туточки я по-радовался, что приямок на улице.... З.Ы. 2 Propeller Я прям Ваши планы воплотил... Забабахал комнату кирпичную 2х2х2.. +Освещение + люк над трубой + пару полок, что б было куда чего положить при ремонте-обслуге + "ручные" выключатели насоса (рекомендую, очень полезно при обслуге) + приямок для сбора воды + (планирую добавить) дренажный насос в приямок "Идеи носятся в воздухе, надо только успеть поймать их..."(с) Посилання на коментар Поділитися на інших сайтах More sharing options...
Vit3f Опубліковано: 13 лютого 2010 Поділитись Опубліковано: 13 лютого 2010 Сергей, а ведь классное решение Вы показали выше. Почему бы приямок не сделать полноценной подземной насосной ? Бросить 2 кольца по 1,5 м. Я уже не говорю про вариант лить комнатку из бетона. 1. Тепло 2. Обслуживать при необходимости в тепле 3. Места для обслуживания достаточно 4. Люк расположить над выходом обсадной трубы для возможности работы с тяжелой техникой 5. Организовать освещение. У нас на даче именно так. Пока ничего не замерзало. Посилання на коментар Поділитися на інших сайтах More sharing options...
Сергей_84 Опубліковано: 13 лютого 2010 Поділитись Опубліковано: 13 лютого 2010 Конденсат на потолке - это ДА, имеет место быть, 2 Кимура, конденсат наверное от того, что в приямке стоит минусовая температура Посилання на коментар Поділитися на інших сайтах More sharing options...
Сергей_84 Опубліковано: 13 лютого 2010 Поділитись Опубліковано: 13 лютого 2010 Наконецто написали реальные люди, а не теоретик начитавшийся информации в интернете..... Рад за всех у кого ничего не замерзло...... У меня был только один случай замерзания этой зимой .......но... Там приямок был глубиной 1 метр и 2 метра в диаметре, через него проходила труба ПЕ32 на глубине 80 см от уровня земли ничем не утепленная и приямок был тупо накрыт листом стали толщиной около 3 мм......(была подготовка под полив газонов на весну) Клиент позвонил в последний день больших морозов этой зимой и вместо того чтобы наезжать за то, что сидит без воды, начал извиняться, что забыл утеплить приямок , накрыть его бетоном с утеплением и за то, что нам прийдется в -20 ехать к нему и разогревать трубу и обматывать ватой...Вот это отношение к людям.....с таким отношением даже денег за приезд не взяли с него (50 км от Житомира), тем более когда мы к нему приехали на следущий день уже все размерзнуться успело при -10 , мы только намотали вату...ВСЁ.....на этом истории замерзания приямков, колодцев и прочего не всплыли.. Посилання на коментар Поділитися на інших сайтах More sharing options...
Kimura Опубліковано: 13 лютого 2010 Поділитись Опубліковано: 13 лютого 2010 И мой пятачёк туда же.... Приямок 2 м глубиной, сверху плита залита 10 см с металлическим люков в уровне земельки, сверху снег - уже восемь лет и не было ни разу никаких проблем с замерзанием-обмерзанием. Конденсат на потолке - это ДА, имеет место быть, го когда порвало корпус шарового 1" крана на гребенке и пол-приямка воды было, туточки я по-радовался, что приямок на улице.... З.Ы. 2 Propeller Я прям Ваши планы воплотил... Забабахал комнату кирпичную 2х2х2.. +Освещение + люк над трубой + пару полок, что б было куда чего положить при ремонте-обслуге + "ручные" выключатели насоса (рекомендую, очень полезно при обслуге) + приямок для сбора воды + (планирую добавить) дренажный насос в приямок "Идеи носятся в воздухе, надо только успеть поймать их..."(с) Я бы туда поставил еще бар и спутниковое телевидение... Но в целом набор разумный. Посилання на коментар Поділитися на інших сайтах More sharing options...
Шарманщик Опубліковано: 13 лютого 2010 Поділитись Опубліковано: 13 лютого 2010 Я бы туда поставил еще бар и спутниковое телевидение... Но в целом набор разумный. И несколько теток там поселить...на всяк случай... 1 Посилання на коментар Поділитися на інших сайтах More sharing options...
Слава Щ. Опубліковано: 10 травня 2010 Автор Поділитись Опубліковано: 10 травня 2010 У меня на даче скважина летней эксплуатации тоже 20-ти метровая (зеркало 8 м). Работает лет 15. Проблем нет. НО. У нас с вами скважины "на песок" , а у людей "на известняк". Юзеры говорят такие периодически нужно мыть... А вот люди наоборот пишут (из российского форума): У меня у соседа скважина в доме лет 5, проблем нет. Скважина на известняк не заиливается даже в законсервированном виде, в отличии от скв. на песок, кот. надо периодически прокачивать. Срок службы скв. на известняк в среднем 50-100 лет и более (трубы служат столько же), а на песок 5-10 лет. Посилання на коментар Поділитися на інших сайтах More sharing options...
Propeller Опубліковано: 11 травня 2010 Поділитись Опубліковано: 11 травня 2010 У меня в этом году начала после "расконсервации" подсасывать песок. Пришлось сделать и поставить на входе в насос "гравитационный" фильтр-осадитель. Чем дальше, тем меньше песка. Единственное не могу понять : внизу на скважине фильтрующая сетка. Если она порвалась, то песок должен идти постоянно. А так за 4 недели эксплуатации уже почти исчез из воды. А недели - это выходные дни. Что-то я пропустил.... Посилання на коментар Поділитися на інших сайтах More sharing options...
y-dom Опубліковано: 13 травня 2010 Поділитись Опубліковано: 13 травня 2010 Подскажите, каких размеров должен быть приямок для скважины в доме. 2. Какой объем сосуда нужно для скважины 5 м3/ч? Посилання на коментар Поділитися на інших сайтах More sharing options...
Слава Щ. Опубліковано: 13 травня 2010 Автор Поділитись Опубліковано: 13 травня 2010 Подскажите, каких размеров должен быть приямок для скважины в доме. 2. Какой объем сосуда нужно для скважины 5 м3/ч? Балакали, балакали, сіли та й заплакали. Три страницы говорим о том, что при устройстве скважины в доме приямок не нужен. 2. Пол литра. Посилання на коментар Поділитися на інших сайтах More sharing options...
y-dom Опубліковано: 13 травня 2010 Поділитись Опубліковано: 13 травня 2010 На вопрос прошу ответить специалистам, а не опытным форумчанам Даю рекомендации Заказчику - высота приямка 1,5 м. Объем мемрбанного сосуда 50-100 л - хватит? Для Славы Щ Попробуйте на досуге произвести замену насоса и ремонт мембранного расширительного сосуда в техническом подполье высотой 90 см Посилання на коментар Поділитися на інших сайтах More sharing options...
Слава Щ. Опубліковано: 13 травня 2010 Автор Поділитись Опубліковано: 13 травня 2010 (змінено) На вопрос прошу ответить специалистам, а не опытным форумчанам Да шо ви кажете... Даю рекомендации Заказчику - высота приямка 1,5 м. Объем мемрбанного сосуда 50-100 л - хватит? Почему не по теме? Тут все говорят про целесообразность скважины под домом. И что можно подумать, когда в теме "Скважина под домом" спрашивают: Подскажите, каких размеров должен быть приямок для скважины в доме. Для Славы Щ Попробуйте на досуге произвести замену насоса и ремонт мембранного расширительного сосуда в техническом подполье высотой 90 см А зачем? Змінено 13 травня 2010 користувачем Слава Щ. Посилання на коментар Поділитися на інших сайтах More sharing options...
Сергей_84 Опубліковано: 13 травня 2010 Поділитись Опубліковано: 13 травня 2010 Да шо ви кажете... Почему не по теме, тут все говорят про целесообразность скважины под домом. И что можно подумать, когда в теме "Скважина под домом" спрашивают: А зачем? просто вам посоветовали прочувствовать как это-обслуживать в неуцдобном положении и подумать сколько бы вы за это взяли денег....когда подумаете и испробуете может и не захочется делать скважину в доме..... опять же скажу....я не считаю скважинами вот те дырки в земле диаметрами 50 мм...это миниколодец ну никак не скважина......и к нему другие требования Посилання на коментар Поділитися на інших сайтах More sharing options...
Улыбочка)) Опубліковано: 15 жовтня 2015 Поділитись Опубліковано: 15 жовтня 2015 Оживлю подутихщую. но очень полезную тему... из всего перечитанного вывод - что скважина в доме имеет приимущества: 1. экономия на приямке за счет стен фундамента 2. меньше вероятность замерзания оголовка и труб 3. монтаж и обслуживание независимо от атмосферных/температурных условий. 4. меньше вероятность что "умыкнут" НС вместе с потрохами 5. экономия на материалах при разводке 6. легкодоступность (это если из-под снега например откапывать люк придется) 7. - ??? (может кто подскажет, добавит) недостатки: 1. Шум при пуске 2. /самое главное/ - проблема обслуживания по причине упирания трубы в потолок, если ее придется доставать.... 3. - ??? (может кто подскажет, добавит) ПЭ труба низкого давления (синяя) состоит из сегментов по 3 метра..(если мне не изменяет память..) под резьбу.. Если взять стандартную высоту потолка 2,70 + сам приямок, допустим 1,50 метра, то если расположить НС прямо под люком - то вытащить и разобрать не составить проблемы.. но(!).. разобрать всю конструкцию можно будет только в случае, если скважина делается в 2 колонны - обсадная+труба на воду.... в таком случае думаю идея имеет право на жизнь.. Посилання на коментар Поділитися на інших сайтах More sharing options...
SERIY-N Опубліковано: 15 жовтня 2015 Поділитись Опубліковано: 15 жовтня 2015 опять же скажу....я не считаю скважинами вот те дырки в земле диаметрами 50 мм...это миниколодец ну никак не скважина......и к нему другие требования А можно поинтересоваться, почему Вы не считаете "дырки в земле" скважинами? Просто у меня и у соседей вокруг, такие "дырки" на +-36м. уже много лет, у некоторых по 10-15 лет.На вкус и по анализу-вода отличная, дебет 1.5 куба.Если позволяют исходные данные, чем не скважина? Про цену бурения, оборудования и прочих плюшек и говорить нечего, разница ну очень ощутима.Пока никаких минусов эксплуатации такой "дырки" не замечено.;) Посилання на коментар Поділитися на інших сайтах More sharing options...
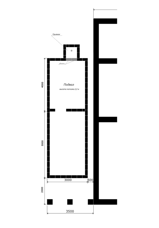
maste Опубліковано: 15 жовтня 2015 Поділитись Опубліковано: 15 жовтня 2015 Имею подвал залитый монолитной бетонной плитой, стены подвала из шлакоблока, грунт чернозем 50 см, глина 50 см, дальше песок, подвал сухой, грунтовые воды низко. Хочу пробурить скважину рядом со стеной подвала, потом удалить грунт и сделать приямок, который будет накрыт бетонной крышкой. Крышка приямка будет присыпана грунтом, сверху будет тротуарная плитка, т.е. при необходимости плитку можно снять и получить доступ к скважине. Вырезаю шлакоблоки в стене подвала и имею доступ к скважине из подвала. Как вам такой вариант? По моему он решает многие проблемы. И еще есть один вопрос к специалистам: если пробурить скважину сейчас, а начать эксплуатировать летом, какие проблемы могут возникнуть? Глубина скважины примерно 40 м. Посилання на коментар Поділитися на інших сайтах More sharing options...
sapotik Опубліковано: 10 березня 2016 Поділитись Опубліковано: 10 березня 2016 У меня скважина пробита лет 15 назад, а дом построил прямо над скважиной 10 лет назад.теперь насос у меня в подвале под домом и всё там на месте и работает нормально,скважина 8 метров и вода отличная.верхние слои глина толщиной около от пол до метра а далее ниже песок. Посилання на коментар Поділитися на інших сайтах More sharing options...
Рекомендовані повідомлення
Створіть акаунт або увійдіть у нього для коментування
Ви маєте бути користувачем, щоб залишити коментар
Створити акаунт
Зареєструйтеся для отримання акаунта. Це просто!
Зареєструвати акаунтУвійти
Вже зареєстровані? Увійдіть тут.
Увійти зараз