Зигзаг Удачи Опубліковано: 14 січня 2013 Поділитись Опубліковано: 14 січня 2013 Сижу уже пару дней в жестоких раздумьях относительно пирога стены для дачи :D Хотя в принципе сам пирог в виде газобетон-перлит-клинкер уже сформировался, но соотношение ингредиентов еще под вопросом Практически решил, что газоблок будет Д500 В2,5 200 мм, но потом засомневался - а будет ли устойчива такая стена по периметру дома? Ведь кровлю хочется из керамической черепицы, да и угол кровли хочется поменьше, что потянет за собой значительные распорные усилия по армпоясу... Что скажете? Можно ли брать блок 200-ку или не рисковать и взять 250 мм? Посилання на коментар Поділитися на інших сайтах More sharing options...
Alita Опубліковано: 14 січня 2013 Поділитись Опубліковано: 14 січня 2013 Из ГБ 200 внутренние перегородки делают. Посилання на коментар Поділитися на інших сайтах More sharing options...
Зигзаг Удачи Опубліковано: 14 січня 2013 Автор Поділитись Опубліковано: 14 січня 2013 Из ГБ 200 внутренние перегородки делают. Это понятно Но это же не говорит, что из ГБ 200 нельзя делать несущие стены... Посилання на коментар Поділитися на інших сайтах More sharing options...
alexey_w140 Опубліковано: 14 січня 2013 Поділитись Опубліковано: 14 січня 2013 Большой домик довольно... по теме не суть 200мм 100мм или 300мм все будет держать армопояс, если вы сделаете по всему периметру армопояс то проблем не будет хоть 100мм хоть 200мм.... я себе брал жидовский вариант 250мм потом 100мм воздух (как показала практика засаплю перлитом) и облицовка тоже думал брать рахитную типа какая разница... но всетаки остановился на на стандартной в пол кирпича и очень рад так как ну бред это стана 6см толшиной очень хлипкая а реально в метсах кладки там вообще 4-5см будет вобшем прочности и устойчивости 0 , кирпич брал БЦ флеш отличный кирпич.. вес кровельного материала абсолютно не играет роли это все бредни.... а чем меньше угол тем меньше будет расперать ... но это еще от вида кровли зависит при двускатке так точно... Посилання на коментар Поділитися на інших сайтах More sharing options...
Korni Опубліковано: 14 січня 2013 Поділитись Опубліковано: 14 січня 2013 Практически решил, что газоблок будет Д500 В2,5 200 мм, но потом засомневался - а будет ли устойчива такая стена по периметру дома? Без предшествующего опыта тяжело сделать грамотный бетонный каркас. И армопояс - только одна из составляющих. Но можно. Я делал несколько таких домов. Вот только периметр у них был меньше. Максимальный - 10*12м .....Пожалуй, я бы не рисковал в Вашем случае.... И ни один конструктор не подпишется. Посилання на коментар Поділитися на інших сайтах More sharing options...
Зигзаг Удачи Опубліковано: 14 січня 2013 Автор Поділитись Опубліковано: 14 січня 2013 Без предшествующего опыта тяжело сделать грамотный бетонный каркас. И армопояс - только одна из составляющих. Но можно. Я делал несколько таких домов. Вот только периметр у них был меньше. Максимальный - 10*12м .....Пожалуй, я бы не рисковал в Вашем случае.... И ни один конструктор не подпишется. Кстати - я рассматривал этот домик в альбомах Бетонный каркас - учитывая толщину стены можно перестраховаться в виде закладывания в зону растяжения дополнительной арматуры, или увеличения сечения. Меня в 200 мм стене смущают штробы, на которые как всегда богаты сантехники и электрики Посилання на коментар Поділитися на інших сайтах More sharing options...
alexey_w140 Опубліковано: 14 січня 2013 Поділитись Опубліковано: 14 січня 2013 Но можно. Я делал несколько таких домов. Вот только периметр у них был меньше. Максимальный - 10*12м Интересно а причем сдесь периметр? ну 100 на 100 или 10 на 10 и что? ну хорошо дом 10 на 10 без стен просто одно помешение и дом 100 на 100 поделений на комнатки 3 на 3 и в каком варианте будет больше устойчивость? устойчивость это высота стены ширина стены и ее длина ну и вес прочность конечно... по плану автора с довольно небольшими комнатами там той устойчивости с головой.... там больше нужно обратить внимание на фундамент и арпояс и на тех кто это все будет делать! Посилання на коментар Поділитися на інших сайтах More sharing options...
Зигзаг Удачи Опубліковано: 14 січня 2013 Автор Поділитись Опубліковано: 14 січня 2013 Большой домик довольно... по теме не суть 200мм 100мм или 300мм все будет держать армопояс, если вы сделаете по всему периметру армопояс то проблем не будет хоть 100мм хоть 200мм.... я себе брал жидовский вариант 250мм потом 100мм воздух (как показала практика засаплю перлитом) и облицовка тоже думал брать рахитную типа какая разница... но всетаки остановился на на стандартной в пол кирпича и очень рад так как ну бред это стана 6см толшиной очень хлипкая а реально в метсах кладки там вообще 4-5см будет вобшем прочности и устойчивости 0 , кирпич брал БЦ флеш отличный кирпич.. вес кровельного материала абсолютно не играет роли это все бредни.... а чем меньше угол тем меньше будет расперать ... но это еще от вида кровли зависит при двускатке так точно... Домик - на перспективу для выхода на пенсию и ловли рыбы Думаю, что клинкер 65 мм с соответствующими связями с несущим слоем будет нормально стоять... Посилання на коментар Поділитися на інших сайтах More sharing options...
Korni Опубліковано: 14 січня 2013 Поділитись Опубліковано: 14 січня 2013 Интересно а причем сдесь периметр? ну 100 на 100 или 10 на 10 и что? Вы строили такие дома? Или проектировали? Насчёт штроб я бы не переживал... С этим несложно бороться. А вот насчёт поперечной устойчивости стен - побеспокоился бы. Посилання на коментар Поділитися на інших сайтах More sharing options...
Зигзаг Удачи Опубліковано: 14 січня 2013 Автор Поділитись Опубліковано: 14 січня 2013 А вот насчёт поперечной устойчивости стен - побеспокоился бы. Та да, наверняка же есть какая-то эмпирическая формула расчета устойчивости стены в зависимости от ширины. Но что-то мне подсказывает, что до высоты 3,00 (как в моем случае) проблем с устойчивостью быть не должно :D Посилання на коментар Поділитися на інших сайтах More sharing options...
Korni Опубліковано: 14 січня 2013 Поділитись Опубліковано: 14 січня 2013 наверняка же есть какая-то эмпирическая формула расчета устойчивости стены в зависимости от ширины Совсем не эмпирическая. И не от ширины, а от длины. ;) Посилання на коментар Поділитися на інших сайтах More sharing options...
Зигзаг Удачи Опубліковано: 14 січня 2013 Автор Поділитись Опубліковано: 14 січня 2013 Совсем не эмпирическая. И не от ширины, а от длины. ;) Предлагаю не скрывать ее от широких масс трудящихся! :D Посилання на коментар Поділитися на інших сайтах More sharing options...
Korni Опубліковано: 14 січня 2013 Поділитись Опубліковано: 14 січня 2013 Кхм. Просто задам вектор -> К конструктору! Посилання на коментар Поділитися на інших сайтах More sharing options...
Зигзаг Удачи Опубліковано: 14 січня 2013 Автор Поділитись Опубліковано: 14 січня 2013 Кхм. Просто задам вектор -> К конструктору! Направление предполагаемого моего движения указано достаточно однозначно. Запишу как вариант. Есть тут еще кто? Посилання на коментар Поділитися на інших сайтах More sharing options...
alexey_w140 Опубліковано: 14 січня 2013 Поділитись Опубліковано: 14 січня 2013 Вы строили такие дома? Или проектировали? нет я построил только один дом и мне этого наверное хватило я свое мнение не навязую , пишу конкретные веши если я в чем то ошибся поправте .... Посилання на коментар Поділитися на інших сайтах More sharing options...
Korni Опубліковано: 14 січня 2013 Поділитись Опубліковано: 14 січня 2013 пишу конкретные веши Чем больше я узнаю, тем больше понимаю, что ничего не знаю. Посилання на коментар Поділитися на інших сайтах More sharing options...
tansss Опубліковано: 15 січня 2013 Поділитись Опубліковано: 15 січня 2013 Зигзаг Удачи, Для стены 200мм... Нужно сделать проверочный расчёт (расчётный вес стен и кровли и тд соотносите с площадью опирания (несущих стен)).... берёте табличные данные желаемого ГБ... прочность на сжатие должна быть больше нагрузки.... Для обеспечения устойчивости: -кладку делать с перевязкой с перегородками и ОБЩИМ армированием -частоту армирования удвоить (через один ряд) -армопояс лить и армировать и по перегородкам в том числе -балки перекрытий не свободно лежащие а жёстко закреплённые... 1 Посилання на коментар Поділитися на інших сайтах More sharing options...
Высотник Опубліковано: 15 січня 2013 Поділитись Опубліковано: 15 січня 2013 Вижу, что все рассматривают несущую нагрузку, а надо бы ветровую... В совдепии проектировали толщину стен по несущей нагрузке, теплоизоляционной и ветровой, так вот теплоизоляция сейчас делается как отдельный элемент, следовательно толщину стены можно уменьшать, для несущей способности стены её толщина может быть меньше (чем расчитывалось годами раньше), но до определённого момента - это когда нужно начинать бояться что стена перестанет сопротивляться ветровой нагрузке. А вот расчёт - это, как выше было сказано, к конструкторам. Посилання на коментар Поділитися на інших сайтах More sharing options...
ИльЯ С Опубліковано: 15 січня 2013 Поділитись Опубліковано: 15 січня 2013 Та да, наверняка же есть какая-то эмпирическая формула расчета устойчивости стены в зависимости от ширины. Но что-то мне подсказывает, что до высоты 3,00 (как в моем случае) проблем с устойчивостью быть не должно :D Лучше обратитесь к Снипу " каменные и армокаменные консрукции." если желаете конечно. Посилання на коментар Поділитися на інших сайтах More sharing options...
Drosselbeere Опубліковано: 15 січня 2013 Поділитись Опубліковано: 15 січня 2013 Для стены 200мм... Нужно сделать проверочный расчёт обязательно надо -армопояс лить и армировать и по перегородкам в том числе глупость редкая, на то она и перегородка, что бы перегораживать, а не воспринимать нагрузку -балки перекрытий не свободно лежащие а жёстко закреплённые... если балки деревянные, интересно как они работаю, особенно если жестко защемленные формула расчета устойчивости стены в зависимости от ширины. есть формула, вернее методика расчета. все описано в СНиП или ДБН. устойчивость зависит не только от ширины, но и приложения нагрузки, материала стены, закрепления и тд и тп. Вижу, что все рассматривают несущую нагрузку, а надо бы ветровую... конечно необходимо учесть в расчете, но ветер хорошо воспринимают поперечные стены. самые проблемные места у стены это простенки, так как на небольшой участок стены приходит большая грузовая площадь, особенно у наружных стен еще появляется момент, а от ветра как раз нагрузка не значительная. Посилання на коментар Поділитися на інших сайтах More sharing options...
Raha Опубліковано: 15 січня 2013 Поділитись Опубліковано: 15 січня 2013 Без предшествующего опыта тяжело сделать грамотный бетонный каркас. И армопояс - только одна из составляющих. Почему тяжело? В чем именно, с вашей точки зрения, здесь заключена сложность? Опалубку выставить, повязать и выставить армокаркас по проекту, замесить/залить/провибрировать бетон, а потом укрывать/поливать его. Не понимаю чего я не не учитываю, но мне раньше этот этап строительства не представлялся сложным... чего я не учитываю, для чего нужен опыт? Посилання на коментар Поділитися на інших сайтах More sharing options...
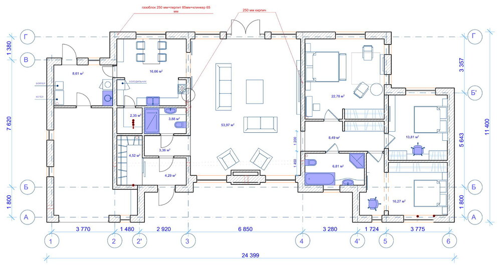
Зигзаг Удачи Опубліковано: 15 січня 2013 Автор Поділитись Опубліковано: 15 січня 2013 Одна мысль - если рассматривать конструкцию стены в виде сендвича газоблок(200)-воздушная прослойка(135)-клинкер(65), то при установке анкеров из базальтовой арматуры в количестве не 5 как по нормативу, а скажем 8 шт/кв м - ее устойчивость же будет выше, чем просто газобетона 200 мм? P.S. Пошел читать ДБН Добавлено через 8 минут Зигзаг Удачи, Для стены 200мм... Нужно сделать проверочный расчёт (расчётный вес стен и кровли и тд соотносите с площадью опирания (несущих стен)).... берёте табличные данные желаемого ГБ... прочность на сжатие должна быть больше QUOTE] Расчет показал нагрузку в нижнем ряду порядка 1,5 кг/кв см. По СНИП для блока В2,5 на растворе 50 (думаю что клей по крайней мере не хуже 50) нагрузка до 11 кг/кв см. Тут с запасом. Армирование планировал арматурой 12 через 4 ряда. Вот вопрос с устойчивостью пока что открытый... Добавлено через 30 минут Вычитал в СНИП: Допустимые отношения высот стен и столбов к их толщинам 6.16. Отношение высоты стены или столба к толщине независимо от результатов расчета не должно превышать указанных в пп. 6.17 - 6.20. 6.17. Отношение H/h (где H - высота этажа, h - толщина стены или меньшая сторона прямоугольного сечения столба) для стен без проемов, несущих нагрузки от перекрытий или покрытий, при свободной длине стены не должно превышать величин, приведенных в табл. 28 (для кладки из каменных материалов правильной формы). Марка раствора 50 и выше - 25 Это для сплошной стены длиной не более 2,5 H. У меня соотношение 3/0,2=15 На первый взгляд - проходит... Посилання на коментар Поділитися на інших сайтах More sharing options...
tansss Опубліковано: 15 січня 2013 Поділитись Опубліковано: 15 січня 2013 Расчет показал нагрузку в нижнем ряду порядка 1,5 кг/кв см. По СНИП для блока В2,5 на растворе 50 (думаю что клей по крайней мере не хуже 50) нагрузка до 11 кг/кв см. Тут с запасом. Армирование планировал арматурой 12 через 4 ряда. Вот вопрос с устойчивостью пока что открытый... Отлично.....;) По поводу деформаций потери устойчивости (деформаций из плоскости).... Приминение рекомендаций изложенных мной выше Вы полностью переходите в плоское, почти одноосное НДС(напряжённо деформированное состояние не путаем). д12- многовасто... традиционная 8-ка в два ручья (даже в 200мм) но замкнутая по всем стенам - достаточно! 1 Посилання на коментар Поділитися на інших сайтах More sharing options...
Andrei constructor Опубліковано: 15 січня 2013 Поділитись Опубліковано: 15 січня 2013 Одна мысль - если рассматривать конструкцию стены в виде сендвича газоблок(200)-воздушная прослойка(135)-клинкер(65), то при установке анкеров из базальтовой арматуры в количестве не 5 как по нормативу, а скажем 8 шт/кв м - ее устойчивость же будет выше, чем просто газобетона 200 мм? Это гибкие анкера, учитывать их как элементы повышающие устойчивость ГБ стены не стоит. Добавлено через 7 минут Устойчивость повышают поперечные стены и перегородки, перевязанные с несущими стенами. Там где у вас длинная наружная стена в осях "1-2" перебейте ее либо внутренними, либо наружными пилястрами. 2 Посилання на коментар Поділитися на інших сайтах More sharing options...
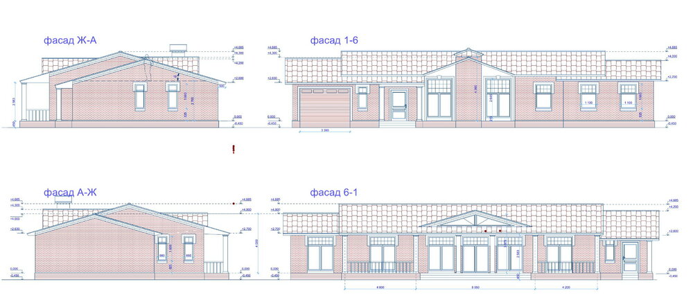
Зигзаг Удачи Опубліковано: 15 січня 2013 Автор Поділитись Опубліковано: 15 січня 2013 Это гибкие анкера, учитывать их как элементы повышающие устойчивость ГБ стены не стоит. Добавлено через 7 минут Устойчивость повышают поперечные стены и перегородки, перевязанные с несущими стенами. Там где у вас длинная наружная стена в осях "1-2" перебейте ее либо внутренними, либо наружными пилястрами. Может вместо пилястры сделать тот простенок, который поперек этой стены из газобетона 200 мм? Забыл указать на чертеже - стены по осям 2 и 5 кирпичные 250 мм. И еще одно уточнение - фундамент бетонная плита 250 мм... Посилання на коментар Поділитися на інших сайтах More sharing options...
Рекомендовані повідомлення
Створіть акаунт або увійдіть у нього для коментування
Ви маєте бути користувачем, щоб залишити коментар
Створити акаунт
Зареєструйтеся для отримання акаунта. Це просто!
Зареєструвати акаунтУвійти
Вже зареєстровані? Увійдіть тут.
Увійти зараз